Projecten
Producten
Bedrijven
Vacatures
Agenda
Awards
Podcasts
more_horiz
Videos
Magazine
Favorieten
Profiel
Uitloggen
Abonneer je nu op onze nieuwsbrieven!
Abonneren
Nee, bedankt
Ja, denk met me mee rond de
materialisering van mijn project
Copyright: Luuk Kramer
Copyright: Luuk Kramer
Copyright: Luuk Kramer
Copyright: Luuk Kramer
Copyright: Luuk Kramer
Copyright: Luuk Kramer
Copyright: Luuk Kramer
Copyright: Snelder Architecten
Copyright: Snelder Architecten
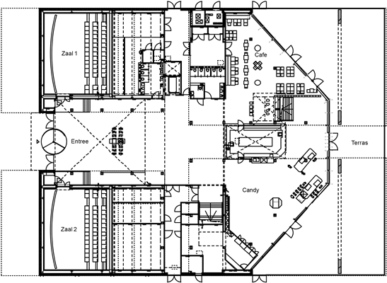
Copyright: Begane grond. Snelder Architecten
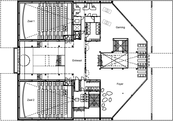
Copyright: Eerste verdieping. Snelder Architecten
Copyright: Derde verdieping. Snelder Architecten
Copyright: Situatie. Snelder Architecten
Robuuste bioscoop aan het Wantij
5 april 2016, 15:19
De bioscoop Kinepolis staat aan het Dordtse Wantij, in een voormalig havengebied aan de rand van het historische stadscentrum. Het ontwerp van
Snelder Architecten
is stoer en robuust en maakt letterlijk een verbinding met het water.
De bioscoop staat krachtig en expressief aan de waterkant. Het gebouw heeft een volledig symmetrische hoofdopzet en een stevige materialisatie van donkere baksteen, stalen gevelbekleding en ruw beton. Bij de stalen bekleding is gekozen voor een goud-grijs puntprofiel.
Uitkragende zalen
Aan de plein- en tevens entreezijde oogt het gebouw robuust, met een relatief gesloten gevel uit overÂwegend donkere baksteen. In contrast met de voorgevel biedt de glazen gevel aan de waterkant transparantie. Aan deze zijde is het café gesitueerd met het terras uitkragend boven het water.
Het terras is voor iedereen vrij toegankelijk en onderdeel van een nieuwe promenade langs het Wantij. Vier filmzalen steken aan weerszijden uit boven het water en het plein. Het plein is overigens ook een nieuw ontwerp, gemaakt door
Landlab
.
Binnen het gebouw is de bioscoop-beÂleving gemaximaliseerd, aldus Snelder Architecten. De routing en ruimtelijke opbouw zijn gericht op ontmoeting en visueel contact van de bezoekers onderling. De stromen naar en vanuit de filmzalen bewegen zich via het hart van het gebouw.
Locatiekeuze
Voor de ontwikkeling van een nieuwe bioscoop organiseerde de gemeente Dordrecht eerder een besloten prijsvraag. De geselecteerde partijen konden bij hun prijsvraaginzending kiezen uit vier locaties in Dordrecht en omgeving. Snelder Architecten koos voor het oude havengebied aan het Wantij.
Door deze locatie te kiezen, versterkt het architectenbureau het uitgaansaangebied in het gebied, waarin het culturele centrum Het Energiehuis en de horeca van Villa Augustus al een belangrijke rol spelen. Bovendien wordt op de landtong tussen het Wantij en de Beneden Merwede de nieuwe woonwijk Stadswerven ontwikkeld en ligt tevens het historische centrum van Dordrecht dichtbij.
Trefwoorden
dordrecht
wantij
landlab
snelder architecten
leisure
bioscoop
Locatie
Best gelezen
1
Woontoren Front door Monadnock wint tiende Architectuurprijs Nijmegen
donderdag, 9 april
2
Spoorwegverleden inspireert ontwerp woonblok Wisselspoor 10 in Utrecht
woensdag, 8 april
3
Rotterdam mag woningen gaan bouwen aan de Parkhaven
woensdag, 8 april
4
SeARCH en Heutink Groep winnen tender voor woongebouw Sluisbuurt
vrijdag, 10 april
5
KOW wint met Marker Woods tender voor nieuwe wijk Eschmarkerveld
woensdag, 8 april
Gerelateerde nieuwsberichten
Woongebouw aan Wantij door Studio AAAN opgeleverd
12 juni 2023
Bouw nieuw filmtheater in Utrechtse binnenstad gestart
9 februari 2021
Woongebouw Klunder en LAP zoekt connectie met het water
19 juni 2019
Dordrecht krijgt 'gezonde' buurt met 720 woningen
4 juni 2020
Mecanoo maakt ontwikkelvisie Spoorzone Dordrecht
17 april 2020
Vier bureaus naar tweede ronde Huis van Stad en Regio Dordrecht
19 juli 2019
Megabioscoop Utrecht gaat door
1 juli 2015
Bouw Kinepolis Dordrecht van start
18 maart 2015
Snelder Architecten ontwerpt megabioscoop
18 september 2013
Vernieuwd Trajectum-vmbo Utrecht geopend
15 december 2011
Bioscoop aan het water voor Dordrecht
30 juni 2011
Woongebouw aan Wantij door Studio AAAN opgeleverd
12 juni 2023
Bouw nieuw filmtheater in Utrechtse binnenstad gestart
9 februari 2021
Woongebouw Klunder en LAP zoekt connectie met het water
19 juni 2019
Dordrecht krijgt 'gezonde' buurt met 720 woningen
4 juni 2020
Mecanoo maakt ontwikkelvisie Spoorzone Dordrecht
17 april 2020
Vier bureaus naar tweede ronde Huis van Stad en Regio Dordrecht
19 juli 2019
Megabioscoop Utrecht gaat door
1 juli 2015
Bouw Kinepolis Dordrecht van start
18 maart 2015
Snelder Architecten ontwerpt megabioscoop
18 september 2013
Vernieuwd Trajectum-vmbo Utrecht geopend
15 december 2011
Bioscoop aan het water voor Dordrecht
30 juni 2011
Toon alles
Andere nieuwsberichten
Powerhouse Company wint aanbesteding voor verbouwing Vista College Maastricht
1 uur geleden
Het onderkomen van de mbo-school wordt gerenoveerd en uitgebreid met een houten gebouwdeel, dat onder meer de nieuwe hoofdentree en twee atria bevat. Ook moet de nieuwbouw de bestaande gebouwen beter met elkaar verbinden.
Stedelijk Museum organiseert tentoonstelling over ontwerper Kho Liang Ie
2 uur geleden
Met zijn ontwerpen voor meubels en interieurs van de jaren vijftig tot zijn dood halverwege de jaren zeventig nam Kho een centrale positie in binnen de Nederlandse vormgeving. Vermaard is onder meer zijn inrichting van luchthaven Schiphol.
Restauratie Atlasbeeld op dak Koninklijk Paleis Amsterdam afgerond
10 april, 3:38
Het beeld op het fronton van het paleis was in juli van zijn plek gehaald voor een uitgebreide onderhoudsbeurt in Antwerpen.
Nieuw zitgebied Lounge 2 Schiphol geïnspireerd door overgangsfase in oeuvre Mondriaan
10 april, 2:16
Op luchthaven Schiphol is de derde en laatste fase van door Beyond Space ontworpen zitgebieden opgeleverd. Net als de eerste twee fases van het project is dit gedeelte geïnspireerd door het werk van Mondriaan, maar dan uit een eerdere periode.
AFM: funderingsproblemen bij bijna 220.000 woningen
21 minuten geleden
De huizen van bijna een half miljoen woningeigenaren hebben een hoog risico op funderingsproblemen of een mogelijke kwetsbare fundering.
Oprichter omgevallen vastgoedconcern Evergrande bekent schuld
4 uur geleden
Evergrande was ooit de grootste projectontwikkelaar van China, maar kwam in de problemen toen het zijn schulden niet kon terugbetalen.
Grote en kleine gemeenten balen van bouwregels Zuid-Holland
10 april, 4:31
Grote en kleine gemeenten in Zuid-Holland hebben hun zorgen geuit over nieuwe regels van de provincie, die volgens hen de woningbouw belemmeren.
Twijfels in Zuid-Holland over halen van doelen landelijk gebied
10 april, 12:18
De meeste partijen in de Zuid-Hollandse politiek hebben twijfels over de plannen die in zestien deelgebieden zijn gemaakt voor de aanpak van het landelijk gebied.
Huurprijzen stijgen harder dan koopwoningprijzen
10 april, 9:31
Volgens Huurwoningen.nl en Pararius moesten nieuwe huurders in het eerste kwartaal gemiddeld 21,12 euro per vierkante meter per maand neerleggen.
ABN AMRO: investeringen defensie vergroten druk op bouwcapaciteit
9 april, 12:29
Kazernes, opslagplaatsen en oefenterreinen dingen om dezelfde aannemers, ingenieurs en installateurs die ook nodig zijn voor bijvoorbeeld woningbouw.
Ga naar het nieuws-archief
0
0
0
0
Voor een optimale gebruikservaring plaatst Architectenweb functionele cookies. Wat de verschillende cookies precies doen leggen we uit in een
overzicht
. Cookies van social media kun je optioneel
aanzetten
.
Akkoord
Instellingen
Annuleren
OK
Sluiten
Doorgaan
Inloggen
Maak een gratis persoonlijk account aan
Feedback
Feedback
Wij horen graag jouw feedback. Laat je reactie achter en eventueel jouw e-mail adres.
Reactie
Verstuur