Projecten
Producten
Bedrijven
Vacatures
Agenda
Awards
Podcasts
more_horiz
Videos
Magazine
Favorieten
Profiel
Uitloggen
Abonneer je nu op onze nieuwsbrieven!
Abonneren
Nee, bedankt
Ja, denk met me mee rond de
materialisering van mijn project
Copyright: Ossip van Duivenbode
Copyright: Ossip van Duivenbode
Copyright: Ossip van Duivenbode
Copyright: Ossip van Duivenbode
Copyright: Ossip van Duivenbode
Copyright: Ossip van Duivenbode
Copyright: Ossip van Duivenbode
Copyright: Ossip van Duivenbode
Copyright: Doorsnede'. DP6 architectuurstudio
Copyright: Gevel van 'baquettes'. DP6 architectuurstudio
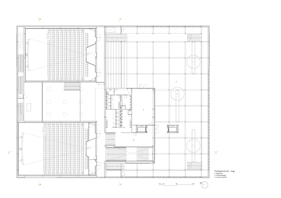
Copyright: Begane grond. DP6 architectuurstudio
Copyright: Tweede verdieping. DP6 architectuurstudio
Copyright: Vijfde verdieping. DP6 architectuurstudio
Copyright: Dak. DP6 architectuurstudio
DP6 levert CineMec Leidsche Rijn op
18 november 2015, 13:39
Langs de A2 bij Leidsche Rijn in Utrecht staat sinds kort een CineMec-bioscoop met een opvallende rode façade. De bioscoop met zeven zalen en bijna tweeduizend stoelen is ontworpen door
DP6 architectuurstudio
.
CineMec Leidsche Rijn ligt op de kruising van het Berlijnplein, dat gesitueerd is op de landtunnel van de A2, en een ‘cultuuras’ die de Hofstede Terwijde en podium Rood Noot met elkaar verbindt. Vooralsnog staat het bioscoopgebouw alleen, als een pionier, in het gebied.
Het ontwerp is erop gericht dat het gebouw zowel in de huidige situatie, alleenstaand, als in de toekomst, midden in het stedelijk weefsel, tot zijn recht komt. DP6 heeft Cinemec Leidsche Rijn, met de naam De Sterrenkijker, vormgegeven als een opvallend rood volume.
Veranderlijke gevel
De karakteristieke façade is opgebouwd uit 18.000 speciaal ontwikkelde aluminium ‘baquettes’, zo legt het architectenbureau uit. Deze aluminium geveldelen hebben vijf verschillende kleuren rood en twee glansgraden; verder zijn ze onregelmatig geëxtrudeerd.
“Door de baquettes vrijwel willekeurig te plaatsen geeft het gebouw van veraf de indruk één kleur te hebben”, zegt architect Chris de Weijer. “Wie dichterbij komt zal steeds meer kleuren in de gevel onderscheiden.”
Ook bij beweging langs de gevel, verandert het aanzicht: recht voor de gevel is het donkergrijze bouwvolume door de gekleurde aluminium gevel heen te zien, terwijl onder een hoek gezien de kleurige banen op elkaar aansluiten. Hierdoor oogt het gebouw niet massief en krijgt de gevel een bijzondere textuur, aldus De Weijer.
Multifunctioneel
De hoofdentree richt zich naar het Berlijnplein, dat in ontwikkeling is tot stedelijk gebied. Een tweede entree ligt aan de zijde van het parkeerterrein. De Sterrenkijker heeft zeven zalen met 1.867 stoelen. De grootste zaal heeft ruim 660 stoelen.
De verschillende zalen zijn compact gestapeld. Daartussen liggen de verschillende foyerruimtes, die zorgen voor een intieme beleving van het complex. Het gebouw heeft dakterras met twee niveaus. “Op het laagste niveau zit je uit de wind”, vertelt De Weijer. “Vanaf het hoge niveau heb je een prachtig uitzicht op de skyline van Utrecht”.
Het dakterras is bereikbaar met een glazen lift of via de trap die vanaf de begane grond tot het dak doorloopt. Deze trap verbindt ook alle publieke foyerruimten. De zalen en foyerruimten hebben verschillende grootten en zijn multifunctioneel.
De indeling van CineMec Leidsche Rijn is primair gericht op het kijken van films; de inrichting maakt de zalen echter ook geschikt voor congressen, lezingen, kleinkunstvoorstellingen en dergelijke. Het gebouw moet zelfs studieplek voor studenten kunnen zijn. De bioscoop is zo ingericht dat het er ook overdag, als er geen films draaien, goed toeven is, zo stelt DP6.
Tweede CineMec
De Sterrenkijker is de tweede CineMec-vestiging naar ontwerp van DP6. Eerder ontwierp het architectenbureau de ‘bioscoop-als-geluidswal’ CineMec Ede, die langs de A12 staat. In Nijmegen wordt momenteel gebouwd aan CineMec Waalsprong, wederom naar ontwerp van DP6.
Trefwoorden
dp6 architectuurstudio
leisure
leidsche rijn
de sterrenkijker
bioscoop
cinemec
utrecht
dp6
Locatie
Best gelezen
1
Woontoren Front door Monadnock wint tiende Architectuurprijs Nijmegen
donderdag, 9 april
2
Spoorwegverleden inspireert ontwerp woonblok Wisselspoor 10 in Utrecht
woensdag, 8 april
3
SeARCH en Heutink Groep winnen tender voor woongebouw Sluisbuurt
vrijdag, 10 april
4
Rotterdam mag woningen gaan bouwen aan de Parkhaven
woensdag, 8 april
5
KOW wint met Marker Woods tender voor nieuwe wijk Eschmarkerveld
woensdag, 8 april
Gerelateerde nieuwsberichten
Bouw nieuw filmtheater in Utrechtse binnenstad gestart
9 februari 2021
DP6 presenteert ontwerp voor houten EnergieHotel Ede
23 juli 2020
OZ ontwerpt kantoorgebouw aan stationsplein Leidsche Rijn Centrum
17 mei 2019
Parkeergarage met uitstraling van woongebouw
22 juni 2018
Tweede gebouw STC Waalhaven in gebruik genomen
13 februari 2018
DP6 en Van Wijnen winnen Design & Build-opdracht vernieuwbouw Frencken College
10 november 2017
Vijfhonderd tijdelijke woningen in Leidsche Rijn
28 oktober 2016
Start woningverkoop Leidsche Rijn Centrum
4 oktober 2016
Consortium Zenzo/Lithos/DP6 wint opdracht Huis van Leusden
15 juli 2016
Bioscoop zonder doek: VR Cinema in Amsterdam
2 maart 2016
ROC-gebouw Friese Poort scoort 'excellent'
29 oktober 2015
Woongebouw op plek gemeentewerf Rijnsburg
17 juli 2015
DP6 presenteert woonhuis Makkinga
21 januari 2015
Utrecht krijgt CineMec-bioscoop
5 maart 2013
CineMec winnaar Architectuurprijs Ede 2009
10 december 2009
Bouw nieuw filmtheater in Utrechtse binnenstad gestart
9 februari 2021
DP6 presenteert ontwerp voor houten EnergieHotel Ede
23 juli 2020
OZ ontwerpt kantoorgebouw aan stationsplein Leidsche Rijn Centrum
17 mei 2019
Parkeergarage met uitstraling van woongebouw
22 juni 2018
Tweede gebouw STC Waalhaven in gebruik genomen
13 februari 2018
DP6 en Van Wijnen winnen Design & Build-opdracht vernieuwbouw Frencken College
10 november 2017
Vijfhonderd tijdelijke woningen in Leidsche Rijn
28 oktober 2016
Start woningverkoop Leidsche Rijn Centrum
4 oktober 2016
Consortium Zenzo/Lithos/DP6 wint opdracht Huis van Leusden
15 juli 2016
Bioscoop zonder doek: VR Cinema in Amsterdam
2 maart 2016
ROC-gebouw Friese Poort scoort 'excellent'
29 oktober 2015
Woongebouw op plek gemeentewerf Rijnsburg
17 juli 2015
DP6 presenteert woonhuis Makkinga
21 januari 2015
Utrecht krijgt CineMec-bioscoop
5 maart 2013
CineMec winnaar Architectuurprijs Ede 2009
10 december 2009
Toon alles
Andere nieuwsberichten
Voormalig hoofdkantoor Ferro in M4H verbouwd tot bedrijfsverzamelgebouw
34 minuten geleden
Naar ontwerp van GROUP A werd het voormalige hoofdkantoor van chemiebedrijf Ferro verbouwd tot een bedrijfsverzamelgebouw voor jonge (maritieme) maakbedrijven, die zich bezighouden met energietransitie, mobiliteit en circulariteit.
Tien bureaus geselecteerd voor tweede ronde nieuwbouw De Meervaart
2 uur geleden
Het tiental bureaus mag een ‘pre-visie’ op de ontwerpopgave maken voor het theatergebouw, dat aan de zuidwestoever van de Sloterplas komt te staan.
Architect Cees Dam op 93-jarige leeftijd overleden
Gisteren, 14:35
De oprichter van Dam & Partners architecten ontwierp onder meer de Stopera in Amsterdam (samen met Wilhelm Holzbauer), het stadhuis van Almere en het Huis van de Toekomst in Rosmalen.
Powerhouse Company wint aanbesteding voor verbouwing Vista College Maastricht
Gisteren, 12:16
Het onderkomen van de mbo-school wordt gerenoveerd en uitgebreid met een houten gebouwdeel, dat onder meer de nieuwe hoofdentree en twee atria bevat. Ook moet de nieuwbouw de bestaande gebouwen beter met elkaar verbinden.
Geen rechtszaak over subsidie ministerie aan Van Gogh Museum
1 uur geleden
De zaak draait om geld dat het museum nodig zegt te hebben voor een renovatie.
AFM: funderingsproblemen bij bijna 220.000 woningen
Gisteren, 13:25
De huizen van bijna een half miljoen woningeigenaren hebben een hoog risico op funderingsproblemen of een mogelijke kwetsbare fundering.
Oprichter omgevallen vastgoedconcern Evergrande bekent schuld
Gisteren, 09:17
Evergrande was ooit de grootste projectontwikkelaar van China, maar kwam in de problemen toen het zijn schulden niet kon terugbetalen.
Grote en kleine gemeenten balen van bouwregels Zuid-Holland
10 april, 4:31
Grote en kleine gemeenten in Zuid-Holland hebben hun zorgen geuit over nieuwe regels van de provincie, die volgens hen de woningbouw belemmeren.
Twijfels in Zuid-Holland over halen van doelen landelijk gebied
10 april, 12:18
De meeste partijen in de Zuid-Hollandse politiek hebben twijfels over de plannen die in zestien deelgebieden zijn gemaakt voor de aanpak van het landelijk gebied.
Huurprijzen stijgen harder dan koopwoningprijzen
10 april, 9:31
Volgens Huurwoningen.nl en Pararius moesten nieuwe huurders in het eerste kwartaal gemiddeld 21,12 euro per vierkante meter per maand neerleggen.
Ga naar het nieuws-archief
0
0
0
0
Voor een optimale gebruikservaring plaatst Architectenweb functionele cookies. Wat de verschillende cookies precies doen leggen we uit in een
overzicht
. Cookies van social media kun je optioneel
aanzetten
.
Akkoord
Instellingen
Annuleren
OK
Sluiten
Doorgaan
Inloggen
Maak een gratis persoonlijk account aan
Feedback
Feedback
Wij horen graag jouw feedback. Laat je reactie achter en eventueel jouw e-mail adres.
Reactie
Verstuur