Projecten
Producten
Bedrijven
Vacatures
Agenda
Awards
Podcasts
more_horiz
Videos
Magazine
Favorieten
Profiel
Uitloggen
Abonneer je nu op onze nieuwsbrieven!
Abonneren
Nee, bedankt
Ja, denk met me mee rond de
materialisering van mijn project
Copyright: grafie Michel Kievits
Copyright: grafie Michel Kievits
Copyright: grafie Michel Kievits
Copyright: grafie Michel Kievits
Copyright: grafie Michel Kievits
Copyright: grafie Michel Kievits
Copyright: grafie Michel Kievits
Copyright: grafie Michel Kievits
Copyright: grafie Michel Kievits
Copyright: grafie Michel Kievits
Copyright: grafie Michel Kievits
Copyright: Model van de vide ( DP6 architectuurstudio)
Copyright: DP6 architectuurstudio
Copyright: DP6 architectuurstudio
Copyright: DP6 architectuurstudio
Copyright: DP6 architectuurstudio
Copyright: DP6 architectuurstudio
Copyright: DP6 architectuurstudio
Copyright: DP6 architectuurstudio
Copyright: DP6 architectuurstudio
ROC-gebouw Friese Poort scoort 'excellent'
29 oktober 2015, 12:00
In Drachten is het nieuwe gebouw Zorg en Welzijn van ROC Friese Poort voltooid. Het is de eerste school in Nederland die met BREEAM-NL Excellent is gecertificeerd. Dat meldt
DP6 architectuurstudio
, de ontwerper van het complex.
Het architectonisch concept van Zorg en Welzijn is gebaseerd op het karakter van de opleidingen en de studenten, vertelt het bureau. Zowel in exterieur als interieur is verbinding het centrale thema. Het gebouw maakt de bewegingen van dragen en beschermen, van het toesteken van een helpende hand, aldus DP6.
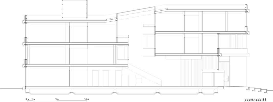
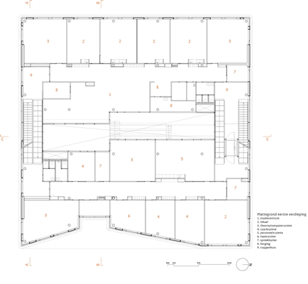
Het gebouw kent een splitlevel-opbouw, met een atrium als hart. Deze ruimte verbindt de zogeheten onderwijsteams met elkaar, die ieder een eigen plek rond het atrium hebben. Door de vloeren aan weerszijden van het atrium een halve verdieping te laten verspringen houden de teams zicht op elkaar en is het gemakkelijk ‘oversteken’.
Aan de buitenzijde wordt het gevouwen ritme van de gevel afgewisseld met houten gevelbekleding. Binnen is het atrium gematerialiseerd in larikshout en bamboe. “Door de toepassing van hout ontstaat er binnen een warme atmosfeer die zorgt voor een kleinschalige, intieme sfeer zoals die ook in het oude gebouw van Zorg en Welzijn te vinden was”, zegt projectarchitect Richelle de Jong.
Gebouwschil geminimaliseerd
Het ontwerp- en bouwproces is vanaf het eerste schetsontwerp ingericht volgens de eisen van BREEAM-NL Excellent. Zo is de gebouwschil geminimaliseerd en zeer goed geïsoleerd en zijn de gevelindelingen zo geoptimaliseerd dat daglicht grotendeels de kunstverlichting vervangt.
De vide zorgt voor een grote hoeveelheid natuurlijke lichtinval in het hart van het gebouw. Het gebouw voor Zorg en Welzijn wordt duurzaam verwarmd en gekoeld via een warmte- en koudeopslagsysteem in de bodem.
Er wordt onder andere gebruik gemaakt van LED-lampen, daglichtafhankelijke verlichting en CO2-sturing van de ventilatie om het energieverbruik te beperken. PV-panelen worden op het dak ingezet om het gebouw van electriciteit voorzien. Er is een EPG-score behaald die 63 procent lager is dan het Bouwbesluit vereist.
Natuurlijke habitat
Het gebouw is samen met de campus ontworpen en speelt in op de natuurlijke habitat. Inheemse plant- en diersoorten hebben een plek gekregen; zo biedt het gebouw nestelmogelijkheden voor gierzwaluwen en vleermuizen. De verwevenheid met het landschap is verder onder meer te zien in de gevels, die de glooiingen van het campusterrein weerspiegelen.
De overgang van buiten naar binnen is geleidelijk door de overstekken van de gevel en de trappartij die naar de entree leidt. Ook het atrium legt de verbinding tussen binnen en buiten, tussen opleiding en campus, ingebed in de glooiingen van de grasheuvels.
Trefwoorden
roc friese poort
drachten
breeam-nl
dp6 architectuurstudio
Best gelezen
1
Woontoren Front door Monadnock wint tiende Architectuurprijs Nijmegen
donderdag, 9 april
2
Spoorwegverleden inspireert ontwerp woonblok Wisselspoor 10 in Utrecht
woensdag, 8 april
3
Rotterdam mag woningen gaan bouwen aan de Parkhaven
woensdag, 8 april
4
SeARCH en Heutink Groep winnen tender voor woongebouw Sluisbuurt
vrijdag, 10 april
5
KOW wint met Marker Woods tender voor nieuwe wijk Eschmarkerveld
woensdag, 8 april
Gerelateerde nieuwsberichten
DGBC introduceert vernieuwde richtlijn duurzame nieuwbouw
30 juni 2020
BCT, JOUS en ArchiTech ontwerpen sluitstuk campus ROC Friese Poort in Drachten
15 april 2022
10 aantrekkelijke atria in middelbare scholen
16 maart 2022
Dardo Mantel zakelijk-technisch directeur bij DP6
11 april 2017
Consortium Zenzo/Lithos/DP6 wint opdracht Huis van Leusden
15 juli 2016
Neushoorn: poppodium en school in één gebouw
11 februari 2016
DP6 levert CineMec Leidsche Rijn op
18 november 2015
Renovatie en uitbreiding voor eerste Buitenschool
4 november 2015
Woongebouw op plek gemeentewerf Rijnsburg
17 juli 2015
Wiebengacomplex kan straks schok verdragen
11 juni 2015
DP6 presenteert woonhuis Makkinga
21 januari 2015
Tweede gebouw voor STC in Waalhaven
23 oktober 2014
Alkmaar krijgt 'frivool en uitnodigend' poppodium
28 augustus 2014
Drie nieuwe opdrachten voor DP6
19 maart 2014
DP6 ontwerpt ROC Friese Poort in Drachten
18 juli 2012
DGBC introduceert vernieuwde richtlijn duurzame nieuwbouw
30 juni 2020
BCT, JOUS en ArchiTech ontwerpen sluitstuk campus ROC Friese Poort in Drachten
15 april 2022
10 aantrekkelijke atria in middelbare scholen
16 maart 2022
Dardo Mantel zakelijk-technisch directeur bij DP6
11 april 2017
Consortium Zenzo/Lithos/DP6 wint opdracht Huis van Leusden
15 juli 2016
Neushoorn: poppodium en school in één gebouw
11 februari 2016
DP6 levert CineMec Leidsche Rijn op
18 november 2015
Renovatie en uitbreiding voor eerste Buitenschool
4 november 2015
Woongebouw op plek gemeentewerf Rijnsburg
17 juli 2015
Wiebengacomplex kan straks schok verdragen
11 juni 2015
DP6 presenteert woonhuis Makkinga
21 januari 2015
Tweede gebouw voor STC in Waalhaven
23 oktober 2014
Alkmaar krijgt 'frivool en uitnodigend' poppodium
28 augustus 2014
Drie nieuwe opdrachten voor DP6
19 maart 2014
DP6 ontwerpt ROC Friese Poort in Drachten
18 juli 2012
Toon alles
Andere nieuwsberichten
Architect Cees Dam op 93-jarige leeftijd overleden
Gisteren, 14:35
De oprichter van Dam & Partners architecten ontwierp onder meer de Stopera in Amsterdam (samen met Wilhelm Holzbauer), het stadhuis van Almere en het Huis van de Toekomst in Rosmalen.
Powerhouse Company wint aanbesteding voor verbouwing Vista College Maastricht
Gisteren, 12:16
Het onderkomen van de mbo-school wordt gerenoveerd en uitgebreid met een houten gebouwdeel, dat onder meer de nieuwe hoofdentree en twee atria bevat. Ook moet de nieuwbouw de bestaande gebouwen beter met elkaar verbinden.
Stedelijk Museum organiseert tentoonstelling over ontwerper Kho Liang Ie
Gisteren, 10:52
Met zijn ontwerpen voor meubels en interieurs van de jaren vijftig tot zijn dood halverwege de jaren zeventig nam Kho een centrale positie in binnen de Nederlandse vormgeving. Vermaard is onder meer zijn inrichting van luchthaven Schiphol.
Restauratie Atlasbeeld op dak Koninklijk Paleis Amsterdam afgerond
10 april, 3:38
Het beeld op het fronton van het paleis was in juli van zijn plek gehaald voor een uitgebreide onderhoudsbeurt in Antwerpen.
AFM: funderingsproblemen bij bijna 220.000 woningen
Gisteren, 13:25
De huizen van bijna een half miljoen woningeigenaren hebben een hoog risico op funderingsproblemen of een mogelijke kwetsbare fundering.
Oprichter omgevallen vastgoedconcern Evergrande bekent schuld
Gisteren, 09:17
Evergrande was ooit de grootste projectontwikkelaar van China, maar kwam in de problemen toen het zijn schulden niet kon terugbetalen.
Grote en kleine gemeenten balen van bouwregels Zuid-Holland
10 april, 4:31
Grote en kleine gemeenten in Zuid-Holland hebben hun zorgen geuit over nieuwe regels van de provincie, die volgens hen de woningbouw belemmeren.
Twijfels in Zuid-Holland over halen van doelen landelijk gebied
10 april, 12:18
De meeste partijen in de Zuid-Hollandse politiek hebben twijfels over de plannen die in zestien deelgebieden zijn gemaakt voor de aanpak van het landelijk gebied.
Huurprijzen stijgen harder dan koopwoningprijzen
10 april, 9:31
Volgens Huurwoningen.nl en Pararius moesten nieuwe huurders in het eerste kwartaal gemiddeld 21,12 euro per vierkante meter per maand neerleggen.
ABN AMRO: investeringen defensie vergroten druk op bouwcapaciteit
9 april, 12:29
Kazernes, opslagplaatsen en oefenterreinen dingen om dezelfde aannemers, ingenieurs en installateurs die ook nodig zijn voor bijvoorbeeld woningbouw.
Ga naar het nieuws-archief
0
0
0
0
Voor een optimale gebruikservaring plaatst Architectenweb functionele cookies. Wat de verschillende cookies precies doen leggen we uit in een
overzicht
. Cookies van social media kun je optioneel
aanzetten
.
Akkoord
Instellingen
Annuleren
OK
Sluiten
Doorgaan
Inloggen
Maak een gratis persoonlijk account aan
Feedback
Feedback
Wij horen graag jouw feedback. Laat je reactie achter en eventueel jouw e-mail adres.
Reactie
Verstuur