Projecten
Producten
Bedrijven
Vacatures
Agenda
Awards
Podcasts
more_horiz
Videos
Magazine
Thema's
Favorieten
Profiel
Uitloggen
Abonneer je nu op onze nieuwsbrieven!
Abonneren
Nee, bedankt
Ja, denk met me mee rond de
materialisering van mijn project
Copyright: SVP Architectuur en Stedenbouw
Copyright: SVP Architectuur en Stedenbouw
Copyright: SVP Architectuur en Stedenbouw
Copyright: SVP Architectuur en Stedenbouw
Copyright: SVP Architectuur en Stedenbouw
Copyright: SVP Architectuur en Stedenbouw
Copyright: SVP Architectuur en Stedenbouw
Copyright: SVP Architectuur en Stedenbouw
Copyright: SVP Architectuur en Stedenbouw
Copyright: SVP Architectuur en Stedenbouw
Copyright: SVP Architectuur en Stedenbouw
SVP ontwerpt Campus Plaza in Wageningen
12 februari 2014, 11:48
Op de campus van de Wageningen UR verrijzen de komende jaren vierhonderd woningen, commerciële functies en een kinderdagverblijf. Campus Plaza is bedoeld als levendige poort tot de campus, die mensen trekt en verbindt. Ook wordt het een etalage voor experiment en innovatie.
Dat meldt
SVP Architectuur en Stedenbouw
, dat het ontwerp plan samen met Ten Brinke Slot Projectontwikkeling en Plegt-Vos Bouwgroep gemaakt heeft. “Campus Plaza vormt de verbinding tussen de stad en de universiteit en tussen de innovaties van Wageningen UR en het dagelijks leven”, meldt het bureau.
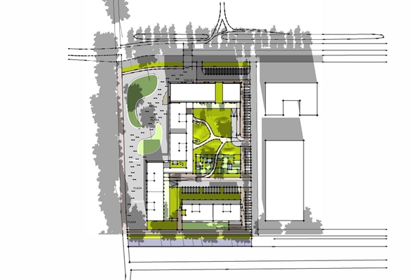
Plein
Het plan voorziet onder meer in een nieuw plein met commerciële functies in de plint dat aan de drukke fietsverbinding van de universiteit naar de stad ligt. “Met de komst van dit plein wordt het mogelijk een 'terrasje te pakken' of nog even een boodschap te doen”, zegt SVP.
“Het plein krijgt een verhard karakter als tegenhanger van de parkachtige Campuszone. Op het plein worden duurzame thema's gevisualiseerd waarbij studenten en plaatselijke ondernemers betrokken worden.”
“Het binnenterrein van het bouwblok wordt ingericht als gemeenschappelijk gebied voor de bewoners en heeft een groen karakter kunnen krijgen, doordat de auto's en fietsen half verdiept onder de bouwblokken zijn geplaatst. Er wordt een glooiend landschap aangelegd met de grond die vrijkomt door het uitgraven en openbreken van de parkeerkelder.”
“Er is ruimte voor ontspanning, maar ook voor proeftuinen waar eigen 'groene' experimenten kunnen worden uitgevoerd: 'Learning by doing'. Naast de proeftuinen op het maaiveld zijn er ook proeftuinen op de gevel: op verschillende afgekaderde plaatsen is ruimte om nieuwe uitvindingen te testen, zoals bijvoorbeeld nieuwe typen gevelbekleding en zonreguleringssystemen”, aldus SVP.
Verschillende manieren van wonen
In het complex kan op verschillende manieren worden gewoond, zelfstandig of in een groep, vervolgt het bureau.
“De groepswoningen hebben een gemeenschappelijke woonkeuken met buitenruimte. Alle eenheden beschikken over eigen sanitaire voorzieningen, ook de groepswoningen. Door de efficiënte structuur van het gebouw zijn de bouwkosten laag en is er ook budget voor een kwalitatief goede en duurzame schil en een mooie inrichting van de buitenruimte.”
Het plan wordt duurzaam, met een EPL 7,5 en gemiddelde GPR-score van 8,0 als uitgangspunt. “Daarnaast is veel aandacht besteed aan sociale duurzaamheid, wordt ruimte geboden aan lokaal ondernemerschap en biedt het complex ruimte voor innovatie en onderzoek”, besluit SVP.
De exploitatie van het complex komt in handen van studentenhuisvester DUWO.
Trefwoorden
duwo
wageningen ur
wageningen
svp architectuur en stedenbouw
campus
Best gelezen
1
Finalisten presenteren ontwerp voor Shift Landmark in Rotterdam
woensdag, 4 maart
2
Architect Oliver Thill op 55-jarige leeftijd overleden
donderdag, 5 maart
3
Nieuwe Hittekaart Woningmarkt 2026 van BPD toont aanhoudende woningdruk
dinsdag, 3 maart
4
Strijp-S krijgt woonbuurtje met karakteristieken voormalig Philips-terrein
maandag, 2 maart
5
Haagse gemeenteraad stemt in met bouw van 11.400 woningen in nieuw stadscentrum
maandag, 2 maart
Gerelateerde nieuwsberichten
Gebouw Helix op Wageningen Campus geopend
29 november 2016
Nieuwe studententoren voor DUWO in Den Haag
29 maart 2017
Nieuwe 'incubator' voor campus Wageningen
3 september 2014
Certificaat staaft GPR Gebouw-berekening
26 februari 2014
World Soil Museum Wageningen geopend
7 april 2014
Kamertekort Wageningen lost zichzelf op
27 november 2014
Campus Plaza Wageningen officieel geopend
13 oktober 2016
Campus in plaats van studentenflat Wageningen
13 november 2013
Kantoor met geïntegreerde stadslandbouw
7 juni 2012
Nieuw lab oogt als een ‘nano-machine’
4 november 2010
Máxima opent gebouw Orion in Wageningen
25 juli 2013
Energieneutraal huis Wageningen opgeleverd
13 oktober 2011
OKRA: “We moeten toe naar regieplanning”
2 april 2013
Schoolgebouw volgt ecologische intelligentie
24 september 2013
Helix-gebouw voor Wageningen UR
5 maart 2013
Claus en Kaan's NIOO-KNAW geopend
8 september 2011
Stadion Wageningen wordt Future Center
15 december 2011
FrieslandCampina krijgt innovatiecentrum
14 december 2011
Gebouw Helix op Wageningen Campus geopend
29 november 2016
Nieuwe studententoren voor DUWO in Den Haag
29 maart 2017
Nieuwe 'incubator' voor campus Wageningen
3 september 2014
Certificaat staaft GPR Gebouw-berekening
26 februari 2014
World Soil Museum Wageningen geopend
7 april 2014
Kamertekort Wageningen lost zichzelf op
27 november 2014
Campus Plaza Wageningen officieel geopend
13 oktober 2016
Campus in plaats van studentenflat Wageningen
13 november 2013
Kantoor met geïntegreerde stadslandbouw
7 juni 2012
Nieuw lab oogt als een ‘nano-machine’
4 november 2010
Máxima opent gebouw Orion in Wageningen
25 juli 2013
Energieneutraal huis Wageningen opgeleverd
13 oktober 2011
OKRA: “We moeten toe naar regieplanning”
2 april 2013
Schoolgebouw volgt ecologische intelligentie
24 september 2013
Helix-gebouw voor Wageningen UR
5 maart 2013
Claus en Kaan's NIOO-KNAW geopend
8 september 2011
Stadion Wageningen wordt Future Center
15 december 2011
FrieslandCampina krijgt innovatiecentrum
14 december 2011
Toon alles
Andere nieuwsberichten
André Kempe: ‘Het ging Oliver Thill om het geven van betekenis’
6 maart, 7:15
Agelopen maandag is architect Oliver Thill overleden. Zijn compagnon André Kempe gedenkt de man met wie hij al meer dan 35 jaar bevriend was en ruim een kwarteeuw geleden Atelier Kempe Thill oprichtte.
TconcepT transformeert voormalig warenhuis in Offenbach tot bibliotheek
6 maart, 3:54
Het 12.000 vierkante meter omvattende complex gaat in bredere zin fungeren als een cultuur- en educatiecentrum met vele functies. In 2027 moet Station Mitte, zoals het gebouw zijn volgende leven wordt genoemd, klaar zijn.
Werkstatt gaat verder zonder medeoprichter Niels Groeneveld
6 maart, 2:49
Medeoprichter van Werkstatt Niels Groeneveld stopt als partner bij het bureau, om zich te kunnen richten op zijn gezin en onderwijs. Floor Frings en Raoul Vleugels blijven het Eindhovense bureau leiden.
Binationaal ontwerpteam buigt zich over waterhuishouding Cartagena in Colombia
6 maart, 1:43
Een Colombiaans-Nederlands ontwerpteam met Felixx Landscape Architects & Planners en Witteveen+Bos moedigt Cartagena aan om haar relatie met water te heroverwegen en na te denken over een veerkrachtige toekomst
Kunstmuseum in Den Haag moet worden verbouwd
6 maart, 4:32
Daarvoor dient het museum in het Statenkwartier waarschijnlijk een tijd te sluiten.
Coen van Oostrom benoemd tot nieuwe voorzitter VNO-NCW
6 maart, 12:23
De oprichter van ontwikkelaar Edge volgt in die rol Ingrid Thijssen op, die deze week is begonnen als nieuwe bestuursvoorzitter van de TU Delft.
Rapport: lokaal klimaatbeleid schiet nog tekort
6 maart, 10:25
De makers van de zogeheten Toekomstmeter hebben het beleid van zeventig gemeenten doorgelicht.
Hardt Hyperloop failliet verklaard door rechtbank
5 maart, 11:37
Het Rotterdamse bedrijf was bezig met de ontwikkeling van technologie om mensen op hoge snelheid via capsules door een vacuümbuis te vervoeren.
Onderzoek: zeespiegel kustgebieden hoger dan in studies aangenomen
5 maart, 9:13
De zeespiegel aan de kust is in grote delen van de wereld waarschijnlijk hoger dan in veel wetenschappelijke studies wordt aangenomen.
Gelderland geeft voorrang aan vergunningen met minder stikstof
4 maart, 12:24
De plannen zijn onderdeel van het pakket maatregelen dat het Gelderse bestuur wil nemen om de vergunningverlening voor zaken als de woningbouw weer op gang te krijgen.
Ga naar het nieuws-archief
0
0
0
0
Voor een optimale gebruikservaring plaatst Architectenweb functionele cookies. Wat de verschillende cookies precies doen leggen we uit in een
overzicht
. Cookies van social media kun je optioneel
aanzetten
.
Akkoord
Instellingen
Annuleren
OK
Sluiten
Doorgaan
Inloggen
Maak een gratis persoonlijk account aan
Feedback
Feedback
Wij horen graag jouw feedback. Laat je reactie achter en eventueel jouw e-mail adres.
Reactie
Verstuur