Projecten
Producten
Bedrijven
Vacatures
Agenda
Awards
Podcasts
more_horiz
Videos
Magazine
Favorieten
Profiel
Uitloggen
Abonneer je nu op onze nieuwsbrieven!
Abonneren
Nee, bedankt
Ja, denk met me mee rond de
materialisering van mijn project
Copyright: Entree. StrandNL
Copyright: Zuidwest gevel. StrandNL
Copyright: Woonkamer appartement type C. StrandNL
Copyright: Keuken type C. StrandNL
Copyright: Badkamer type C. StrandNL
Copyright: Entree interieur. StrandNL
Copyright: Gang rond de kern. StrandNL
Copyright: Dakterras. StrandNL
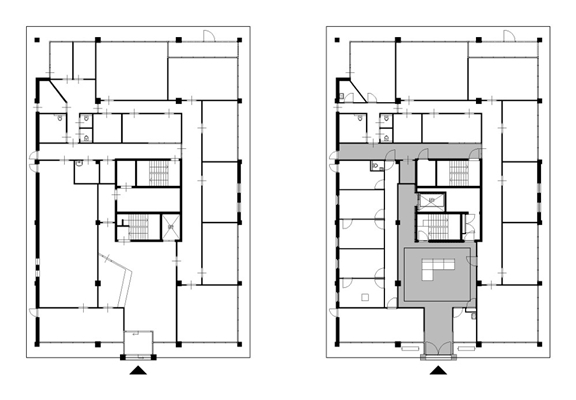
Copyright: Begane grond, oude en nieuwe situatie. StrandNL
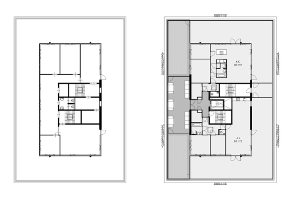
Copyright: Appartement type C. StrandNL
Copyright: Verdiepingen 1 t/m 5, oude en nieuwe situatie. StrandNL
Copyright: Zesde verdieping, oude en nieuwe situatie. StrandNL
Starterswoningen in voormalig kantoorgebouw
25 november 2013, 12:19
In de Utrechtse wijk Overvecht is een voormalig kantoorpand getransformeerd tot een appartementengebouw voor starters op de woningmarkt.
StrandNL
is betrokken geweest bij de aanpak van zowel het exterieur als interieur van het gebouw.
Het leegstaande kantoorgebouw, met een totaal vloeroppervlak van 4.300 vierkante meter, is door
MidNed Projectontwikkeling
herbestemd tot woonruimte. In overleg met de gemeente Utrecht is gekozen voor de realisatie van startersappartementen.
Het gebouw De Kaap biedt na de transformatie plek aan 52 starterswoningen, verdeeld over vijf verdiepingen. Op de begane grond behoudt het pand een kantoorfunctie. De transformatie is uitgevoerd in samenwerking met StrandNL architectuur en interieur.
Nieuwe gang en kern
Het rechthoekige pand heeft een asymmetrisch gelegen betonnen kern met een lift en twee trappenhuizen. De gang rondom de kern geeft toegang tot de omliggende ruimten. In de nieuwe situatie is een deel van de gang toegevoegd aan de kleinste appartementen. In verband met vluchtroutes is een nieuwe rondgang gecreëerd. De betonnen kern is doorgebroken en de lift is verplaatst.
De appartementen hebben efficiënte plattegronden gekregen. Er is gestreefd naar een optimaal gebruik van de vierkante meters en ruim binnenvallend daglicht. De appartementen hebben, de twee penthouses uitgezonderd, geen eigen buitenruimte. Er is een gezamenlijk dakterras, voorzien van permanent buitenmeubilair en sedumbeplanting, gerealiseerd.
Glazen lamellen
Het pand moest niet alleen bouwkundig worden aangepast, maar ook in identiteit veranderen. Om De Kaap een ‘woonuitstraling’ te geven zijn aan de bestaande materialen volgens StandNL vriendelijke materialen en kleuren toegevoegd.
De gevel is rondom voorzien van aluminium kozijnen en heeft een zwart gekleurde afwerking ter plaatse van de borstweringen. Opvallend zijn de nieuwe glazen lamellen aan de gevel, waarmee De Kaap zich onderscheidt van de omliggende panden die als kantoor in gebruik zijn.
Trefwoorden
starterswoningen
midned projectontwikkeling
transformatie leegstaande kantoren
utrecht
transformatie
strandnl
Best gelezen
1
Woontoren Front door Monadnock wint tiende Architectuurprijs Nijmegen
donderdag, 9 april
2
Spoorwegverleden inspireert ontwerp woonblok Wisselspoor 10 in Utrecht
woensdag, 8 april
3
Rotterdam mag woningen gaan bouwen aan de Parkhaven
woensdag, 8 april
4
KOW wint met Marker Woods tender voor nieuwe wijk Eschmarkerveld
woensdag, 8 april
5
RED Company vraagt vergunning aan voor productie- en onderzoeksfaciliteit Lilly
dinsdag, 7 april
Gerelateerde nieuwsberichten
Goedkeuring voor nieuwbouw centrum Overvecht
14 maart 2017
Provincie Utrecht pakt kantorenbouw aan
10 januari 2014
Ziekenhuis Oudenrijn wordt wooncampus
29 oktober 2013
Getransformeerde Nedinsco Fabriek geopend
14 oktober 2013
Kabinet stimuleert ombouw kantoren en energiebesparing
18 september 2013
Atypisch kantoorgebouw wordt woongebouw
23 augustus 2013
VMX Architects pakt ex-Casa 400 aan
22 augustus 2013
Goedkeuring voor nieuwbouw centrum Overvecht
14 maart 2017
Provincie Utrecht pakt kantorenbouw aan
10 januari 2014
Ziekenhuis Oudenrijn wordt wooncampus
29 oktober 2013
Getransformeerde Nedinsco Fabriek geopend
14 oktober 2013
Kabinet stimuleert ombouw kantoren en energiebesparing
18 september 2013
Atypisch kantoorgebouw wordt woongebouw
23 augustus 2013
VMX Architects pakt ex-Casa 400 aan
22 augustus 2013
Toon alles
Andere nieuwsberichten
Restauratie Atlasbeeld op dak Koninklijk Paleis Amsterdam afgerond
10 april, 3:38
Het beeld op het fronton van het paleis was in juli van zijn plek gehaald voor een uitgebreide onderhoudsbeurt in Antwerpen.
Nieuw zitgebied Lounge 2 Schiphol geïnspireerd door overgangsfase in oeuvre Mondriaan
10 april, 2:16
Op luchthaven Schiphol is de derde en laatste fase van door Beyond Space ontworpen zitgebieden opgeleverd. Net als de eerste twee fases van het project is dit gedeelte geïnspireerd door het werk van Mondriaan, maar dan uit een eerdere periode.
SeARCH en Heutink Groep winnen tender voor woongebouw Sluisbuurt
10 april, 11:15
Gebouw Radius biedt plek aan zo’n honderd appartementen, een stadskamer, een binnentuin, daktuinen en andere gemeenschappelijke ruimtes. Het gebouw wordt gerealiseerd van natuurlijke materialen als hout, stampleem en leemsteen.
Woontoren Front door Monadnock wint tiende Architectuurprijs Nijmegen
9 april, 10:00
“Front is een optimistisch icoon, gemaakt met lef, dat ambachtelijkheid en vakmanschap uitstraalt”, stelt de jury in zijn rapport.
Grote en kleine gemeenten balen van bouwregels Zuid-Holland
10 april, 4:31
Grote en kleine gemeenten in Zuid-Holland hebben hun zorgen geuit over nieuwe regels van de provincie, die volgens hen de woningbouw belemmeren.
Twijfels in Zuid-Holland over halen van doelen landelijk gebied
10 april, 12:18
De meeste partijen in de Zuid-Hollandse politiek hebben twijfels over de plannen die in zestien deelgebieden zijn gemaakt voor de aanpak van het landelijk gebied.
Huurprijzen stijgen harder dan koopwoningprijzen
10 april, 9:31
Volgens Huurwoningen.nl en Pararius moesten nieuwe huurders in het eerste kwartaal gemiddeld 21,12 euro per vierkante meter per maand neerleggen.
ABN AMRO: investeringen defensie vergroten druk op bouwcapaciteit
9 april, 12:29
Kazernes, opslagplaatsen en oefenterreinen dingen om dezelfde aannemers, ingenieurs en installateurs die ook nodig zijn voor bijvoorbeeld woningbouw.
Europa kent 831 miljoen euro subsidie toe aan Utrechtse projecten
9 april, 9:27
Het gaat onder meer om projecten tegen oververhitting van gebouwen, slimmer gebruik van energie en het hergebruik van materialen en grondstoffen.
Rotterdam mag woningen gaan bouwen aan de Parkhaven
8 april, 3:38
De Raad van State maakte woensdag bekend dat alle bezwaren tegen het bestemmingsplan zijn verworpen.
Ga naar het nieuws-archief
0
0
0
0
Voor een optimale gebruikservaring plaatst Architectenweb functionele cookies. Wat de verschillende cookies precies doen leggen we uit in een
overzicht
. Cookies van social media kun je optioneel
aanzetten
.
Akkoord
Instellingen
Annuleren
OK
Sluiten
Doorgaan
Inloggen
Maak een gratis persoonlijk account aan
Feedback
Feedback
Wij horen graag jouw feedback. Laat je reactie achter en eventueel jouw e-mail adres.
Reactie
Verstuur