Projecten
Producten
Bedrijven
Vacatures
Agenda
Awards
Podcasts
more_horiz
Videos
Magazine
Thema's
Favorieten
Profiel
Uitloggen
Abonneer je nu op onze nieuwsbrieven!
Abonneren
Nee, bedankt
Ja, denk met me mee rond de
materialisering van mijn project
Copyright: 3XN
Copyright: 3XN
Copyright: 3XN
Copyright: 3XN
Copyright: 3XN
Copyright: 3XN
3XN geselecteerd voor ontwerp DHBW Stuttgart
12 juli 2013, 17:30
Het Deense
3XN
is uit 25 bureaus
geselecteerd voor het ontwerp van een faculteitsgebouw voor de Duale Hochschule
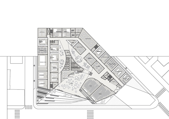
Baden-Württemberg (DHBW) in Stuttgart. Het vijfhoekige gebouw heeft een
opvallend centraal atrium met een loopbrug en een glazen dak.
3XN heeft de faculteit ontworpen als een ‘verticale
campus’ die ontmoetingen tussen leerlingen, leraren en vakspecialisten moet
stimuleren. In de technische faculteit worden verschillende instituten verenigd
die vooralsnog over heel Stuttgart verspreid lagen. De faculteit zal ruimte
bieden aan circa 2500 leerlingen.
Het gebouw komt op de rand van het centrum van de Duitse
stad, een gebied met onderwijsinstellingen, woningbouw en groenstroken. In het
ontwerp heeft 3XN rekening gehouden met de stadsontwikkeling, door ruimte rondom
het gebouw vrij te houden in de vorm van drie pleinen.
Atrium
De uitgangspunten voor het ontwerp van de technische
faculteit zijn transparantie en communicatie, aldus 3XN. Deze waarden zijn het
best vertegenwoordigd in het atrium in het hart van het gebouw. Dankzij het
glazen dak is het een lichte hoge ruimte geworden die dienst doet als
ontmoetingsruimte en bijdraagt aan de oriëntatie.
Met behulp van een loopbrug, die de drie entrees met
elkaar verbindt, en een wenteltrap voorziet het atrium in de verticale en
horizontale ontsluiting van het gebouw. Op de verdiepingsvloeren zijn de ruimtes
zo gesitueerd dat overal makkelijk toegang wordt geboden tot de verschillende
functies, vertelt het Deense bureau.
Exterieur
Het vijfhoekige gebouw heeft een transparante gevel
bestaande uit glaspartijen afgewisseld met witte horizontale randen. Doordat
deze randen afzonderlijk van elkaar terugliggen of juist uitsteken ontstaat een
gevarieerd gevelbeeld met open en overdekte terrassen.
Trefwoorden
3xn
stuttgart
onderwijsgebouw
Best gelezen
1
PSV presenteert plannen voor uitbreiding Philips Stadion
vrijdag, 20 maart
2
Luxe appartementengebouw naast klooster Etten-Leur door Studio AAAN klaar
donderdag, 19 maart
3
Houten Stelthuis van Woonpioniers is aardbevings- en klimaatbestendig
woensdag, 18 maart
4
BureauVanEig verbetert uitstraling Haagse rijtjeswoningen bij verduurzaming
dinsdag, 17 maart
5
KAAN Architecten en De Zwarte Hond winnen tender voor Area 19 TU Eindhoven
vrijdag, 20 maart
Gerelateerde nieuwsberichten
3XN ontwerpt hybride houten kantoorgebouw op Zuidas
14 juni 2024
3XN ontwerpt toren nabij Sydney Opera House
25 september 2014
Nieuw gebouw van 3XN in centrum Stockholm
31 augustus 2012
Het nieuwe leren in Denemarken
13 september 2011
Deens Nationaal Aquarium geopend
26 maart 2013
Nieuw evenementencomplex voor Kopenhagen
11 juni 2012
VN-hoofdkantoor Kopenhagen officieel in gebruik
4 juli 2013
U-vormig universiteitsgebouw voor Uppsala
23 februari 2012
Team 3XN breidt ziekenhuis Kopenhagen uit
29 mei 2012
Stadshuis Nieuwegein officieel geopend
21 maart 2012
Video: Kim Herforth Nielsen over het IOC-hoofdkantoor
28 juni 2019
3XN ontwerpt hybride houten kantoorgebouw op Zuidas
14 juni 2024
3XN ontwerpt toren nabij Sydney Opera House
25 september 2014
Nieuw gebouw van 3XN in centrum Stockholm
31 augustus 2012
Het nieuwe leren in Denemarken
13 september 2011
Deens Nationaal Aquarium geopend
26 maart 2013
Nieuw evenementencomplex voor Kopenhagen
11 juni 2012
VN-hoofdkantoor Kopenhagen officieel in gebruik
4 juli 2013
U-vormig universiteitsgebouw voor Uppsala
23 februari 2012
Team 3XN breidt ziekenhuis Kopenhagen uit
29 mei 2012
Stadshuis Nieuwegein officieel geopend
21 maart 2012
Video: Kim Herforth Nielsen over het IOC-hoofdkantoor
28 juni 2019
Toon alles
Andere nieuwsberichten
PSV presenteert plannen voor uitbreiding Philips Stadion
20 maart, 3:37
De Eindhovense club wil de capaciteit van zijn onderkomen opschroeven met maximaal 25.000 bezoekers. Om dit te bewerkstelligen, komt er een nieuwe schil rond het stadion waarin een derde ring is opgenomen.
Rijkswaterstaat staakt renovatie markante houten Krùsrak-brug in Sneek
20 maart, 11:32
Tijdens de renovatie werd duidelijk dat de constructieve veiligheid van de brug niet langer kan worden verzekerd, laat RWS weten. De uit 2008 stammende Krúsrak-brug over de rijksweg 7 is ontworpen door Onix en Archterbosch Architecten.
KAAN Architecten en De Zwarte Hond winnen tender voor Area 19 TU Eindhoven
20 maart, 10:35
De opdracht omvat het ontwerp van een nieuw onderzoeks- en onderwijsgebouw en de stedenbouwkundige ontwikkeling van een nieuw campusgebied.
Projecten gezocht voor vijfde Adriaan Dessingprijs
19 maart, 2:42
De tweejaarlijkse architectuurprijs vestigt de aandacht op bijzondere, gerealiseerde plannen in de Zuid-Hollandse gemeenten Westland en Midden-Delfland. Het kan gaan om nieuwbouw, restauratie of landschappelijke projecten.
Friesland brengt duizenden karakteristieke boerderijen in kaart
20 maart, 2:16
Door alle informatie over de voor het landschap kenmerkende gebouwen op één plek te brengen, moet het makkelijker worden om ze te behouden.
ING: bijna de helft van de huiseigenaren stelt verduurzaming uit
20 maart, 12:18
De meeste mensen vinden dat de overheid te weinig doet om dit te stimuleren.
Rekenkamer kraakt resultaten EU-innovatiefonds voor verduurzaming
20 maart, 9:25
Het Innovatiefonds van de Europese Unie levert veel minder resultaat op dan verwacht op het gebied van verduurzaming en innovatie.
Provincie schrapt beoogde locaties windturbines in Groene Hart
19 maart, 1:35
De provincie had twaalf plekken op het oog, maar dat leidde tot maatschappelijk en politiek verzet.
Staten Utrecht willen netcongestie versneld aanpakken
19 maart, 9:44
De fracties wezen op de noodzaak van het zo snel mogelijk realiseren van een hoogspanningsstation dat essentieel is voor het opsplitsen van het elektriciteitsnetwerk tussen de Flevopolder, Gelderland en Utrecht.
Rotterdam wil woningbouw versnellen met pilot ‘Ontwikkelaar aan Zet’
18 maart, 4:33
De gemeente Rotterdam start een pilot waarbij projectontwikkelaars een grotere rol krijgen bij de voorbereiding van woningbouwprojecten.
Ga naar het nieuws-archief
0
0
0
0
Voor een optimale gebruikservaring plaatst Architectenweb functionele cookies. Wat de verschillende cookies precies doen leggen we uit in een
overzicht
. Cookies van social media kun je optioneel
aanzetten
.
Akkoord
Instellingen
Annuleren
OK
Sluiten
Doorgaan
Inloggen
Maak een gratis persoonlijk account aan
Feedback
Feedback
Wij horen graag jouw feedback. Laat je reactie achter en eventueel jouw e-mail adres.
Reactie
Verstuur