Projecten
Producten
Bedrijven
Vacatures
Agenda
Awards
Podcasts
more_horiz
Videos
Magazine
Thema's
Favorieten
Profiel
Uitloggen
Copyright: Studioninedots
Copyright: Studioninedots
Copyright: Studioninedots
Copyright: Studioninedots
Copyright: Studioninedots
Copyright: Studioninedots
Copyright: Studioninedots
Copyright: Studioninedots
Copyright: Studioninedots
Copyright: Studioninedots
Copyright: Studioninedots
Zeeburgereiland krijgt kindcentrum
3 juli 2012, 11:29
Studioninedots
heeft het ontwerp gepresenteerd van een nieuw Integraal Kindcentrum (IKC) op Zeeburgereiland in Amsterdam. Het bureau ondertekende samen met Verlaat Uden Bouwsystemen vorige week een DBMO-contract voor het nieuwe pand.
Het Amsterdamse Stadsdeel Oost heeft als opgave om in zijn uitbreidingsgebieden als Zeeburgereiland voldoende voorzieningen te realiseren. De locatie van het IKC bevindt zich aan de Faas Wilkesstraat, tegenover de kenmerkende silo’s van het gebied.
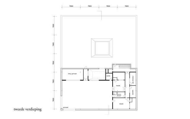
In het centrum zijn de lokalen gesitueerd aan de buitenrand, met in het hart van het gebouw de speelzalen, de aula en de bibliotheek. “Door een minimale constructie te gebruiken is het mogelijk om tussen de stamgroepen (lokalen) meerdere indelingen te realiseren en combinaties te maken”, legt het bureau de flexibiliteit van het gebouw uit. De materialisering is om deze reden licht gehouden.
Het plan is het pand in minder dan een jaar te realiseren. De oplevering staat dan ook gepland voor juni 2013. De manier van bouwen van het IKC dient als
pilot
voor meer gebouwen in het gebied.
Trefwoorden
studioninedots
zeeburgereiland
amsterdam
ikc
kindcentrum
Locatie
Best gelezen
1
Duitsland slokt Nederlandse bouwkracht op
maandag, 13 oktober
2
David Chipperfield landt in Antwerps Nieuw Zuid
woensdag, 15 oktober
3
Nieuw shortstayhotel door Houben / Van Mierlo in stationsgebied Den Bosch
maandag, 13 oktober
4
Kantoorgebouw door Arthur Staal aan de Schinkel gerenoveerd en uitgebreid
woensdag, 15 oktober
5
Gezicht van de tijd
woensdag, 15 oktober
Gerelateerde nieuwsberichten
Studioninedots ontwerpt kantoorgebouw Parijs
16 november 2012
Grote uitbreiding voor silo a2o architecten
6 augustus 2013
Eigen onderkomen voor brugpiepers Heerenveen
28 september 2012
Woningen Amsterdamse Aireystrook vernieuwd
1 augustus 2012
De Burgemeester heropend als bedrijvengebouw
12 november 2013
Zeeburgereiland wordt zeilwagenpark
11 juli 2012
HVDN Architecten wordt Studioninedots
19 december 2012
'School van de toekomst' Zeeburgereiland geopend
2 december 2013
Eerste paal voor Sportheldenbuurt Zeeburgereiland
5 september 2014
Eerste woningen Oosterdokseiland klaar
22 maart 2012
Nieuwe studentenhuisvesting voor TU Delft
3 februari 2012
Studioninedots ontwerpt Barneveldse villa
9 november 2011
Studioninedots tweede in prijsvraag Parijs
15 juli 2011
Studioninedots ontwerpt kantoorgebouw Parijs
16 november 2012
Grote uitbreiding voor silo a2o architecten
6 augustus 2013
Eigen onderkomen voor brugpiepers Heerenveen
28 september 2012
Woningen Amsterdamse Aireystrook vernieuwd
1 augustus 2012
De Burgemeester heropend als bedrijvengebouw
12 november 2013
Zeeburgereiland wordt zeilwagenpark
11 juli 2012
HVDN Architecten wordt Studioninedots
19 december 2012
'School van de toekomst' Zeeburgereiland geopend
2 december 2013
Eerste paal voor Sportheldenbuurt Zeeburgereiland
5 september 2014
Eerste woningen Oosterdokseiland klaar
22 maart 2012
Nieuwe studentenhuisvesting voor TU Delft
3 februari 2012
Studioninedots ontwerpt Barneveldse villa
9 november 2011
Studioninedots tweede in prijsvraag Parijs
15 juli 2011
Toon alles
Andere nieuwsberichten
CPO meer&deel grote winnaar Dirk Roosenburgprijs 2025
Gisteren, 15:37
Het project naar ontwerp van Tom van Tuijn Stedenbouw, Werkstatt en Volle Grond kreeg zowel de vakjury- als publieksprijs.
Gedetailleerde 3D-geprinte maquette toont ruimtelijke ontwikkeling Amsterdam
Gisteren, 14:56
In het WTC op de Amsterdamse Zuidas is een gedetailleerde maquette van de stad Amsterdam geplaatst. In de 3D-geprinte en interactieve maquette zijn bekende plekken en gebouwen te zien, maar ook gebieden die tussen nu en 2030 worden ontwikkeld.
Woongebouwen door VdpArchitecten vormen nieuwe 'voorkant' Groningse Oosterparkwijk
Gisteren, 13:48
Aan de Oosterhamrikkade in Groningen is dit jaar woongebouw Talent opgeleverd. Het complex, dat net als het naastgelegen gebouw Karaat is ontworpen door VdpArchitecten, bestaat uit 108 middeldure huurwoningen.
Het Cultuurfonds kent subsidie toe aan biobased paviljoen voor Amsterdamse Bos ontworpen door Space Encounters
Gisteren, 11:07
Het Cultuurfonds stelt € 100.000 beschikbaar voor het Amsterdamse Bosnest. Het paviljoen is ontworpen door Space Encounters en wordt volledig gebouwd met biobased materialen uit het Amsterdamse Bos.
Sweco neemt groot Belgisch architectenbureau over
Gisteren, 16:23
Het 150 medewerkers tellende assar architects ontwierp onder meer het nieuwe hoofdkantoor van de NAVO in Brussel.
IMF: geen forse huizenprijsdaling bij einde hypotheekrenteaftrek
Gisteren, 12:14
Een mogelijke afschaffing van de hypotheekrenteaftrek in Nederland heeft waarschijnlijk een prijsremmende werking, stelt de Nederlandse bestuurder van het IMF Marnix van Rij
EIB: 75.000 nieuwe voltijdse arbeidskrachten nodig in de bouw
Gisteren, 10:11
Volgens het instituut wordt het tekort aan vakmensen in de bouw steeds groter, vooral omdat de energietransitie een enorme extra vraag naar arbeid creëert.
Groningen worstelt met afronding dertig kilometer lang fietspad naar Assen
16 oktober, 3:25
Een ruime meerderheid van de Groningse Statenleden wil dat er bij het project meer aandacht komt voor de veiligheid van vrouwen.
PBL: minimaal 150.000 hectare meer natuur nodig in 2050
16 oktober, 11:37
Het planbureau heeft twee mogelijke oplossingsrichtingen doorgerekend om de huidige Europese doelen voor klimaat, natuur en waterkwaliteit te halen.
Afaina de Jong wint Amsterdamprijs voor de Kunst 2025
15 oktober, 3:19
De architect en oprichter van Afarai won de belangrijkste kunstprijs van de hoofdstad in de categorie Bewezen Kwaliteit.
Ga naar het nieuws-archief
1
0
0
0
Voor een optimale gebruikservaring plaatst Architectenweb functionele cookies. Wat de verschillende cookies precies doen leggen we uit in een
overzicht
. Cookies van social media kun je optioneel
aanzetten
.
Akkoord
Instellingen
Annuleren
OK
Sluiten
Doorgaan
Inloggen
Maak een gratis persoonlijk account aan
Feedback
Feedback
Wij horen graag jouw feedback. Laat je reactie achter en eventueel jouw e-mail adres.
Reactie
Verstuur