Projecten
Producten
Bedrijven
Vacatures
Agenda
Awards
Podcasts
more_horiz
Videos
Magazine
Thema's
Favorieten
Profiel
Uitloggen
Copyright: a2o architecten
Copyright: a2o architecten
Copyright: Huidige situatie ( Niels Dockers)
Copyright: Huidige situatie ( Niels Dockers)
Copyright: De tuiten van de voormalige silotanks ( Niels Dockers)
Copyright: a2o architecten
Grote uitbreiding voor silo a2o architecten
6 augustus 2013, 15:49
Naar verwachting start begin 2014 de grootschalige verbouwing van het onderkomen van
a2o architecten
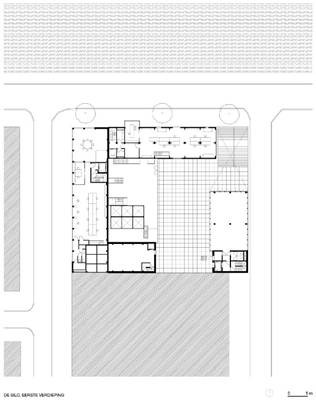
uit het Vlaamse Hasselt. Met een extra volume en verdieping moet De Silo uitgroeien tot een creatief centrum met ateliers, expositieruimte en kantoren. Tussen de volumes komt een verhoogd plein voor allerlei evenementen.
Het nieuwe volume komt in een nu nog open hoek van het complex te staan, waarmee een nieuw terrein omsloten wordt. Via de eveneens nieuwe bovenste verdieping wordt het volume verbonden met de bestaande gebouwen. Aan de onderzijde krijgt het complex een eigen parkeergarage met daarboven een verhoogd plein, te bereiken via een trappartij.
Alle gebruikers, uiteenlopend van architectenbureaus tot theaterbedrijven, krijgen een ingang aan het plein. Het bestaande deel is al herontwikkeld, zo zetelt a2o architecten zelf in een verbouwde graansilo. De tuiten van de voormalige tanks zijn bewaard gebleven in het interieur, zoals te zien is in bovenstaande foto’s.
Momenteel zijn er twaalf creatieve bedrijven gevestigd in het pand. Er is sprake van een grote interactiviteit, zo is er eens per maand een gezamenlijke lunch en worden er regelmatig andere gezamenlijke activiteiten georganiseerd. Dit moet worden voortgezet en uitgebreid op het semipublieke binnenplein dat in de toekomst verrijst.
Het plan is om de nieuwbouw te construeren in hout, vertelt architect Kilian Nekeman aan Architectenweb. “Daarbij moet je denken aan de kolommen en vloeren, maar mogelijk ook de gevelpanelen, al zijn die nu nog in aluminium voorgesteld. Hout is duurzamer dan beton, vandaar dat we aan dat materiaal denken.”
Nekeman verwacht dat het project in 2016 wordt afgerond en hoopt dat dit het startpunt vormt van een nieuwe stadswijk op de locatie. Het huidige bedrijventerrein langs het kanaal heeft een overwegend industrieel karakter, maar er zijn meer creatieve bedrijfjes gevestigd. Er is al een naam bedacht:
het Quartier Canal.
Trefwoorden
silo
transformatie
hasselt
a2o architecten
Locatie
Best gelezen
1
Realisatie woongebouw Atlas I naast Essalammoskee in Rotterdam-Zuid gestart
woensdag, 10 december
2
Architecten tonen voorstellen voor woningbouw in tussenruimtes Wallengebied
donderdag, 11 december
3
Kollhoff & Pols realiseert 58 woningen in monumentale panden Den Haag
dinsdag, 9 december
4
Pixelgevel van MVRDV versterkt uitstraling modulaire woontorens in Singapore
maandag, 8 december
5
Gebouwen niet slopen, maar langzaam laten rijpen
donderdag, 11 december
Gerelateerde nieuwsberichten
Broekbakema en a2o architecten ontwerpen voorbeeldproject voor Vlaamse bouwsector
20 februari
a2o wint ontwerpcompetitie politiebureau
2 februari 2015
Plan voor hotel op silo's CHV-terrein Veghel
2 februari 2018
Renovatie en nieuwbouw voor stadhuis Hasselt
1 september 2014
Gerechtsgebouw Hasselt opent deuren officieel
12 september 2013
A2o ontwerpt kantoor rond funderingvijver
31 oktober 2011
Zeeburgereiland krijgt kindcentrum
3 juli 2012
Duurzame kantoorsilo van Rothuizen geopend
9 juli 2013
RDH bouwt graansilo om tot eigen kantoor
20 april 2010
A2o ontwerpt groot hippisch centrum
13 juli 2012
A2o en OA ontwerpen appartementen Luchtbal
1 februari 2012
Nieuwe scholencampus bij station Hasselt
4 oktober 2012
A2o wint prijsvraag kantoorcampus Umicore
3 november 2011
Annie M.G. Schmidt Huis in silo’s Zeeburg
8 april 2009
A2o wint aanbesteding woonblok in Ham
28 augustus 2012
Studenten 'op kot' in oud winkelpand Hasselt
6 mei 2013
Broekbakema en a2o architecten ontwerpen voorbeeldproject voor Vlaamse bouwsector
20 februari
a2o wint ontwerpcompetitie politiebureau
2 februari 2015
Plan voor hotel op silo's CHV-terrein Veghel
2 februari 2018
Renovatie en nieuwbouw voor stadhuis Hasselt
1 september 2014
Gerechtsgebouw Hasselt opent deuren officieel
12 september 2013
A2o ontwerpt kantoor rond funderingvijver
31 oktober 2011
Zeeburgereiland krijgt kindcentrum
3 juli 2012
Duurzame kantoorsilo van Rothuizen geopend
9 juli 2013
RDH bouwt graansilo om tot eigen kantoor
20 april 2010
A2o ontwerpt groot hippisch centrum
13 juli 2012
A2o en OA ontwerpen appartementen Luchtbal
1 februari 2012
Nieuwe scholencampus bij station Hasselt
4 oktober 2012
A2o wint prijsvraag kantoorcampus Umicore
3 november 2011
Annie M.G. Schmidt Huis in silo’s Zeeburg
8 april 2009
A2o wint aanbesteding woonblok in Ham
28 augustus 2012
Studenten 'op kot' in oud winkelpand Hasselt
6 mei 2013
Toon alles
Andere nieuwsberichten
Faculteit ITC Universiteit Twente onderscheiden met Abe Bonnema Architectuurprijs 2025
12 december, 5:30
Vrijdag ontving Civic Architects de prijs en het bijbehorend geldbedrag van 50.000 euro uit handen van Ed Nijpels, voorzitter van de ir. Abe Bonnema Stichting.
MVRDV werkt aan renovatie boeddhistisch klooster in Franse Dordogne
12 december, 11:37
Naar ontwerp van MVRDV en het plaatselijke architectenbureau MoonWalkLocal ondergaat het boeddhistische klooster Plum Village in de Franse Dordogne een grote renovatie.
Studio for New Realities ontwerpt twee woongebouwen in District U
12 december, 10:00
De transformatie van het voormalige Unilever-terrein in Vlaardingen gaat een nieuwe fase in nu gestart is met de bouw van de eerste woningbouwprojecten.
Wanden uit leemsteen verbinden woning met Limburgs landschap
12 december, 9:00
In de landelijke omgeving van Weert, in het noorden van Limburg, heeft De Nieuwe Context een woning ontworpen waar wanden uit leemsteenblokken de verbinding tussen binnen en buiten manifest maken.
RIVM: verbeterde luchtkwaliteit leidde tot afname sterfte
12 december, 12:27
Een verbeterde luchtkwaliteit heeft ervoor gezorgd dat er tussen 1995 en 2019 een kwart minder mensen zijn overleden na dagen met verhoogde concentraties van luchtverontreinigende stoffen.
Zuid-Holland: met dubbel agrarisch ruimtegebruik stroom voor 700.000 huizen
12 december, 11:06
De provincie heeft laten uitzoeken waar de combinatie van landbouw en zonnepanelen in theorie mogelijk is.
Miljarden extra nodig voor aanleg landelijk waterstofnetwerk
11 december, 3:13
Volgens de Algemene Rekenkamer zijn de verwachte opstartverliezen meer dan drie keer zo hoog als het beschikbare subsidiebedrag van 750 miljoen euro.
Brussel wil snellere vergunningen voor elektriciteitsprojecten
11 december, 1:39
De Europese Commissie wil dat elektriciteitsnetwerken van lidstaten beter op elkaar aansluiten.
Zeeland stopt samenwerking met aannemers over aanpak Zeelandbrug
10 december, 1:56
Volgens de provincie heeft de aannemerscombinatie een kostenraming gepresenteerd die fors boven het eerder vastgestelde budget van 5,5 miljoen euro ligt.
Verbreding Betuwelijn in Duitsland duurt nog minstens tien jaar
10 december, 12:30
De bedoeling is dat er in Duitsland meer dan zeventig kilometer spoor bijkomt, elf stations worden omgebouwd en 47 viaducten en bruggen worden aangepast.
Ga naar het nieuws-archief
0
0
0
0
Voor een optimale gebruikservaring plaatst Architectenweb functionele cookies. Wat de verschillende cookies precies doen leggen we uit in een
overzicht
. Cookies van social media kun je optioneel
aanzetten
.
Akkoord
Instellingen
Annuleren
OK
Sluiten
Doorgaan
Inloggen
Maak een gratis persoonlijk account aan
Feedback
Feedback
Wij horen graag jouw feedback. Laat je reactie achter en eventueel jouw e-mail adres.
Reactie
Verstuur