Projecten
Producten
Bedrijven
Vacatures
Agenda
Awards
Podcasts
more_horiz
Videos
Magazine
Favorieten
Profiel
Uitloggen
Abonneer je nu op onze nieuwsbrieven!
Abonneren
Nee, bedankt
Ja, denk met me mee rond de
materialisering van mijn project
Copyright: grafie Grazielle Bruscato
Copyright: grafie Grazielle Bruscato
Copyright: grafie Grazielle Bruscato
Copyright: grafie Grazielle Bruscato
Copyright: grafie Grazielle Bruscato
Copyright: grafie Grazielle Bruscato
Copyright: Fundação Iberê Camargo
Copyright: Fundação Iberê Camargo
Video: Álvaro Siza
29 juni 2012, 16:05
De video van deze week staat in het teken van de Portugese architect Álvaro Siza. Donderdag werd bekend dat hij tijdens de architectuurbiënnale in Venetië de Gouden Leeuw krijgt uitgereikt voor zijn gehele oeuvre.
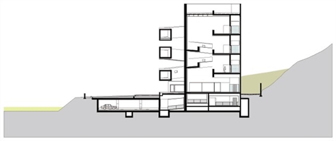
In de video spreekt Siza over zijn ontwerp van het Iberê Camargo Museum in het Braziliaanse Porto Alegre. Hij bespreekt de belangrijke rol die handmatig schetsen heeft in het ontwerpproces; van massastudies tot de fijne details in het ontwerp. De video is opgenomen in het Canadian Centre for Architecture (CCA).
Álvaro Siza ontvangt de Gouden Leeuw op 29 augustus tijdens de opening van de dertiende architectuurbiënnale van Venetië.
Klik [
hier
] om de video te bekijken.
Trefwoorden
ibere camargo museum
alvaro sisa vieira
Locatie
Best gelezen
1
Bouwvergunning voor torens MVRDV op Tour & Taxis-terrein Brussel
donderdag, 30 april
2
Groosman heeft 'eigen' Coolse Poort in centrum Rotterdam gerenoveerd
woensdag, 29 april
3
Tentoonstelling in Het Noordbrabants Museum rond 50 jaar BPD Kunstcollectie
dinsdag, 5 mei
4
Negentiende-eeuwse woningen in Feijenoord gered door er kluswoningen van te maken
maandag, 4 mei
5
Stijn Dries transformeert papierfabriek tot creatief atelierdorp
woensdag, 29 april
Gerelateerde nieuwsberichten
KNOB en architecten verkennen sociale woningbouw in Haagse Schilderswijk
23 september 2024
Video: Lichtinstallatie in Pools monument
20 juli 2012
Video: architectuur tijdens A'dam Fashion Week
13 juli 2012
Álvaro Siza ontvangt Gouden Leeuw
28 juni 2012
Woongebouw Álvaro Siza op Overhoeks klaar
16 mei 2011
'Ik mocht ontwerp 'New Orleans' niet aanpassen'
4 november 2010
Tentoonstelling Strik/Siza bij Vesteda
17 augustus 2010
Alvaro Siza bouwt vakantiehuis
25 februari 2009
KNOB en architecten verkennen sociale woningbouw in Haagse Schilderswijk
23 september 2024
Video: Lichtinstallatie in Pools monument
20 juli 2012
Video: architectuur tijdens A'dam Fashion Week
13 juli 2012
Álvaro Siza ontvangt Gouden Leeuw
28 juni 2012
Woongebouw Álvaro Siza op Overhoeks klaar
16 mei 2011
'Ik mocht ontwerp 'New Orleans' niet aanpassen'
4 november 2010
Tentoonstelling Strik/Siza bij Vesteda
17 augustus 2010
Alvaro Siza bouwt vakantiehuis
25 februari 2009
Toon alles
Andere nieuwsberichten
Symposium rond het ontwerp van scholen – standaardisatie versus maatwerk
2 uur geleden
Op woensdagmiddag 3 juni organiseert Architectenweb samen met Studio Ard Hoksbergen en Stichting Mevrouw Meijer in Xplore Agora in Amsterdam-Noord een symposium rond het ontwerpen van schoolgebouwen.
Uitkijkradartoren van RO&AD Architecten bereikt hoogste punt
Gisteren, 13:35
De uitkijkradartoren van RO&AD Architecten op de panoramaheuvel in de voormalige Hedwigepolder bereikt zijn hoogste punt.
Tentoonstelling in Het Noordbrabants Museum rond 50 jaar BPD Kunstcollectie
Gisteren, 09:30
BPD | Bouwfonds Gebiedsontwikkeling viert dit jaar het vijftigjarig bestaan van zijn kunstcollectie met de tentoonstelling Samenspel – waar verbeelding ruimte maakt. De tentoonstelling is van 18 juni tot en met 20 september 2026 te zien.
Maarten Baas klokt opnieuw in op Schiphol
4 mei, 4:28
De kunstenaar en ontwerper maakte opnieuw een verrassende klok op de nationale luchthaven Schiphol
HDN: mensen vragen minder hypotheken aan door hogere rente
4 mei, 5:02
De gestegen hypotheekrente maakte zowel kopers als niet-kopers terughoudender.
Nieuwsuur: gifzones belemmeren woningbouw in zeker veertig gemeenten
4 mei, 10:37
De bouw van tienduizenden woningen in Nederland loopt vertraging op door regels rond zogeheten spuitvrije zones.
Verzet natuurorganisaties tegen stroomkabel via Schiermonnikoog
1 mei, 4:39
Negen natuurorganisaties maken zich grote zorgen over het plan om stroom van een nieuw windpark op de Noordzee via Schiermonnikoog aan land te brengen.
ING: huizenprijzen stijgen dit jaar niet verder door hoger aanbod
1 mei, 1:03
Na jaren van groei is het voor het eerst in lange tijd dat een bank verwacht dat de huizenmarkt niet verder groeit.
TenneT mag datacenteraansluiting uitstellen om vol stroomnet
1 mei, 10:11
Een projectontwikkelaar van een datacenter bij Schiphol klaagde hierover en spande een kort geding aan.
Brabant investeert 1,4 miljoen in waterfilter in Vlaanderen
30 april, 3:51
Het fosfaatfilter moet vervuild grondwater op een natuurlijke manier zuiveren voordat het naar het Nederlandse natuurgebied de Groote Meer bij Ossendrecht stroomt.
Ga naar het nieuws-archief
0
0
0
0
Voor een optimale gebruikservaring plaatst Architectenweb functionele cookies. Wat de verschillende cookies precies doen leggen we uit in een
overzicht
. Cookies van social media kun je optioneel
aanzetten
.
Akkoord
Instellingen
Annuleren
OK
Sluiten
Doorgaan
Inloggen
Maak een gratis persoonlijk account aan
Feedback
Feedback
Wij horen graag jouw feedback. Laat je reactie achter en eventueel jouw e-mail adres.
Reactie
Verstuur