Projecten
Producten
Bedrijven
Vacatures
Agenda
Awards
Podcasts
more_horiz
Videos
Magazine
Favorieten
Profiel
Uitloggen
Abonneer je nu op onze nieuwsbrieven!
Abonneren
Nee, bedankt
Ja, denk met me mee rond de
materialisering van mijn project
Copyright: WAM architecten
Copyright: WAM architecten
Copyright: WAM architecten
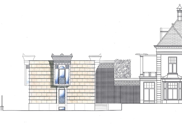
Copyright: Noordgevel ( WAM architecten)
Copyright: Oostgevel ( WAM architecten)
Copyright: Zuidgevel ( WAM architecten)
Copyright: Westgevel ( WAM architecten)
Bouw ambassade Saoedi-Arabië van start
9 december 2011, 11:18
In Den Haag is gestart met de bouw van de nieuwe ambassade en het consulaat van Saoedi-Arabië. Dat maakte
WAM architecten
vrijdag bekend. Voor de ambassade wordt een bestaande villa verbouwd, terwijl de consulaat in een nieuwbouw wordt gehuisvest.
Het gaat om Villa De Kempenaer, een door architect
Johannes Mutters
volgens Um 1800-stijl (een conservatieve bouwstijl uit de negentiende eeuw) ontworpen woonhuis. Uitgangspunt in het nieuwe ontwerp is een mengeling tot stand te brengen van Nederlands neoclassicisme en op Arabische stijl geïnspireerde interieurarchitectuur.
“Bij de herbestemming van de villa tot ambassade is het doel het originele karakter van het statige exterieur volledig terug te brengen”, zegt WAM architecten. Het interieur ondergaat een verandering die past bij de representatieve functie van de ambassade en bij de Um 1800- stijl.”
“In het interieur, met name op de begane grond, zijn veel oorspronkelijke details bewaard gebleven: van de sierlijke cassetteplafons tot het wandstucwerk met Balinees-Oriëntaals geïnspireerde motieven. Pilasters, balkons, kolommen en kapitelen van de villa zijn gemaakt van Franse kalksteen.”
Het consulaat verrijst aan de andere zijde van het perceel. WAM architecten ontwerpt dit gebouw volgens sobere klassieke architectuur met sterke Arabische invloeden. “Het nieuwe consulaat is ontworpen vanuit een reeds bestaand rechthoekig gebouw, dat volledig tot op het betonskelet is gestript”, zegt WAM architecten.
“De bezoekers betreden het gebouw via een patio, die wordt gedomineerd door elementen uit de op ‘Arabië’ geïnspireerde architectuur. De gevelbekleding wordt gemaakt van dezelfde kalksteen die is toegepast in Villa De Kempenaer. De plint, de kozijnen en de elegante erkers worden uitgevoerd in wit staal.”
De ambassade en het consulaat worden met een passage verbonden. Voor het glas van de passage en een deel van de villa wordt een voile geplaatst van staal, die zal worden gedecoreerd met geometrische motieven.
De gebouwen worden in het najaar van 2012 opgeleverd.
Trefwoorden
johannes mutters
ambassade
traditionalisme
wam architecten
den haag
Best gelezen
1
Architect Cees Dam op 93-jarige leeftijd overleden
dinsdag, 14 april
2
Powerhouse Company wint aanbesteding voor verbouwing Vista College Maastricht
dinsdag, 14 april
3
Tien bureaus geselecteerd voor tweede ronde nieuwbouw De Meervaart
woensdag, 15 april
4
Voormalig hoofdkantoor Ferro in M4H verbouwd tot bedrijfsverzamelgebouw
woensdag, 15 april
5
QWA heeft A16 boven Rotterdam eigen identiteit gegeven
maandag, 13 april
Gerelateerde nieuwsberichten
Jaarboek in teken van pessimisme
21 april 2011
Essalammoskee: bidden op meer niveaus
20 december 2010
‘Brief Soeters ontbeert elke grond’
19 oktober 2010
Soeters eist ontwerp 'Zaanse huisjes-hotel' op
18 oktober 2010
Hotel van Zaanse huisjes in gebruik genomen
18 maart 2010
Jaarboek in teken van pessimisme
21 april 2011
Essalammoskee: bidden op meer niveaus
20 december 2010
‘Brief Soeters ontbeert elke grond’
19 oktober 2010
Soeters eist ontwerp 'Zaanse huisjes-hotel' op
18 oktober 2010
Hotel van Zaanse huisjes in gebruik genomen
18 maart 2010
Toon alles
Andere nieuwsberichten
OMA gebruikt bestaand gebouw als canvas bij renovatie Edo-Tokyo Museum
Gisteren, 15:55
Na een renovatie van bijna vier jaar is het Edo-Tokyo Museum in de Japanse hoofdstad Tokio heropend. OMA nam het uit 1993 stammende gebouw, dat is ontworpen door de Metabolist Kiyonori Kikutake, onder handen.
Winnaars verkiezing Beste Bossche Gebouw 2020–2025 bekend
Gisteren, 14:16
De vakjury en het publiek wezen elk in drie categorieën een winnaar aan. Daarnaast kende vakjury nog een wildcard toe aan een project.
Appartementengebouwen door MIX architectuur vormen sluitstuk Noorderhaven Zutphen
Gisteren, 12:29
In de nieuwe buurt Noorderhaven in Zutphen zijn drie appartementengebouwen naar ontwerp van MIX architectuur opgeleverd. De gebouwen met in totaal tachtig woningen vormen het sluitstuk van de gebiedsontwikkeling.
EUmies Award naar renovatie congrescentrum in Charleroi en tijdelijke ruimtes Sloveens theater
Gisteren, 10:54
Donderdag zijn de winnaars van de EUmies Award 2026 bekendgemaakt. De renovatie van het congrescentrum Charleroi Palais des Expositions won in de belangrijkste categorie architectuur.
Woningbouwzaken krijgen langer voorrang bij Raad van State
Gisteren, 16:49
Om het huizentekort tegen te gaan, blijft de Raad van State woningbouwzaken met voorrang behandelen.
Inspectie positief over verbetering sociale veiligheid TU Delft
Gisteren, 11:36
De TU Delft heeft aanzienlijke stappen gezet om de sociale veiligheid voor medewerkers te verbeteren.
NVM vreest minder nieuwbouw door veranderende voorrang stroomnet
Gisteren, 09:23
Bouwers kunnen, door onzekerheid over welke projecten straks nog maatschappelijke prioriteit krijgen in een bepaalde regio, besluiten om minder nieuwe huizen te bouwen.
Architecten voor restauratie en herbestemming Rivièrahal gekozen
16 april, 12:00
Voor de grootscheepse restauratie en herbestemming van de Rivièrahal in de Rotterdamse Diergaarde Blijdorp zijn Mecanoo en BiermanHenket geselecteerd.
Bewoners aardbevingsgebied Groningen blijven kritisch op herstel
16 april, 10:34
Door de complexiteit en onzekerheid van het jarenlange proces ervaren mensen stress en frustratie.
ING: optoppen en splitsen van woningen steeds minder haalbaar
15 april, 1:22
Het kabinet-Jetten gaat naar verwachting het doel van 15.000 extra woningen per jaar uit verbouwingen niet halen, stelt ING.
Ga naar het nieuws-archief
0
0
0
0
Voor een optimale gebruikservaring plaatst Architectenweb functionele cookies. Wat de verschillende cookies precies doen leggen we uit in een
overzicht
. Cookies van social media kun je optioneel
aanzetten
.
Akkoord
Instellingen
Annuleren
OK
Sluiten
Doorgaan
Inloggen
Maak een gratis persoonlijk account aan
Feedback
Feedback
Wij horen graag jouw feedback. Laat je reactie achter en eventueel jouw e-mail adres.
Reactie
Verstuur