Abonneer je nu op onze nieuwsbrieven!
Abonneren
Nee, bedankt
Ja, denk met me mee rond de
materialisering van mijn project
Producten
Restaurant, koffiebar en informeel overleg
Copyright: Scagliola + Brakkee
entree en ontvangst
Copyright: Scagliola + Brakkee
entree en ontvangst
Copyright: EGM architecten
Restaurant, koffiebar en informeel overleg
Copyright: Scagliola + Brakkee
Restaurant, koffiebar en informeel overleg
Copyright: Scagliola + Brakkee
Restaurant, koffiebar en informeel overleg
Copyright: Scagliola + Brakkee
Restaurant, koffiebar en informeel overleg
Copyright: Scagliola + Brakkee
Experience centre
Copyright: Scagliola + Brakkee
Experience centre
Copyright: EGM architecten
Inspiratiekeuken en testlab
Copyright: Scagliola + Brakkee
Proeflab
Copyright: Scagliola + Brakkee
Ontmoeten en werken
Copyright: EGM architecten
Vergaderen, touchdown- en brainstorm-ruimtes
Copyright: Scagliola + Brakkee
Vergaderkamer
Copyright: Scagliola + Brakkee
Werk- en vergaderkamers
Copyright: Scagliola + Brakkee
Pantry met lounge en overlegplekken
Copyright: Scagliola + Brakkee
The Clubhouse
Copyright: Scagliola + Brakkee
The Clubhouse
Copyright: EGM architecten
Concept - Ingrediënten
Copyright: EGM architecten
Concept - herkomst interieur
Copyright: EGM architecten
Concept - programma
Copyright: EGM architecten
Concept - duurzaamheid
Copyright: EGM architecten
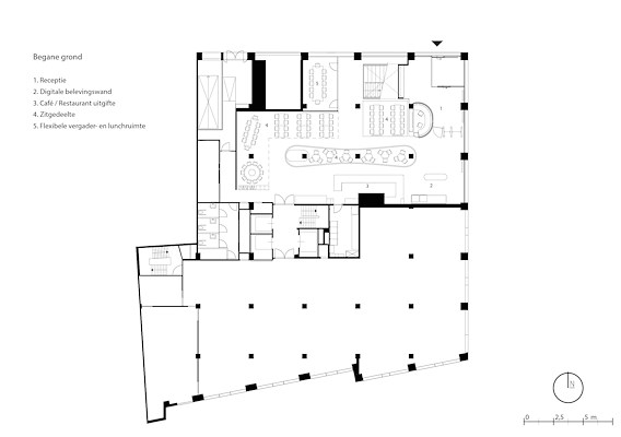
Verdieping 0
Copyright: EGM architecten
Verdieping 1
Copyright: EGM architecten
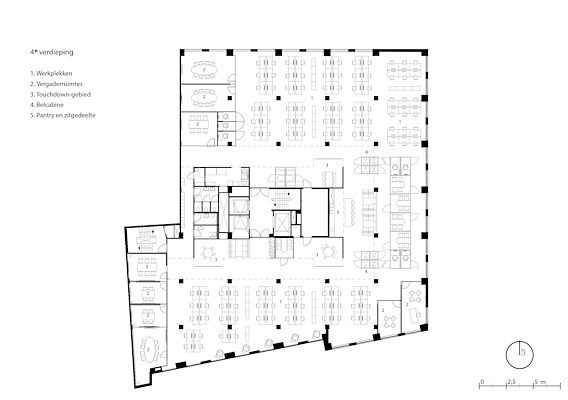
Verdieping 4
Copyright: EGM architecten
Verdieping 5
Copyright: EGM architecten
ProducttagsAANUIT

Renovatie kantoor The Magnum Ice Cream Company

25 juni 2025
Het hoofdkantoor voor The Magnum Ice Cream Company, de nieuwe internationale ijsjesmaker die voortkomt uit Unilever, is gevestigd in een karakteristiek gebouw aan de levendige Reguliersdwarsstraat in Amsterdam. Voor deze marktleider ontwierp EGM interieur een duurzame kantooromgeving die de Serious Playfulness-identiteit — professioneel én speels — tastbaar maakt.

Nieuwe naam, nieuwe energie
De overgang naar zelfstandigheid betekend meer dan alleen een nieuw logo. The Magnum Ice Cream Company (TMICC) stond voor de uitdaging om een eigen identiteit te ontwikkelen, inclusief bijpassende werkomgeving. EGM interieur creëerde, samen met TMICC, CBRE en Sunhouse Creative, een flexibel ontwerp dat meebeweegt met de groei en ambities van het merk. In het bestaande kantoorpand aan de Reguliersdwarsstraat, voorheen gehuurd door Booking.com, is vanuit die identiteit een kleurrijke, uitnodigende en merkgedreven werkomgeving ontstaan. In die inspirerende omgeving is het fun om te werken bij een serieus bedrijf.

Branding
Samen met TMICC is de nieuwe merkidentiteit vormgegeven: een krachtige basis met ruimte voor speelsheid. De wereldwijde uitstraling van het hoofdmerk Magnum en de karaktervolle submerken, zoals Cornetto, Carte d’Or en Hertog in Nederland, kregen daarbij volop aandacht. TMICC vormt de stevige ruggengraat, terwijl de rijke variatie aan ijssmaken het speelse thema levert, vertaald naar een kleurrijk palet. Deze levendige kleuren zijn met zorg door het interieur verweven, als knipoog naar de onweerstaanbare beleving van een ijsje — fris, uitnodigend en doordacht.

De branding komt ook terug in de speelse en herkenbare vormtaal. Zo zijn met de karakteristieke vloeiende vorm van een ijsstokje lamellen voor tussenwanden gemaakt, volgen plafondarmaturen het ijs-swirl-patroon en is de swirl ook terug te zien in zwierige grafische prints op de (glazen)wanden. Het zijn details als deze die het vakmanschap versterken en het interieur een unieke, herkenbare uitstraling geven. In alles vertegenwoordigt het interieur de waarden van de vele brands van TMICC.

Inspirerende werkomgeving
Het nieuwe hoofdkantoor stimuleert interactie en samenwerking. Essentieel, want bij TMICC werkt een cultureel diverse en internationale groep medewerkers. In het ontwerp is dan ook veel aandacht besteed aan de behoeften en wensen van die mensen. Voor hen is een levendig, inspirerend interieur gecreëerd met hybride werkplekken, concentratiezones, conferentiezalen, break-out rooms en informele overleggebieden. Het versterkt een gezonde, productieve werkomgeving waarin iedereen zich comfortabel voelt en optimaal kan presteren. Mensen vinden het leuk om naar kantoor te komen en hier te werken.

Experience Centre als ontmoetingsplek
In het nieuwe hoofdkantoor heeft het Experience Centre een centrale plek gekregen. In deze inspirerende omgeving worden ideeën geboren, nieuwe smaken getest en belevenissen gedeeld. De kracht van het merk is hier maximaal voelbaar. Het centrum beschikt over een Creative Kitchen, Tasting Labs en interactieve demonstratieruimten. Bezoekers, zoals retailers en concessiehouders, maken hier kennis met nieuwe ijsvarianten, volgen workshops wonen demonstraties bij. Ook zijn er aparte ruimtes om real-life verkoopopstellingen te testen. Het Experience Centre is daarmee hét visitekaartje van de ijsmaker.

Circulair
Duurzaamheid is hier niet een toevoeging, maar een integraal onderdeel van het ontwerp. De 10 R’en van circulariteit zijn hiervoor een praktische leidraad. Principes als Rethink, Reduce, Reuse, Repair, Refurbish en Remanufacture zijn in veel ontwerpkeuzes terug te vinden. Zo is bestaand vast meubilair dat op locatie was achtergebleven – zoals pantry’s en de uitgiftebalie – behouden en opgefrist met een nieuwe toplaag. Kasten uit de vorige Unilever-locatie kregen een tweede leven na een grondige opknapbeurt. Ook stoelen zijn hergebruikt en opnieuw gestoffeerd, en een deel van de verlichting is zorgvuldig hersteld en overgeplaatst. Elke hergebruikte component draagt bij aan een nieuwe interieur dat minder belastend is voor het milieu.

Flexibel en gezond werken
Het interieur van het nieuwe hoofdkantoor is volledig demontabel en daardoor flexibel indeelbaar. Hierdoor kunnen ruimtes eenvoudig worden aangepast aan veranderende behoeften, groei of nieuwe vormen van samenwerken. Die flexibiliteit maakt het kantoor niet alleen praktisch, maar ook duurzaam in gebruik. Tegelijkertijd stimuleert het kantoor een gezonde levensstijl. Dat gebeurt door de slimme inrichting met comfortabele ontmoetingsplekken, gevarieerd meubilair voor verschillende werkstijlen, rust- en concentratiezones én ontspanningsmogelijkheden zoals op een zonnig dakterras voor een vitale werkdag.

Het resultaat bewijst dat Serious Playfulness meer is dan een motto – het is voelbaar in elke ruimte. In het nieuw hoofdkantoor gaan inspiratie, plezier, flexibiliteit en welzijn hand in hand samen voor een werkomgeving die actief bijdraagt aan het succes van de ijsjesmaker.

Stel jezelf kort voor! Dan weet het betreffende bedrijf wie hun model gedownload heeft.
Wil je niet bij elke download jouw gegevens in hoeven voeren?
Klik dan hier om in te loggen.

Heb je nog geen account? Maak dan hier een gratis account aan.
Voornaam
Achternaam
E-mailadres
Downloaden
Wanneer je modellen downloadt op Architectenweb.nl worden relevante gegevens van jou – zoals jouw naam en e-mailadres – met het betreffende bedrijf gedeeld. Meer hierover lees je in ons privacybeleid.

Locatie

Neem contact op met EGM architecten

Je bent momenteel niet ingelogd. Hierdoor is het alleen mogelijk om meer informatie per e-mail op te vragen. Wil je liever gebeld worden of documentatie per post ontvangen? Klik dan hier om in te loggen.
Heb je nog geen account? Maak dan hier een gratis account aan.
Voornaam
Achternaam
E-mailadres
Opmerkingen
Bij iedere aanvraag worden relevante gegevens van jou gedeeld met het betreffende bedrijf. Meer hierover lees je in ons privacybeleid.
Ja, denk met me mee rond de
materialisering van mijn project

Meer projecten van EGM architecten

EGM architecten
EGM architecten
EGM architecten
EGM architecten
EGM architecten
EGM architecten
EGM architecten
EGM architecten
Toon alles
KUBUS | Specialist in Archicad
SAPA
Reynaers Aluminium Nederland
Jansen
SAB-profiel bv
Aliplast Aluminium Systems
Kingspan Light & Air
ALUCOBOND®
Caparol
Tarkett BV
Kawneer
Grohe Nederland B.V.
Malaysian Timber Council
OCS | Office Cabling Systems
Swisspearl Nederland
Forster Nederland N.V.
VELUX Commercial Benelux B.V.
Sempergreen
Houthandel van Dam
Aluprof Nederland BV
QbiQ Wall Systems
Forbo Flooring
Schüco Nederland
Cedral
Sto Isoned bv
Triflex bv
Gorter Luiken BV
wienerberger
DUCO Ventilation & Sun Control
BEWI IsoBouw
ROCKWOOL B.V.
Mview+
Rockfon (ROCKWOOL B.V.)
Gira Nederland B.V.
Kingspan Geïsoleerde Panelen
GEZE Benelux  B.V.
Renson
Metaglas Groep
ABB | Busch-Jaeger
Jung | Hateha B.V.
Knauf B.V.
Saint-Gobain Glass Benelux
Faay Vianen B.V.
objectflor
Boon Edam Nederland B.V.
Hunter Douglas Architectural
VOLA Nederland BV
Forbo Eurocol Nederland B.V.
EQUITONE gevelpanelen
Holonite B.V.
Kronospan
Tata Steel Colorcoat®
Architectenweb
Over ons
Contact

© 2002 - 2026 Architectenweb BV / Voorwaarden / Privacy / Disclaimer / Sitemap
Annuleren
OK
Sluiten
Doorgaan
Inloggen
Maak een gratis persoonlijk account aan