Abonneer je nu op onze nieuwsbrieven!
Abonneren
Nee, bedankt
Ja, denk met me mee rond de
materialisering van mijn project
Producten
Schoolplein met entree
Copyright: Katja Effting
Jan Ligthartstraat schoolplein en aula
Copyright: Katja Effting
Jan Ligthartstraat schoolplein
Copyright: Katja Effting
Oostzijde
Copyright: Katja Effting
Noordzijde
Copyright: Katja Effting
Binnentuin
Copyright: Katja Effting
Binnentuin
Copyright: Katja Effting
Binnentuin
Copyright: Katja Effting
Schoolplein
Copyright: Katja Effting
Entree
Copyright: Mirjam Mulder
Ontvangstplein met tribunetrap
Copyright: Katja Effting
Kleine aula met zicht in binnentuin
Copyright: Katja Effting
Grote aula met theater
Copyright: Katja Effting
Grote aula met uitgifte
Copyright: Katja Effting
Domeinplein Talen
Copyright: Katja Effting
Domeinplein Science
Copyright: Katja Effting
Domeinplein Kunst
Copyright: Katja Effting
Bestaand trappenhuis getransformeerd
Copyright: Katja Effting
Grote aula uitzicht
Copyright: Katja Efftingrt
Bestaande betonconstructie behouden
Copyright: studio Nuy van Noort
Nieuwe Campus met Ichthus College en nieuwe sporthal
Copyright: studio Nuy van Noort
Aanpak transformatie bestaand gebouw
Copyright: studio Nuy van Noort
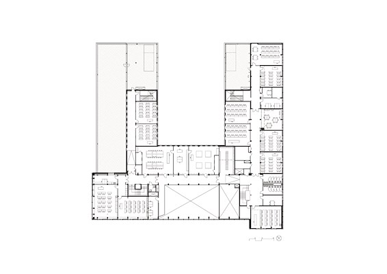
begane grond
Copyright: studio Nuy van Noort
eerste verdieping
Copyright: studio Nuy van Noort
tweede verdieping
Copyright: studio Nuy van Noort
ProducttagsAANUIT

Transformatie Ichthus College Kampen

28 juni 2024
Met de ontwikkeling van de Nieuwe Campus starten de Gemeente Kampen en Landstede Groep de transformatie van het bestaande Ichthus College en zijn omgeving tot een dynamische en groene plek voor onderwijs, sport en ontmoeting. Het ontwerp gaat uit van een ensemble van gebouw en landschap waarbij er geen strikte scheiding is tussen stedenbouwkundige context, landschap, gebouw en interieur. We maken daarom de gebouwen (transformatie Ichthus College en nieuwbouw Sporthal) zo compact mogelijk en geven ze een alzijdige uitstraling, gericht op elkaar en de groene omgeving.

Fasering
Het Ichthus College is het eerste project dat is opgeleverd.  Hierdoor kan het bestaande tweede gebouw van het Ichthus College worden gesloopt. Op deze locatie start in het najaar van 2024 de bouw van de nieuwe Sporthal, ook een ontwerp van studio Nuy van Noort. Als deze gereed is kunnen de oude gymzalen van de school gesloopt worden en kan het schoolplein van het Ichthus College afgemaakt worden.

Ichthus College
Met het nieuwe schoolgebouw willen we het Ichthus College een stimulerende omgeving bieden waarin leerlingen, docenten en begeleiders zich uitgedaagd voelen, maar ook prettig en veilig. Het bestaande schoolgebouw vormt letterlijk de basis voor de nieuwbouw. We brengen de bestaande betonconstructie terug tot een heldere en goed her te gebruiken structuur. Deze structuur breiden we binnen de grenzen van het bestemmingsplan op een logische manier aan de binnenzijde uit. Door de heldere en regelmatige structuur maken we een compact gebouw met centrale ontsluiting waarin het programma flexibel kan worden ingedeeld.
 
School met een groen hart
De bestaande binnentuin is een kwaliteit die we graag inzetten voor de nieuwe school. Zo omarmt het bestaande het nieuwe en vormen ze samen één nieuw, efficiënt en multifunctioneel gebouw met een groen hart.
We maken een duidelijk herkenbare hoofdentree aan de zijde van het schoolplein zodat het gebouw zich nadrukkelijk richt op het landschap van de Nieuwe Campus. De entree wordt gevolgd door een uitnodigend ontvangstplein. Deze open en uitnodigende ruimte is het startpunt voor ieders schooldag. Het ontvangstplein staat via een grote tribunetrap in directe en open verbinding met de grote en kleine aula op de eerste verdieping. De combinatie van de aula's vormt het bruisende hart van de school.
In ons ontwerp behoudt de grote aula met theaterpodium ook in de nieuwe organisatie zijn logische en vertrouwde plek. Hierdoor blijft de uitstraling van deze dynamische ontmoetingsplek naar de Jan Ligthartstraat behouden. Daarnaast volgen we de bestaande constructie, die hier speciaal voor de aula uitgaat van een dubbelhoge ruimte. Naast de grote aula en in het verlengde van de tribunetrap plaatsen we de kleine aula. Zo ontstaat een uitnodigend ontmoetingsplein dat in verbinding staat met de Jan Ligthartstraat en de binnentuin, en via de tribunetrap met het ontvangstplein en het schoolplein.

Domeinen
De domeinen vormen de kern van de school en zijn over de verschillende verdiepingen verdeeld en ingericht op de wensen van de verschillende vakgroepen. De opbouw en uitstraling van de domeinen is transparant, zodat het onderwijs en het samenwerken goed zichtbaar zijn en er veel contact mogelijk is tussen de docenten en de leerlingen. In deze gebieden hebben de domeinen door het interieurontwerp, materialisering en meubilair volop de mogelijkheid om hun kennis en creativiteit te tonen. Elk domein heeft een eigen domeinplein. Dit is een open ruimte die naar eigen inzicht kan worden gebruikt en vormgegeven. Deze ruimte kan ook worden afgesloten en gebruikt worden als lokaal, voor extra flexibiliteit. De vakgroep kunst heeft twee lokalen speciaal ingericht voor muziek en drama, en voorzien van studio's.

Uitstraling
Het nieuwe schoolgebouw gaat een dialoog aan met zijn omgeving en heeft bewust een rustige en ingetogen uitstraling, maar toont ook met trots wat het Ichthus College allemaal te bieden heeft. De nieuwbouw volgt de oorspronkelijke opbouw van 3 lagen aan de zijde van de Jan Ligthartstraat en 2 lagen aan de zijde van het schoolplein. Deze geleding maakt het gebouw kleinschaliger. Het gebouw heeft een stoere buitenkant en een zachte zijde aan de binnentuin. Aan de buitenkant is door de transparante plint de entree aan het schoolplein duidelijk herkenbaar en uitnodigend.
Een patroon van lichte aluminium raamkaders zorgt voor een sterke ritmiek. De kaders zijn open of gesloten, afhankelijk van de relatie met de omgeving, de wens van het achterliggende programma of de oriëntatie op de zon. De kaders openen het gebouw naar zijn omgeving en benadrukken speciale plekken als de dubbel hoge aula, een domeinplein, of het dramalokaal. Of de kaders zijn juist gesloten voor meer rust en privacy. Zo geven we het nieuwe gebouw een eigentijdse en karaktervolle uitstraling naar zijn omgeving en een duidelijke identiteit als uitnodigende en inspirerende leeromgeving.

Met de gevel van de nieuwbouw aan de binnenzijde wijken we bewust af in kleur, materiaal en ritmiek. Zo is dit gebouwdeel duidelijk herkenbaar en oogt het totaal minder massief. De gevel is opgebouwd uit geprofileerde panelen gevat in een regelmatig patroon van horizontaal en verticaal aluminium zetwerk. Het ritme van de raamkaders is regelmatig en ingetogen en sluit zo aan op het rustige en geborgen karakter van deze plek. Op de bovenste verdieping zijn de ramen smaller, is het verticale patroon van zetwerk verdubbeld, en gebruiken we panelen met een kleinere profilering. Door deze gelaagde opbouw zorgen we ervoor dat het gebouw minder hoog aanvoelt.

Transformatie
Doel van het ontwerp was een zo efficiënt mogelijke transformatie. Het gebouw is zo compact mogelijk ontworpen voor de kleinstmogelijke bouwkundige en energetische footprint. Behoud van de bestaande betonconstructie vormde het circulaire uitgangspunt voor het ontwerp. Deze constructie is zoveel mogelijk in het zicht gelaten. Bestaande karakteristieke elementen zoals bakstenen binnenwanden, natuursteen trappartijen en de dubbelhoge aula met theater zijn behouden. Zo hebben we oud en nieuw bijeengebracht. De bestaande gevel en het dak die energetisch niet meer voldeden zijn compleet vervangen. De school heeft een hoogwaardig geïsoleerde gevel met geïntegreerde zonwering om opwarming of hinderlijke reflectie in de lokalen te voorkomen. Door het bestaande dak te vervangen hebben we de isolatie verbeterd, maar maakten we het ook mogelijk om PV-panelen te plaatsen. Het oude dak had hiervoor niet genoeg draagkracht.

Het bestaande gebouw uit 1965 was niet ontworpen op installaties volgens hedendaagse eisen m.b.t. Frisse Scholen, BENG en bouwbesluit. Zo was bijvoorbeeld de vrije hoogte beperkt en de bestaande vloeren niet geschikt voor vloerverwarming. Het op een zorgvuldige manier integreren van de installaties was daarom een hele puzzel. De hoofdinstallaties zijn verdeeld over twee zijden van het gebouw. Zo konden we de afmetingen van kanalen beperken. Het traject van de kanalen valt samen met de verkeersruimte. Hierdoor hoefde er geen kanalen in de lokalen, zodat hier de maximale vrije hoogte behouden kon blijven. De installatieruimten zijn geplaatst het op het nieuwbouw deel, geïntegreerd in het bouwkundig volume. Zo zorgen we ervoor dat de installaties aan het zicht zijn onttrokken en uitstraling van installatiegeluid naar de omgeving wordt voorkomen. Zo hebben we het bestaande gebouwgetransformeerd tot een toekomstbestendig gebouw

Stel jezelf kort voor! Dan weet het betreffende bedrijf wie hun model gedownload heeft.
Wil je niet bij elke download jouw gegevens in hoeven voeren?
Klik dan hier om in te loggen.

Heb je nog geen account? Maak dan hier een gratis account aan.
Voornaam
Achternaam
E-mailadres
Downloaden
Wanneer je modellen downloadt op Architectenweb.nl worden relevante gegevens van jou – zoals jouw naam en e-mailadres – met het betreffende bedrijf gedeeld. Meer hierover lees je in ons privacybeleid.

Locatie

Neem contact op met studio Nuy van Noort

Je bent momenteel niet ingelogd. Hierdoor is het alleen mogelijk om meer informatie per e-mail op te vragen. Wil je liever gebeld worden of documentatie per post ontvangen? Klik dan hier om in te loggen.
Heb je nog geen account? Maak dan hier een gratis account aan.
Voornaam
Achternaam
E-mailadres
Opmerkingen
Bij iedere aanvraag worden relevante gegevens van jou gedeeld met het betreffende bedrijf. Meer hierover lees je in ons privacybeleid.
Ja, denk met me mee rond de
materialisering van mijn project

Meer projecten van studio Nuy van Noort

ATAG Nederland
KUBUS | Specialist in Archicad
SAPA
Reynaers Aluminium Nederland
Jansen
SAB-profiel bv
Aliplast Aluminium Systems
Kingspan Light & Air
ALUCOBOND®
Caparol
Tarkett BV
Kawneer
Grohe Nederland B.V.
Malaysian Timber Council
OCS | Office Cabling Systems
Swisspearl Nederland
Forster Nederland N.V.
VELUX Commercial Benelux B.V.
Sempergreen
Houthandel van Dam
Aluprof Nederland BV
QbiQ Wall Systems
Forbo Flooring
Schüco Nederland
Cedral
Sto Isoned bv
Triflex bv
Gorter Luiken BV
wienerberger
DUCO Ventilation & Sun Control
BEWI IsoBouw
ROCKWOOL B.V.
Mview+
Rockfon (ROCKWOOL B.V.)
Gira Nederland B.V.
Kingspan Geïsoleerde Panelen
GEZE Benelux  B.V.
Renson
Metaglas Groep
ABB | Busch-Jaeger
Jung | Hateha B.V.
Knauf B.V.
Saint-Gobain Glass Benelux
Faay Vianen B.V.
objectflor
Boon Edam Nederland B.V.
Hunter Douglas Architectural
VOLA Nederland BV
Forbo Eurocol Nederland B.V.
EQUITONE gevelpanelen
Holonite B.V.
Tata Steel Colorcoat®
Architectenweb
Over ons
Contact

© 2002 - 2026 Architectenweb BV / Voorwaarden / Privacy / Disclaimer / Sitemap
Annuleren
OK
Sluiten
Doorgaan
Inloggen
Maak een gratis persoonlijk account aan