Projecten
Producten
Bedrijven
Vacatures
Agenda
Awards
Podcasts
more_horiz
Videos
Magazine
Thema's
Favorieten
Profiel
Uitloggen
Producten
IKC 't Simmelink, Eibergen
Copyright: Katja Effting
IKC 't Simmelink, Eibergen
Copyright: Katja Effting
IKC 't Simmelink, Eibergen
Copyright: Katja Effting
IKC 't Simmelink, Eibergen
Copyright: Katja Effting
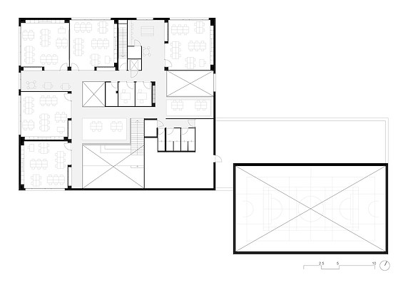
IKC 't Simmelink, plattegrond laag 0
Copyright: Katja Effting
IKC 't Simmelink, plattegrond laag 1
Copyright: studio Nuy van Noort
IKC 't Simmelink, centraal meubel
Copyright: Katja Effting
IKC 't Simmelink, centraal meubel
Copyright: Katja Effting
IKC 't Simmelink, centraal meubel
Copyright: Katja Effting
IKC 't Simmelink, leerpleinen
Copyright: Katja Effting
Producttags
AAN
UIT
IKC ‘t Simmelink, Eibergen
25 maart 2024
1
0
0
0
IKC ‘t Simmelink is samen met de opdrachtgever en gebruikers ontworpen als hun nieuwe plek voor onderwijs, sport en ontmoeting. De locatie van het IKC was vroeger een ‘kamp’: een verhoogde akker in het landschap, omzoomd door een groene wal. We hebben het IKC zorgvuldig in het landschap ingepast zodat de groene historische structuur weer leesbaar wordt.
We hebben het IKC ontworpen als een alzijdig gebouw in het groen. Met grote raamkaders openen we het gebouw aan alle zijden, in aansluiting op de variatie aan groene speelpleinen rondom het gebouw. Zo maken we een lichte en frisse school met een open en uitnodigende uitstraling.
Het IKC oogt bescheiden ondanks het grote programma. Door opdeling in twee ten opzichte van elkaar verschoven volumes blijven doorzichten op de groene omgeving behouden. De extra hoogte van de gymzaal en eerste verdieping van de school plaatsen we als losse hoogteaccenten afgewerkt in leien op een robuuste bakstenen plint, voorzien van verschillende patronen. Door de geleding in het gebouw is het mogelijk om de verschillende functies binnen het IKC op subtiele wijze te articuleren. Zo maken we een gebouwensemble in harmonie met de omliggende kleinschalige woningbouw en het groene landschap.
Opbouw gevel
De begane grond bestaat uit een robuuste plint van baksteen, stevig verankerd in de omgeving. De plint heeft een verbijzondering in de overgang tussen de begane grond en de eerste verdieping. Hier vormt een afwijkend baksteen patroon voor een rondgaand lint dat tegelijkertijd de terugliggende entree accentueert. De eerste verdieping wordt gevormd door twee losse doosjes die de school en de gymzaal accentueren. De gevelbekleding van deze doosjes bestaat uit een ruitpatroon van leien. Met de ritmiek en gemêleerde kleur van de leien brengen we extra gelaagdheid in de gevel.
Een ruimtelijk gebouw
De onderwijsvisie in dit IKC kenmerkt zich door relatief kleine klaslokalen met grote leerpleinen, waarbij groepsdoorbrekend werken mogelijk is. De leerpleinen liggen verspreid door de school, direct aangesloten op de klaslokalen. Alle circulatieruimte in het gebouw hebben we effectief ingezet als plek om elkaar te ontmoeten, te leren en te spelen.
We zetten een ruimtelijk meubel in voor het activeren van de gemeenschappelijke ruimte. Dit meubel scheidt en verbindt de verschillende plekken. Het meubel bevat een trap met brede uitloop voor bijeenkomsten, maar ook zitkaders waar je je kunt terugtrekken. Het bevat wanden waar alle kunst- en knutselwerken opgehangen kunnen worden, maar biedt ook plek om de boeken uit de bibliotheek te stallen.
Met vides in het gebouw zorgen ervoor dat er altijd onderling contact is tussen de begane grond en de eerste verdieping. Iedereen in deze school is betrokken op elkaar, een duidelijke wens van de opdrachtgever.
Een integraal ontwerp
Gebouw, interieur en inrichting zijn vanaf de het begin integraal ontworpen zodat de beschikbare ruimte en het beperkte budget maximaal zijn benut. Met maatwerk in de gevel, in vaste meubels van de gemeenschappelijke ruimte, de garderobes en vaste kasten in de lokalen, bijzonder kleurgebruik met bijpassende stoffering en verlichting hebben we er voor gezorgd dat dit IKC echt specifiek voor de leerlingen en leerkrachten van het Simmelink is geworden. Het IKC is volledig energieneutraal en voldoet voor lucht en energie aan Frisse Scholen klasse A. Een IKC waar iedereen trots op is!
Stel jezelf kort voor! Dan weet het betreffende bedrijf wie hun model gedownload heeft.
Wil je niet bij elke download jouw gegevens in hoeven voeren?
Klik dan hier om in te loggen
.
Heb je nog geen account?
Maak dan hier een gratis account aan
.
Voornaam
Achternaam
E-mailadres
Downloaden
Wanneer je modellen downloadt op Architectenweb.nl worden relevante gegevens van jou – zoals jouw naam en e-mailadres – met het betreffende bedrijf gedeeld. Meer hierover lees je in ons
privacybeleid
.
Locatie
Trefwoorden
eibergen
gymzaal
beng
leien
nuy
van noort
baksteen
basisschool
school
interieur
ikc
energieneutraal
eng
kindercentrum
integraal
bso
vezelcement
kinderdagverblijf
scholen
studio Nuy van Noort
Neem contact op
Projectdata
Staat van realisatie
Voltooid
Start ontwerpproces
2019
Start bouw
2022
Oplevering
2023
Ingebruikname
2023
Plaats
Eibergen
Kosten
8000
Meewerkende partijen
Architect
studio Nuy van Noort
Interieurarchitect
studio Nuy van Noort
Projectarchitect
Maartje Nuy, Joost van Noort
Ontwerpteam
Jelmer van der Zweep, Justyna Breczko, Andoni Urreizti Álvarez
Opdrachtgever
Delta Scholengroep
Aannemer
Marku Bouw, WSI Techniek
Constructeur
CIBIS Bouwadviseurs
Adviseurs installaties E & W
Willems Technisch Adviesbureau
Fotograaf
Katja Effting
Interieurontwerper
studio Nuy van Noort
Landschapsarchitect
studio Nuy van Noort
Visualisaties
studio Nuy van Noort
Gebruiker
Stichting Het Simmelink
Projectmanagement
SBM Bouwmanagement
Adviseur bouwfysica
Lievense | WSP
Adviseur brandveiligheid
Lievense | WSP
Leveranciers
Overig
SVK
Gevelbakstenen
wienerberger
Neem contact op met
studio Nuy van Noort
Je bent momenteel niet ingelogd. Hierdoor is het alleen mogelijk om meer informatie per e-mail op te vragen. Wil je liever gebeld worden of documentatie per post ontvangen?
Klik dan hier om in te loggen
.
Heb je nog geen account?
Maak dan hier een gratis account aan
.
Voornaam
Achternaam
E-mailadres
Opmerkingen
Bij iedere aanvraag worden relevante gegevens van jou gedeeld met het betreffende bedrijf. Meer hierover lees je in ons
privacybeleid
.
Ja, denk met me mee rond de
materialisering van mijn project
Meer projecten van studio Nuy van Noort
Transformatie Ichthus College Kampen
studio Nuy van Noort
Brandweerpost Bennebroek
studio Nuy van Noort
Nieuwbouw Prinses Margrietschool Rotterdam
studio Nuy van Noort
Huisvesting Kansspelautoriteit, Den Haag
studio Nuy van Noort
Nicolaasschool, Rotterdam
studio Nuy van Noort
Villa Belluccelli
studio Nuy van Noort
huisvesting Inspectie van het Onderwijs
studio Nuy van Noort
Verbouwing kantoroor Rechtbank Assen
studio Nuy van Noort
MFC Doelum, Renkum
studio Nuy van Noort
Transformatie Ichthus College Kampen
studio Nuy van Noort
Brandweerpost Bennebroek
studio Nuy van Noort
Nieuwbouw Prinses Margrietschool Rotterdam
studio Nuy van Noort
Huisvesting Kansspelautoriteit, Den Haag
studio Nuy van Noort
Nicolaasschool, Rotterdam
studio Nuy van Noort
Villa Belluccelli
studio Nuy van Noort
huisvesting Inspectie van het Onderwijs
studio Nuy van Noort
Verbouwing kantoroor Rechtbank Assen
studio Nuy van Noort
MFC Doelum, Renkum
studio Nuy van Noort
Toon alles
Gerelateerde producten
Wienerberger gevelbakstenen
wienerberger
Andere Projecten
Staande naalddak voor het nieuwe Everton Stadium
BEMO SYSTEMS GmbH
Verlichting fietsenstalling Koopgoot Rotterdam
Loerakker led line
Efficiënt afvaltransport in ziekenhuis St. Jansdal
Stansz
Emco entreematten in museale architectuur
EMCO Benelux B.V.
Duurzame zwembadroosters voor zwemcentrum De Welle
EMCO Benelux B.V.
Gorter dakluiken op Spaarnwoude Park Hotel
Gorter Luiken BV
Veilige daktoegang nieuwbouw Emmapark
Gorter Luiken BV
Houten huis in de polder - WaxedWood Gold Color
Foreco Houtproducten
Ottho Amsterdam - geluidwerende balkonbeglazing
Solarlux Nederland B.V.
Groningse baksteenarchitectuur met Clickbrick Pure
wienerberger
Duurzame transformatie met groene gevel in Utrecht
Sempergreen
Low Carbon isolatieglas van Vandaglas voor Kavel F
Vandaglas b.v.
Ga naar het projecten-overzicht
Voor een optimale gebruikservaring plaatst Architectenweb functionele cookies. Wat de verschillende cookies precies doen leggen we uit in een
overzicht
. Cookies van social media kun je optioneel
aanzetten
.
Akkoord
Instellingen
Annuleren
OK
Sluiten
Doorgaan
Inloggen
Maak een gratis persoonlijk account aan
Feedback
Feedback
Wij horen graag jouw feedback. Laat je reactie achter en eventueel jouw e-mail adres.
Reactie
Verstuur