Projecten
Producten
Bedrijven
Vacatures
Agenda
Awards
Podcasts
more_horiz
Videos
Magazine
Favorieten
Profiel
Uitloggen
Abonneer je nu op onze nieuwsbrieven!
Abonneren
Nee, bedankt
Ja, denk met me mee rond de
materialisering van mijn project
Producten
entreegevel Nicolaasschool Rotterdam
Copyright: studio Nuy van Noort & VERO digital
gevel schoolplein Nicolaasschool Rotterdam
Copyright: studio Nuy van Noort & VERO digital
centraal meubel begane grond
Copyright: studio Nuy van Noort & VERO digital
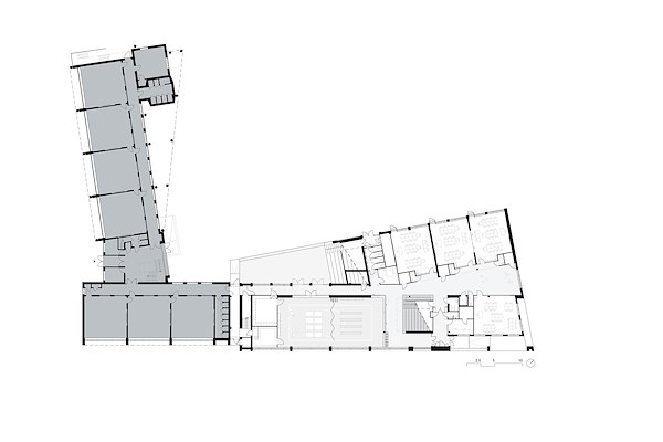
plankaart
Copyright: studio Nuy van Noort
begane grond
Copyright: studio Nuy van Noort
eerste verdieping
Copyright: studio Nuy van Noort
tweede verdieping
Copyright: studio Nuy van Noort
Producttags
AAN
UIT
Nicolaasschool, Rotterdam
15 april 2022
1
0
0
0
Eén school, één gebaar
De Nicolaasschool heeft zowel als locatie, maar ook als sociaal hart een centrale positie in de wijk Bospolder-Tussendijken. We houden de nieuwbouw bewust op subtiele wijze iets los van het bestaande gebouw, maar in uitstraling zorgen we er echter wel voor dat de gebouwen duidelijke familie zijn van elkaar en samen één school vormen. Het volume van de nieuwbouw steekt uit ten opzichte van oudbouw en we geven het een sterk accent op de hoek, zodat een duidelijke verbinding met het Park 1943 wordt gemaakt.
Een zachte aansluiting op het schoolplein
Met de nieuwbouw omarmen we het schoolplein. Doordat we afstand houden tot de omliggende kavels, creëren we een tweede toegang tot het plein. Door het volume stap voor stap per verdieping te verlagen naar de begane grond zorgen we voor een zachte landing op het schoolplein. Zo ontstaat een reeks groene terrassen die op een informele manier extra gebruiksruimte toevoegen aan het schoolplein. De grote tribunetrap biedt de kans om in de buitenlucht met de hele school bijeenkomsten te houden, om als een collegezaal buitenonderwijs te geven, of als speel- en ontmoetingsplek te gebruiken. Door een zorgvuldig en ambachtelijk gebruik van materialen, ontstaat een zeer tactiele, warme en levendige gevel die het karakter van de nieuwbouw versterkt. Door toepassing van een roodbruine baksteen sluiten we aan op het bestaande gebouw, maar door hier een tweede iets donkerdere kleur in te mixen krijgt het gebouw zijn eigen uitstraling.
Een heldere en flexibele structuur
We ontwerpen voor de Nicolaasschool een compacte nieuwbouw met een heldere structuur en logische routing, efficiënt en praktisch in het gebruik, met een warme en uitnodigende uitstraling gericht op de schaal van het kind. De structuur gaat uit van een doorlopende gang in het verlengde van de structuur van het bestaande gebouw, die aan het einde verbreedt tot een leerplein met lokalen aan weerszijden. Deze centraal gelegen plek op de begane grond is het nieuwe sociale hart van het gebouw waar iedereen elkaar tegenkomt, waar samengewerkt, geleerd en gespeeld kan worden. Via grote ramen is van buitenaf de warme sfeer en dynamiek van de school goed zichtbaar. Centraal in de ruimte verbindt een brede en uitnodigende tribunetrap de begane grond met de eerste verdieping. Door deze tribunetrap is het ontvangstgebied te transformeren tot een theater voor bijeenkomsten, voorstellingen en vieringen.
Stel jezelf kort voor! Dan weet het betreffende bedrijf wie hun model gedownload heeft.
Wil je niet bij elke download jouw gegevens in hoeven voeren?
Klik dan hier om in te loggen
.
Heb je nog geen account?
Maak dan hier een gratis account aan
.
Voornaam
Achternaam
E-mailadres
Downloaden
Wanneer je modellen downloadt op Architectenweb.nl worden relevante gegevens van jou – zoals jouw naam en e-mailadres – met het betreffende bedrijf gedeeld. Meer hierover lees je in ons
privacybeleid
.
Locatie
Trefwoorden
basisschool
leerplein
energieneutraal
studio nuy van noort
beng
rotterdam
kindercentrum
nuyvannoort
interieur
bso
leren
nuy van noort
architectuur
baksteen
scholen
tribune trap
studio Nuy van Noort
Neem contact op
Projectdata
Staat van realisatie
In ontwikkeling
Start ontwerpproces
2021
Plaats
Rotterdam
Meewerkende partijen
Architect
studio Nuy van Noort
Interieurarchitect
studio Nuy van Noort
Projectarchitect
Maartje Nuy, Joost van Noort
Ontwerpteam
Jelmer van der Zweep, Justyna Breczko
Opdrachtgever
Rotterdamse Vereniging voor Katholiek Onderwijs RVKO
Constructeur
Pieters Bouwtechniek B.V.
Adviseurs installaties E & W
De Blaay-Van den Bogaard
Projectmanagement
KWK huisvestingsregisseurs
Adviseur bouwfysica
moBius consult bv
Neem contact op met
studio Nuy van Noort
Je bent momenteel niet ingelogd. Hierdoor is het alleen mogelijk om meer informatie per e-mail op te vragen. Wil je liever gebeld worden of documentatie per post ontvangen?
Klik dan hier om in te loggen
.
Heb je nog geen account?
Maak dan hier een gratis account aan
.
Voornaam
Achternaam
E-mailadres
Opmerkingen
Bij iedere aanvraag worden relevante gegevens van jou gedeeld met het betreffende bedrijf. Meer hierover lees je in ons
privacybeleid
.
Ja, denk met me mee rond de
materialisering van mijn project
Meer projecten van studio Nuy van Noort
Transformatie Ichthus College Kampen
studio Nuy van Noort
Brandweerpost Bennebroek
studio Nuy van Noort
IKC ‘t Simmelink, Eibergen
studio Nuy van Noort
Nieuwbouw Prinses Margrietschool Rotterdam
studio Nuy van Noort
Huisvesting Kansspelautoriteit, Den Haag
studio Nuy van Noort
Villa Belluccelli
studio Nuy van Noort
huisvesting Inspectie van het Onderwijs
studio Nuy van Noort
Verbouwing kantoroor Rechtbank Assen
studio Nuy van Noort
MFC Doelum, Renkum
studio Nuy van Noort
Transformatie Ichthus College Kampen
studio Nuy van Noort
Brandweerpost Bennebroek
studio Nuy van Noort
IKC ‘t Simmelink, Eibergen
studio Nuy van Noort
Nieuwbouw Prinses Margrietschool Rotterdam
studio Nuy van Noort
Huisvesting Kansspelautoriteit, Den Haag
studio Nuy van Noort
Villa Belluccelli
studio Nuy van Noort
huisvesting Inspectie van het Onderwijs
studio Nuy van Noort
Verbouwing kantoroor Rechtbank Assen
studio Nuy van Noort
MFC Doelum, Renkum
studio Nuy van Noort
Toon alles
Andere Projecten
Almere De Laren
Schippers Architecten
Open vloergootsysteem voor The CubeHouse Amsterdam
HPL Systems BV
Nieuwe kantoorinrichting BDO Brabant
Kronospan
De Toerist in Breda
DUCO Ventilation & Sun Control
In ontwikkeling: IKC Strandeiland, Amsterdam
WEBO
Gorter op nieuwbouw sociale huurappartementen
Gorter Luiken BV
Prefab villa - Egmond aan Zee
Houthandel van Dam
Nieuwbouw poeliersbedrijf Van Berkel Kip
Ruys Groep
Nieuwbouw 107 appartementen Spoordok
Gorter Luiken BV
Appartementencomplex - Résidence Gooiland
Rodruza B.V.
Nieuwbouwwijk - Oosterparkkwartier
Rodruza B.V.
Nieuwbouwwijk - New Brooklyn
Rodruza B.V.
Ga naar het projecten-overzicht
Voor een optimale gebruikservaring plaatst Architectenweb functionele cookies. Wat de verschillende cookies precies doen leggen we uit in een
overzicht
. Cookies van social media kun je optioneel
aanzetten
.
Akkoord
Instellingen
Annuleren
OK
Sluiten
Doorgaan
Inloggen
Maak een gratis persoonlijk account aan
Feedback
Feedback
Wij horen graag jouw feedback. Laat je reactie achter en eventueel jouw e-mail adres.
Reactie
Verstuur