Abonneer je nu op onze nieuwsbrieven!
Abonneren
Nee, bedankt
Ja, denk met me mee rond de
materialisering van mijn project
Producten
dsm-firmenich, zuidoost-gevel, hoofdingang
Copyright: Norbert van Onna
dsm-firmenich, rijksmonument, secundair entree
Copyright: Norbert van Onna
dsm-firmenich, noordoost-gevel, achteringang en tuin boven de parkeergarage
Copyright: Norbert van Onna
dsm-firmenich, achteringang en tuin boven de parkeergarage
Copyright: Norbert van Onna
dsm-firmenich, entreezone met zicht op de nieuwbouw, atrium en het monument
Copyright: Norbert van Onna
dsm-firmenich, receptie in de entreezone met zichtlijn naar het dakterras
Copyright: Norbert van Onna
dsm-firmenich, centrale bar in atrium
Copyright: Norbert van Onna
dsm-firmenich, centrale bar in atrium, met zicht op het monument
Copyright: Norbert van Onna
dsm-firmenich, atrium
Copyright: Norbert van Onna
dsm-firmenich, atrium met zicht op de nieuwbouw
Copyright: Norbert van Onna
dsm-firmenich, hybride werken, 1e verdieping
Copyright: Norbert van Onna
dsm-firmenich, bibliotheek, 1e verdieping
Copyright: Norbert van Onna
dsm-firmenich, hybride werken, 1e verdieping
Copyright: Norbert van Onna
dsm-firmenich, monumentaal trappenhuis
Copyright: Norbert van Onna
dsm-firmenich, zuidoost-gevel, hoofdingang
Copyright: Norbert van Onna
dsm-firmenich, zuidwest-gevel
Copyright: Norbert van Onna
dsm-firmenich, noordwest-gevel
Copyright: Norbert van Onna
dsm-firmenich, plattegrond gebouwsituatie
Copyright: Broekbakema
dsm-firmenich, plattegrond, kelder
Copyright: Broekbakema
dsm-firmenich, indelingsplattegrond, begane grond
Copyright: Fokkema & Partners Architecten, Broekbakema
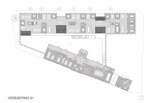
dsm-firmenich, indelingsplattegrond, 1e verdieping
Copyright: Fokkema & Partners Architecten, Broekbakema
dsm-firmenich, indelingsplattegrond, 2e verdieping
Copyright: Fokkema & Partners Architecten, Broekbakema
Procesfoto: bioscoop gesloopt, rijksmonument zichtbaar
Copyright: Aron Nijs
Procesfoto: bioscoop gesloopt, rijksmonument zichtbaar
Copyright: Aron Nijs
Foto van vóór de bouw: bioscoop en rijksmonument
Copyright: Onbekend
ProducttagsAANUIT

dsm-firmenich: een Paris Proof rijksmonument

21 juni 2024
Hoe komen verleden, heden en toekomst samen in het nieuwe hoofdkantoor van dsm-firmenich? De nieuwe thuisbasis ligt in het centrum van Maastricht, midden in de bruisende stadswijk Wyck. De gezonde- en groene werkomgeving met ‘clubhuisgevoel’ werd in maart 2024 opgeleverd als onderbouwing van de hybride manier van werken van het bedrijf. De nieuwbouw voldoet aan Breeam Outstanding certificering en het rijksmonument is de eerste transformatie in Nederland die Paris Proof behaalt. Bovendien voldoet het hoofdkantoor aan de Well Platinum-norm. Om de historische essentie op natuurlijke wijze te integreren met moderne architectuur, is er een complexe technische puzzel gelegd.

Lichte- en open omgeving 
Als vernieuwers in voeding, gezondheid en beauty, ontwikkelt, produceert en combineert dsm-firmenich vitale voedingsstoffen, smaken en geuren om de groeiende wereldbevolking te laten floreren. Het nieuwe hoofdkantoor van 10.740 BVO is een vertaling van de cultuur van dsm-firmenich en een onderbouwing van de hybride manier van werken van het bedrijf. In de lichte en clubhuisachtige open omgeving kunnen mensen elkaar op diverse manieren ontmoeten en samenwerken. De prominente locatie tussen de rivier en het centraal station is goed bereikbaar en markeert de historische band met de regio als bakermat van dsm-firmenich.

Ensemble oud- en nieuw 
Het streven is altijd geweest om verleden, heden en de toekomst met elkaar te verbinden. Het ensemble van twee gebouwen bestaat uit een oude Ambachtsschool en een 3-laags kantoornieuwbouw boven de bestaande parkeergarage van een voormalige bioscoop. Geïnspireerd door de verticale raampartijen van het monument, vormt het gevelontwerp van de nieuwbouw een sterk ritme van verticale lamellen op één plint, waardoor het atrium en de kantoren een samenhangende en herkenbare identiteit krijgen. De implementatie van zonnepanelen aan de gevels en op het dak, gepaard met slimme gebouwsensoren maken dit ontwerp ultra duurzaam.

Historische grandeur 
Het neorenaissancestijl Rijksmonument uit 1911 is in historische grandeur en sfeer gerenoveerd. Een eeuw geleden opende een technische ambachtsschool voor jongens hier haar deuren. De gebouwstructuur met hoge praktijklokalen, gangen en hoofdtrappen is bewaard gebleven en historische details zoals de draagbalken van het dak, zijn geaccentueerd. Daarbij heeft het pand een technisch-innovatieve opwaardering ondergaan om te voldoen aan de Paris Proof ‘carbon-neutral’ ambities. Het combineren van de verschillende eisen was een complexe puzzel. Zo staan de gevraagde ventilatievouden van de Breeam Outstanding certificering op gespannen voet met de mogelijkheden binnen een rijksmonument.

Clubhuisgevoel 
Het atrium is als hart van het clubhuis de ideale plek voor ontmoeting. Aan de Wilhelminasingel ligt de uitnodigende, groene hoofdentree. Hier wandel je via een trappartij met hellingbaan en grote boombak het atrium binnen. In één oogopslag ervaar je hoe de grandeur van het Rijksmonument en de nieuwbouw samenkomen. Dit is gerealiseerd door bouwkundige ingrepen zoals een royale open trap, galerijen, balkons en een brug. Daarnaast draagt de harmonieuze afwerking van de houten nieuwbouwgevel en de monumentale bakstenen gevel hieraan bij. Het atrium heeft een laagdrempelige grand-café achtige sfeer. Door gebruik te maken van ronde vormen, warme en natuurlijke materialen vinden de elementen aansluiting bij en versterken ze het casco-ontwerp. Als duurzaam aspect is het meubilair zoveel als mogelijk hergebruikt en geoogst. Er zijn emissie-vrije materialen gebruikt volgens de Well Platinum-norm en de verwerking van het maatwerk is modulair en demontabel. Op de werkvloeren heerst een huiskamerachtige sfeer, waarbij elke verdieping een unieke kleursamenstelling heeft, wat de oriëntatie voor de gebruiker overzichtelijk maakt.

Een groene omgeving voor iedereen 
De open opzet van het dsm-firmenich hoofdkantoor geeft een impuls aan de bedrijvigheid in de stadswijk ‘Wyck’. De nieuwbouw-buitengevel heeft een subtiele differentiatie met een ‘setback’ op de 3e laag. Met groene patio’s aan de westgevel zorgt dit voor een natuurlijke aansluiting op het karakter van de omringende buurt.
Het gebouw biedt op veel plekken contact met ‘buiten’, zoals bij het dakterras boven de hoofdentree met een wijds uitzicht. Omdat de werkplekken voornamelijk aan de buitengevel liggen, hebben medewerkers overal toegang tot veel natuurlijk daglicht. In het atrium zijn veel natuurlijke elementen toegevoegd zoals plantgroepen met bomen om het welzijn en het milieubewustzijn van de gebruikers te bevorderen.
Wanneer je de achtertuin aan de noordzijde betreedt, zie je dat er natuur-inclusief is gebouwd, met voorzieningen voor vleermuizen, gierzwaluwen, egels, marters en bijen. Hierdoor is het een groene plek voor de wijk en voor de dieren die er leven.

Uiteindelijk heeft de complexe opgave, met hoge duurzame ambities voor het gebouw, de omgeving en met respect voor het rijksmonument, geleid tot een uniek dsm-firmenich hoofdkantoor dat vooruitgang tot leven brengt.


Stel jezelf kort voor! Dan weet het betreffende bedrijf wie hun model gedownload heeft.
Wil je niet bij elke download jouw gegevens in hoeven voeren?
Klik dan hier om in te loggen.

Heb je nog geen account? Maak dan hier een gratis account aan.
Voornaam
Achternaam
E-mailadres
Downloaden
Wanneer je modellen downloadt op Architectenweb.nl worden relevante gegevens van jou – zoals jouw naam en e-mailadres – met het betreffende bedrijf gedeeld. Meer hierover lees je in ons privacybeleid.

Locatie

Neem contact op met Fokkema & Partners Architecten

Je bent momenteel niet ingelogd. Hierdoor is het alleen mogelijk om meer informatie per e-mail op te vragen. Wil je liever gebeld worden of documentatie per post ontvangen? Klik dan hier om in te loggen.
Heb je nog geen account? Maak dan hier een gratis account aan.
Voornaam
Achternaam
E-mailadres
Opmerkingen
Bij iedere aanvraag worden relevante gegevens van jou gedeeld met het betreffende bedrijf. Meer hierover lees je in ons privacybeleid.
Ja, denk met me mee rond de
materialisering van mijn project

Meer projecten van Fokkema & Partners Architecten

Fokkema & Partners Architecten
Fokkema & Partners Architecten
Fokkema & Partners Architecten
Fokkema & Partners Architecten
Fokkema & Partners Architecten
Fokkema & Partners Architecten
Fokkema & Partners Architecten
Fokkema & Partners Architecten
Fokkema & Partners Architecten
Fokkema & Partners Architecten
Fokkema & Partners Architecten
Fokkema & Partners Architecten
Fokkema & Partners Architecten
Fokkema & Partners Architecten
Fokkema & Partners Architecten
Fokkema & Partners Architecten
Fokkema & Partners Architecten
Fokkema & Partners Architecten
Fokkema & Partners Architecten
Fokkema & Partners Architecten
Fokkema & Partners Architecten
Fokkema & Partners Architecten
Fokkema & Partners Architecten
Fokkema & Partners Architecten
Fokkema & Partners Architecten
Fokkema & Partners Architecten
Fokkema & Partners Architecten
Fokkema & Partners Architecten
Fokkema & Partners Architecten
Fokkema & Partners Architecten
Toon alles

Gerelateerde producten

Gerelateerde bedrijven

ATAG Nederland
KUBUS | Specialist in Archicad
SAPA
Reynaers Aluminium Nederland
Jansen
SAB-profiel bv
Aliplast Aluminium Systems
Kingspan Light & Air
ALUCOBOND®
Caparol
Tarkett BV
Kawneer
Grohe Nederland B.V.
Malaysian Timber Council
OCS | Office Cabling Systems
Swisspearl Nederland
Forster Nederland N.V.
VELUX Commercial Benelux B.V.
Sempergreen
Houthandel van Dam
Aluprof Nederland BV
QbiQ Wall Systems
Forbo Flooring
Schüco Nederland
Cedral
Sto Isoned bv
Triflex bv
Gorter Luiken BV
wienerberger
DUCO Ventilation & Sun Control
BEWI IsoBouw
ROCKWOOL B.V.
Mview+
Rockfon (ROCKWOOL B.V.)
Gira Nederland B.V.
Kingspan Geïsoleerde Panelen
GEZE Benelux  B.V.
Renson
Metaglas Groep
ABB | Busch-Jaeger
Jung | Hateha B.V.
Knauf B.V.
Saint-Gobain Glass Benelux
Faay Vianen B.V.
objectflor
Boon Edam Nederland B.V.
Hunter Douglas Architectural
VOLA Nederland BV
Forbo Eurocol Nederland B.V.
EQUITONE gevelpanelen
Holonite B.V.
Tata Steel Colorcoat®
Architectenweb
Over ons
Contact

© 2002 - 2026 Architectenweb BV / Voorwaarden / Privacy / Disclaimer / Sitemap
Annuleren
OK
Sluiten
Doorgaan
Inloggen
Maak een gratis persoonlijk account aan