Abonneer je nu op onze nieuwsbrieven!
Abonneren
Nee, bedankt
Ja, denk met me mee rond de
materialisering van mijn project
Producten
Upfield FSC - ligt op de WUR, of ookwel Food Valley
Copyright: Stijn Poelstra
Upfield FSC - L-vormig gebouw
Copyright: Stijn Poelstra
Upfield FSC - groene Universiteitscampus van Wageningen (WUR)
Copyright: Stijn Poelstra
Upfield FSC - glazen bouwdeel aan de voorzijde
Copyright: Stijn Poelstra
Upfield FSC - entree met brede trap en hellingbaan
Copyright: Stijn Poelstra
Upfield FSC - gevelraster aan de achterzijde waarlangs klimplanten groeien mettertijd
Copyright: Stijn Poelstra
Upfield FSC - aluminium gevel, afgewerkt met een houten raster
Copyright: Stijn Poelstra
Upfield FSC - kantoorvloer; verkeersruimtes met een sociale functie
Copyright: Stijn Poelstra
Upfield FSC - proefkeuken
Copyright: Stijn Poelstra
Upfield FSC - inspringen van het bouwvolume
Copyright: Stijn Poelstra
Upfield FSC - mettertijd bekleedt een plantenwaterval de voorgevel
Copyright: Stijn Poelstra
Upfield FSC - weelderig begroeid voorplein, ontworpen door landschapsarchitect Loos Van Vliet
Copyright: Stijn Poelstra
Upfield FSC - entreezone met product-vitrine, interactieve ontvangstbalie en tevens koffiebar
Copyright: Stijn Poelstra
Upfield FSC - dubbelhoge entreehal
Copyright: Stijn Poelstra
Upfield FSC - restaurant
Copyright: Stijn Poelstra
Upfield FSC - alzijdig gevelbeeld
Copyright: Stijn Poelstra
Upfield FSC - variatie door verspringende geveltextuur
Copyright: Stijn Poelstra
Upfield FSC - kantoren en laboratoria zijn door zichtlijnen verbonden
Copyright: Stijn Poelstra
Upfield FSC - pilot plant
Copyright: Stijn Poelstra
Upfield FSC - beweegbare lamellen-frames die schaduw bieden
Copyright: Stijn Poelstra
Upfield FSC - infographic BREEAM Outstanding certficering
Copyright: Fokkema & Partners Architecten
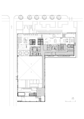
Plattegrond Upfield - begane grond
Copyright: Fokkema & Partners Architecten
ProducttagsAANUIT

Food Science Centre Upfield; een natuurlijk geheel

23 juni 2023
Op de Universiteitscampus Wageningen bouwde Fokkema & Partners het Food Science Centre van het bedrijf Upfield, dat onder het motto We are Generation Plant volledig plantaardige boter produceert. Een gebouw dat deze duurzame missie uitdraagt, met een open interieur dat ontmoeting en kennisuitwisseling stimuleert, een gevel die mettertijd overgroeid zal worden door planten, en BREEAM Outstanding certficering.

Inside-out, outside-in
Eind 2019 besloot Upfield om zijn Research & Development-kantoor te verplaatsen van Rotterdam naar de Universiteitscampus van Wageningen (WUR), ook wel bekend als Food Valley, waar het bedrijf samenwerking zoekt met start-ups en de universiteit. Fokkema & Partners werd gevraagd om op een centraal gelegen L-vormig kavel een gebouw te ontwerpen met 110 kantoorwerkplekken, laboratoria, een proeffabriek, proefkeukens en een bedrijfsrestaurant. Projectarchitect Twan Steeghs: ‘Upfield is het eerste complete gebouwontwerp waarin we onze duurzaamheidsambities van de gevel tot en met het meubilair hebben kunnen realiseren. Een maatpak waarin interieur en exterieur naadloos samengaan, bedacht vanuit de beleving van de gebruiker en de ervaring van de groene campus. Dat heeft geleid tot een vriendelijke, groene architectuur, die zich open opstelt naar zijn omgeving. We hebben de producten en productieprocessen letterlijk in de etalage gezet.’

Heldere organisatie
Het gebouw, opgebouwd uit een staalconstructie en prefab betonnen vloeren, is rationeel opgezet. In het glazen bouwdeel aan de voorzijde bevinden zich de kantoorfuncties, haaks daarop staat de proeffabriek met expeditie, in de oksel van het gebouw vind je de liften en trappen, half verdiept eronder ligt de parkeergarage. De installaties zijn weggewerkt in de - teruggelegen – bovenste verdieping. Het geheel is omkleed met een aluminium gevel, afgewerkt met een houten raster waarlangs planten groeien. Bezoekers komen vanaf de campus via een weelderig begroeid voorplein over een brede trap met hellingbaan binnen. De dubbelhoge entreehal met houten ontvangstbalie biedt direct doorzicht richting de proefkeuken, het bedrijfsrestaurant en de bovengelegen kantoren, met weids uitzicht over de campus. Grote tafels in de vorm van snijplanken verwijzen met een knipoog naar de plantaardige boter die Upfield ontwikkelt.

Ontmoeten en bewegen
Door de heldere looplijnen, waarbij trappen consequent in het zicht zijn geplaatst, vind je als vanzelf je weg door het gebouw. Door de trappen te koppelen aan collectieve functies zoals pantry’s en vergaderplekken, krijgen verkeersruimtes ook een sociale functie, en is een werkomgeving gecreëerd die uitnodigt tot bewegen en ontmoeten. Vanuit de kantoren en laboratoria heb je op verschillende plekken doorzicht richting de fabriek en vice versa. Steeghs: ‘Door het onderlinge contact ervaar je het proces van heen en weer denken, proeven, aanpassen, onderzoeken; dat je samen aan de producten van de toekomst werkt.’ De kantoorvloeren zijn flexibel indeelbaar, wat bijdraagt aan de duurzaamheid van het gebouw, dat een BREEAM Outstanding certficering heeft.

Natuurlijke expressie
‘Hoe geef je uitdrukking aan een duurzame manier van bouwen, zonder daarbij te vervallen in dogmatisch vorm- en materiaalgebruik? Die vraag was een belangrijk vertrekpunt voor het architectonisch ontwerp’, vertelt Diederik Fokkema. ‘Uit onderzoek naar visuele waarneming blijkt dat het menselijk oog ingesteld is op het waarnemen van totaalvormen, en daarna pas inzoomt op details. Als je een foto bekijkt van gebouwen in Hong Kong, ingezoomd op de eindeloze repetitie van balkons, blijkt het oog niet in staat om met die details een totaalbeeld samen te stellen. Dat geeft stress. Maar als we een beeld van aan bladerdek zien, herkennen we direct de boom; bladeren en boom vormen een natuurlijk geheel, zo’n beeld geeft rust. Dat is de natuurlijke expressie waarnaar we hebben gezocht bij dit project.’

Groener groeien
Het houten raster dat rondom het gebouw is ontworpen, zorgt voor een samenhangend, alzijdig gevelbeeld dat tegelijk gevarieerd oogt door de verschillende ‘vertakkingen’. Op gezette plaatsen verspringt het raster, waardoor dubbelhoge en -brede raampartijen ontstaan, met bijzondere doorzichten. In het raster zijn beweegbare lamellen-frames geplaatst, die de gevel textuur geven, en schaduw bieden. Vanaf het balkon op de tweede verdieping groeien hangplanten als een waterval naar beneden. Op de gesloten geveldelen zijn stalen roosters aangebracht waarlangs klimplanten omhoog groeien. Met de seizoenen zal het gebouw van kleur veranderen, met de jaren zal het steeds groener ogen; een aanlokkelijk toekomstperspectief!

Projecttekst: Kirsten Hannema 

 

Stel jezelf kort voor! Dan weet het betreffende bedrijf wie hun model gedownload heeft.
Wil je niet bij elke download jouw gegevens in hoeven voeren?
Klik dan hier om in te loggen.

Heb je nog geen account? Maak dan hier een gratis account aan.
Voornaam
Achternaam
E-mailadres
Downloaden
Wanneer je modellen downloadt op Architectenweb.nl worden relevante gegevens van jou – zoals jouw naam en e-mailadres – met het betreffende bedrijf gedeeld. Meer hierover lees je in ons privacybeleid.

Locatie

Neem contact op met Fokkema & Partners Architecten

Je bent momenteel niet ingelogd. Hierdoor is het alleen mogelijk om meer informatie per e-mail op te vragen. Wil je liever gebeld worden of documentatie per post ontvangen? Klik dan hier om in te loggen.
Heb je nog geen account? Maak dan hier een gratis account aan.
Voornaam
Achternaam
E-mailadres
Opmerkingen
Bij iedere aanvraag worden relevante gegevens van jou gedeeld met het betreffende bedrijf. Meer hierover lees je in ons privacybeleid.
Ja, denk met me mee rond de
materialisering van mijn project

Meer projecten van Fokkema & Partners Architecten

Fokkema & Partners Architecten
Fokkema & Partners Architecten
Fokkema & Partners Architecten
Fokkema & Partners Architecten
Fokkema & Partners Architecten
Fokkema & Partners Architecten
Fokkema & Partners Architecten
Fokkema & Partners Architecten
Fokkema & Partners Architecten
Fokkema & Partners Architecten
Fokkema & Partners Architecten
Fokkema & Partners Architecten
Fokkema & Partners Architecten
Fokkema & Partners Architecten
Fokkema & Partners Architecten
Fokkema & Partners Architecten
Fokkema & Partners Architecten
Fokkema & Partners Architecten
Fokkema & Partners Architecten
Fokkema & Partners Architecten
Fokkema & Partners Architecten
Fokkema & Partners Architecten
Fokkema & Partners Architecten
Fokkema & Partners Architecten
Fokkema & Partners Architecten
Fokkema & Partners Architecten
Fokkema & Partners Architecten
Fokkema & Partners Architecten
Fokkema & Partners Architecten
Fokkema & Partners Architecten
Toon alles

Gerelateerde producten

ATAG Nederland
KUBUS | Specialist in Archicad
SAPA
Reynaers Aluminium Nederland
Jansen
SAB-profiel bv
Aliplast Aluminium Systems
Kingspan Light & Air
ALUCOBOND®
Caparol
Tarkett BV
Kawneer
Grohe Nederland B.V.
Malaysian Timber Council
OCS | Office Cabling Systems
Swisspearl Nederland
Forster Nederland N.V.
VELUX Commercial Benelux B.V.
Sempergreen
Houthandel van Dam
Aluprof Nederland BV
QbiQ Wall Systems
Forbo Flooring
Schüco Nederland
Cedral
Sto Isoned bv
Triflex bv
Gorter Luiken BV
wienerberger
DUCO Ventilation & Sun Control
BEWI IsoBouw
ROCKWOOL B.V.
Mview+
Rockfon (ROCKWOOL B.V.)
Gira Nederland B.V.
Kingspan Geïsoleerde Panelen
GEZE Benelux  B.V.
Renson
Metaglas Groep
ABB | Busch-Jaeger
Jung | Hateha B.V.
Knauf B.V.
Saint-Gobain Glass Benelux
Faay Vianen B.V.
objectflor
Boon Edam Nederland B.V.
Hunter Douglas Architectural
VOLA Nederland BV
Forbo Eurocol Nederland B.V.
EQUITONE gevelpanelen
Holonite B.V.
Tata Steel Colorcoat®
Architectenweb
Over ons
Contact

© 2002 - 2026 Architectenweb BV / Voorwaarden / Privacy / Disclaimer / Sitemap
Annuleren
OK
Sluiten
Doorgaan
Inloggen
Maak een gratis persoonlijk account aan