Projecten
Producten
Bedrijven
Vacatures
Agenda
Awards
Podcasts
more_horiz
Videos
Magazine
Thema's
Favorieten
Profiel
Uitloggen
Producten
WZR Leerlab, leerlab paviljoen
Copyright: Fokkema & Partners Architecten
WZR Leerlab, buitenterras
Copyright: Fokkema & Partners Architecten
WZR Leerlab, tuin-gevel
Copyright: Fokkema & Partners Architecten
WZR Leerlab, entree-gevel
Copyright: Fokkema & Partners Architecten
WZR Leerlab, seminarruimte
Copyright: Fokkema & Partners Architecten
WZR Leerlab, opleidingslokaal
Copyright: Fokkema & Partners Architecten
WZR Leerlab, ontvangstgebied
Copyright: Fokkema & Partners Architecten
WZR Leerlab, bouwfoto, gevel
Copyright: Fokkema & Partners Architecten
WZR Leerlab, bouwfoto, gevel in aanbouw
Copyright: Fokkema & Partners Architecten
WZR Leerlab, bouwfoto, constructie in aanbouw
Copyright: Fokkema & Partners Architecten
WZR Leerlab, bouwfoto, interieur
Copyright: Fokkema & Partners Architecten
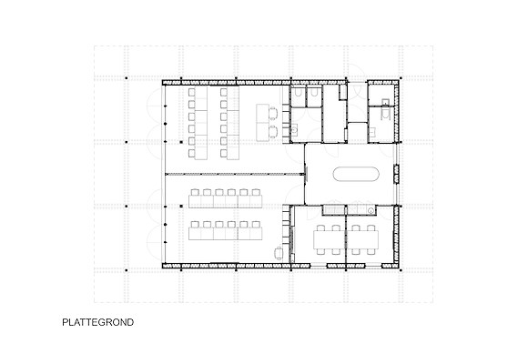
WZR Leerlab, plattegrond begane grond
Copyright: Fokkema & Partners Architecten
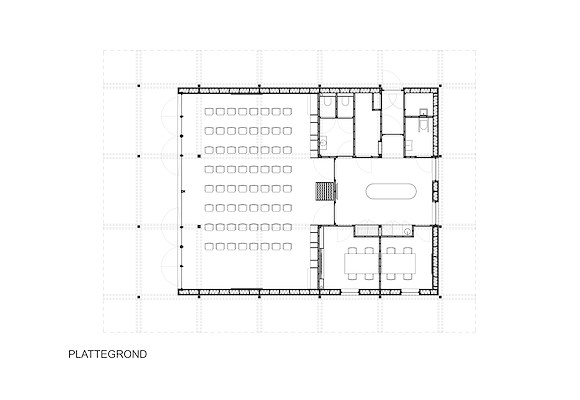
WZR Leerlab, plattegrond begane grond
Copyright: Fokkema & Partners Architecten
WZR Leerlab, gevel aanzichten
Copyright: Fokkema & Partners Architecten
WZR Leerlab, gevel aanzichten
Copyright: Fokkema & Partners Architecten
WZR Leerlab, doorsnedes
Copyright: Fokkema & Partners Architecten
Producttags
AAN
UIT
Leerlab Werkzaak Rivierenland
18 juni 2024
0
0
0
0
Na een succesvolle samenwerking bij een eerdere renovatie, hebben Werkzaak Rivierenland en Fokkema & Partners hun krachten opnieuw gebundeld om een gebouw voor lezingen en vergaderzalen te ontwerpen. Het WZR-Leerlab vormt een harmonieuze verbinding tussen de hortus en de bestaande gevel van het hoofdgebouw en gaat een stap verder in ons eerdere ontwerp en onze duurzaamheidsdoelstellingen.
Houten structuur
Het paviljoen bestaat uit een houten structuur en gevel. De structuur, gemaakt van lariks kolommen en balken, is aan de buitenkant van het gebouw geplaatst, waardoor het paviljoen niet alleen verbonden is met het hoofdgebouw, maar ook een naadloze overgang vormt tussen binnen en buiten. De houten structuur, samen met de geprefabriceerde houtskeletgevel, minimaliseert de ecologische impact van het gebouw.
Eenheid met de natuur
We hebben een vloeiende overgang gecreëerd tussen het paviljoen en de tuin. Een groen dak, in combinatie met de mogelijkheid voor klimplanten om op de gevel te groeien, creëeren milieuvriendelijke en natuurinclusieve toevoeging aan de tuin. Het doelbewuste gebruik van hout in zowel de buiten- als binnenafwerking, samen met strategisch geplaatste ramen en een grote luifel, hebben als doel de lijnen tussen binnen- en buitenruimtes vervagen, waardoor een visueel aangename esthetiek ontstaat en een gevoel van eenheid met de natuur wordt bevorderd.
Felxibiliteit binnen en buiten
Een centrale pantry in het midden van het gebouw organiseert de zalen, minimaliseert de circulatieruimte en optimaliseert de plattegrond. De flexibele wand tussen de collegezalen zorgt voor flexibiliteit voor verschillende soorten gebruik en groepsgroottes. Het interieur is aanpasbaar en komt tegemoet aan veranderende behoeften in de toekomst. Een luifel met lamellen speelt met textuur en tinten, die schaduw biedt in de zomer en licht doorlaat in de winter. Deze efficiënte oplossingen verkleinen de voetafdruk van het gebouw, maken gebruik van natuurlijke bronnen en zorgen voor een effectief gebruik van materialen. Ons ontwerp is gericht op het harmoniseren van functionaliteit, duurzaamheid en natuur.
Stel jezelf kort voor! Dan weet het betreffende bedrijf wie hun model gedownload heeft.
Wil je niet bij elke download jouw gegevens in hoeven voeren?
Klik dan hier om in te loggen
.
Heb je nog geen account?
Maak dan hier een gratis account aan
.
Voornaam
Achternaam
E-mailadres
Downloaden
Wanneer je modellen downloadt op Architectenweb.nl worden relevante gegevens van jou – zoals jouw naam en e-mailadres – met het betreffende bedrijf gedeeld. Meer hierover lees je in ons
privacybeleid
.
Locatie
Trefwoorden
leerlab
duurzaam
interieur
nieuwbouw
houtbouw
paviljoen
Fokkema & Partners Architecten
Neem contact op
Projectdata
Staat van realisatie
In ontwikkeling
Start ontwerpproces
2021
Start bouw
2021
Oplevering
2024
Plaats
Geldermalsen
Bruto m
2
200
Meewerkende partijen
Architect
Fokkema & Partners Architecten
Interieurarchitect
Fokkema & Partners Architecten
Projectarchitect
Marieke van Schaaijk, Twan Steegs, Robert Roohé
Opdrachtgever
Werkzaak Rivierenland
Aannemer
JCVANKESSEL Architectuur
Adviseurs installaties E & W
WTB-Buro
Visualisaties
Fokkema & Partners Architecten
Projectmanagement
People & Bricks
Adviseur bouwfysica
IMD Raadgevend Ingenieurs
Interieurbouwer
Bouwmensen Rivierengebied B.V.
Leveranciers
Vilt wanden
I-did
Deursysteem
Schüco Nederland BV
Plafond en plaatmateriaal
PLANQ
Los meubilair
Casala
Neem contact op met
Fokkema & Partners Architecten
Je bent momenteel niet ingelogd. Hierdoor is het alleen mogelijk om meer informatie per e-mail op te vragen. Wil je liever gebeld worden of documentatie per post ontvangen?
Klik dan hier om in te loggen
.
Heb je nog geen account?
Maak dan hier een gratis account aan
.
Voornaam
Achternaam
E-mailadres
Opmerkingen
Bij iedere aanvraag worden relevante gegevens van jou gedeeld met het betreffende bedrijf. Meer hierover lees je in ons
privacybeleid
.
Ja, denk met me mee rond de
materialisering van mijn project
Meer projecten van Fokkema & Partners Architecten
HabrakenRutten
Fokkema & Partners Architecten
Henkel - ontwerp als een patchwork
Fokkema & Partners Architecten
dsm-firmenich: een Paris Proof rijksmonument
Fokkema & Partners Architecten
Twee monumenten samengevoegd tot kantoorvilla
Fokkema & Partners Architecten
Het Cloetta hoofdkantoor: de kracht van plezier
Fokkema & Partners Architecten
EDGE Technologies Amsterdam, een no-office concept
Fokkema & Partners Architecten
Edge Amsterdam West
Fokkema & Partners Architecten
Masman Bosman en Wolkers & Co
Fokkema & Partners Architecten
Paleis van Justitie, Den Bosch
Fokkema & Partners Architecten
NN Event Space & Co-working Spaces
Fokkema & Partners Architecten
De Droogbak - Clifford Chance
Fokkema & Partners Architecten
Food Science Centre Upfield; een natuurlijk geheel
Fokkema & Partners Architecten
The Cath, from non-space to sense of place
Fokkema & Partners Architecten
Duurzame renovatie voor de Hotelschool
Fokkema & Partners Architecten
Spraakmakend 100% circulair interieur voor NN
Fokkema & Partners Architecten
Advocatenkantoor in de Walvis, Amsterdam
Fokkema & Partners Architecten
Unilever Foods Innovation Centre
Fokkema & Partners Architecten
Lianne Tio Luxury
Fokkema & Partners Architecten
Showroom, laboratorium en werkomgeving voor Betap
Fokkema & Partners Architecten
Advocatenkantoor HabrakenRutten
Fokkema & Partners Architecten
Nieuw interieur voor een karakteristieke Raadzaal
Fokkema & Partners Architecten
Stralend interieur voor het advocatenkantoor CMS
Fokkema & Partners Architecten
Nidera
Fokkema & Partners Architecten
Hospitality Campus ROC Mondriaan
Fokkema & Partners Architecten
OC&C Strategy Consultants
Fokkema & Partners Architecten
Stek Law
Fokkema & Partners Architecten
Liander
Fokkema & Partners Architecten
Egon Zehnder
Fokkema & Partners Architecten
Raadhuis Krimpen aan den IJssel
Fokkema & Partners Architecten
Deloitte & AKD
Fokkema & Partners Architecten
Tuinstadhuis Amsterdam
Fokkema & Partners Architecten
Smurfit Kappa
Fokkema & Partners Architecten
Unilever Brand Hub Europe
Fokkema & Partners Architecten
Het Havengebouw
Fokkema & Partners Architecten
Meijendel
Fokkema & Partners Architecten
TU Delft Faculteit Bouwkunde
Fokkema & Partners Architecten
Loft Antwerpen
Fokkema & Partners Architecten
Landhuis te Almen
Fokkema & Partners Architecten
HabrakenRutten
Fokkema & Partners Architecten
Henkel - ontwerp als een patchwork
Fokkema & Partners Architecten
dsm-firmenich: een Paris Proof rijksmonument
Fokkema & Partners Architecten
Twee monumenten samengevoegd tot kantoorvilla
Fokkema & Partners Architecten
Het Cloetta hoofdkantoor: de kracht van plezier
Fokkema & Partners Architecten
EDGE Technologies Amsterdam, een no-office concept
Fokkema & Partners Architecten
Edge Amsterdam West
Fokkema & Partners Architecten
Masman Bosman en Wolkers & Co
Fokkema & Partners Architecten
Paleis van Justitie, Den Bosch
Fokkema & Partners Architecten
NN Event Space & Co-working Spaces
Fokkema & Partners Architecten
De Droogbak - Clifford Chance
Fokkema & Partners Architecten
Food Science Centre Upfield; een natuurlijk geheel
Fokkema & Partners Architecten
The Cath, from non-space to sense of place
Fokkema & Partners Architecten
Duurzame renovatie voor de Hotelschool
Fokkema & Partners Architecten
Spraakmakend 100% circulair interieur voor NN
Fokkema & Partners Architecten
Advocatenkantoor in de Walvis, Amsterdam
Fokkema & Partners Architecten
Unilever Foods Innovation Centre
Fokkema & Partners Architecten
Lianne Tio Luxury
Fokkema & Partners Architecten
Showroom, laboratorium en werkomgeving voor Betap
Fokkema & Partners Architecten
Advocatenkantoor HabrakenRutten
Fokkema & Partners Architecten
Nieuw interieur voor een karakteristieke Raadzaal
Fokkema & Partners Architecten
Stralend interieur voor het advocatenkantoor CMS
Fokkema & Partners Architecten
Nidera
Fokkema & Partners Architecten
Hospitality Campus ROC Mondriaan
Fokkema & Partners Architecten
OC&C Strategy Consultants
Fokkema & Partners Architecten
Stek Law
Fokkema & Partners Architecten
Liander
Fokkema & Partners Architecten
Egon Zehnder
Fokkema & Partners Architecten
Raadhuis Krimpen aan den IJssel
Fokkema & Partners Architecten
Deloitte & AKD
Fokkema & Partners Architecten
Tuinstadhuis Amsterdam
Fokkema & Partners Architecten
Smurfit Kappa
Fokkema & Partners Architecten
Unilever Brand Hub Europe
Fokkema & Partners Architecten
Het Havengebouw
Fokkema & Partners Architecten
Meijendel
Fokkema & Partners Architecten
TU Delft Faculteit Bouwkunde
Fokkema & Partners Architecten
Loft Antwerpen
Fokkema & Partners Architecten
Landhuis te Almen
Fokkema & Partners Architecten
Toon alles
Gerelateerde producten
Schüco Deursysteem ADS 65 HD
Zeer stabiel deursysteem - geoptimaliseerd voor intensief gebruik
Schüco Nederland BV
Andere Projecten
Staande naalddak voor het nieuwe Everton Stadium
BEMO SYSTEMS GmbH
Verlichting fietsenstalling Koopgoot Rotterdam
Loerakker led line
Efficiënt afvaltransport in ziekenhuis St. Jansdal
Stansz
Emco entreematten in museale architectuur
EMCO Benelux B.V.
Duurzame zwembadroosters voor zwemcentrum De Welle
EMCO Benelux B.V.
Gorter dakluiken op Spaarnwoude Park Hotel
Gorter Luiken BV
Veilige daktoegang nieuwbouw Emmapark
Gorter Luiken BV
Houten huis in de polder - WaxedWood Gold Color
Foreco Houtproducten
Ottho Amsterdam - geluidwerende balkonbeglazing
Solarlux Nederland B.V.
Groningse baksteenarchitectuur met Clickbrick Pure
wienerberger
Duurzame transformatie met groene gevel in Utrecht
Sempergreen
Low Carbon isolatieglas van Vandaglas voor Kavel F
Vandaglas b.v.
Ga naar het projecten-overzicht
Voor een optimale gebruikservaring plaatst Architectenweb functionele cookies. Wat de verschillende cookies precies doen leggen we uit in een
overzicht
. Cookies van social media kun je optioneel
aanzetten
.
Akkoord
Instellingen
Annuleren
OK
Sluiten
Doorgaan
Inloggen
Maak een gratis persoonlijk account aan
Feedback
Feedback
Wij horen graag jouw feedback. Laat je reactie achter en eventueel jouw e-mail adres.
Reactie
Verstuur