Projecten
Producten
Bedrijven
Vacatures
Agenda
Awards
Podcasts
more_horiz
Videos
Magazine
Favorieten
Profiel
Uitloggen
Abonneer je nu op onze nieuwsbrieven!
Abonneren
Nee, bedankt
Ja, denk met me mee rond de
materialisering van mijn project
Producten
Impressie vernieuwde Gorlaeus collegezalen in Leiden
Copyright: Civic Architects & Filippo Bolognese
Historisch onderzoek Gorlaeus collegezalen 1
Copyright: Civic Architects
Historisch onderzoek Gorlaeus collegezalen 2
Copyright: Civic Architects
Historisch onderzoek Gorlaeus collegezalen 3
Copyright: Civic Architects
Diagram 1 Gorlaeus collegezalen
Copyright: Civic Architects
Diagram 2 Gorlaeus collegezalen
Copyright: Civic Architects
Overzichtstekening campus Universiteit Leiden
Copyright: Civic Architects
Overzichtstekening Gorlaeus collegezalen
Copyright: Civic Architects
Overzichtstekening Gorlaeus collegezalen 2
Copyright: Civic Architects
Overzichtstekening Gorlaeus collegezalen 3
Copyright: Civic Architects
Overzichtstekening Gorlaeus collegezalen 4
Copyright: Civic Architects
Foto 1 vooraanzicht Gorlaeus Leiden
Copyright: Max Hart Nibbrig
Foto 2 vooraanzicht Gorlaeus Leiden
Copyright: Max Hart Nibbrig
Foto 3 zijaanzicht Gorlaeus Leiden
Copyright: Max Hart Nibbrig
Foto 4 interieur Gorlaeus Leiden
Copyright: Max Hart Nibbrig
Foto 5 Interieur Gorlaeus Leiden
Copyright: Max Hart Nibbrig
Producttags
AAN
UIT
Gorlaeus Collegezalen Leiden
18 juni 2024
2
0
0
0
In 1575 werd in Leiden de eerste universiteit van Nederland gesticht. Het instituut was altijd een bekend gezicht in ht historische stadscentrum, maar inmiddels ook daarbuiten. In de 2e helft van de 20e eeuw werden de Gorlaeus-laboratoria gebouwd, als startschot voor de ontwikkeling van een moderne kenniscampus buiten het centrum: het huidige Leiden Bio Science Park. Het inmiddels verouderde collegezalengebouw - dat ook wel 'De Schotel' wordt genoemd - wordt vernieuwd tot onderwijs- en ontmoetingscentrum met werk- en studieplekken, een restaurant voor 400 personen en vier college- en evenementenzalen met 250 tot 700 stoelen. Civic verzorgt zowel het architectonisch ontwerp als het interieurontwerp en laat zich hierbij inspireren door het intrigerende modernisme van de oorspronkelijke architecten Drexhage, Serkenburg, Bodon & Venstra (DSBV).
Specifiek modernisme
Het Gorlaeus draagt de typische kenmerken van een modernistisch universiteitsgebouw, zoals het opgetilde hoofdniveau en de glazen gevels. Maar het ontstijgt de generieke en sobere uitstraling waar dit genre doorgaans om bekend staat, door de specifieke constructieve esthetiek en overdrijvingen in vormgeving en detaillering. Dit idee van 'hyperfunctionalisme' vormde het vertrekpunt voor de metamorfose. Een transfiguratie waarin het begrip 'functionaliteit' is geactualiseerd: het draait minder om autonomie en meer om verbinding - met de omgeving, het klimaat en de gebruikers.
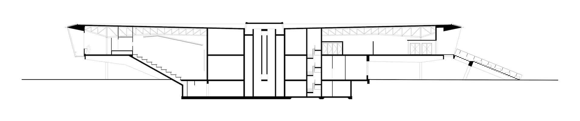
Sleutelingreep is de transformatie van de onderhoudsbalkons tot een ring van adaptieve wintertuinen. De kenmerkende afschuining wordt omgedraaid om de visuele relatie tussen gebouw en omgeving te versterken. Voorbijgangers zien niet meer vooral de weerspiegeling van de lucht in het las, maar de weerspiegeling van de campus zelf, en kunnen door de kijkhoek beter naar binnen kijken. Daarnaast komt er een nieuwe entreetrap die het campusmaaiveld direct verbindt met het eerste niveau. Van veraf kent de trap een vergelijkbaar gevoel voor overdrijving in vormgeving als de bestaande betonconstructie. Van dichtbij maken de kleine kiezels en het geraffineerde freespatroon de trap echter meer tastbaar en menselijk.
Middelpunt van de campus
Het bijgebouw dat de oorspronkelijke entree van het Gorlaeus vormde wordt gesloopt om de toegang tot de omringende gebouwen te garanderen binnen het campusplan. De nieuwe monumentale trap is straks de hoofdentree vanaf de centrale as van het campusplein, duidelijk zichtbaar en benaderbaar voor alle gebruikers van de campus. De trap leidt naar een panoramarestaurant met werk- en studieplekken op de verdieping, dat ook gebruikt kan worden voor presentaties, congressen, en uitreikingen. De trap is tegelijkertijd een verblijfs- en ontmoetingsplek en een tribune voor het campusplein. Boven sluit deze aan op een rondgang die de collegezalen in twee richtingen toegankelijk maakt en uitzicht biedt. De rondgaande gevel versterkt het iconische karakter van het gebouw, dat hiermee ook in de toekomst zijn bijnaan waardig kan blijven dragen.
Wintertuinen met een adaptief klimaat
Het oorspronkelijke gevelontwerp van DSBV lijkt overal gelijk maar blijkt per segment anders te reageren op de omgeving en de zon. Dit gegeven vormde de inspiratie voor de energetische verduurzaming van de gevel. De stalen kozijnen met enkel glas worden vervangen door een ring met bufferende serres. Elk segment is anders uitgewerkt, het geheel beweegt mee met het ritme van de dagen en seizoenen. Aan de Zuid- en Oostzijde ligt een serie passief verwarmde - maar actief geventileerde - wintertuinen met extra verblijfsruimtes; een zitrand met zicht op het campusplein en een serie baken die direct zijn verbonden met het restaurant. Gebruikers kunnen er koffie drinken met uitzicht, socializen of de laptop openklappen voor of na colleges. Op de noord- en westzijde bevinden zich glazenwasbalkons met beschermendeluifels, waarin ook de nieuwe vluchttrappen zijn opgenomen.
Bouwen tijdens de colleges
Het gebouw bleef in gebruik tijdens de uitvoering. Daarom is de fasering voor de stapsgewijze sloop en bouw gekoppeld aan de collegeplanning van het studiejaar en is er voor een specifieke uitvoeringsmethode gekozen. De segmenten van 10 meter breed en 6 meter hoog werden stuk voor stuk ter plaatse geassembleerd en in zijn geheel opgehangen tussen de radiale vakwerkconstructies van het bestaande gebouw. Door dit van buitenaf te doen, kan het gebouw van binnen blijven functioneren. De installaties werden vervolgens in segmenten uitgevoerd, zodat telkens maar één collegezaal uit bedrijf hoefde te zijn, en het onderwijs kon blijven functioneren voor colleges.
Stel jezelf kort voor! Dan weet het betreffende bedrijf wie hun model gedownload heeft.
Wil je niet bij elke download jouw gegevens in hoeven voeren?
Klik dan hier om in te loggen
.
Heb je nog geen account?
Maak dan hier een gratis account aan
.
Voornaam
Achternaam
E-mailadres
Downloaden
Wanneer je modellen downloadt op Architectenweb.nl worden relevante gegevens van jou – zoals jouw naam en e-mailadres – met het betreffende bedrijf gedeeld. Meer hierover lees je in ons
privacybeleid
.
Locatie
Trefwoorden
universiteit leiden
schoolgebouw
civic architects
gorlaeus-laboratoria
Civic Architects
Neem contact op
Projectdata
Staat van realisatie
In ontwikkeling
Start ontwerpproces
2020
Start bouw
2021
Oplevering
2024
Plaats
Leiden
Kosten
11333906
Netto m
2
6049
m
3
31735
Meewerkende partijen
Architect
Civic Architects
Interieurarchitect
Civic Architects
Ontwerpteam
Jan Lebbink, Rick ten Doeschate, Ingrid van der Heijden, Gert Kwekkeboom, Robert Comas Miralpeix, Chiara Ciccarelli, Loulia Voulgari, Rick Hospes, Maeve Corke Butters
Opdrachtgever
Universiteit Leiden
Aannemer
Van Dijk
Constructeur
Van Dijke B.V.
Adviseurs installaties E & W
Halmos adviseurs, EFPC
Fotograaf
Stijn Bollaert, Max Hart Nibbrig
Landschapsarchitect
West 8
Adviseur
Vitruvius Bouwkostenadvies
Leveranciers
Gevelproducten
Van Delft
Uitvoering betontrap
Brouw & de Bode
Uitvoering Bouwkundig
Den Dubbelden
Uitvoering installaties
Equans
Gevelbouwer staal, Hekwerken, Staalconstructies
Dijkstaal
Neem contact op met
Civic Architects
Je bent momenteel niet ingelogd. Hierdoor is het alleen mogelijk om meer informatie per e-mail op te vragen. Wil je liever gebeld worden of documentatie per post ontvangen?
Klik dan hier om in te loggen
.
Heb je nog geen account?
Maak dan hier een gratis account aan
.
Voornaam
Achternaam
E-mailadres
Opmerkingen
Bij iedere aanvraag worden relevante gegevens van jou gedeeld met het betreffende bedrijf. Meer hierover lees je in ons
privacybeleid
.
Ja, denk met me mee rond de
materialisering van mijn project
Meer projecten van Civic Architects
CUBE, nieuw werkplaatsgebouw voor UTwente
Civic Architects
Nieuwbouw woongebouw C11 – Tolhuiskade
Civic Architects
Faculteit ITC, Universiteit Twente
Civic Architects
Schoenenkwartier
Civic Architects
Lochal openbare bibliotheek
Civic Architects
CUBE, nieuw werkplaatsgebouw voor UTwente
Civic Architects
Nieuwbouw woongebouw C11 – Tolhuiskade
Civic Architects
Faculteit ITC, Universiteit Twente
Civic Architects
Schoenenkwartier
Civic Architects
Lochal openbare bibliotheek
Civic Architects
Toon alles
Andere Projecten
Onderwijsgebouw Aurora, Wageningen
WEBO
Sandwichpanelenwand hygiënische afbouw
Sentho B.V.
Transformeerbare vergaderruimtes in HNK Amsterdam
BREEDVELD mobiele wandsystemen
Complete buiteninrichting kantooromgeving
Falco B.V.
TopAccess Dakluik bij Porsche Service Factory
Staka Dakluiken
Nieuwbouw villa Tegenbosch, Eindhoven, Noord-Braba
van Os Architecten
Moderne villa Alkmaar
BNLA architecten
Appartementencomplex in Purmerend
SSAB Swedish Steel BV
Office Winhov over project Pulse met Archicad
KUBUS | Specialist in Archicad
Nieuwbouw moderne bungalow, Prinsenbeek, Noord-Bra
van Os Architecten
Verbouwing villa Ruitersbos, Breda, Noord-Brabant
van Os Architecten
Nieuwbouw schuurwoning, Oosterhout, Noord-Brabant
van Os Architecten
Ga naar het projecten-overzicht
Voor een optimale gebruikservaring plaatst Architectenweb functionele cookies. Wat de verschillende cookies precies doen leggen we uit in een
overzicht
. Cookies van social media kun je optioneel
aanzetten
.
Akkoord
Instellingen
Annuleren
OK
Sluiten
Doorgaan
Inloggen
Maak een gratis persoonlijk account aan
Feedback
Feedback
Wij horen graag jouw feedback. Laat je reactie achter en eventueel jouw e-mail adres.
Reactie
Verstuur