Projecten
Producten
Bedrijven
Vacatures
Agenda
Awards
Podcasts
more_horiz
Videos
Magazine
Thema's
Favorieten
Profiel
Uitloggen
Nieuw
Populair
Toon alles
Architectenweb magazine #14
Architectenweb magazine #13
Publieke gebouwen
Architectenweb magazine #12
Kantoren
Architectenweb magazine #11
Scholen
Architectenweb magazine #10
Zorg
Architectenweb magazine #14
Architectenweb magazine #10
Zorg
Architectenweb magazine #12
Kantoren
Architectenweb magazine #13
Publieke gebouwen
Architectenweb magazine #6
Transformatie en Renovatie
Om direct naar je favorieten te kunnen gaan is het nodig om eerst in te loggen.
Nieuw
Architectenweb Awards 2025
Architectenweb Awards 2024
Architectenweb Awards 2023
Architectenweb Awards 2022
Architectenweb Awards 2021
Architectenweb Awards 2020
Architectenweb Awards 2019
Architectenweb Awards 2018
Om direct naar je favorieten te kunnen gaan is het nodig om eerst in te loggen.
Nieuw
Populair
Favorieten
Toon alles
Vakwerk Architecten
Nominatie voor de prijs voor Architect van het Jaar 2025
Sanne van Manen
Nominatie voor de prijs voor Architect van het Jaar 2025
KSA
Nominatie voor de prijs voor Architect van het Jaar 2025
KRFT
Nominatie voor de prijs voor Architect van het Jaar 2025
Joost Ector
Nominatie voor de prijs voor Architect van het Jaar 2025
Prijsuitreiking Architectenweb Awards 2024
Impressie van een feestelijke avond
Martens, Willems & Humblé Architecten
Nominatie voor de prijs voor Architect van het Jaar 2024
Uitreiking van Architectenweb Awards 2020
Impressie van de prijsuitreiking via Zoom
De Zwarte Hond
Nominatie voor de prijs voor Architect van het Jaar 2024
Avond met De Zwarte Hond
Symposium
Om direct naar je favorieten te kunnen gaan is het nodig om eerst in te loggen.
Nieuw
Populair
Categorieën
Favorieten
Toon alles
Brandpreventie Academy BV
Cay Circulaire Keukens
Circulaire keukens en pantry's
Studio Kirsten Reith
Interieurontwerp
Studio175
Interieuradvies in regio Utrecht
Orange Automatic Doors
Indoorwrap
De specialist in Keukenwrappen
Brandpreventie Academy BV
Interior & Co
Studio175
Interieuradvies in regio Utrecht
Cay Circulaire Keukens
Circulaire keukens en pantry's
Studio Kirsten Reith
Interieurontwerp
Indoorwrap
De specialist in Keukenwrappen
Architecten
Architectuur
Mobiliteit en infrastructuur
Stedenbouw en landschapsarchitectuur
Leveranciers
Gevels
Daken
Ramen en deuren
Trappen, liften en balustrades
Binnenwanden
Vloeren
Plafonds
Verlichting
Sanitair
Projectinrichting
Installaties
Constructies
Buitenruimte
Software
Adviseurs
Bestekschrijvers
Bouwmanagement
Installatie adviseurs E
Bouwfysica
Calculators
Installatie adviseurs G/W
Bouwkundig tekenwerk
Constructeurs
Lichtadviseurs
Adviseur beveiliging
Juristen
Intermediairs, Payrolling
Aannemers
Overig
Presentatie
Instellingen / onderwijs
Overig
Om direct naar je favorieten te kunnen gaan is het nodig om eerst in te loggen.
Nieuw
Populair
Favorieten
Toon alles
Gesprek met Stephan Sliepenbeek over hoogbouw in Amstel III
Gesprek met Ellen van Bueren over gebiedsontwikkeling en hoogbouw
Gesprek met Ma Yansong over ontwerpen die emotie oproepen
Gesprek met Paul de Ruiter over innovatieve en duurzame hoogbouw
Gesprek met Pi de Bruijn over zijn ontwerpen voor de Tweede Kamer toen en nu
Gesprek met Ellen van Bueren over gebiedsontwikkeling en hoogbouw
Gesprek met Oresti Sarafopoulos over het ontwerpen van een kantoorgebouw met bijna geen installaties
Gesprek met Stijn Steenbakkers over verdichting en hoogbouw in Eindhoven
Gesprek met Pi de Bruijn over zijn ontwerpen voor de Tweede Kamer toen en nu
Gesprek met Paul de Ruiter over innovatieve en duurzame hoogbouw
Om direct naar je favorieten te kunnen gaan is het nodig om eerst in te loggen.
Nieuw
Populair
Categorieën
Favorieten
Toon alles
Renovatie met respect voor oorspronkelijke ontwerp
Øbro-Hallen
Wonderwoods
Celsius
Duurzaam woonproject met veertien Gorter-dakluiken
Boekweitkamp, Den Haag
Exclusieve wooneenheden
Kantoorinterieur: van Rest tot Ruimte
De Grote Zwaan, Nijmegen
Renovatieproject Ockenburghstraat
Architectuur
Woningbouw
Zorg
Hotels
Restaurants en café’s
Winkels
Sportgebouwen
Culturele gebouwen
Overheidsgebouwen
Scholen
Kantoren
Bedrijfsgebouwen
Paviljoens en kunst
Overig
Mobiliteit en infrastructuur
Trein- en metrostations
Luchthavens
Busstations
Parkeergarages
Fietsparkeren
Wegen
Bruggen
Water
Energie
Tankstations en laadstations
Waterzuivering en afvalverwerking
Overig
Stedenbouw en landschapsarchitectuur
Regionale visies
Gebiedsvisies
Plannen stedelijk weefsel
Amusementsparken en dierentuinen
Lichtontwerpen
Openbare ruimte
Pleinen
Parken
Tuinen
Speelplaatsen
Uitkijktorens
Overige (bijv. begraafplaatsen)
Om direct naar je favorieten te kunnen gaan is het nodig om eerst in te loggen.
Nieuw
Populair
Categorieën
Favorieten
Toon alles
Een nieuwe generatie wandbekleding voor welzijn
Uitbreiding van Vescom Purefin
objectflor rubbervloeren nu Cradle to Cradle gecertificeerd
SaarFloor zijn bekroond met Cradle to Cradle certificaten
Collaro badkamercollectie
Karakter ontmoet stijlvol design
Core
Maximale geluidsisolatie en absorptie
Nieuwe rookeisen: wat is de impact voor architecten?
Ontdek de mogelijkheden voor jouw project
Akoestisch kussen.
Ervaar de ultime natuurlijke oplossing voor akoestiek problemen.
StoTherm Wood: cementvrij gevelsysteem met houtvezelisolatie
Biobased gevelisolatie met natuurlijke prestaties
Lumiglaze – Het vlakglas van VELUX Commercial
Een nieuw tijdperk in daglichtontwerp – minimalistisch, functioneel en klaar voor de toekomst.
Veelzijdig straatmeubilair
Van openbare ruimte naar (be)leefomgeving
Knauf MaxSpace
Minder wand, méér ruimte. Het ideale profiel voor meer winst per m²
Gevels
Gevelbekleding
Vliesgevels
Zonwering buiten
Isolatie
Gevelconstructies
Signing
Overig
Daken
Dakafwerkingen
Dakisolatie
Dakconstructies
Dakranden, dakgoten en HWA's
Dakramen
Lichtkoepels
Lichtstraten
Schoorstenen
Overig
Dakluiken
Ramen en deuren
Raam- en deursystemen / kozijnen
Vliesgevels
Hang- en sluitwerk
Beveiliging en luiken
Dorpels en vensterbanken
Lateien
Roosters
Glas
Dakramen
Dakkoepels
Lichtstraten
Zonwering buiten
Zonwering binnen
Buitendeuren
Binnendeuren
Postvakken en brievenbussen
Overig
Dakluiken
Trappen, liften en balustrades
Trappen
Roltrappen
Liften
Balustrades en hekwerken
Galerijen
Binnenwanden
Binnenwanden
Wandafwerking
Vloeren
Constructieve vloeren
Verhoogde vloeren
Vloerafwerkingen
Overig
Plafonds
Tegels
Lineair
Grill
Open en roosters
Naadloos
Eilanden en baffles
Plafondafwerkingen
Ophangsystemen
Overig
Klimaatplafonds
Verlichting
Binnenverlichting
Buitenverlichting
Sanitair
Kranen en douchesets
Wastafels
Douchewanden en douchebakken
Baden
Waterclosets
Accessoires
Overig
Projectinrichting
Stoelen
Banken
Tafels
Kasten
Balies
Vrijstaande wanden
Keukens
Accessoires
Overig
Cabines
Interieurbeplanting
Stoffering
Installaties
Verwarming, koeling en ventilatie
Elektrotechnische installaties
Schakelmateriaal
Domotica
Deurcommunicatie
Beveiliging
Liften
Onderhoudsinstallaties
Overig
Brandbeveiliging
Constructies
Draagconstructies
Funderingen en kelders
Overig
Brandbeveiliging
Buitenruimte
Bestratingen en verhardingen
Afwateringen
Terreinafscheidingen en geluidsschermen
Buitenmeubilair
Fietsparkeren
Terrassen
Terrasoverkappingen
Bruggen
Accessoires
Overig
Beplanting
Sport- en speeltoestellen
Software
Tekenen 2D
Modelleren 3D / BIM
Visualisatie / rendering
Parametrisch ontwerpen
Bouwfysica
Draagconstructie
Overig
Virtual Reality
Cloudoplossingen
Om direct naar je favorieten te kunnen gaan is het nodig om eerst in te loggen.
Nieuw
Populair
Favorieten
Toon alles
Prefab beurs - 7 t/m 9 oktober 2025
Brabanthallen 's-Hertogenbosch
Boekpresentatie en panelgesprek met Floor Milikowsky
Prins Hendrikkade 600, 1011 VX Amsterdam
Architects Table ’25: Lunch & Inspiratie in HAUT Amsterdam
ATAG LIVE – HAUT gebouw, Spaklerweg 10F, 1096 BA Amsterdam (tegenover metrostation Spaklerweg)
Inspiratiedag @ Sempergreen – Gevelgroen
Defensieweg 1, 3984 LR Odijk
Architectenweb symposium: klein maar fijn wonen?
Pakhuis de Zwijger
Ontdek het seminarieprogramma van Architect@Work Amsterdam
De Kromhouthal, Gedempt Hamerkanaal 231, Amsterdam
Architects Table ’25: Lunch & Inspiratie in HAUT Amsterdam
ATAG LIVE – HAUT gebouw, Spaklerweg 10F, 1096 BA Amsterdam (tegenover metrostation Spaklerweg)
Boekpresentatie en panelgesprek met Floor Milikowsky
Prins Hendrikkade 600, 1011 VX Amsterdam
InterSolution 2026, dé netwerk- en vakbeurs voor zonne-energie
Flanders Expo (Hal 8) Maaltekouter 1 B - 9051 Gent / België
LIAG over duurzaamheid centraal in project
Online
Om direct naar je favorieten te kunnen gaan is het nodig om eerst in te loggen.
Nieuw
Toon alles
Design
Duurzaamheid
Gevel
Infrastructuur
Interieur
Kantoren
Leisure
Openbare ruimte
Publieke gebouwen
Scholen
Transformatie en Renovatie
Woningbouw
Zorg
Om direct naar je favorieten te kunnen gaan is het nodig om eerst in te loggen.
Nieuw
Populair
Toon alles
Mulderblauw zoekt een architect
Mulderblauw zoekt een projectleider
WE zoekt senior architect
Junior PR & Communicatie medewerker
stagiair bouwkunde Amsterdam
Medior architect
Junior Architect (NL/EN)
Architect
De Academie van Bouwkunst Amsterdam zoekt twee onderzoekers voor lectoraat
Studio Nauta zoekt projectleider
Junior Ontwerper
Site Practice zoekt medior architect met 3-6 jaar ervaring (Amsterdam)
Om direct naar je favorieten te kunnen gaan is het nodig om eerst in te loggen.
Producten
Copyright: Jannes Linders
Copyright: Jannes Linders
Copyright: Jannes Linders
Copyright: De Nijl Architecten
Copyright: De Nijl Architecten
Copyright: De Nijl Architecten
Copyright: Jannes Linders
Copyright: Jannes Linders
Copyright: Jannes Linders
Copyright: Jannes Linders
Copyright: Jannes Linders
Producttags
AAN
UIT
Stadsbouwgroep Overmaat
21 april 2023
1
0
0
0
Stadsbouwgroepen
Met Stadsbouwgroepen spelen we in de toenemende vraag naar een andere cultuur van wonen en ontwikkelen. Steeds meer mensen kiezen bewust voor de stad en willen met gelijkgestemden zelf hun (werk- en) woonomgeving vormgeven. Coöperatief, betrokken bij de buurt. Geïnspireerd door Berlijnse voorbeelden treden we op als intermediair. We brengen groepen particulieren samen om kleinschalige woonprojecten te realiseren. Kwaliteit en betrokkenheid zijn sleutelwoorden.
Overmaat
Overmaat staat voor royaal wonen, met als referentie de grote stadshuizen die rond 1900 in Rotterdam zijn gebouwd. Onze huizen zijn 7,20 m breed en hebben veel indelingsmogelijkheden. Gebruiksplekken kunnen zowel achter als naast elkaar worden gelegd. Dat geldt ook voor onze appartementen, die telkens een hele verdieping beslaan en aan drie of vier zijden ramen hebben. Het project bestaat uit drie woningtypen, afgestemd op de specifieke kwaliteiten van de locatie.
Laanhuizen
Langs de Laan op Zuid 7 stadshuizen van ca. 200 m2, 4 lagen hoog. Begane grond en tuin zijn ca. 1 m hoger gelegd, zodat er ‘afstand’ naar de drukke stadsstraat ontstaat. Het laanhuis heeft een stoep met trapje en bordes. Dit element geeft tezamen met de dakkapel karakter aan het huis. Veel deelnemers hebben gekozen voor wonen over 2 lagen, vaak verbonden met een vide.
Parkhuizen
Langs het parkje 9 stadshuizen van ca. 150 m2, 3 lagen hoog. De zon aan de parkzijde kan optimaal worden benut, omdat de breedte van de woning een woonplek aan de voorgevel mogelijk maakt. Langs het park is een grote variatie in volume en gevels ontstaan, voortkomend uit de specifieke wensen van bewoners.
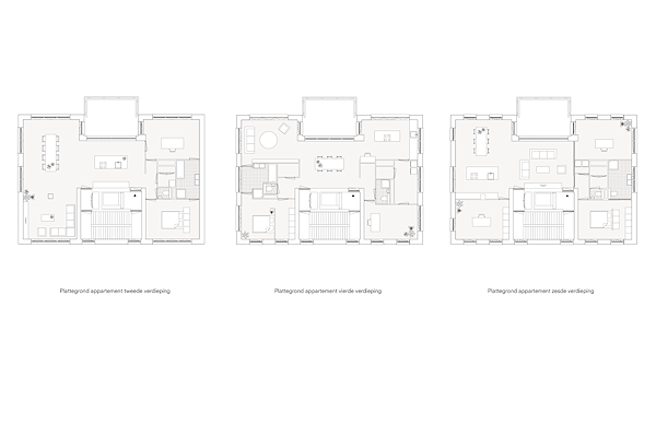
Appartementen
Op de hoek met de Dreverhavenstraat een appartementengebouw van 7 lagen met 7 appartementen van ca. 150 m2 en een terras van ca. 20 m2. Deze half inpandige ‘buitenkamer’ aan de achtergevel geeft, tezamen met de ontsluitingskern aan de voorgevel, structuur aan de loft-achtige ruimte. Alle appartementen hebben extra hoogte gekregen en elk appartement heeft een andere indeling.
Naar een andere bouwcultuur
Dit project staat voor een andere bouwcultuur. Onze bijzondere woningtypen met een compromisloze keuze voor breed wonen werden niet voorzien binnen het reguliere planaanbod. De deelnemers waren met recht ‘pioniers’ op Zuid. Daar heeft de stad baat bij. Dat pleit voor een bewuste politiek om naast de ‘normale’ ontwikkelpraktijk ruimte te bieden aan kleinschalige projecten met grote betrokkenheid van bewoners en architecten.
Stel jezelf kort voor! Dan weet het betreffende bedrijf wie hun brochure gedownload heeft.
Wil je niet bij elke download jouw gegevens in hoeven voeren?
Klik dan hier om in te loggen
. Heb je nog geen account?
Maak dan hier een gratis account aan
.
Voornaam
Achternaam
E-mailadres
Downloaden
Wanneer je brochures downloadt op Architectenweb.nl worden relevante gegevens van jou – zoals jouw naam en e-mailadres – met het betreffende bedrijf gedeeld. Meer hierover lees je in ons
privacybeleid
.
Wanneer je brochures downloadt op Architectenweb.nl worden relevante gegevens van jou – zoals jouw naam en e-mailadres – met het betreffende bedrijf gedeeld. Meer hierover lees je in ons
privacybeleid
.
Brochure
Stel jezelf kort voor! Dan weet het betreffende bedrijf wie hun model gedownload heeft.
Wil je niet bij elke download jouw gegevens in hoeven voeren?
Klik dan hier om in te loggen
.
Heb je nog geen account?
Maak dan hier een gratis account aan
.
Voornaam
Achternaam
E-mailadres
Downloaden
Wanneer je modellen downloadt op Architectenweb.nl worden relevante gegevens van jou – zoals jouw naam en e-mailadres – met het betreffende bedrijf gedeeld. Meer hierover lees je in ons
privacybeleid
.
Locatie
Trefwoorden
zelfbouw
collectief particulier opdrachtgeverschap
woningcoöperatie
stadsbouwgroep
cpo
stadsproject
De Nijl Architecten
Neem contact op
Projectdata
Staat van realisatie
Voltooid
Start ontwerpproces
2017
Start bouw
2018
Oplevering
2020
Ingebruikname
2020
Plaats
Rotterdam
Meewerkende partijen
Architect
De Nijl Architecten
, Jeroen Geurst (Geurst & Schulze Architecten), Joost Kühne (Architektenburo Kühne & Co)
Opdrachtgever
Coöperatieve Vereniging Overmaat
Aannemer
Martens Aannemingsbedrijf
Neem contact op met
De Nijl Architecten
Je bent momenteel niet ingelogd. Hierdoor is het alleen mogelijk om meer informatie per e-mail op te vragen. Wil je liever gebeld worden of documentatie per post ontvangen?
Klik dan hier om in te loggen
.
Heb je nog geen account?
Maak dan hier een gratis account aan
.
Voornaam
Achternaam
E-mailadres
Opmerkingen
Bij iedere aanvraag worden relevante gegevens van jou gedeeld met het betreffende bedrijf. Meer hierover lees je in ons
privacybeleid
.
Ja, denk met me mee rond de
materialisering van mijn project
Meer projecten van De Nijl Architecten
Burgerijpad
De Nijl Architecten
Woongebouwen Lode Zielenslaan
De Nijl Architecten
Zuidelijk Stationsgebied Gouda
De Nijl Architecten
Stadsdeelhart Anklaar
De Nijl Architecten
Burgerijpad
De Nijl Architecten
Woongebouwen Lode Zielenslaan
De Nijl Architecten
Zuidelijk Stationsgebied Gouda
De Nijl Architecten
Stadsdeelhart Anklaar
De Nijl Architecten
Toon alles
Andere Projecten
Renovatie met respect voor oorspronkelijke ontwerp
Caparol
Øbro-Hallen
VELUX Commercial Benelux B.V.
Wonderwoods
Van Wylick
Celsius
BURO LUBBERS Landschapsarchitectuur & Stedenbouw
Gorter voorziet Terrazza van veilige daktoegang
Gorter Luiken BV
Dakluik met dubbel deksel voor Bakker Goedhart
Storax
Duurzaam woonproject met veertien Gorter-dakluiken
Gorter Luiken BV
Industrieplein Hengelo
BURO LUBBERS Landschapsarchitectuur & Stedenbouw
De energiemarkt revolutionair vernieuwen
Tétris Design & Build
Festivalterrein als inspiratie van dit kantoor
Tétris Design & Build
De antieke Agora als inspiratie voor een kantoor
Tétris Design & Build
Aan De Vallei
BURO LUBBERS Landschapsarchitectuur & Stedenbouw
Ga naar het projecten-overzicht
Voor een optimale gebruikservaring plaatst Architectenweb functionele cookies. Wat de verschillende cookies precies doen leggen we uit in een
overzicht
. Cookies van social media kun je optioneel
aanzetten
.
Akkoord
Instellingen
Annuleren
OK
Sluiten
Doorgaan
Inloggen
Maak een gratis persoonlijk account aan
Feedback
Feedback
Wij horen graag jouw feedback. Laat je reactie achter en eventueel jouw e-mail adres.
Reactie
Verstuur