Abonneer je nu op onze nieuwsbrieven!
Abonneren
Nee, bedankt
Ja, denk met me mee rond de
materialisering van mijn project
Producten
Marktplein, gezien vanuit aangrenzende wijk Anklaar
Copyright: Jannes Linders
Marktpaviljoen, entree parkeergarage en Marktplein
Copyright: Jannes Linders
Paviljoen aan het Marktplein
Copyright: Jannes Linders
Marktplein
Copyright: Jannes Linders
Marktplein
Copyright: Jannes Linders
Marktplein, links de passage en tweede entree naar de parkeergarage
Copyright: Jannes Linders
Passage met doorkijk naar de arcade
Copyright: Jannes Linders
Plein met arcade aan de ring
Copyright: Jannes Linders
Plein met arcade aan de ring
Copyright: Jannes Linders
Plein met arcade aan de ring
Copyright: Jannes Linders
Situatie voor en na transformatie
Copyright: De Nijl Architecten
Stedenbouwkundig plan Anklaar
Copyright: De Nijl Architecten
Vogelvlucht inpassing in omgeving
Copyright: De Nijl Architecten
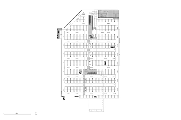
Plattegrond parkeerkelder
Copyright: De Nijl Architecten
Plattegrond begane grond
Copyright: De Nijl Architecten
Plattegrond woonverdieping
Copyright: De Nijl Architecten
Gevelaanzichten
Copyright: De Nijl Architecten
Gevelfragment Singelblok
Copyright: De Nijl Architecten
Gevelfragment Singelblok en blok Sluisoordlaan
Copyright: De Nijl Architecten
ProducttagsAANUIT

Stadsdeelhart Anklaar

24 september 2020
De gemeente Apeldoorn koos vijftien jaar geleden voor een strategie waarbij de aanleg van de nieuwe uitbreidingswijk Zuidbroek werd benut voor de verbetering van de naoorlogse wijk Zevenhuizen. Onder het motto ‘wisselgroei’ werden de programmatische en ruimtelijke structuur van beide gebieden op elkaar afgestemd, zodat een nieuw stadsdeel kon ontstaan.

Ruimtelijk werd ingezet op een stelsel van verbindende lijnen, waaronder de Sluisoordlaan en de waterstructuur van singels. Deze lijnen komen samen bij het oude winkelcentrum Anklaar en kruisen daar de Laan van Zevenhuizen, onderdeel van de Binnenring van Apeldoorn. Programmatisch werd besloten tot een gemeenschappelijke voorzieningenstructuur voor het nieuwe stadsdeel door op de locaties van het oude winkelcentrum Anklaar en zorgcentrum Wilhelmina een nieuw centrumgebied voor Zevenhuizen-Zuidbroek te ontwikkelen: Stadsdeelhart Anklaar.

Naast nieuwe winkels en een nieuw zorgcentrum zijn woningen toegevoegd en is de openbare ruimte sterk verbeterd, onder meer door aanleg van een grote parkeergarage. Ook was oog voor de aanhaking van ontwikkelingen in de omgeving. Aan de westkant werd een groot deel van de hoogbouwflats gesloopt en vervangen door een autoluw, groen laagbouwmilieu. Daardoor kon de Tannhauserstraat ter plaatse van het nieuwe centrum vervallen. Aan de oostkant ging het om een betere verbinding met het naastgelegen gezondheidscentrum. Op de hoek van de Ring en de singel moest een bestaand woongebouw worden ingepast.

Planopzet
Bij de opzet van het Stadsdeelhart zijn twee schijnbaar tegenstrijdige uitgangspunten gehanteerd. Enerzijds moest het nieuwe centrumgebied op een vanzelfsprekende manier aansluiten op de schaal en structuur van de omgeving, anderzijds moest het binnen die structuur een verbijzondering vormen. De aansluiting is gezocht in de oriëntatie van de planopzet op de omgeving, waarbij rooilijnen en bouwhoogten zijn overgenomen. Daarmee profiteert het Stadsdeelhart van bestaande kwaliteiten, zoals de singels. De verbijzondering ontstaat door het centrum een eigen sfeer en identiteit te geven met een fijnmazig stelsel van plekken.

Het Stadsdeelhart heeft een traditionele opzet met kleine bouwblokken en twee paviljoens, als contramal voor een gedifferentieerde openbare ruimte. De bouwblokken sluiten aan bij de ‘korrelgrootte’ van de omgeving. De paviljoens hebben hoge arcades en markeren de belangrijkste plekken van het gebied: het marktplein en het voorplein aan de Ring. In het hart ligt het plein voor de weekmarkt. Deze plek grenst aan de singels en vormt het eindpunt van de lange, brede parkstrook langs de vernieuwde Tannhauserlaan. Het marktplein is via een tussenplein verbonden met het voorplein. Tesamen met de aanlooproutes ontstaat zo een overzichtelijk winkelcircuit, dat nauw verweven is met de omgeving. Het voorplein is open naar de Ring en de Sluisoordlaan.

Het Stadsdeelhart is goed bereikbaar met fiets, bus en auto. Op de koppen van het winkelcircuit liggen grote supermarkten. De overige winkels en voorzieningen zijn op een logische manier aan de routing geschakeld. Onder een groot deel van het gebied ligt de parkeergarage, voor auto’s toegankelijk vanaf de Sluisoordlaan. Veel aandacht is besteed aan een directe en prettige verbinding tussen ‘onder- en bovenwereld’, onder meer door daglicht en kunsttoepassing. Boven de voorzieningen liggen woningen, gevarieerd in grootte, zorgverlening, huur en koop.

Architectuur en buitenruimte
De omgeving van het Stadsdeelhart is in de wederopbouwperiode gebouwd met een kenmerkende stedenbouwkundige opzet en een karakteristieke verschijningsvorm van bebouwing en buitenruimte. Ook voor de architectuur was inpassen en verbijzonderen het devies. Inspiratie was de wederopbouw van de binnenstad van Le Havre door de Franse architect Perret. Perret bouwde modern, maar met een sterk gevoel voor de klassieke traditie. Hij gaf het nieuwe centrum samenhang door een ritme van vaste maatverhoudingen en terugkerende architectuurelementen met toepassing van een beperkt palet van materialen. Met een vergelijkbare aanpak is in Anklaar een nieuw, rijk beeld gemaakt, zonder de link met de omgeving te verliezen.

De gevels zijn opgebouwd uit een regelmatig raster van betonnen banden en metselwerk penanten, met daartussen Franse balkons. De doorlopende lijnen boven de begane grond rijgen de winkels en woningen aan elkaar. Voor het gehele project is één genuanceerde, lichtgele steen gekozen, die in verschillende sorteringen is toegepast. De steen is gecombineerd met witgrijs architectonisch beton, zorgvuldig geprofileerd en gedetailleerd. Bij loggia’s en entrees zijn glazuurstenen toegepast. De paviljoens zijn als accenten tussen de bouwblokken uitgewerkt in architectonisch beton.

De lichte architectuur staat op een vlak van donkere bestrating, waarmee het Stadsdeelhart zich onderscheidt van zijn omgeving. In het gebied zijn groenvakken met gevarieerde beplanting en zitmogelijkheden aangebracht. Op het marktplein staan enkele grote bomen. Bij het marktplein hebben de singels kademuren gekregen, met een plek aan het water. De groene oevers zijn weelderig ingeplant. Ook de Sluisoordlaan is opnieuw ingericht, met een groene middenberm en stevige bomenlaan.

Stel jezelf kort voor! Dan weet het betreffende bedrijf wie hun brochure gedownload heeft.
Wil je niet bij elke download jouw gegevens in hoeven voeren?
Klik dan hier om in te loggen. Heb je nog geen account? Maak dan hier een gratis account aan.
Voornaam
Achternaam
E-mailadres
Downloaden
Wanneer je brochures downloadt op Architectenweb.nl worden relevante gegevens van jou – zoals jouw naam en e-mailadres – met het betreffende bedrijf gedeeld. Meer hierover lees je in ons privacybeleid.
Wanneer je brochures downloadt op Architectenweb.nl worden relevante gegevens van jou – zoals jouw naam en e-mailadres – met het betreffende bedrijf gedeeld. Meer hierover lees je in ons privacybeleid.

Stel jezelf kort voor! Dan weet het betreffende bedrijf wie hun model gedownload heeft.
Wil je niet bij elke download jouw gegevens in hoeven voeren?
Klik dan hier om in te loggen.

Heb je nog geen account? Maak dan hier een gratis account aan.
Voornaam
Achternaam
E-mailadres
Downloaden
Wanneer je modellen downloadt op Architectenweb.nl worden relevante gegevens van jou – zoals jouw naam en e-mailadres – met het betreffende bedrijf gedeeld. Meer hierover lees je in ons privacybeleid.

Locatie

Neem contact op met De Nijl Architecten

Je bent momenteel niet ingelogd. Hierdoor is het alleen mogelijk om meer informatie per e-mail op te vragen. Wil je liever gebeld worden of documentatie per post ontvangen? Klik dan hier om in te loggen.
Heb je nog geen account? Maak dan hier een gratis account aan.
Voornaam
Achternaam
E-mailadres
Opmerkingen
Bij iedere aanvraag worden relevante gegevens van jou gedeeld met het betreffende bedrijf. Meer hierover lees je in ons privacybeleid.
Ja, denk met me mee rond de
materialisering van mijn project

Meer projecten van De Nijl Architecten

De Nijl Architecten
De Nijl Architecten
Toon alles
KUBUS | Specialist in Archicad
SAPA
Reynaers Aluminium Nederland
Jansen
SAB-profiel bv
Aliplast Aluminium Systems
Kingspan Light & Air
ALUCOBOND®
Caparol
Tarkett BV
Kawneer
Grohe Nederland B.V.
Malaysian Timber Council
OCS | Office Cabling Systems
Swisspearl Nederland
Forster Nederland N.V.
VELUX Commercial Benelux B.V.
Sempergreen
Houthandel van Dam
Aluprof Nederland BV
QbiQ Wall Systems
Forbo Flooring
Schüco Nederland
Cedral
Sto Isoned bv
Triflex bv
Gorter Luiken BV
wienerberger
DUCO Ventilation & Sun Control
BEWI IsoBouw
ROCKWOOL B.V.
Mview+
Rockfon (ROCKWOOL B.V.)
Gira Nederland B.V.
Kingspan Geïsoleerde Panelen
GEZE Benelux  B.V.
Renson
Metaglas Groep
ABB | Busch-Jaeger
Jung | Hateha B.V.
Knauf B.V.
Saint-Gobain Glass Benelux
Faay Vianen B.V.
objectflor
Boon Edam Nederland B.V.
Hunter Douglas Architectural
VOLA Nederland BV
Forbo Eurocol Nederland B.V.
EQUITONE gevelpanelen
Holonite B.V.
Kronospan
Tata Steel Colorcoat®
Architectenweb
Over ons
Contact

© 2002 - 2026 Architectenweb BV / Voorwaarden / Privacy / Disclaimer / Sitemap
Annuleren
OK
Sluiten
Doorgaan
Inloggen
Maak een gratis persoonlijk account aan