Projecten
Producten
Bedrijven
Vacatures
Agenda
Awards
Podcasts
more_horiz
Videos
Magazine
Thema's
Favorieten
Profiel
Uitloggen
Abonneer je nu op onze nieuwsbrieven!
Abonneren
Nee, bedankt
Ja, denk met me mee rond de
materialisering van mijn project
Producten
Copyright: Kraaijvanger Architects
Copyright: Kraaijvanger Architects
Copyright: Kraaijvanger Architects
Copyright: Kraaijvanger Architects
Copyright: Kraaijvanger Architects
Copyright: Kraaijvanger Architects
Copyright: Kraaijvanger Architects
Copyright: Kraaijvanger Architects
Copyright: Kraaijvanger Architects
Copyright: Kraaijvanger Architects
Copyright: Kraaijvanger Architects
Producttags
AAN
UIT
Stadskantoor Venlo
5 oktober 2021
0
0
0
0
Opgave
De duurzaamheid voorbij
In opdracht van de gemeente Venlo heeft Kraaijvanger een nieuw stadskantoor met 630 niet-plaatsgebonden werkplekken en publieke functies ontworpen dat de ambitie belichaamt om medewerkers, de stad en de regio volledig te laten functioneren op basis van Cradle to Cradle (C2C) principes.
Concept
De mens centraal
Gezondheid is het uitgangspunt: een goed gebouw maakt mensen gelukkiger en komt de productiviteit ten goede. Het ruimtelijk ontwerp is van binnen naar buiten bedacht, verbindt visueel interieur en exterieur, en is gebaseerd op drie uitgangspunten:
zoveel mogelijk daglicht en groen naar binnen halen,
routes door het gebouw creëren waardoor mensen gaan bewegen en
ontmoeten, werken en ontspannen en alleen gezonde materialen gebruiken.
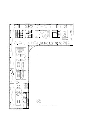
In het ontwerp is de biologische keuken met restaurant in het hart van de toren geplaatst. Dit nodigt samen met het spiraalvormige trapsysteem in de gebouwhoge vide uit tot traplopen. De parkeergarage met groene vides en een gebouwkoelsysteem vormt de basis waarop vanaf straatniveau de ontmoetingsfuncties zijn georganiseerd.
Rondom een patio met helofytenfilter voor waterzuivering kunnen mensen genieten van groen, water en uitzicht. Politiek café, publiekshal met expositieruimten, trouwzaal, vergader- en overlegruimten, koffiebar, theaterfunctie met tribune, stadswinkel en dienstverlenende functies bevinden zich in de eerste twee bouwlagen.
Door de openhuisgedachte waarbij iedereen in dit gedeelte van het gebouw mag komen werken, verbindt het gebouw mensen en werknemers. Daarbovenop, in een beveiligde zone, zijn de kantoren in een toren gepositioneerd. Het geheel vormt één driedimensionale werkomgeving: alles is met alles verbonden.
Het gebouw refereert aan de agriculturele traditie van de Limburgse stad met op de bovenste etage de groene kas met seizoensgebonden werkplekken, waar regionale producten worden geteeld. Ook verwarmt en bevochtigt de kas de lucht die het gebouw in gaat.
De groene luchtzuiverende gevel is de grootste groene gebouwgevel ter wereld en vormt een beschermende schil tegen overlast van verkeer en spoorlijn. Door het glazen venster in het groen is het centrale hart zichtbaar. Vanuit de binnenstad is het inwendige van het gebouw zichtbaar wat past bij de transparantie van de democratie.
The making of
De realisatie van het nieuwe stadskantoor was een buitengewone kans om het C2C en circulaire gedachtegoed in een publiek gebouw van behoorlijke omvang te realiseren en daarmee te helpen verspreiden. In dit proces ruimde Kraaijvanger veel plaats in voor het delen van kennis met partners en stakeholders om nieuwe paden te kunnen betreden. Om tijdens de bouw door te kunnen blijven innoveren is het systeem van de materiaalpaspoorten geïntroduceerd. Hierdoor is het mogelijk precies vast te leggen wat het gebouw in gaat. De aannemer en producenten zijn uitgedaagd om met innovatieve nieuwe producten te komen die beter zijn dan wat in het bestek is omschreven. Uiteindelijk is alles erop gericht de kostbare grondstoffen die het gebouw ingaan weer te gebruiken voor een nieuw leven zonder hierbij in te leveren op kwaliteit.
Betekenis
Het gebouw zuivert aantoonbaar lucht via de groene longgevel, hergebruikt regenwater en afvalwater, is energieneutraal en bevordert de gezondheid. Daarnaast kent het gebouw geen afval, het is in feite een tijdelijke grondstoffenbank met gegarandeerde restwaarden voor een aantal producten. Het gebouw creëert (bio) diversiteit door de groene gevel die als een verticaal stadspark een natuurlijk biotoop is voor meer dan 100 planten, dieren en insectensoorten.
In de plint zijn functies opgenomen die meerwaarde creëren voor de gehele stad, zoals een café met een theateropstelling, openstelling van werkruimten op begane grond en eerste verdieping en een prachtige tuin met helofytenfilters. Door dit project hebben talloze producenten en leveranciers hun producten C2C laten certificeren waarmee het project aantoonbaar aanzet tot het overgaan op een economisch rendabel principe van C2C productie van goederen. Het ontwerp heeft diverse architectuurprijzen gewonnen waaronder de ambitieuze internationale Architizer + Award in de categorie overheidsgebouwen.
Stel jezelf kort voor! Dan weet het betreffende bedrijf wie hun model gedownload heeft.
Wil je niet bij elke download jouw gegevens in hoeven voeren?
Klik dan hier om in te loggen
.
Heb je nog geen account?
Maak dan hier een gratis account aan
.
Voornaam
Achternaam
E-mailadres
Downloaden
Wanneer je modellen downloadt op Architectenweb.nl worden relevante gegevens van jou – zoals jouw naam en e-mailadres – met het betreffende bedrijf gedeeld. Meer hierover lees je in ons
privacybeleid
.
Locatie
Trefwoorden
kantoorgebouw
kraaijvanger architects
stadskantoor venlo
vincent van der meulen
hans goverde
venlo
overheidsgebouw
stadskantoor
kraaijvanger
c2c
circulair
limburg
Kraaijvanger Architects
Neem contact op
Projectdata
Staat van realisatie
Voltooid
Start ontwerpproces
2009
Start bouw
2012
Oplevering
2016
Ingebruikname
2016
Plaats
Venlo
Bruto m
2
27700
Meewerkende partijen
Architect
Kraaijvanger Architects
Ontwerpteam
Hans Goverde, Vincent van der Meulen, Annemiek Bleumink, Jan-Hein Franken, Hiroko Kawakami, Anja Mueller, Edward Timmermans, Bart van der Werf
Opdrachtgever
Gemeente Venlo
Aannemer
Laudy Bouw & Ontwikkeling
Neem contact op met
Kraaijvanger Architects
Je bent momenteel niet ingelogd. Hierdoor is het alleen mogelijk om meer informatie per e-mail op te vragen. Wil je liever gebeld worden of documentatie per post ontvangen?
Klik dan hier om in te loggen
.
Heb je nog geen account?
Maak dan hier een gratis account aan
.
Voornaam
Achternaam
E-mailadres
Opmerkingen
Bij iedere aanvraag worden relevante gegevens van jou gedeeld met het betreffende bedrijf. Meer hierover lees je in ons
privacybeleid
.
Ja, denk met me mee rond de
materialisering van mijn project
Meer projecten van Kraaijvanger Architects
De Herwaert
Kraaijvanger Architects
De Nieuwe Duin
Kraaijvanger Architects
Huis voor de Stad Helmond
Kraaijvanger Architects
Stationsplein West in Arnhem
Kraaijvanger Architects
Renovatie Provinciehuis Zuid-Holland
Kraaijvanger Architects
Interieur Stationspostgebouw Den Haag
Kraaijvanger Architects
Huis voor de stad Amersfoort
Kraaijvanger Architects
Fietsenstalling en Stationsplein Zwolle
Kraaijvanger Architects
Van Gelder groente en fruit
Kraaijvanger Architects
Stadhuis Almelo
Kraaijvanger Architects
Rotterdam Ahoy Convention Centre
Kraaijvanger Architects
SEM Hoofddorp
Kraaijvanger Architects
Museum Voorlinden
Kraaijvanger Architects
OBS De Schalm
Kraaijvanger Architects
X - TU Delft
Kraaijvanger Architects
Rabobank Gouwestreek
Kraaijvanger Architects
De Binck
Kraaijvanger Architects
CIC Rotterdam Fase 2
Kraaijvanger Architects
Zwemcentrum Rotterdam
Kraaijvanger Architects
De Herwaert
Kraaijvanger Architects
De Nieuwe Duin
Kraaijvanger Architects
Huis voor de Stad Helmond
Kraaijvanger Architects
Stationsplein West in Arnhem
Kraaijvanger Architects
Renovatie Provinciehuis Zuid-Holland
Kraaijvanger Architects
Interieur Stationspostgebouw Den Haag
Kraaijvanger Architects
Huis voor de stad Amersfoort
Kraaijvanger Architects
Fietsenstalling en Stationsplein Zwolle
Kraaijvanger Architects
Van Gelder groente en fruit
Kraaijvanger Architects
Stadhuis Almelo
Kraaijvanger Architects
Rotterdam Ahoy Convention Centre
Kraaijvanger Architects
SEM Hoofddorp
Kraaijvanger Architects
Museum Voorlinden
Kraaijvanger Architects
OBS De Schalm
Kraaijvanger Architects
X - TU Delft
Kraaijvanger Architects
Rabobank Gouwestreek
Kraaijvanger Architects
De Binck
Kraaijvanger Architects
CIC Rotterdam Fase 2
Kraaijvanger Architects
Zwemcentrum Rotterdam
Kraaijvanger Architects
Toon alles
Andere Projecten
Vergroening Europakade Tolkamer
ACO BV
Hybride buitenruimte Catharinatoren Zaandam
Solarlux Nederland B.V.
Project Stadhuisplein - Retentie op het parkeerdek
Optigrün Benelux
Van brievenbus tot pakjesoplossing
Larob bv
Horecapaviljoen met dakterras
Zoontjens
Straatmeubilair verrijkt FOUR Frankfurt
Grijsen Park & Straatdesign
De Warren, Amsterdam
WEBO
Sentho maakt bakkerij HACCP-proof met FRP
Sentho B.V.
Een Centrum voor Iedereen MFA Ewijk
SSAB Swedish Steel BV
Residence Noordwijk
Van Bruchem Staircases
5Tracks - inspirerende atriums met JUNG
Jung | Hateha B.V.
Passerelle Zwolle
Grijsen Park & Straatdesign
Ga naar het projecten-overzicht
Voor een optimale gebruikservaring plaatst Architectenweb functionele cookies. Wat de verschillende cookies precies doen leggen we uit in een
overzicht
. Cookies van social media kun je optioneel
aanzetten
.
Akkoord
Instellingen
Annuleren
OK
Sluiten
Doorgaan
Inloggen
Maak een gratis persoonlijk account aan
Feedback
Feedback
Wij horen graag jouw feedback. Laat je reactie achter en eventueel jouw e-mail adres.
Reactie
Verstuur