Projecten
Producten
Bedrijven
Vacatures
Agenda
Awards
Podcasts
more_horiz
Videos
Magazine
Thema's
Favorieten
Profiel
Uitloggen
Nieuw
Populair
Toon alles
Architectenweb magazine #14
Architectenweb magazine #13
Publieke gebouwen
Architectenweb magazine #12
Kantoren
Architectenweb magazine #11
Scholen
Architectenweb magazine #10
Zorg
Architectenweb magazine #14
Architectenweb magazine #10
Zorg
Architectenweb magazine #12
Kantoren
Architectenweb magazine #13
Publieke gebouwen
Architectenweb magazine #6
Transformatie en Renovatie
Om direct naar je favorieten te kunnen gaan is het nodig om eerst in te loggen.
Nieuw
Architectenweb Awards 2025
Architectenweb Awards 2024
Architectenweb Awards 2023
Architectenweb Awards 2022
Architectenweb Awards 2021
Architectenweb Awards 2020
Architectenweb Awards 2019
Architectenweb Awards 2018
Om direct naar je favorieten te kunnen gaan is het nodig om eerst in te loggen.
Nieuw
Populair
Favorieten
Toon alles
Vakwerk Architecten
Nominatie voor de prijs voor Architect van het Jaar 2025
Sanne van Manen
Nominatie voor de prijs voor Architect van het Jaar 2025
KSA
Nominatie voor de prijs voor Architect van het Jaar 2025
KRFT
Nominatie voor de prijs voor Architect van het Jaar 2025
Joost Ector
Nominatie voor de prijs voor Architect van het Jaar 2025
Prijsuitreiking Architectenweb Awards 2024
Impressie van een feestelijke avond
Martens, Willems & Humblé Architecten
Nominatie voor de prijs voor Architect van het Jaar 2024
Uitreiking van Architectenweb Awards 2020
Impressie van de prijsuitreiking via Zoom
De Zwarte Hond
Nominatie voor de prijs voor Architect van het Jaar 2024
Avond met De Zwarte Hond
Symposium
Om direct naar je favorieten te kunnen gaan is het nodig om eerst in te loggen.
Nieuw
Populair
Categorieën
Favorieten
Toon alles
Brandpreventie Academy BV
Cay Circulaire Keukens
Circulaire keukens en pantry's
Studio Kirsten Reith
Interieurontwerp
Studio175
Interieuradvies in regio Utrecht
Orange Automatic Doors
Indoorwrap
De specialist in Keukenwrappen
Cay Circulaire Keukens
Circulaire keukens en pantry's
Studio Kirsten Reith
Interieurontwerp
Studio175
Interieuradvies in regio Utrecht
Interior & Co
Indoorwrap
De specialist in Keukenwrappen
Orange Automatic Doors
Architecten
Architectuur
Mobiliteit en infrastructuur
Stedenbouw en landschapsarchitectuur
Leveranciers
Gevels
Daken
Ramen en deuren
Trappen, liften en balustrades
Binnenwanden
Vloeren
Plafonds
Verlichting
Sanitair
Projectinrichting
Installaties
Constructies
Buitenruimte
Software
Adviseurs
Bestekschrijvers
Bouwmanagement
Installatie adviseurs E
Bouwfysica
Calculators
Installatie adviseurs G/W
Bouwkundig tekenwerk
Constructeurs
Lichtadviseurs
Adviseur beveiliging
Juristen
Intermediairs, Payrolling
Aannemers
Overig
Presentatie
Instellingen / onderwijs
Overig
Om direct naar je favorieten te kunnen gaan is het nodig om eerst in te loggen.
Nieuw
Populair
Favorieten
Toon alles
Gesprek met Stephan Sliepenbeek over hoogbouw in Amstel III
Gesprek met Ellen van Bueren over gebiedsontwikkeling en hoogbouw
Gesprek met Ma Yansong over ontwerpen die emotie oproepen
Gesprek met Paul de Ruiter over innovatieve en duurzame hoogbouw
Gesprek met Pi de Bruijn over zijn ontwerpen voor de Tweede Kamer toen en nu
Gesprek met Ellen van Bueren over gebiedsontwikkeling en hoogbouw
Gesprek met Oresti Sarafopoulos over het ontwerpen van een kantoorgebouw met bijna geen installaties
Gesprek met Stijn Steenbakkers over verdichting en hoogbouw in Eindhoven
Gesprek met Pi de Bruijn over zijn ontwerpen voor de Tweede Kamer toen en nu
Gesprek met Paul de Ruiter over innovatieve en duurzame hoogbouw
Om direct naar je favorieten te kunnen gaan is het nodig om eerst in te loggen.
Nieuw
Populair
Categorieën
Favorieten
Toon alles
De energiemarkt revolutionair vernieuwen
Festivalterrein als inspiratie van dit kantoor
De antieke Agora als inspiratie voor een kantoor
Renovatieproject Ockenburghstraat
Aluminium kozijnen: de isolerende oplossing
Prinsenpark, Rotterdam
ASML Gebouw 3
IVY, Amsterdam
IKC De Brug
Houthavens, Amsterdam
Architectuur
Woningbouw
Zorg
Hotels
Restaurants en café’s
Winkels
Sportgebouwen
Culturele gebouwen
Overheidsgebouwen
Scholen
Kantoren
Bedrijfsgebouwen
Paviljoens en kunst
Overig
Mobiliteit en infrastructuur
Trein- en metrostations
Luchthavens
Busstations
Parkeergarages
Fietsparkeren
Wegen
Bruggen
Water
Energie
Tankstations en laadstations
Waterzuivering en afvalverwerking
Overig
Stedenbouw en landschapsarchitectuur
Regionale visies
Gebiedsvisies
Plannen stedelijk weefsel
Amusementsparken en dierentuinen
Lichtontwerpen
Openbare ruimte
Pleinen
Parken
Tuinen
Speelplaatsen
Uitkijktorens
Overige (bijv. begraafplaatsen)
Om direct naar je favorieten te kunnen gaan is het nodig om eerst in te loggen.
Nieuw
Populair
Categorieën
Favorieten
Toon alles
Control Track Versa
Langdurige flexibiliteit voor kantoren van de toekomst
Toegankelijkheid in de stad: klanktegels als gids
Een nieuwe dimensie in stadsontwerp: integreren van klank voor een inclusieve ervaring.
Dreentegel
Terug van weggeweest
Flux-totaalaanbod vraaggestuurde Renson WTW-ventilatie
Compacte wand- en plafondmontage voor alle debieten
Wie denkt er aan slopen tijdens bouwen?
Kies voor de toekomst, kies voor circulair isoleren!
Digital Prints
Meer mogelijkheden in gekleurd staal
Element+ H-I
Hout - Aluminium Elementgevel
Vierkante vluchtroutearmaturen voor grote ruimtes
Zichtbare veiligheid van alle kanten
GROHE Cubeo: kranen voor elke badkamer
Stijlvol en duurzaam design voor jarenlang plezier
Schüco Zonweringsysteem Integralmaster in FWS
Bescherming tegen zon, verblinding en privacy – verborgen en volledig geïntegreerd
Gevels
Gevelbekleding
Vliesgevels
Zonwering buiten
Isolatie
Gevelconstructies
Signing
Overig
Daken
Dakafwerkingen
Dakisolatie
Dakconstructies
Dakranden, dakgoten en HWA's
Dakramen
Lichtkoepels
Lichtstraten
Schoorstenen
Overig
Dakluiken
Ramen en deuren
Raam- en deursystemen / kozijnen
Vliesgevels
Hang- en sluitwerk
Beveiliging en luiken
Dorpels en vensterbanken
Lateien
Roosters
Glas
Dakramen
Dakkoepels
Lichtstraten
Zonwering buiten
Zonwering binnen
Buitendeuren
Binnendeuren
Postvakken en brievenbussen
Overig
Dakluiken
Trappen, liften en balustrades
Trappen
Roltrappen
Liften
Balustrades en hekwerken
Galerijen
Binnenwanden
Binnenwanden
Wandafwerking
Vloeren
Constructieve vloeren
Verhoogde vloeren
Vloerafwerkingen
Overig
Plafonds
Tegels
Lineair
Grill
Open en roosters
Naadloos
Eilanden en baffles
Plafondafwerkingen
Ophangsystemen
Overig
Klimaatplafonds
Verlichting
Binnenverlichting
Buitenverlichting
Sanitair
Kranen en douchesets
Wastafels
Douchewanden en douchebakken
Baden
Waterclosets
Accessoires
Overig
Projectinrichting
Stoelen
Banken
Tafels
Kasten
Balies
Vrijstaande wanden
Keukens
Accessoires
Overig
Cabines
Interieurbeplanting
Stoffering
Installaties
Verwarming, koeling en ventilatie
Elektrotechnische installaties
Schakelmateriaal
Domotica
Deurcommunicatie
Beveiliging
Liften
Onderhoudsinstallaties
Overig
Brandbeveiliging
Constructies
Draagconstructies
Funderingen en kelders
Overig
Brandbeveiliging
Buitenruimte
Bestratingen en verhardingen
Afwateringen
Terreinafscheidingen en geluidsschermen
Buitenmeubilair
Fietsparkeren
Terrassen
Terrasoverkappingen
Bruggen
Accessoires
Overig
Beplanting
Sport- en speeltoestellen
Software
Tekenen 2D
Modelleren 3D / BIM
Visualisatie / rendering
Parametrisch ontwerpen
Bouwfysica
Draagconstructie
Overig
Virtual Reality
Cloudoplossingen
Om direct naar je favorieten te kunnen gaan is het nodig om eerst in te loggen.
Nieuw
Populair
Favorieten
Toon alles
Zomerwandelingen Nieuwe Stad op Zondag 2025
Amsterdam
Prefab beurs - 7 t/m 9 oktober 2025
Brabanthallen 's-Hertogenbosch
Boekpresentatie en panelgesprek met Floor Milikows
Prins Hendrikkade 600, 1011 VX Amsterdam
Architects Table ’25: Lunch & Inspiratie in HAUT Amsterdam
ATAG LIVE – HAUT gebouw, Spaklerweg 10F, 1096 BA Amsterdam (tegenover metrostation Spaklerweg)
Inspiratiedag @ Sempergreen – Gevelgroen
Defensieweg 1, 3984 LR Odijk
Architects Table ’25: Lunch & Inspiratie in HAUT Amsterdam
ATAG LIVE – HAUT gebouw, Spaklerweg 10F, 1096 BA Amsterdam (tegenover metrostation Spaklerweg)
Ontdek het seminarieprogramma van Architect@Work Amsterdam
De Kromhouthal, Gedempt Hamerkanaal 231, Amsterdam
LIAG over duurzaamheid centraal in project
Online
1.Lectures HouseEurope! Renovate, don’t speculate
Pakhuis de Zwijger
Zomerwandelingen Nieuwe Stad op Zondag 2025
Amsterdam
Om direct naar je favorieten te kunnen gaan is het nodig om eerst in te loggen.
Nieuw
Toon alles
Design
Duurzaamheid
Gevel
Infrastructuur
Interieur
Kantoren
Leisure
Openbare ruimte
Publieke gebouwen
Scholen
Transformatie en Renovatie
Woningbouw
Zorg
Om direct naar je favorieten te kunnen gaan is het nodig om eerst in te loggen.
Nieuw
Populair
Toon alles
Junior Architect (NL/EN)
De Academie van Bouwkunst Amsterdam zoekt twee onderzoekers voor lectoraat
Site Practice zoekt medior architect met 3-6 jaar ervaring (Amsterdam)
DAT zoekt een BIM Modelleur (Revit)
stagiair bouwkunde Heerenveen
Meewerkend Voorman
Architect
Junior Architect gezocht!
Junior Ontwerper
Studio Nauta zoekt projectleider
wUrck zoekt junior Architect
Project Architect
Om direct naar je favorieten te kunnen gaan is het nodig om eerst in te loggen.
Producten
Copyright: BASE Photography
Copyright: BASE Photography
Copyright: Ossip van Duivenbode
Copyright: Ossip van Duivenbode
Copyright: Ossip van Duivenbode
Copyright: BASE Photography
Copyright: Ossip van Duivenbode
Copyright: Ossip van Duivenbode
Copyright: BASE Photography
Copyright: BASE Photography
Copyright: BASE Photography
Copyright: BASE Photography
Copyright: Ossip van Duivenbode
Copyright: BASE Photography
Copyright: BASE Photography
Copyright: Ossip van Duivenbode
Copyright: Ossip van Duivenbode
Copyright: Ossip van Duivenbode
Copyright: BASE Photography
Copyright: Ossip van Duivenbode
Copyright: Ossip van Duivenbode
Copyright: Ossip van Duivenbode
Copyright: Ossip van Duivenbode
Isometrie
Copyright: diederendirrix, architecten|en|en
Situatie
Copyright: Buro Lubbers
Begane grond
Copyright: diederendirrix, architecten|en|en
Eerste verdieping
Copyright: diederendirrix, architecten|en|en
Aanzicht vanaf de Kanaalstraat
Copyright: diederendirrix, architecten|en|en
Aanzicht vanaf de Tramstraat
Copyright: diederendirrix, architecten|en|en
Aanzicht vanaf de Augustijnendreef
Copyright: diederendirrix, architecten|en|en
Aanzicht vanaf de binnenplaats
Copyright: diederendirrix, architecten|en|en
Producttags
AAN
UIT
DomusDela, Eindhoven
1 juli 2020
1
0
0
0
De geschiedenis van Klooster Mariënhage gaat terug tot de oorsprong van Eindhoven in de 11e eeuw. Met de bouw van kasteel Ten Hage werden aan de Dommel de eerste fundamenten van het latere klooster Mariënhage gelegd. Jan van Schoonvorst, de heer van Eindhoven, schonk het kasteel in 1419 aan vijf vrome burgers, die er een klooster stichtten. Sindsdien heeft het klooster roerige tijden doorgemaakt. Het is verwoest, verbrand, weer herbouwd en het complex heeft zeer uiteenlopende functies vervuld. In 2017 verhuisden de laatste augustijnen en werd Mariënhage aangekocht door uitvaart- en verzekeringsbedrijf
Dela
, met het doel om er een ceremoniehuis ‘
DomusDela
’ in te vestigen. Met de nieuwe functies, bouwkundige aanpassingen en architectonische toevoegingen bouwen we verder op de rijke historie van het Rijksmonument
.
Conserveren en verbinden
Om kloostercomplex Mariënhage te
herbestemmen
was het conserveren en verduurzamen van voormalige de Paterskerk, het Augustijns Instituut, het gymnasium en de kapel Augustinianum noodzakelijk. De belangrijkste opgave was echter om het gesloten complex te openen en onderdeel te maken van het stedelijk weefsel. Om de toegankelijkheid van het kloostercomplex te verbeteren was het bovendien van belang om de bestaande bebouwing helder en logisch met elkaar te verbinden.
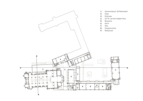
De centrale knoop
Het nieuwe bouwvolume tussen de kerk, het Augustijns Instituut en het gymnasium verbindt de losstaande historische bouwdelen met elkaar. Deze centrale ‘knoop’ organiseert de interne routing en voorziet het complex tegelijkertijd van drie nieuwe entrees. Via de Kanaalstraat, de Tramstraat en de binnentuin ontsluiten we het nieuwe complex en maken we een stedenbouwkundige verbinding met de omgeving.
De knoop verbindt de buitenwereld met de binnenwereld van DomusDela en vice versa. Via de nieuwbouw betreedt een bezoeker het bestaande gedeelte. De afleesbaarheid van de toegevoegde ruimte en het eigentijdse karakter van de transformatie benadrukken we hiermee. Dit komt tevens tot uiting in de materialisering. De witkleurige nieuwbouw van glas en aluminium is helder en transparant en contrasteert nadrukkelijk met het baksteen van de bestaande gebouwen. Het nieuwe volume is zodanig vormgegeven dat het zicht vanuit de nieuwbouw op het historische gedeelte steeds wordt ingekaderd door vensters. Zo ontstaat een enscenering van het oude door het nieuwe. Je kijkt door de kaders van het heden naar het verleden, waardoor je de historie van het gebouw steeds opnieuw ontdekt.
Restauratie en herbestemming
Bij de restauratie van de Paterskerk (architect Hegener, 1898), Gymnasium Augustinianum (architect Hegener, 1913 & 1918), de uitbreiding van het gymnasium (architect Bellot, 1924) en de kapel Augustinianum (architect Bellot, 1925) is behoud en de versterking van de bestaande kwaliteiten een belangrijk focus geweest. De kerk en de kapel zijn ontdaan van zoveel mogelijk religieuze duiding en nu geschikt voor veel meer soorten bijeenkomsten, voorstellingen en feesten. De leslokalen en overige ruimtes van het voormalige gymnasium waren zeer geschikt om te transformeren tot hotelkamers en een brasserie.
Een nieuwe hotspot
De nieuwe functionaliteit en transparantie voegen een nieuwe openbare ruimte en een eigentijdse ontmoetingsplek toe aan de stad voor alle inwoners van Eindhoven. Een publiek podium dat ruimte biedt aan een uiteenlopend programma voor rouw- en trouwplechtigheden, concerten, congressen, lezingen, culturele activiteiten en feesten. DomusDela is een nieuw brandpunt van architectonische-, stedenbouwkundige, culturele en sociale verbinding op het kruispunt van heden en verleden. Met deze geheel nieuwe dynamiek is Eindhoven een belangrijke stedelijke hotspot rijker.
Stel jezelf kort voor! Dan weet het betreffende bedrijf wie hun model gedownload heeft.
Wil je niet bij elke download jouw gegevens in hoeven voeren?
Klik dan hier om in te loggen
.
Heb je nog geen account?
Maak dan hier een gratis account aan
.
Voornaam
Achternaam
E-mailadres
Downloaden
Wanneer je modellen downloadt op Architectenweb.nl worden relevante gegevens van jou – zoals jouw naam en e-mailadres – met het betreffende bedrijf gedeeld. Meer hierover lees je in ons
privacybeleid
.
Locatie
Trefwoorden
eindhoven
renovatie en uitbreiding
congrescentrum
architectuur
auditoria
transformatie
herbestemming monumenten
renovatie
architecten|en|en
herbestemming kerken
theater
diederendirrix
3 sterren hotel
horeca
architecten|en|en
Neem contact op
Projectdata
Staat van realisatie
Voltooid
Start ontwerpproces
2013
Start bouw
2014
Oplevering
2019
Ingebruikname
2019
Plaats
Eindhoven
Bruto m
2
9200
Meewerkende partijen
Architect
architecten|en|en
Interieurarchitect
Wieneke van Gemeren
Projectarchitect
Bert Dirrix, Arie van Rangelrooy
Ontwerpteam
Thorsten Scheinder, Frans Benjamins
Opdrachtgever
Coöperatie DELA
Aannemer
Bouwbedrijf van de Ven
Constructeur
Adviesbureau Tielemans Eindhoven
Adviseurs installaties E & W
Huisman en Van Muijen
Fotograaf
©Ossip Van Duivenbode, Base Photography
Stedenbouwkundige
Hoesbergen Advies
Landschapsarchitect
BURO LUBBERS Landschapsarchitectuur & Stedenbouw
Meewerkend architect
BureauEAU
Projectmanagement
Bureau Franken Project- & Bouwmanagement
Adviseur bouwfysica
K+ adviesgroep
Adviseur bouwkosten
Bureau Franken Project- & Bouwmanagement
Adviseur brandveiligheid
K+ adviesgroep
Leveranciers
Overig
Forster Nederland N.V.
, ©Ossip Van Duivenbode, Base Photography
Neem contact op met
architecten|en|en
Je bent momenteel niet ingelogd. Hierdoor is het alleen mogelijk om meer informatie per e-mail op te vragen. Wil je liever gebeld worden of documentatie per post ontvangen?
Klik dan hier om in te loggen
.
Heb je nog geen account?
Maak dan hier een gratis account aan
.
Voornaam
Achternaam
E-mailadres
Opmerkingen
Bij iedere aanvraag worden relevante gegevens van jou gedeeld met het betreffende bedrijf. Meer hierover lees je in ons
privacybeleid
.
Ja, denk met me mee rond de
materialisering van mijn project
Meer projecten van architecten|en|en
Markland College Oudenbosch
architecten|en|en
Koning Willem 2 College Tilburg
architecten|en|en
Nieuwbouw Basisschool Buitenstebinnen
architecten|en|en
Community living in het Hamsterhof
architecten|en|en
Ontvangstpaviljoens Natuurbegraafplaats de Utrecht
architecten|en|en
't Karregat
architecten|en|en
Cure Kantoorgebouw & Milieustraat
architecten|en|en
Het Mooiste Blauw
architecten|en|en
Jan Tinbergen College
architecten|en|en
Hogeschool Fontys Nexus
architecten|en|en
Flexwonen Willemstraat
architecten|en|en
Campus 013
architecten|en|en
Augustinianum
architecten|en|en
Loftwonen Strijp-S
architecten|en|en
Markland College Oudenbosch
architecten|en|en
Koning Willem 2 College Tilburg
architecten|en|en
Nieuwbouw Basisschool Buitenstebinnen
architecten|en|en
Community living in het Hamsterhof
architecten|en|en
Ontvangstpaviljoens Natuurbegraafplaats de Utrecht
architecten|en|en
't Karregat
architecten|en|en
Cure Kantoorgebouw & Milieustraat
architecten|en|en
Het Mooiste Blauw
architecten|en|en
Jan Tinbergen College
architecten|en|en
Hogeschool Fontys Nexus
architecten|en|en
Flexwonen Willemstraat
architecten|en|en
Campus 013
architecten|en|en
Augustinianum
architecten|en|en
Loftwonen Strijp-S
architecten|en|en
Toon alles
Andere Projecten
Festivalterrein als inspiratie van dit kantoor
Tétris Design & Build
De energiemarkt revolutionair vernieuwen
Tétris Design & Build
De antieke Agora als inspiratie voor een kantoor
Tétris Design & Build
Renovatieproject Ockenburghstraat
Caparol
Aluminium kozijnen: de isolerende oplossing
Aliplast Aluminium Systems
Houten huis in de polder - WaxedWood Gold Color
Foreco Houtproducten
FÆnslet
VELUX Commercial Benelux B.V.
Den Hartogh Basecamp
Schüco Nederland BV
Werkplekken met verhoogd risico - Laboratoria
INOTEC Noodverlichting B.V.
Exclusieve wooneenheden
SAPA
Duurzaam afvalmanagement in nieuwbouw van Alrijne
Stansz
Woningen op BEFU terrein Utrecht
SAB-profiel bv
Ga naar het projecten-overzicht
Voor een optimale gebruikservaring plaatst Architectenweb functionele cookies. Wat de verschillende cookies precies doen leggen we uit in een
overzicht
. Cookies van social media kun je optioneel
aanzetten
.
Akkoord
Instellingen
Annuleren
OK
Sluiten
Doorgaan
Inloggen
Maak een gratis persoonlijk account aan
Feedback
Feedback
Wij horen graag jouw feedback. Laat je reactie achter en eventueel jouw e-mail adres.
Reactie
Verstuur