Projecten
Producten
Bedrijven
Vacatures
Agenda
Awards
Podcasts
more_horiz
Videos
Magazine
Favorieten
Profiel
Uitloggen
Abonneer je nu op onze nieuwsbrieven!
Abonneren
Nee, bedankt
Ja, denk met me mee rond de
materialisering van mijn project
Producten
Copyright: BASE Photography
Copyright: BASE Photography
Copyright: BASE Photography
Copyright: BASE Photography
Copyright: BASE Photography
Copyright: BASE Photography
Copyright: BASE Photography
Copyright: BASE Photography
Copyright: BASE Photography
Copyright: BASE Photography
Copyright: BASE Photography
Copyright: BASE Photography
Copyright: BASE Photography
Copyright: BASE Photography
Copyright: BASE Photography
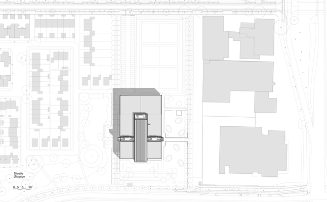
Situatie
Copyright: architecten|en|en & Studio Leon Thier
Begane grond
Copyright: architecten|en|en & Studio Leon Thier
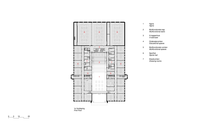
1e verdieping
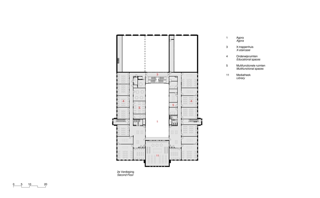
Copyright: architecten|en|en & Studio Leon Thier
2e verdieping
Copyright: architecten|en|en & Studio Leon Thier
Zuidgevel
Copyright: architecten|en|en & Studio Leon Thier
Westgevel
Copyright: architecten|en|en & Studio Leon Thier
Noordgevel
Copyright: architecten|en|en & Studio Leon Thier
Oostgevel
Copyright: architecten|en|en & Studio Leon Thier
Doorsnede A-A
Copyright: architecten|en|en & Studio Leon Thier
Doorsnede C-C
Copyright: architecten|en|en & Studio Leon Thier
Doorsnede G-G
Copyright: architecten|en|en & Studio Leon Thier
Producttags
AAN
UIT
Augustinianum
13 augustus 2018
0
0
0
0
Creativiteit en ontmoeting staan centraal in het nieuwe schoolgebouw van het Augustinianum. De ambitie van de school is om naast gedegen onderwijs ook sport, drama en popmuziek te stimuleren en in te zetten als beeldmerk: een school die uitstraalt waar hij voor staat en inhoud geeft aan het lesprogramma.
De huisvesting van het Augustinianum bleek niet meer geschikt voor de eisen van de huidige tijd. Besloten werd om een compacte nieuwbouw te realiseren met als centraal ontwerpidee de Agora, het symbool voor ontmoeting in het hart van de school. Rondom dit bijzonder leer- en pauzelandschap liggen de mediatheek en op verschillende verdiepingen de diverse ‘Vakdomeinen’ gericht op alfa, bèta en gamma.
Het ontwerp past bij de sportieve en culturele ambities van de school. De inrichting is geheel afgestemd op het creatieve onderwijs binnen het Augustinianum. Onder de oplopende tribune van de Agora, bevindt zich op de begane grond de ‘underground’ met ruimten voor drama, muziek, kunst en cultuur. Vanuit de opgetilde sportzalen kijkt men via grote vensters uit over de sportvelden.
Door de klaslokalen en stafruimten aan de buitengevels te leggen, ontstaat rondom de Agora een flexibele zone met allerlei functies. Deze flexibiliteit is bereikt door een slimme flexibele constructie van een dragende buitengevel, een gevel van dragende elementen aan de Agora en dragende elementen in één van de twee gangwanden. De transparante binnenwanden zorgen voor een ruimtelijke ervaring waarbij ontmoeting en inspiratie gestimuleerd wordt.
De Agoravloer loopt in terrassen op tot de eerste verdieping, waardoor een leer- en pauzelandschap ontstaat dat ook kan dienen als tribune bij voorstellingen.
Het podium voor deze tribune loopt van binnen naar buiten door, slechts gescheiden door een groot theaterraam met uitzicht op het groen. In dit venster is het fraaie glas-in-loodraam met een afbeelding van St. Augustinus uit het oude schoolgebouw opnieuw opgenomen. Boven het podium ligt de centrale Mediatheek, een mooie hoge studieruimte.
Een opgetild dak boven de Agora zorgt voor veel daglicht in de centraal gelegen Agora en de aangrenzende ruimten. Het daglicht wordt gefilterd door toepassing van translucente panelen. Doordat daglicht op deze wijze tot in het hart van het gebouw kan door dringen, ontstaat een prettig gebouw, met een zeer efficiënte opzet, die een grote mate van flexibiliteit in zich draagt.
Aan de buitenzijde biedt de mediatheek samen met het Buitenpodium een kenmerkend beeld richting de groene Geldropseweg. De Agora en het podium zijn in het dagelijkse leven van de school een geliefde plek voor de pauze. Bij mooi weer is er rondom de school tevens voldoende pauzegelegenheid in het groen. In de zomermaanden wordt het buitenpodium ingezet voor open lucht voorstellingen.
In de gevel verwijzen A-vormige prefab elementen naar de A van Augustinianum en de gevelelementen in het oorspronkelijke gebouw uit de jaren ’50.
“De architecten creëren met hoofd, buik en hart waardoor het ontwerp bij je past en raakt.”
Maarten de Veth, rector
Stel jezelf kort voor! Dan weet het betreffende bedrijf wie hun model gedownload heeft.
Wil je niet bij elke download jouw gegevens in hoeven voeren?
Klik dan hier om in te loggen
.
Heb je nog geen account?
Maak dan hier een gratis account aan
.
Voornaam
Achternaam
E-mailadres
Downloaden
Wanneer je modellen downloadt op Architectenweb.nl worden relevante gegevens van jou – zoals jouw naam en e-mailadres – met het betreffende bedrijf gedeeld. Meer hierover lees je in ons
privacybeleid
.
Locatie
Trefwoorden
architecten|en|en
schoolgebouw
agora
duurzaamheid
studio leon thier
eindhoven
onderwijsgebouw
nieuwbouw
middelbare school
creativiteit
onderwijs
frisse scholen
ontmoeting
architecten|en|en
Neem contact op
Projectdata
Staat van realisatie
Voltooid
Start bouw
2017
Plaats
Eindhoven
Bruto m
2
9545
Neem contact op met
architecten|en|en
Je bent momenteel niet ingelogd. Hierdoor is het alleen mogelijk om meer informatie per e-mail op te vragen. Wil je liever gebeld worden of documentatie per post ontvangen?
Klik dan hier om in te loggen
.
Heb je nog geen account?
Maak dan hier een gratis account aan
.
Voornaam
Achternaam
E-mailadres
Opmerkingen
Bij iedere aanvraag worden relevante gegevens van jou gedeeld met het betreffende bedrijf. Meer hierover lees je in ons
privacybeleid
.
Ja, denk met me mee rond de
materialisering van mijn project
Meer projecten van architecten|en|en
Markland College Oudenbosch
architecten|en|en
Koning Willem 2 College Tilburg
architecten|en|en
Nieuwbouw Basisschool Buitenstebinnen
architecten|en|en
Community living in het Hamsterhof
architecten|en|en
Ontvangstpaviljoens Natuurbegraafplaats de Utrecht
architecten|en|en
't Karregat
architecten|en|en
Cure Kantoorgebouw & Milieustraat
architecten|en|en
Het Mooiste Blauw
architecten|en|en
Jan Tinbergen College
architecten|en|en
DomusDela, Eindhoven
architecten|en|en
Hogeschool Fontys Nexus
architecten|en|en
Flexwonen Willemstraat
architecten|en|en
Campus 013
architecten|en|en
Loftwonen Strijp-S
architecten|en|en
Markland College Oudenbosch
architecten|en|en
Koning Willem 2 College Tilburg
architecten|en|en
Nieuwbouw Basisschool Buitenstebinnen
architecten|en|en
Community living in het Hamsterhof
architecten|en|en
Ontvangstpaviljoens Natuurbegraafplaats de Utrecht
architecten|en|en
't Karregat
architecten|en|en
Cure Kantoorgebouw & Milieustraat
architecten|en|en
Het Mooiste Blauw
architecten|en|en
Jan Tinbergen College
architecten|en|en
DomusDela, Eindhoven
architecten|en|en
Hogeschool Fontys Nexus
architecten|en|en
Flexwonen Willemstraat
architecten|en|en
Campus 013
architecten|en|en
Loftwonen Strijp-S
architecten|en|en
Toon alles
Andere Projecten
De stad van Aedes: waar werken wonen wordt
Tétris Design & Build
Nieuwbouw Residentie ZICHT Venlo
Knauf Insulation
Light House
Studioninedots
Nieuwbouw Slingeland Ziekenhuis Doetinchem
Knauf Insulation
Fraké Noir gevelbekleding op sanitairgebouw
Houthandel van Dam
The Family Delft
Houthandel van Dam
Houtlook lamellen voor aantrekkelijke nieuwbouw
Renson
De Toerist in Breda
DUCO Ventilation & Sun Control
Solarlux vouwwanden - Zuidkade Scheveningen
Solarlux Nederland B.V.
Multifunctioneel gebouw met aluminium vliesgevel
Aliplast Aluminium Systems
Van gesloten gevel naar transparant visitekaartje
Rockpanel
Den Hartogh Basecamp (Video)
Schüco Nederland
Ga naar het projecten-overzicht
Voor een optimale gebruikservaring plaatst Architectenweb functionele cookies. Wat de verschillende cookies precies doen leggen we uit in een
overzicht
. Cookies van social media kun je optioneel
aanzetten
.
Akkoord
Instellingen
Annuleren
OK
Sluiten
Doorgaan
Inloggen
Maak een gratis persoonlijk account aan
Feedback
Feedback
Wij horen graag jouw feedback. Laat je reactie achter en eventueel jouw e-mail adres.
Reactie
Verstuur