Projecten
Producten
Bedrijven
Vacatures
Agenda
Awards
Podcasts
more_horiz
Videos
Magazine
Thema's
Favorieten
Profiel
Uitloggen
Producten
Copyright: MWA Hart Nibbrig
Copyright: MWA Hart Nibbrig
Copyright: MWA Hart Nibbrig
Copyright: MWA Hart Nibbrig
Copyright: Serge Schoemaker Architects
Copyright: MWA Hart Nibbrig
Copyright: Serge Schoemaker Architects
Copyright: Serge Schoemaker Architects
Producttags
AAN
UIT
Renovatie herenhuis Utrecht
18 juli 2017
4
0
0
0
Met een combinatie van moderne, strakke lijnen en contrastrijke, klassieke materialen is de begane grond van dit herenhuis verbouwd tot een elegante woonruimte. De authentieke details zijn met het hoogwaardige interieurontwerp versmolten tot een nieuw, sfeervol geheel.
De herenhuizen rondom het Wilhelminapark in Utrecht zijn gebouwd aan het begin van de 20ste eeuw om de welgestelden uit die tijd een alternatief te bieden voor de drukke binnenstad. Dit ruime, neoclassicistische huis van onze opdrachtgevers dateert uit 1900 en is onderdeel van een aaneengesloten huizenblok ten westen van het park.
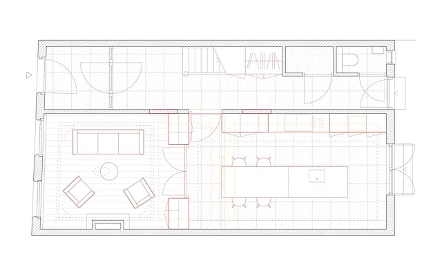
Het herenhuis heeft vier woonlagen, waarbij de volledige eerste verdieping als woonkamer fungeert. Op de begane grond bevindt zich aan de straatzijde een ‘stijlkamer’ met ornamentenplafond en marmeren schouw, dat ooit diende als ontvangstruimte. De overige ruimten op deze verdieping, de voormalige personeelsruimten, waren tot aan deze verbouwing relatief klein.
Bij de verbouwing van dit herenhuis besloten we om de keuken op de begane grond opnieuw te definiëren en vorm te geven als een luxe woonkeuken, die in open verbinding staat met zowel de achtertuin, als de stijlkamer aan de voorzijde. Door een paar eenvoudige bouwkundige aanpassingen heeft deze ruimte nu meer oppervlakte en licht gekregen en staat in betere verhouding tot de rest van het huis.
Een markante, nieuwe taatsdeur leidt bezoekers vanuit de hal direct naar de woonkeuken. De scheidingswand tussen keuken en stijlkamer is vervangen door grote inbouwkasten met dubbele openslaande deuren, waardoor woonkeuken en voorkamer nu fungeren als twee kamers en suite.
De authentieke details en ornamenten in het huis zijn abstract wit geschilderd, de nieuwe vloer in de hal en woonkeuken is uitgevoerd in gepolijst, wit marmer. De interieurbouw, die hier vervolgens aan is toegevoegd, is donker en ruw: vervaardigd uit gerookt eikenfineer zorgt deze voor contrast, warmte en intimiteit.
Stel jezelf kort voor! Dan weet het betreffende bedrijf wie hun model gedownload heeft.
Wil je niet bij elke download jouw gegevens in hoeven voeren?
Klik dan hier om in te loggen
.
Heb je nog geen account?
Maak dan hier een gratis account aan
.
Voornaam
Achternaam
E-mailadres
Downloaden
Wanneer je modellen downloadt op Architectenweb.nl worden relevante gegevens van jou – zoals jouw naam en e-mailadres – met het betreffende bedrijf gedeeld. Meer hierover lees je in ons
privacybeleid
.
Trefwoorden
sergeschoemakerarchitects
utrecht
renovatie
transformatie
interieur
erfgoed
Serge Schoemaker Architects
Neem contact op
Projectdata
Staat van realisatie
Voltooid
Start bouw
2017
Oplevering
2017
Bruto m
2
66
Meewerkende partijen
Ontwerpteam
Serge Schoemaker, Alexander Beeloo, Roxana Vakil Mozafari
Aannemer
Oostenbruggen Aannemersbedrijf
Fotograaf
MWA Hart Nibbrig
Landschapsarchitect
Luc Engelhard
Leveranciers
Overig
FritsJurgens
Neem contact op met
Serge Schoemaker Architects
Je bent momenteel niet ingelogd. Hierdoor is het alleen mogelijk om meer informatie per e-mail op te vragen. Wil je liever gebeld worden of documentatie per post ontvangen?
Klik dan hier om in te loggen
.
Heb je nog geen account?
Maak dan hier een gratis account aan
.
Voornaam
Achternaam
E-mailadres
Opmerkingen
Bij iedere aanvraag worden relevante gegevens van jou gedeeld met het betreffende bedrijf. Meer hierover lees je in ons
privacybeleid
.
Ja, denk met me mee rond de
materialisering van mijn project
Meer projecten van Serge Schoemaker Architects
Realisatie Loftwoning Amsterdam
Serge Schoemaker Architects
Uitbreiding woonhuis Amsterdam
Serge Schoemaker Architects
Verbouwing woonhuis Hoofddorp
Serge Schoemaker Architects
Renovatie grachtenhuis Amsterdam
Serge Schoemaker Architects
Verbouwing maisonnette Amsterdam
Serge Schoemaker Architects
Herbestemming Fort van Hoofddorp
Serge Schoemaker Architects
Realisatie tuinstudio Hoofddorp
Serge Schoemaker Architects
Verbouwing woonhuis Amsterdam
Serge Schoemaker Architects
Verbouwing woonhuis Hoofddorp
Serge Schoemaker Architects
Uitbreiding basisschool Haarlem
Serge Schoemaker Architects
Realisatie tuinstudio Bussum
Serge Schoemaker Architects
Realisatie Loftwoning Amsterdam
Serge Schoemaker Architects
Uitbreiding woonhuis Amsterdam
Serge Schoemaker Architects
Verbouwing woonhuis Hoofddorp
Serge Schoemaker Architects
Renovatie grachtenhuis Amsterdam
Serge Schoemaker Architects
Verbouwing maisonnette Amsterdam
Serge Schoemaker Architects
Herbestemming Fort van Hoofddorp
Serge Schoemaker Architects
Realisatie tuinstudio Hoofddorp
Serge Schoemaker Architects
Verbouwing woonhuis Amsterdam
Serge Schoemaker Architects
Verbouwing woonhuis Hoofddorp
Serge Schoemaker Architects
Uitbreiding basisschool Haarlem
Serge Schoemaker Architects
Realisatie tuinstudio Bussum
Serge Schoemaker Architects
Toon alles
Andere Projecten
Verlichting fietsenstalling Koopgoot Rotterdam
Loerakker led line
Efficiënt afvaltransport in ziekenhuis St. Jansdal
Stansz
Emco entreematten in museale architectuur
EMCO Benelux B.V.
Duurzame zwembadroosters voor zwemcentrum De Welle
EMCO Benelux B.V.
Gorter dakluiken op Spaarnwoude Park Hotel
Gorter Luiken BV
Veilige daktoegang nieuwbouw Emmapark
Gorter Luiken BV
Houten huis in de polder - WaxedWood Gold Color
Foreco Houtproducten
Ottho Amsterdam - geluidwerende balkonbeglazing
Solarlux Nederland B.V.
Groningse baksteenarchitectuur met Clickbrick Pure
wienerberger
Duurzame transformatie met groene gevel in Utrecht
Sempergreen
Low Carbon isolatieglas van Vandaglas voor Kavel F
Vandaglas b.v.
BDO kantoor Breda
ULMA Architectural Solutions
Ga naar het projecten-overzicht
Voor een optimale gebruikservaring plaatst Architectenweb functionele cookies. Wat de verschillende cookies precies doen leggen we uit in een
overzicht
. Cookies van social media kun je optioneel
aanzetten
.
Akkoord
Instellingen
Annuleren
OK
Sluiten
Doorgaan
Inloggen
Maak een gratis persoonlijk account aan
Feedback
Feedback
Wij horen graag jouw feedback. Laat je reactie achter en eventueel jouw e-mail adres.
Reactie
Verstuur