Projecten
Producten
Bedrijven
Vacatures
Agenda
Awards
Podcasts
more_horiz
Videos
Magazine
Thema's
Favorieten
Profiel
Uitloggen
Abonneer je nu op onze nieuwsbrieven!
Abonneren
Nee, bedankt
Ja, denk met me mee rond de
materialisering van mijn project
Producten
Copyright: MWA Hart Nibbrig
Copyright: MWA Hart Nibbrig
Copyright: MWA Hart Nibbrig
Copyright: MWA Hart Nibbrig
Copyright: MWA Hart Nibbrig
Copyright: MWA Hart Nibbrig
Copyright: MWA Hart Nibbrig
Copyright: MWA Hart Nibbrig
Copyright: MWA Hart Nibbrig
Copyright: Serge Schoemaker Architects
Copyright: Serge Schoemaker Architects
Producttags
AAN
UIT
Uitbreiding basisschool Haarlem
29 januari 2017
0
0
0
0
De Haarlemse basisschool Piramide Boerhaave heeft een metamorfose ondergaan. Enkele strategisch gekozen architectonische ingrepen heeft de school uit de jaren zestig een volledig nieuwe uitstraling gegeven, meer licht, lucht en ruimte. Het renovatieproject laat zien dat verbouw van wederopbouwscholen een volwaardig alternatief is voor sloop en nieuwbouw.
De basisschool is onderdeel van een karakteristieke groenstrook in Schalkwijk. Het hoofdgebouw is in 1964 gebouwd als lagere school, in 1967 zijn hier een gymzaal en kleuterschool aan toegevoegd. Met een heldere plattegrond en een semi-gestandaardiseerde bouwconstructie was de school voorloper van een reeks patioscholen in de jaren zestig.
De school had echter dringend behoefte aan een nieuwe start en een open uitstraling naar buiten. Het introverte schoolgebouw was verouderd, de uitstraling en kleurgeving gedateerd. De multiculturele school stond bekend als probleemschool, het aantal leerlingen liep terug. De geroemde patio’s werden verwaarloosd en bleven onbenut. Onderwijskundig had de school meer behoefte aan ruimte voor speciaal onderwijs, groepsactiviteiten en vieringen.
In 2015 kreeg Serge Schoemaker Architects de opdracht voor de renovatie en uitbreiding van de basisschool na een ontwerpend onderzoek onder de paraplu van Stichting Mevrouw Meijer. Het onderzoek toonde aan dat door verbouw – met minder kosten dan bij sloop en nieuwbouw – een toekomstbestendig resultaat kon worden bereikt. De klaslokalen van wederopbouwscholen zijn ruim en licht, wat deze gebouwen sowieso aantrekkelijk maakt voor renovatie.
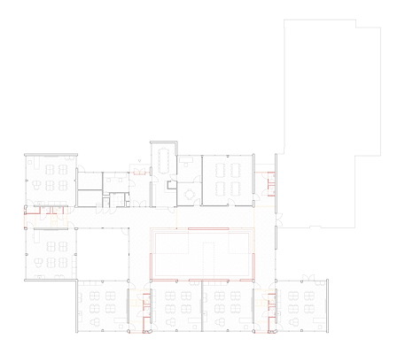
Het ontwerp voor de renovatie en uitbreiding maakt gebruik van de oorspronkelijke heldere gangenstructuur. Deze is ingezet als leidraad voor de uitbreiding. De gangeinden, welke eindigden in toiletgroepen, zijn opengebroken waardoor zichtlijnen zijn ontstaan naar de omgeving. Grote limoengroene raamkozijnen markeren nu de gangeinden van zowel binnen als buiten. Ze vormen onderdeel van een volledig nieuw kleurenpallet.
De grootste patio is overdekt en ingericht als multifunctionele aula. De in het dak aangebrachte verticale dakramen zijn zodanig gepositioneerd, dat het daglicht vanaf verschillende zijden binnenvalt, zonder dat er hinder wordt ondervonden van direct zonlicht. In de op maat vervaardigde zitelementen van berkenmultiplex, die de aula omkaderen, zijn de benodigde opbergvakken geïntegreerd. De met zorg vormgegeven, halfopen zaal zorgt voor een nieuwe ruimtelijkheid in de school, die extra ruimte biedt aan groepsactiviteiten en vieringen; educatie en cultuur.
Stel jezelf kort voor! Dan weet het betreffende bedrijf wie hun model gedownload heeft.
Wil je niet bij elke download jouw gegevens in hoeven voeren?
Klik dan hier om in te loggen
.
Heb je nog geen account?
Maak dan hier een gratis account aan
.
Voornaam
Achternaam
E-mailadres
Downloaden
Wanneer je modellen downloadt op Architectenweb.nl worden relevante gegevens van jou – zoals jouw naam en e-mailadres – met het betreffende bedrijf gedeeld. Meer hierover lees je in ons
privacybeleid
.
Locatie
Trefwoorden
haarlem
sergeschoemakerarchitects
basischool
schoolgebouw
renovatie
Serge Schoemaker Architects
Neem contact op
Projectdata
Staat van realisatie
Voltooid
Start bouw
2016
Oplevering
2016
Plaats
Haarlem
Bruto m
2
1200
Meewerkende partijen
Architect
Serge Schoemaker Architects
Ontwerpteam
Serge Schoemaker, Sanne Knoll, Alexander Beeloo, Roxana Vakil Mozafari
Aannemer
Kernbouw
Fotograaf
MWA Hart Nibbrig
Leveranciers
Overig
Forbo Eurocol Nederland B.V.
, MOSA,
Knauf B.V.
, MWA Hart Nibbrig
Neem contact op met
Serge Schoemaker Architects
Je bent momenteel niet ingelogd. Hierdoor is het alleen mogelijk om meer informatie per e-mail op te vragen. Wil je liever gebeld worden of documentatie per post ontvangen?
Klik dan hier om in te loggen
.
Heb je nog geen account?
Maak dan hier een gratis account aan
.
Voornaam
Achternaam
E-mailadres
Opmerkingen
Bij iedere aanvraag worden relevante gegevens van jou gedeeld met het betreffende bedrijf. Meer hierover lees je in ons
privacybeleid
.
Ja, denk met me mee rond de
materialisering van mijn project
Meer projecten van Serge Schoemaker Architects
Realisatie Loftwoning Amsterdam
Serge Schoemaker Architects
Uitbreiding woonhuis Amsterdam
Serge Schoemaker Architects
Verbouwing woonhuis Hoofddorp
Serge Schoemaker Architects
Renovatie grachtenhuis Amsterdam
Serge Schoemaker Architects
Verbouwing maisonnette Amsterdam
Serge Schoemaker Architects
Herbestemming Fort van Hoofddorp
Serge Schoemaker Architects
Realisatie tuinstudio Hoofddorp
Serge Schoemaker Architects
Verbouwing woonhuis Amsterdam
Serge Schoemaker Architects
Verbouwing woonhuis Hoofddorp
Serge Schoemaker Architects
Renovatie herenhuis Utrecht
Serge Schoemaker Architects
Realisatie tuinstudio Bussum
Serge Schoemaker Architects
Realisatie Loftwoning Amsterdam
Serge Schoemaker Architects
Uitbreiding woonhuis Amsterdam
Serge Schoemaker Architects
Verbouwing woonhuis Hoofddorp
Serge Schoemaker Architects
Renovatie grachtenhuis Amsterdam
Serge Schoemaker Architects
Verbouwing maisonnette Amsterdam
Serge Schoemaker Architects
Herbestemming Fort van Hoofddorp
Serge Schoemaker Architects
Realisatie tuinstudio Hoofddorp
Serge Schoemaker Architects
Verbouwing woonhuis Amsterdam
Serge Schoemaker Architects
Verbouwing woonhuis Hoofddorp
Serge Schoemaker Architects
Renovatie herenhuis Utrecht
Serge Schoemaker Architects
Realisatie tuinstudio Bussum
Serge Schoemaker Architects
Toon alles
Andere Projecten
Beverode-oost - Dieren
Loko Architecten bv
Hotel Catalonia in San Sebastián, Spanje
ULMA Architectural Solutions
Wonen als in een vrijstaand huis, Wiesbaden
objectflor
Isala Meppel
Dupral B.V.
Windsor Park te Gouda
WEBO
New Brooklyn – Almere Poort
VBI
Gorter op Hof van Maasdam
Gorter Luiken BV
Nieuwbouw 430 woningen, mét Gorter
Gorter Luiken BV
Verbouwing Veluwse Boerderij
AL architecten BNA-BNI
Woningen Viladomat in Barcelona, Spanje
ULMA Architectural Solutions
Antwerpen Kievit
HOSPER landschapsarchitectuur
Frigo-Trans GmbH Mezzaninevloer voor logistiek
Nolte Mezzanine
Ga naar het projecten-overzicht
Voor een optimale gebruikservaring plaatst Architectenweb functionele cookies. Wat de verschillende cookies precies doen leggen we uit in een
overzicht
. Cookies van social media kun je optioneel
aanzetten
.
Akkoord
Instellingen
Annuleren
OK
Sluiten
Doorgaan
Inloggen
Maak een gratis persoonlijk account aan
Feedback
Feedback
Wij horen graag jouw feedback. Laat je reactie achter en eventueel jouw e-mail adres.
Reactie
Verstuur