Zicht vanaf Cornelis Lelylaan
Copyright: Max Hart Nibbrig
Copyright: FARO en Van Bergen Architectura
Zicht vanaf binnengebied
Copyright: Max Hart Nibbrig
Corridor
Copyright: Max Hart Nibbrig
Entreehal
Copyright: Max Hart Nibbrig
Terrassen met trappen en glijbaan
Copyright: Max Hart Nibbrig
Terrassen
Copyright: Max Hart Nibbrig
Verbinding van corridor met terrassen en galerijen
Copyright: Max Hart Nibbrig
Verbinding van terrassen met galerijen
Copyright: Max Hart Nibbrig
Galerijen
Copyright: Max Hart Nibbrig
Model van netwerk van hallen, gangen en terrassen in het woongebouw
Copyright: Van Bergen Architectura
Aanzicht entreehal
Copyright: Max Hart Nibbrig
De brede en hoge corridor is in de gevel beëindigd met grote raampartij
Copyright: Andreas Secci
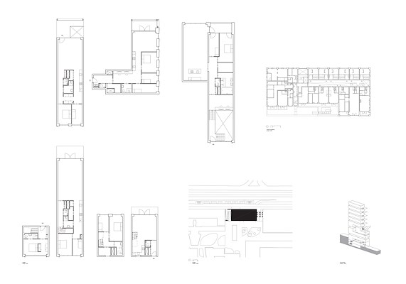
Verschillende woningtypen
Copyright: FARO en Van Bergen Architectura
Woongebouw voor gezinnen biedt ruime corridor en gekoppelde terrassen met glijbaan
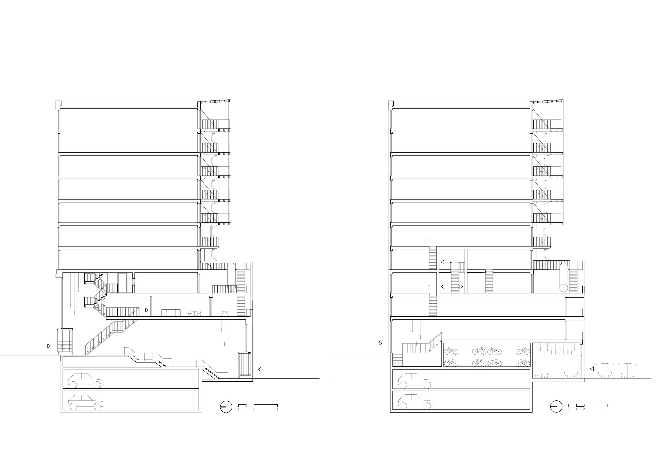
In opdracht van BuildingforLife, ProsperVitae en Heutink Groep hebben FARO en Van Bergen Architectura in Amsterdam Nieuw-West een woongebouw ontworpen waarin extra aandacht is besteed aan de vraag hoe gezinnen met kinderen er aantrekkelijk kunnen wonen. Dat heeft zich vertaald in een woongebouw met een bijzonder ruimtelijke hal, een extra brede en hoge corridor, aantrekkelijke galerijen en gekoppelde terrassen met een glijbaan. Een gebouw waar bewegen en ontmoeten centraal staan.
Het woongebouw staat aan de Cornelis van Eesterenlaan in Amsterdam Nieuw-West, naast het door Studioninedots ontworpen Westbeat, en bevat 85 koop- en huurwoningen die in grootte variëren van 60 tot 170 m2. De opgave op deze plek kende een aantal specifieke uitdagingen die FARO en Van Bergen Architectura hebben aangegrepen om een aantal uitzonderlijke ruimtelijke kwaliteiten te realiseren.
Een eerste uitdaging was dat de gegeven bouwenvelop onderin veel dieper was dan boven. Om die beschikbare ruimte optimaal te benutten worden de woningen onderin het gebouw via een ruime corridor ontsloten. Er liggen hier dubbellaagse woningen naast, boven en onder de corridor. Omdat de bouwenvelop onderin zo ruim was, konden de ontwerpers de galerij niet alleen dubbelhoog maar ook extra breed maken. Op die manier kon het dus een soort binnenstraat worden. Speciaal ontwikkelde deuren maken het eenvoudig om overal een blik naar binnen te werpen, zodat kinderen van verschillende gezinnen eenvoudig bij elkaar kunnen zien of ze thuis zijn.
Een tweede uitdaging was het forse hoogteverschil tussen de Cornelis van Eesterenlaan en het binnengebied achter het gebouw. Daarvoor moest maar liefst drie meter overbrugd worden. Dat gegeven is door de architecten benut door aan het binnengebied extra hoge horecaruimtes te realiseren, en daarachter, in het hart van de onderbouw, een gedeelde fietsparkeergarage. Aan de Cornelis van Eesterenlaan is het hoogteverschil gebruikt om daar bijzondere atelierwoningen te realiseren, met verdiept gelegen, extra hoge ruimtes aan de laan.

De entreehal van het gebouw steekt helemaal door het gebouw heen, zodat die zowel vanaf de laan als vanuit het binnengebied te betreden is, en dus ook een doorsteek te maken is. De houten trap die het hoogteverschil overbrugt is hier gelardeerd met houten glijbanen voor kinderen.
Ook bij de entreehal is het gelukt om deze extra hoog en breed te maken, en deze met een trap direct te verbinden met de ruime corridor erboven. Zo is het woongebouw effectief met zichzelf verbonden. Maar het gaat nog veel verder, want vanuit de tussenverdieping, met gemeenschappelijke ruimte voor de bewoners van het gebouw, kan ook de doorsteek gemaakt worden naar de terrassen buiten. Die terrassen liggen trapsgewijs ten opzichte van elkaar. Met stalen trappen is daarover een route omhoog gerealiseerd, waarbij tussen twee terrassen ook een glijbaan gemaakt is. Dijk&co heeft het landschap op de terrassen ontworpen.
Volg je de route over de terrassen helemaal omhoog, dan kom je uit op een plek waar een stalen wenteltrap omhoog leidt naar de galerijen bovenin het gebouw, maar een andere deur ook weer de verbinding legt met de corridor. “In dit woongebouw kunnen kinderen uiteindelijk rondjes rennen: van de hal, via de corridor, over de terrassen, terug de hal in…”, vertellen architecten Jurgen van der Ploeg van FARO en Michael van Bergen van Van Bergen Architectura enthousiast. De route over de terrassen buiten heeft trouwens een dubbelfunctie als vluchtroute.

De galerijen bovenin het gebouw tenslotte zijn vanwege de oriëntatie op het zuiden extra diep uitgevoerd en voorzien van ruimte om buiten te zitten, terwijl vides het geheel luchtig houden. Een bezoek aan het project leert dat de combinatie van galerij en balkons een uitstekende basis biedt om eenvoudig met je buren in gesprek te gaan. De vides maken het daarbij ook nog mogelijk om in gesprek te gaan met je beneden- of bovenburen.
De Bewegende Stad
“Met dit woongebouw, dat nu Cornelis is genoemd, hebben we een woongebouw ontworpen waarin de beleving van kinderen centraal staat en bewoners niet naast elkaar, maar mét elkaar wonen”, verklaart architect Jurgen van der Ploeg van FARO. “Binnen en buiten vloeien naadloos in elkaar over via royale hallen, lichte corridors, open trappen en collectieve ruimtes. Overal nodigt Cornelis uit tot ontmoeting – niet door regels of voorzieningen, maar door vanzelfsprekende ruimtelijke kansen.”

“De centrale entreehal is het centrum van deze ‘verticale stad’ met haar warme zuidelijke lichtinval is het de eerste ontmoetingsruimte. Dit is ook het begin van de avontuurlijke route door en over het gebouw. De traptuin vormt de groene ader, waar kinderen spelen en bewoners elkaar op natuurlijke wijze tegenkomen. Langs deze route brengen drie glaskunstwerken van Marjet Wessels Boer het daglicht op een poëtische manier het gebouw in. Zo ontstaat een woonomgeving waarin jong en oud samen kunnen groeien en elkaar blijven ontmoeten.”

“Cornelis sluit direct aan op De Bewegende Stad, het gemeentelijke programma waarin bewegen een vanzelfsprekend onderdeel is van stedelijk leven. Het gebouw maakt gebruik van het aanwezige hoogteverschil, waarbij houten glijbanen naast de trappen het hoogteverschil op speelse wijze overbruggen. Zo wordt bewegen letterlijk en figuurlijk een verbindende kracht.”
Wonen in de geest van Van Eesteren
“Cornelis bouwt ook voort op het gedachtegoed van Cornelis van Eesteren, ontwerper van het Algemeen Uitbreidingsplan (1943) voor de Westelijke Tuinsteden. Net als toen is er veel aandacht voor licht, lucht en ruimte, maar in Cornelis wordt dit verrijkt met eigentijdse thema’s als natuurinclusiviteit, ontmoeting, gezondheid en sociale inclusie.”

“De houten ontsluitingsroute door het gebouw verwijst naar de galerijen van de naoorlogse
strokenbouw – opnieuw ontworpen als een plek waar kinderen spelen en buren elkaar ontmoeten.
De groene traptuin, ontworpen door Dijk&co, maakt het ideaal van een stad in het groen tastbaar. Dankzij een slim irrigatiesysteem dat regenwater opvangt, blijft de beplanting het hele jaar door levendig.”

“De grijsgroene baksteen, speciaal voor Cornelis ontwikkeld, geeft het gebouw een herkenbare identiteit en symboliseert de diversiteit van de buurt. Binnen en buiten worden verbonden door het gebruik van groene Dolomiet hardsteen, dat terugkeert in de hal en plint van het gebouw. De houten looproutes – opgebouwd uit Azobé, Bamboe en Eiken – versterken de warme, natuurlijke uitstraling.”

“Cornelis is een gebouw dat verder gaat dan het bieden van woningen. Het is een sociale machine in architectuur, een plek waar bewoners elkaar ontmoeten, bewegen en samenleven op een vanzelfsprekende manier. Met zijn intergenerationele karakter, groene structuur, horeca en maatschappelijke functies geeft het gebouw vorm aan een nieuwe manier van stedelijk wonen – één die de sociale samenhang in de stad versterkt en toekomstbestendig wonen mogelijk maakt. Kortom, Cornelis houdt kinderen in de stad.”
Cornelis heeft een totale BVO van 13.400 m2, waarbij de dubbellaagse parkeergarage 1950 m2 kost. Het GO van het woonprogramma is 7845 m2, de gedeelde verkeersruimte beslaat uiteindelijk 1015 m2.

Het woongebouw is gebouwd door Heutink Groep. Dijk&co heeft het landschapsontwerp van de terrassen verzorgd, Buro Bouwfysica is verantwoordelijk voor de bouwfyisca, Van Rossum voor de draagconstructie, T&T Energie voor de energiehuishouding, Woodteq voor de houtconstructie en Techniplan voor de installaties.

Gerelateerde nieuwsberichten

Gerelateerde podcasts

Gerelateerde video's

Andere nieuwsberichten

Kraaijvanger Architects aan de slag met renovatie Station Zuidplein

24 december, 9:00

Concrete ontwerpt woongebouw in Philadelphia met gevelkunst door tattoo-artist Henk Schiffmacher

23 december, 12:00

Rotterdamse Academie van Bouwkunst stelt twee curatoren aan om thematische lijnen te ontwikkelen

22 december, 11:20

Den Haag ziet ruimte voor meer woningen in gebied Laakhavens-Hollands Spoor

19 december, 3:15

Fijne feestdagen en een gelukkig, gezond en succesvol 2026!

24 december, 1:00

Provincie Zuid-Holland: stroom van zee via Hoek van Holland naar Rotterdamse haven

23 december, 5:00

DNR geactualiseerd naar hedendaagse praktijk

19 december, 4:03

Inschrijving voor tiende editie Architectuurprijs Nijmegen geopend

19 december, 1:17

Tweede Kamer schuift aanpassing huurwet door naar nieuw kabinet

19 december, 9:13

Faillissement V&D laat nog altijd sporen na in winkelgebieden

18 december, 12:03
ATAG Nederland
KUBUS | Specialist in BIM-software
SAPA
Reynaers Aluminium Nederland
Jansen
SAB-profiel bv
Aliplast Aluminium Systems
Kingspan Light & Air
Hagemeister GmbH & Co. KG
ALUCOBOND®
Tarkett BV
Kawneer
Grohe Nederland B.V.
Malaysian Timber Council
OCS | Office Cabling Systems
Swisspearl Nederland
Forster Nederland N.V.
VELUX Commercial Benelux B.V.
Sempergreen
Houthandel van Dam
Aluprof Nederland BV
QbiQ Wall Systems
Forbo Flooring
Schüco Nederland
Cedral
Sto Isoned bv
Triflex bv
Gorter Luiken BV
wienerberger
Knauf Insulation
DUCO Ventilation & Sun Control
BEWI IsoBouw
Mview+
Rockfon (ROCKWOOL B.V.)
Gira Nederland B.V.
Kingspan Geïsoleerde Panelen
GEZE Benelux  B.V.
Renson
Metaglas Groep
ABB | Busch-Jaeger
Jung | Hateha B.V.
Knauf B.V.
Saint-Gobain Glass Benelux
Faay Vianen B.V.
objectflor
Boon Edam Nederland B.V.
Hunter Douglas Architectural
VOLA Nederland BV
Forbo Eurocol Nederland B.V.
EQUITONE gevelpanelen
Holonite B.V.
AXOR + hansgrohe
Tata Steel Colorcoat®
Architectenweb
Over ons
Contact

© 2002 - 2025 Architectenweb BV / Voorwaarden / Privacy / Disclaimer / Sitemap
Annuleren
OK
Sluiten
Doorgaan
Inloggen
Maak een gratis persoonlijk account aan