Copyright: Rogier Boogaard
Copyright: Rogier Boogaard
Copyright: Rogier Boogaard
Copyright: Rogier Boogaard
Copyright: Rogier Boogaard
Copyright: Rogier Boogaard
Copyright: Rogier Boogaard
Copyright: Rogier Boogaard
Copyright: Rogier Boogaard
Copyright: Rogier Boogaard
Copyright: Rogier Boogaard
Copyright: Rogier Boogaard
Copyright: Rogier Boogaard
Copyright: Mark Kuipers
Copyright: Mark Kuipers
Copyright: Mark Kuipers
Copyright: Mark Kuipers
Copyright: Mark Kuipers
Copyright: Mark Kuipers
Copyright: Mark Kuipers
Copyright: Mark Kuipers
Copyright: Mark Kuipers
Copyright: Mark Kuipers
Copyright: Mark Kuipers
Copyright: Mark Kuipers
Copyright: Mark Kuipers
Copyright: Mark Kuipers
Copyright: PPHP / Studio Juist
Copyright: PPHP / Studio Juist
Copyright: PPHP / Studio Juist
Copyright: PPHP / Studio Juist
De Nationale Balletacademie als huis voor de dansers van morgen
Na een jarenlange zoektocht naar een locatie in Amsterdam waar ze alle niveaus onder een dak kon brengen, heeft de Nationale Balletacademie een nieuw, eigen schoolgebouw in Overamstel. Architectenbureau PPHP, met Julia Holtland als projectarchitect, ontwierp een gebouw dat met bijvoorbeeld grote verdiepingshoogtes en weloverwogen lichtinval maatwerk biedt voor deze gebruiker. Het door PPHP ontworpen casco is door Studio RianKnop gebruikt als zichtbare basis voor een even warme als robuuste interieurlaag, met toepassing van zoveel mogelijk gerecyclede materialen.
De Nationale Balletacademie (NBA) gaf haar lessen op verschillende locaties, verspreid door Amsterdam, waarbij ze regelmatig het gebouw deelde met andere disciplines binnen de Amsterdamse Hogeschool van de Kunsten (AHK). Nadat ze jaren op zoek was naar een eigen plek en na verschillende gestrande projecten, kwam een locatie in Overamstel beschikbaar. Dit bedrijventerrein ondergaat een transformatie tot een wijk met gemengd programma: het Kauwgomballenkwartier, vernoemd naar de kauwgomfabriek die ooit in het gebied gevestigd was.

In opdracht van ontwikkelaar Zadelhoff & Nijkerk Holding en de AHK ontwierp PPHP een verzamelgebouw, met ruimte voor onder andere de NBA. De nieuwbouw bestaat uit 4.500 m2 en is opgesplitst in drie delen; hiervan worden er twee door de balletacademie gebruikt en wordt het derde deel verhuurd als kantoorruimte.

De delen zijn elk uitgewerkt in een eigen materialisering, die voortvloeide uit de beoogde functies, vertelt Julia Holtland. Zij heeft, voordat ze Studio Juist startte, bij PPHP als projectarchitect aan de Nationale Balletacademie gewerkt. Holtland was betrokken vanaf het stedenbouwkundig ontwerp in 2018 tot en met de oplevering, eind 2023. Voor PPHP was de NBA één van de laatste projecten; Sjoerd Soeters besloot halverwege 2023 zijn bureau te stoppen. In oktober 2024 is het nieuwe onderkomen van de NBA officieel geopend door Koningin Máxima.
Royale ruimten met bijzondere lichtinval
Het ontwerp is een echte maatwerkoplossing, vertelt Holtland, waartoe veelvuldig overleg is gevoerd met de gebruikers van het gebouw. Voor de dansstudio’s zijn grote verdiepingshoogtes gerealiseerd en in het hele gebouw kennen de ruimten bijzondere lichtinval.

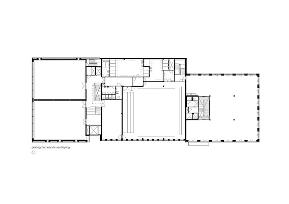
De NBA wilde al haar onderdelen samenbrengen in één gebouw, ‘één huis’, zodat dansers van alle niveaus elkaar zouden kunnen zien, ontmoeten en van elkaar zouden kunnen leren. Daarom komen de balletstudio’s, de kantine, lesruimten en kleedkamers uit in de centrale hal of circulatieruimte. Deze ruimte verbindt met trappen, vides en een tribune de begane grond en verdiepingen. Via twee grote daklichten valt daglicht binnen en vindt via de vides zijn weg over alle lagen.

Aan de noordzijde van het gebouw liggen gestapeld vijf balletstudio’s, met in de toekomst zicht op het park dat hier wordt aangelegd. Grote raampartijen aan de parkzijde en smalle hoge ramen aan de zijkant van de studio’s resulteren in prettige en geleidelijk verlichte ruimten.
Dubbel gebruik
De ‘grote zaal’ bevindt zich aan de westzijde, georiënteerd op de Nicolaas Tetterodestraat. Deze tien meter hoge ruimte is voorzien van een gevel met verschillende openingen. Ze zijn in schaal en ritme afgestemd op het zicht van binnen naar buiten en andersom. De zaal kan worden gebruikt als een met daglicht overgoten balletstudio, maar kan ook volledig worden verduisterd om te fungeren als zaal voor voorstellingen.

Bij een balletacademie zijn mensen wellicht geneigd om meteen te denken aan een gebouw met enorme grandeur, zegt Holtland; het budget van de school was echter beperkt. “We hebben daarom alle ruimtes zo efficiënt mogelijk ontworpen en waar mogelijk ruimtes geschikt gemaakt voor dubbel gebruik.” De balletstudio die ook is te gebruiken als zaal voor voorstellingen is daarvan een voorbeeld.

De grote verdiepingshoogtes en het constructieve grid bieden overigens de mogelijkheid voor een eventuele andere indeling van het gebouw. Indien gewenst kan het pand worden getransformeerd voor een nieuwe bestemming. In de grote zaal kan bijvoorbeeld een vloer worden toegevoegd, aldus de projectarchitect.
Een belangrijk aandachtspunt in het gebouw zijn geluid en trillingen. Springende dansers leveren enorme trillingen in de vloer op, legt Holtland uit. Als er in de ondergelegen ruimte les wordt gegeven of op een ander ritme wordt gedanst, mogen deze trillingen niet merkbaar zijn. In overleg met adviesbureau Peutz zijn er speciale ontkoppelde plafonds toegepast. Daarnaast wordt de massa van de constructieve wanden aan weerskanten van de centrale hal ingezet om trillingen op te vangen.

“We hebben ervoor gekozen om deze wanden van prefab beton niet af te werken, maar om een reeks nissen aan te brengen die schaal en ritme toevoegen aan de vijftien meter hoge centrale hal”, vertelt Holtland. Op deze manier is elk onderdeel in het gebouw integraal benaderd, legt ze uit.
Ruw en gerecycled
Studio RianKnop werd bij het ontwerpteam betrokken nadat het ontwerp van het casco gereed was, om te reflecteren op de indeling en het interieur vorm te geven. “Het door PPHP ontworpen casco hebben wij omarmd en als zichtbare basis gebruikt”, vertelt de ontwerpstudio. “We voegden warmte toe aan het ruwe casco door middel van kleur en materiaal.” Studio RianKnop heeft daarbij de klassieke kleur van het theater, bordeauxrood, gemengd met ‘balletroze’. “De toepassing is echter een volledig andere dan men zou verwachten.”

Gezien het bescheiden budget van de academie, de keuze om in sfeer en stijl aan te sluiten op het robuuste casco én de keuze om bewust geen ‘decorlaag’ toe te voegen, is gewerkt met bouwmaterialen en toepassingen die onderdeel zijn van de ruwbouw, vertelt Studio RianKnop. De toepassing van gerecyclede materialen betekende bovendien een vermindering van de milieubelasting van het nieuwbouwproject.
Gezien de specifieke wensen van de opdrachtgever was nieuwbouw onontkoombaar en de wens om dat duurzaam te doen was niet altijd eenvoudig in te willigen, legt de studio uit. In het interieur is er ruimschoots aan tegemoet gekomen. Zo zijn de zitelementen op maat gemaakt van gerecycled bouwmateriaal, met een plint van bakstenen.

Verder is bijvoorbeeld het akoestisch plafond als een ‘rode loper’ uitgerold over het plafond, om leerlingen en bezoekers een grande entree te bieden. De receptie biedt een gastvrije ontvangst en de drempels zijn bewust laag gehouden in alle ruimten. Minimalistische, welhaast zakelijke lichtarmaturen passen bij de bouwkundige betonnen wanden; de plaatsing is afgestemd op het ritme van de nissen in de betonwanden. De wanden zijn gemaakt van akoestisch plaatmateriaal. Door deze ontwerpbenadering, waarbij de bouwlaag deels de interieurlaag is geworden, betekende een significante budgetbesparing.
Plek voor diverse gebruikers en activiteiten
Het gebouw wordt gebruikt door leerlingen ven verschillende niveaus. De vooropleiding begint bij voorkeur rond het tiende jaar en duurt zeven of acht jaar. De eerste twee jaar ervan lopen parallel met groep 7 en 8 van het basisonderwijs en de volgende jaren lopen parallel met de het voortgezet onderwijs, op verschillende niveaus. De leerlingen volgen zowel regulier als dansonderwijs. Leerlingen van het voortgezet onderwijs maken in het gebouw hun huiswerk en bereiden zich voor op de danslessen voordat ze de dansstudio’s ingaan. Na de vooropleiding volgt de HBO-opleiding; de studenten krijgen zowel hun theorie- als danslessen in het gebouw. Ook de docenten brengen een groot deel van hun dag door bij de NBA.

Voor deze verschillende gebruikers en voor hun wisselende activiteiten gedurende de dag zijn plekken in het gebouw gerealiseerd. Waar mogelijk zijn bijvoorbeeld stretchplekken en relaxzones gerealiseerd, waar de leerlingen de nodige zorg aan hun lichaam kunnen besteden. In de kantine met pantry, waar leerlingen zelf hun maaltijden kunnen opwarmen, kunnen ze eten, maar ook relaxen, stretchen en huiswerk maken. Royaal uitgeruste, sfeervolle kleedkamers geven de gewenste privacy.

Er zijn plekken waar in stilte kan worden gewerkt en er zijn deels gesloten overlegplekken. Op de eerste verdieping is de tribunetrap het centrale ontmoetingspunt, van waaruit zicht op de studio’s en andere verdiepingen is. De vleugel met kantoren en een docentenkamer geeft de medewerkers van de NBA een plek om in rust het ondersteunend werk uit te voeren.
Onderdeel van de transformatie van het voormalige bedrijventerrein is een complete herinrichting van de openbare ruimte. De rooilijn van het nieuwe gebouw is teruggelegd om ruimte te bieden aan een brede, groene straat langs het pand. Aan de noordzijde van het gebouw realiseert de gemeente Amsterdam een park, waar de NBA straks op kan uitkijken.

Gerelateerde nieuwsberichten

Andere nieuwsberichten

Kraaijvanger Architects aan de slag met renovatie Station Zuidplein

24 december 2025, 9:00

Concrete ontwerpt woongebouw in Philadelphia met gevelkunst door tattoo-artist Henk Schiffmacher

23 december 2025, 12:00

Rotterdamse Academie van Bouwkunst stelt twee curatoren aan om thematische lijnen te ontwikkelen

22 december 2025, 11:20

Den Haag ziet ruimte voor meer woningen in gebied Laakhavens-Hollands Spoor

19 december 2025, 3:15

Fijne feestdagen en een gelukkig, gezond en succesvol 2026!

24 december 2025, 1:00

Provincie Zuid-Holland: stroom van zee via Hoek van Holland naar Rotterdamse haven

23 december 2025, 5:00

DNR geactualiseerd naar hedendaagse praktijk

19 december 2025, 4:03

Inschrijving voor tiende editie Architectuurprijs Nijmegen geopend

19 december 2025, 1:17

Tweede Kamer schuift aanpassing huurwet door naar nieuw kabinet

19 december 2025, 9:13

Faillissement V&D laat nog altijd sporen na in winkelgebieden

18 december 2025, 12:03
Robert MuisRedacteur
ATAG Nederland
KUBUS | Specialist in BIM-software
SAPA
Reynaers Aluminium Nederland
Jansen
SAB-profiel bv
Aliplast Aluminium Systems
Kingspan Light & Air
Hagemeister GmbH & Co. KG
ALUCOBOND®
Caparol
Tarkett BV
Kawneer
Grohe Nederland B.V.
Malaysian Timber Council
OCS | Office Cabling Systems
Swisspearl Nederland
Forster Nederland N.V.
VELUX Commercial Benelux B.V.
Sempergreen
Houthandel van Dam
Aluprof Nederland BV
QbiQ Wall Systems
Forbo Flooring
Schüco Nederland
Cedral
Sto Isoned bv
Triflex bv
Gorter Luiken BV
wienerberger
DUCO Ventilation & Sun Control
BEWI IsoBouw
ROCKWOOL B.V.
Mview+
Rockfon (ROCKWOOL B.V.)
Gira Nederland B.V.
Kingspan Geïsoleerde Panelen
GEZE Benelux  B.V.
Renson
Metaglas Groep
ABB | Busch-Jaeger
Jung | Hateha B.V.
Knauf B.V.
Saint-Gobain Glass Benelux
Faay Vianen B.V.
objectflor
Boon Edam Nederland B.V.
Hunter Douglas Architectural
VOLA Nederland BV
Forbo Eurocol Nederland B.V.
EQUITONE gevelpanelen
Holonite B.V.
AXOR + hansgrohe
Tata Steel Colorcoat®
Architectenweb
Over ons
Contact

© 2002 - 2026 Architectenweb BV / Voorwaarden / Privacy / Disclaimer / Sitemap
Annuleren
OK
Sluiten
Doorgaan
Inloggen
Maak een gratis persoonlijk account aan