Projecten
Producten
Bedrijven
Vacatures
Agenda
Awards
Podcasts
more_horiz
Videos
Magazine
Thema's
Favorieten
Profiel
Uitloggen
Abonneer je nu op onze nieuwsbrieven!
Abonneren
Nee, bedankt
Ja, denk met me mee rond de
materialisering van mijn project
Copyright: Stefan Müller
Copyright: Stefan Müller
Copyright: Stefan Müller
Copyright: Stefan Müller
Copyright: Stefan Müller
Copyright: Stefan Müller
Copyright: Stefan Müller
Copyright: Stefan Müller
Copyright: Stefan Müller
Copyright: Stefan Müller
Situatie
Copyright: Geurst & Schulze architecten
Blok 1, doorsnede
Copyright: Geurst & Schulze architecten
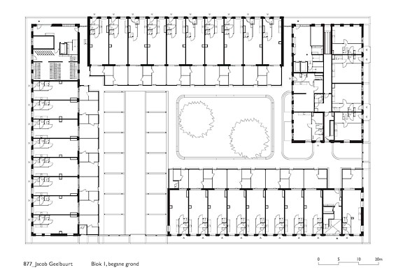
Blok 1, begane grond
Copyright: Geurst & Schulze architecten
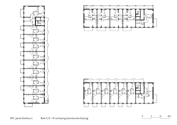
Blok 1, tweede tot en met de vierde verdieping
Copyright: Geurst & Schulze architecten
Blok 2, doorsnede
Copyright: Geurst & Schulze architecten
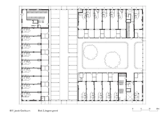
Blok 2, begane grond
Copyright: Geurst & Schulze architecten
Blok 2, tweede tot en met de vierde verdieping
Copyright: Geurst & Schulze architecten
262 woningen door Geurst & Schulze in Jacob Geelbuurt Amsterdam opgeleverd
23 oktober 2024, 14:58
In de Amsterdamse Jacob Geelbuurt Oost zijn 262 woningen naar ontwerp van
Geurst & Schulze architecten
opgeleverd. De woningen zijn ondergebracht in een aantal gebouwen rond een groen binnenhof. Alle woningen hebben een buitenruimte in de vorm van een tuin, balkon en terras.
Sinds 2013 wordt gewerkt aan de vernieuwing van de Jacob Geelbuurt in Amsterdam Nieuw-West, een buurt die deel uitmaakt van het Algemeen Uitbreidingsplan (AUP) van Van Eesteren en door het Rijk is aangewezen als Wederopbouwgebied van nationaal belang.
Het plan voor de vernieuwing
is geïnspireerd op de oorspronkelijke bebouwing en ontwikkeld met de bewoners van de gesloopte blokken.
De nu opgeleverde woningen vormen de eerste fase van het door Geurst & Schulze architecten ontworpen sluitstuk van de vernieuwing, dat in totaal zo’n vijfhonderd woningen omvat en in 2026 moet zijn afgerond. Van de 262 woningen in de eerste fase vallen er 130 in de sociale huur, veertig stuks zijn middenhuur en 92 woningen zijn aangeboden als koopappartement.
Voordeur aan de straat
De nieuwe bouwblokken bevatten gezinswoningen op de onderste twee verdiepingen met een voordeur aan de straat. Boven de maisonnettes liggen appartementen met een, twee of drie slaapkamers. Het parkeren is ingepast onder een pergola met begroeiing en is onderdeel van de binnenhof, die fungeert als een ontmoetingsplek voor de bewoners.
De architectonische uitwerking is geïnspireerd op de oorspronkelijke bebouwing met portieken in rode baksteen en met flauw hellende daken. In navolging van de oorspronkelijke ontwerpers van het AUP is opnieuw inspiratie gezocht bij de naoorlogse wijken in Kopenhagen die ook model stonden voor het plan van Van Eesteren, meldt Geurst & Schulze.
Naast de hellende daken bestaan de gevels uit roodbrons metselwerk met gele metselwerk kaders rond de bronskleurige aluminium kozijnen. De balkons liggen buiten het gevelvlak. Ze zijn aan de onderzijde afgeschuind en hebben afgeronde hoeken om een te zware impact op het gevelvlak te voorkomen en hebben een speciaal ontworpen hekwerk. Het hekwerk schermt het zicht op eventuele rommel op het balkon af, zonder het balkon helemaal af te sluiten.
Variatie in metselwerkpatronen
De gebouwen maken deel uit van een reeks bouwblokken en zijn bijna alle identiek. Door de variatie in metselwerkpatronen op de kopgevels en de verschillende kleuren rond de entrees onderscheiden de blokken zich van elkaar. De kunstwerken in de oorspronkelijke bebouwing van Leo Braat zijn opgeknapt en teruggeplaatst in de nieuw bouwblokken. Tussen de blokken liggen autoluwe straatjes waar gespeeld kan worden en die zijn voorzien van beplanting die per straat varieert.
Geurst & Schulze architecten ontwierp de woningen in opdracht van woningcorporatie De Alliantie. De realisatie is tot stand gekomen in samenwerking met Bouwbedrijf M.J. De Nijs en Zonen, Halmos, ZRi, Vericon en John Koomen.
Trefwoorden
wijkvernieuwing
amsterdam
amsterdam nieuw-west
amsterdams uitbreidingsplan
aup
jacob geelbuurt
geurst & schulze architecten
Locatie
Best gelezen
1
André Kempe: ‘Het ging Oliver Thill om het geven van betekenis’
vrijdag, 6 maart
2
Kantoorcomplex door Goof Spruit bij station Utrecht krijgt tweede leven als De Nieuwe Tuin
woensdag, 11 maart
3
Woongebouw door van Bergen Kolpa vormt nieuwe markering langs bocht Rotte
dinsdag, 10 maart
4
Werkstatt gaat verder zonder medeoprichter Niels Groeneveld
vrijdag, 6 maart
5
Gerenoveerd Valkhof Museum heropent deuren op 6 juni
dinsdag, 10 maart
Gerelateerde nieuwsberichten
Woongebouw Podium door LEVS architecten in Amsterdam Nieuw-West klaar
24 september 2024
'Sociaal ensemble' door Arons en Gelauff vervangt verouderde portiekflats Amsterdam Nieuw-West
15 juli 2024
Geurst & Schulze realiseert nieuw ensemble woongebouwen op plek Boerhaavecomplex
21 augustus 2025
WRK Architecten ontwerpt blok met 175 woningen aan Vlaardingenlaan
8 november 2023
Herontwikkeling voormalig Slotervaartziekenhuis voltooid met nieuwe dakopbouw
13 januari 2025
Woningbouwproject SUHA in Amsterdamse wijk Osdorp opgeleverd
31 oktober 2023
Haskoning en VenhoevenCS aan de slag met vernieuwing station Amsterdam Lelylaan
16 februari
Woongebouw De Baak in Amsterdam Nieuw-West officieel geopend
12 mei 2023
Tweede deel woningbouwproject Lieven Amsterdam opgeleverd
2 mei 2023
Startsein voor bouw woontoren voor jongeren Opportuna
1 mei 2023
Voormalige school in Osdorp verbouwd tot sociale broedplaats
20 februari 2023
Bouw woontoren ZZDP op Delflandplein Amsterdam aanstaande
16 februari 2023
Eerste paal voor woongebouw Cornelis in Amsterdam Nieuw-West
22 november 2022
Team met OZ en Flux wint aanbesteding multifunctioneel project Lelylaan
11 juli 2022
Stedelijke vernieuwing Westelijke Tuinsteden belicht in manifestatie SuperWest
29 juni 2022
Amsterdam en ontwikkelaar tekenen overeenkomst voor Verhalenhuis
28 maart 2022
Woongebouw Podium door LEVS architecten in Amsterdam Nieuw-West klaar
24 september 2024
'Sociaal ensemble' door Arons en Gelauff vervangt verouderde portiekflats Amsterdam Nieuw-West
15 juli 2024
Geurst & Schulze realiseert nieuw ensemble woongebouwen op plek Boerhaavecomplex
21 augustus 2025
WRK Architecten ontwerpt blok met 175 woningen aan Vlaardingenlaan
8 november 2023
Herontwikkeling voormalig Slotervaartziekenhuis voltooid met nieuwe dakopbouw
13 januari 2025
Woningbouwproject SUHA in Amsterdamse wijk Osdorp opgeleverd
31 oktober 2023
Haskoning en VenhoevenCS aan de slag met vernieuwing station Amsterdam Lelylaan
16 februari
Woongebouw De Baak in Amsterdam Nieuw-West officieel geopend
12 mei 2023
Tweede deel woningbouwproject Lieven Amsterdam opgeleverd
2 mei 2023
Startsein voor bouw woontoren voor jongeren Opportuna
1 mei 2023
Voormalige school in Osdorp verbouwd tot sociale broedplaats
20 februari 2023
Bouw woontoren ZZDP op Delflandplein Amsterdam aanstaande
16 februari 2023
Eerste paal voor woongebouw Cornelis in Amsterdam Nieuw-West
22 november 2022
Team met OZ en Flux wint aanbesteding multifunctioneel project Lelylaan
11 juli 2022
Stedelijke vernieuwing Westelijke Tuinsteden belicht in manifestatie SuperWest
29 juni 2022
Amsterdam en ontwikkelaar tekenen overeenkomst voor Verhalenhuis
28 maart 2022
Toon alles
Andere nieuwsberichten
Nieuwe woonwijk bij Istanbul omvat bijdragen van BIG, MVRDV en Snøhetta
Gisteren, 16:20
De Turkse ontwikkelaar Ion heeft de bouw van een nieuwe, 84 hectare grote, woonwijk nabij Istanbul aangekondigd. Het plan zet in op een duurzame en mensgerichte ontwikkeling en rekent zich rijk met ontwerpbijdragen van BIG, MVRDV en Snøhetta.
Architectenweb symposium: ontwerpen van autovrije buurten
Gisteren, 11:30
Welke ruimtelijke en sociale kansen ontstaan er wanneer we buurten ontwerpen met honderden tot duizenden woningen waar in de openbare ruimte geen auto te zien is? En hoe overwin je de uitdagingen die daarbij komen kijken?
Cepezed ontwerpt houten rijkskantoor aan Juliana van Stolberglaan in Den Haag
Gisteren, 10:23
De negentien verdiepingen tellende toren, ontworpen door cepezed en cepezedinterieur, is bedoeld voor het ministerie van OCW en uitvoeringsorganisatie DUO.
Groningen stelt gebiedsvisie voor wijk De Nieuwe Held vast
11 maart, 3:45
In vijftien jaar tijd wil de gemeente 1.850 woningen bouwen in de nieuwe wijk aan de westkant van de stad. De verwachting is dat de bouw eind 2027, begin 2028 kan starten.
Experts: versnel energietransitie en hou Gronings gas als airbag
Gisteren, 13:58
Dat is nodig om minder afhankelijk te worden van andere landen, stellen 22 experts die gespecialiseerd zijn in veiligheid en energie.
Wet die leegstandheffing mogelijk maakt volgende week van kracht
Gisteren, 11:35
Gemeenten mogen zelf bepalen of ze de belasting invoeren en hoe hoog die dan wordt.
Raad van State blokkeert plan voor verbouwing ring Utrecht
11 maart, 4:31
Vorig jaar kreeg het kabinet de opdracht om de stikstofuitstoot van het project beter uit te leggen, maar dat is niet gelukt.
Provincie akkoord met natuurherstel voor nieuwe ASML-campus
11 maart, 12:30
De provincie Noord-Brabant stemt in met het plan waarmee chipmachinefabrikant ASML natuur wil compenseren bij de realisatie van de nieuwe campus.
CBS: uitstoot gestegen in 2025, klimaatdoelen verder uit zicht
11 maart, 9:20
Vorig jaar werd er 0,8 procent meer broeikasgassen uitgestoten dan in 2024.
Renovatie Belgisch Justitiepaleis loopt op tot zeshonderd miljoen euro
10 maart, 2:33
Het Justitiepaleis in Brussel is ruim 140 jaar oud en staat al meer dan veertig jaar in de steigers.
Ga naar het nieuws-archief
Ronnie Weessies
Redacteur
0
0
0
0
Voor een optimale gebruikservaring plaatst Architectenweb functionele cookies. Wat de verschillende cookies precies doen leggen we uit in een
overzicht
. Cookies van social media kun je optioneel
aanzetten
.
Akkoord
Instellingen
Annuleren
OK
Sluiten
Doorgaan
Inloggen
Maak een gratis persoonlijk account aan
Feedback
Feedback
Wij horen graag jouw feedback. Laat je reactie achter en eventueel jouw e-mail adres.
Reactie
Verstuur