Projecten
Producten
Bedrijven
Vacatures
Agenda
Awards
Podcasts
more_horiz
Videos
Magazine
Thema's
Favorieten
Profiel
Uitloggen
Abonneer je nu op onze nieuwsbrieven!
Abonneren
Nee, bedankt
Ja, denk met me mee rond de
materialisering van mijn project
Copyright: Jason O Rear
Copyright: Ossip van Duivenbode
Copyright: Ossip van Duivenbode
Copyright: Ossip van Duivenbode
Copyright: Ossip van Duivenbode
Copyright: Ossip van Duivenbode
Copyright: Ossip van Duivenbode
Copyright: Ossip van Duivenbode
Copyright: Ossip van Duivenbode
Copyright: Ossip van Duivenbode
Copyright: Ossip van Duivenbode
Copyright: Ossip van Duivenbode
Copyright: Ossip van Duivenbode
Copyright: Ossip van Duivenbode
Copyright: Ossip van Duivenbode
Copyright: Ossip van Duivenbode
Copyright: Ossip van Duivenbode
Copyright: Ossip van Duivenbode
Copyright: Ossip van Duivenbode
Copyright: Jason O Rear
Copyright: Jason O Rear
Copyright: Jason O Rear
Copyright: Jason O Rear
Copyright: John Cole
Copyright: John Cole
Copyright: John Cole
Copyright: John Cole
Copyright: John Cole
Copyright: John Cole
Copyright: John Cole
Copyright: John Cole
Copyright: Jason O Rear
Copyright: Jason O Rear
Copyright: OMA
Copyright: OMA
Copyright: OMA
Copyright: OMA
Copyright: OMA
Copyright: OMA
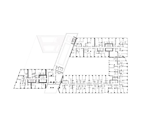
Plattegrond begane grond, situatie
Copyright: OMA
Plattegrond tweede verdieping
Copyright: OMA
Plattegrond zesde verdieping
Copyright: OMA
Plattegrond zevende verdieping
Copyright: OMA
Plattegrond 21e verdieping
Copyright: OMA
Doorsnede
Copyright: OMA
Hoogbouwcomplex met woontorens van OMA in New York voltooid
12 januari 2023, 10:51
Met Eagle + West heeft
OMA
zijn eerste hoogbouwproject in New York voltooid. Het complex omvat twee getrapte torens en een laagbouwvolume; het maakt deel uit van het Greenpoint Landing Masterplan, dat voorziet in een transformatie van de waterkant in deze buurt van Brooklyn.
Het wooncomplex biedt 745 appartementen in zowel het betaalbare segment als de vrije sector, verdeeld over de twee torens en een lager volume van zeven verdiepingen, zo leggen de architecten uit. Tevens biedt het complex ruim 450 m
2
aan collectieve voorzieningen en ruim 2.700 m
2
nieuwe openbare ruimte voor de wijk.
Situatie
Eagle Street en DuPont Street lopen nu via Eagle + West door tot aan de East River, waar aan de waterkant een nieuw plein en een esplanade zijn gerealiseerd. Het wooncomplex en de ingrepen op straatniveau betekenen volgens OMA een versterking van de transformatie van Greenpoint, zoals beoogd in het masterplan, van voormalige industriële zone naar een open en continue wijk aan het water.
Greenpoint ligt aan de noordelijke rand van Brooklyn, waar Newtown Creek uitmondt in de East River. De buurt bestaat van oorsprong uit lage herenhuizen. Een industriële rand, gelieerd aan de scheepsbouw, heeft de woonbuurt altijd afgesneden van de rivier. Sinds 2005 zijn gebieden in Williamsburg en Greenpoint aangewezen om woningen te realiseren en het rivierfront te openen.
De locatie voor Eagle + West bevindt zich waar een straat vanaf Newtown Creek schuin op het primaire raster van Greenpoint uitkomt. Dit scharnierpunt biedt een panoramisch uitzicht op Manhattan, maar snijdt ook de kavel schuin af. De uitdaging voor het bureau was om de gewenste hoeveelheid woningen te realiseren op een kavel – en in een buurt – die daar te klein voor leek, aldus OMA.
Voetafdruk en getrapte stapeling
Om niet een muur tussen de buurt en het water op te trekken heeft OMA tussen de torens meer ruimte gecreëerd dan het toegestane minimum. De ruimte tussen de torens is daarmee ook meer in overeenstemming met de schaal van de straten in de omgeving. Vervolgens heeft het bureau de torens zo efficiënt mogelijk – onder meer met het oog op uitzicht en bezonning – stapsgewijs verbreed of juist versmald.
De hoogste, veertig lagen tellende toren wordt in de hoogte steeds breder naar het oosten; de lagere, dertig verdiepingen tellende toren wordt steeds breder richting het maaiveld en strekt zich daar richting de waterkant. Met gelijk opgaande terrassen en overkragingen lijken de twee torens scherven van een geheel; twee passende puzzelstukken op enige afstand van elkaar.
Schaal en toenadering
De getrapte vormen van de torens en de geleding van hun gevels zorgen, bij het onvermijdelijke contrast in schaal, voor een toenadering tussen de torens en de bestaande buurt. Elk verschoven blok bestaat uit zeven tot acht verdiepingen, wat overeenkomt met de schaal van aangrenzende gebouwen. De horizontale lijnen in de gevel benadrukken de suggestie van gestapelde bouwblokken.
Ook geeft het strakke grid met ramen van 2,44 x 2,44 meter in prefab betonnen kaders een solide uitstraling die past bij de gebouwen van de buurt, legt het architectenbureau uit. Het beton is voorzien van een patroon met afgeschuinde vlakken, dat is geïnspireerd op de gevelbekleding met shingles, zoals dat bij herenhuizen in de omgeving is te zien. Per blok van de torens verandert de oriëntatie van de afschuining – en daarmee het schaduwspel – om de kleinere schaal te versterken.
Bij en op de laagbouw zijn terrassen en groene ruimten gecreëerd. Daarboven strekt zich een ‘brug’ met collectieve voorzieningen tussen de torens. De collectieve ruimten biden zicht op het water en Manhattan aan de overzijde van East River. Tegelijkertijd is het complex niet louter op het water georiënteerd, maar keert het ook zijn façades naar Greenpoint.
Samenwerking
Eagle + West is ontworpen onder leiding van partner in OMA Jason Long en associates Yusef Ali Dennis en Chris Yoon. Het ontwerp is gerealiseerd in samenwerking met Beyer Blinder Belle Architects & Planners als uitvoerend architect. Marmol Radziner ontwierp het interieur van de voorzieningen en de buitenruimten van het gebouw. James Corner Field Operations was landschapsarchitect voor de buitenruimte aan het water.
Trefwoorden
verenigde staten
oma
james corner field operations
appartementengebouw
marmol radziner
beyer blinder belle
hoogbouw
woningbouw
new york
Best gelezen
1
Luxe appartementengebouw naast klooster Etten-Leur door Studio AAAN klaar
donderdag, 19 maart
2
Houten Stelthuis van Woonpioniers is aardbevings- en klimaatbestendig
woensdag, 18 maart
3
BureauVanEig verbetert uitstraling Haagse rijtjeswoningen bij verduurzaming
dinsdag, 17 maart
4
PSV presenteert plannen voor uitbreiding Philips Stadion
vrijdag, 20 maart
5
De nieuwe kleren van de keizer
dinsdag, 17 maart
Gerelateerde nieuwsberichten
Eerste woongebouw OMA in Manhattan gerealiseerd
3 juni 2019
Bouw van Dhaka Tower (OMA) is begonnen
6 oktober 2023
New Museum in New York kiest OMA voor zijn tweede gebouw
1 juli 2019
Taipei Performance Arts Centre geopend voor publiek
8 augustus 2022
OMA deelt meer beelden van Prince Plaza
12 oktober 2023
Winnend plan van OMA, DELVA en B-architecten voor koepelgevangenis Breda
5 juli 2022
Door OMA ontworpen tijdelijke winkel Tiffany & Co in Parijs geopend
29 juni 2022
OMA opent vestiging in Australië
15 november 2021
OMA presenteert ontwerp voor kantoorgebouw aan Amsterdamse Apollolaan
24 augustus 2021
Door OMA ontworpen installatie rond natuursteen bij Milan Design Week
21 april 2023
Modemerk Off-White opent Parijse winkel naar ontwerp AMO
7 juli 2021
OMA ontwerpt eerste filiaal Centre Pompidou in de VS
7 juni 2021
Door OMA en Hassell vernieuwd museum in Perth heropent
25 november 2020
Buitenlandse Zaken denkt aan vertrek uit kantoor Rijnstraat 8
13 november 2020
Transparant kantoorgebouw door OMA in Amsterdam-Zuid geopend
14 december 2023
Door OMA ontworpen gebouw voor Axel Springer Berlijn geopend
6 oktober 2020
Tentoonstellings- en congrescentrum van OMA in Toulouse geopend
29 september 2020
Tweede project van OMA in Shenzhen opgeleverd
31 augustus 2020
Warenhuis met culturele route van OMA voltooid
25 maart 2020
OMA ontwerpt winkel- en gemeenschapscentrum buiten Melbourne
18 maart 2020
OMA op shortlist renovatieopdracht British Museum
29 augustus 2024
Prestigieuze Galerij der Koningen in Museo Egizio na herontwerp door OMA officieel geopend
21 november 2024
OMA en Jaspers-Eyers ontwerpen nieuwe hoofdkantoor NMBS
24 februari 2020
Hotel nhow Amsterdam RAI ontvangt eerste gasten
10 januari 2020
OMA verbouwt museum voor Egyptische oudheden in Turijn
27 januari 2023
Flatiron Building geveild voor bedrag van 190 miljoen dollar
23 maart 2023
Eerste woongebouw OMA in Manhattan gerealiseerd
3 juni 2019
Bouw van Dhaka Tower (OMA) is begonnen
6 oktober 2023
New Museum in New York kiest OMA voor zijn tweede gebouw
1 juli 2019
Taipei Performance Arts Centre geopend voor publiek
8 augustus 2022
OMA deelt meer beelden van Prince Plaza
12 oktober 2023
Winnend plan van OMA, DELVA en B-architecten voor koepelgevangenis Breda
5 juli 2022
Door OMA ontworpen tijdelijke winkel Tiffany & Co in Parijs geopend
29 juni 2022
OMA opent vestiging in Australië
15 november 2021
OMA presenteert ontwerp voor kantoorgebouw aan Amsterdamse Apollolaan
24 augustus 2021
Door OMA ontworpen installatie rond natuursteen bij Milan Design Week
21 april 2023
Modemerk Off-White opent Parijse winkel naar ontwerp AMO
7 juli 2021
OMA ontwerpt eerste filiaal Centre Pompidou in de VS
7 juni 2021
Door OMA en Hassell vernieuwd museum in Perth heropent
25 november 2020
Buitenlandse Zaken denkt aan vertrek uit kantoor Rijnstraat 8
13 november 2020
Transparant kantoorgebouw door OMA in Amsterdam-Zuid geopend
14 december 2023
Door OMA ontworpen gebouw voor Axel Springer Berlijn geopend
6 oktober 2020
Tentoonstellings- en congrescentrum van OMA in Toulouse geopend
29 september 2020
Tweede project van OMA in Shenzhen opgeleverd
31 augustus 2020
Warenhuis met culturele route van OMA voltooid
25 maart 2020
OMA ontwerpt winkel- en gemeenschapscentrum buiten Melbourne
18 maart 2020
OMA op shortlist renovatieopdracht British Museum
29 augustus 2024
Prestigieuze Galerij der Koningen in Museo Egizio na herontwerp door OMA officieel geopend
21 november 2024
OMA en Jaspers-Eyers ontwerpen nieuwe hoofdkantoor NMBS
24 februari 2020
Hotel nhow Amsterdam RAI ontvangt eerste gasten
10 januari 2020
OMA verbouwt museum voor Egyptische oudheden in Turijn
27 januari 2023
Flatiron Building geveild voor bedrag van 190 miljoen dollar
23 maart 2023
Toon alles
Andere nieuwsberichten
PSV presenteert plannen voor uitbreiding Philips Stadion
20 maart, 3:37
De Eindhovense club wil de capaciteit van zijn onderkomen opschroeven met maximaal 25.000 bezoekers. Om dit te bewerkstelligen, komt er een nieuwe schil rond het stadion waarin een derde ring is opgenomen.
Rijkswaterstaat staakt renovatie markante houten Krùsrak-brug in Sneek
20 maart, 11:32
Tijdens de renovatie werd duidelijk dat de constructieve veiligheid van de brug niet langer kan worden verzekerd, laat RWS weten. De uit 2008 stammende Krúsrak-brug over de rijksweg 7 is ontworpen door Onix en Archterbosch Architecten.
KAAN Architecten en De Zwarte Hond winnen tender voor Area 19 TU Eindhoven
20 maart, 10:35
De opdracht omvat het ontwerp van een nieuw onderzoeks- en onderwijsgebouw en de stedenbouwkundige ontwikkeling van een nieuw campusgebied.
Projecten gezocht voor vijfde Adriaan Dessingprijs
19 maart, 2:42
De tweejaarlijkse architectuurprijs vestigt de aandacht op bijzondere, gerealiseerde plannen in de Zuid-Hollandse gemeenten Westland en Midden-Delfland. Het kan gaan om nieuwbouw, restauratie of landschappelijke projecten.
Friesland brengt duizenden karakteristieke boerderijen in kaart
20 maart, 2:16
Door alle informatie over de voor het landschap kenmerkende gebouwen op één plek te brengen, moet het makkelijker worden om ze te behouden.
ING: bijna de helft van de huiseigenaren stelt verduurzaming uit
20 maart, 12:18
De meeste mensen vinden dat de overheid te weinig doet om dit te stimuleren.
Rekenkamer kraakt resultaten EU-innovatiefonds voor verduurzaming
20 maart, 9:25
Het Innovatiefonds van de Europese Unie levert veel minder resultaat op dan verwacht op het gebied van verduurzaming en innovatie.
Provincie schrapt beoogde locaties windturbines in Groene Hart
19 maart, 1:35
De provincie had twaalf plekken op het oog, maar dat leidde tot maatschappelijk en politiek verzet.
Staten Utrecht willen netcongestie versneld aanpakken
19 maart, 9:44
De fracties wezen op de noodzaak van het zo snel mogelijk realiseren van een hoogspanningsstation dat essentieel is voor het opsplitsen van het elektriciteitsnetwerk tussen de Flevopolder, Gelderland en Utrecht.
Rotterdam wil woningbouw versnellen met pilot ‘Ontwikkelaar aan Zet’
18 maart, 4:33
De gemeente Rotterdam start een pilot waarbij projectontwikkelaars een grotere rol krijgen bij de voorbereiding van woningbouwprojecten.
Ga naar het nieuws-archief
Robert Muis
Redacteur
1
0
0
0
Voor een optimale gebruikservaring plaatst Architectenweb functionele cookies. Wat de verschillende cookies precies doen leggen we uit in een
overzicht
. Cookies van social media kun je optioneel
aanzetten
.
Akkoord
Instellingen
Annuleren
OK
Sluiten
Doorgaan
Inloggen
Maak een gratis persoonlijk account aan
Feedback
Feedback
Wij horen graag jouw feedback. Laat je reactie achter en eventueel jouw e-mail adres.
Reactie
Verstuur