Projecten
Producten
Bedrijven
Vacatures
Agenda
Awards
Podcasts
more_horiz
Videos
Magazine
Thema's
Favorieten
Profiel
Uitloggen
Copyright: KENK Architecten
Copyright: KENK Architecten
Copyright: KENK Architecten
Copyright: KENK Architecten
Copyright: KENK Architecten
Copyright: KENK Architecten
Copyright: KENK Architecten
Copyright: KENK Architecten
Copyright: KENK Architecten
Copyright: KENK Architecten
Copyright: KENK Architecten
Bouw eerste permanente 'startblok' voor starters en statushouders begonnen
21 oktober 2020, 11:39
In Amsterdam is begonnen met de bouw van
Startblok Wormerveerstraat
. Het woongebouw voor starters en statushouders is het eerste permanente startblok, nadat eerder soortgelijke, tijdelijke projecten werden gerealiseerd in de
Riekerhaven
en
Elzenhagen
. Het gebouw met 96 woningen en een gemeenschappelijke ‘huiskamer’ komt direct naast het befaamde Gele Blok van Michel de Klerk te staan.
Startblok Wormerveerstraat neemt de plek in van een school naast het woongebouw van De Klerk, dat momenteel wordt gerestaureerd. In het ontwerp van
KENK Architecten
wordt voortgeborduurd op de Amsterdamse School-architectuur in de omgeving, door het gebouw onder meer te voorzien van een zorgvuldig gedetailleerde gevel van baksteen.
De rationeel opgezette gevel kent een sterke repetitie van raamopeningen, meldt KENK Architecten. De bovenste twee verdiepingen krijgen een dubbel ritme van gemetselde ribben, die in het perspectief van de straat de kozijnen van de bovenste verdieping uit het zicht nemen. Op die manier ontstaat volgens het bureau een gesloten, maar uitbundig gemodelleerde driedimensionale kroon, kenmerkend voor veel stedelijke wanden uit de periode van de Amsterdamse School.
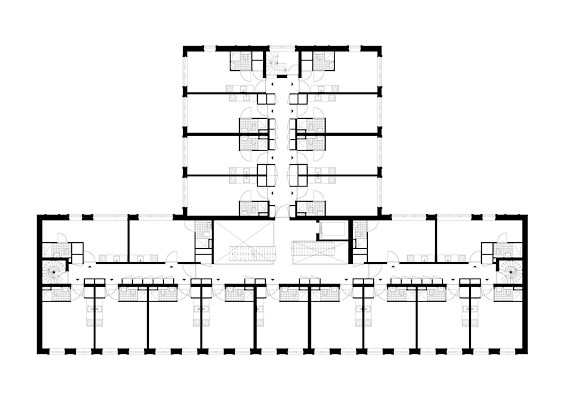
In het gebouw komen 48 woningen voor starters en eveneens 48 woningen voor statushouders. Het gaat om zelfstandige gasloze woningen van 24 vierkante meter, meldt
Woonstichting De Key
, die het gebouw ontwikkelt. Naast een gemeenschappelijke huiskamer, die behalve voor de bewoners ook is bedoeld voor buurtbewoners, komen er twee gemeenschappelijke tuinen.
Startblok Wormerveerstraat moet begin 2022 gereed zijn. Op het Zeeburgereiland is nog een startblok in aanbouw, dat krijgt net als de eerder gerealiseerde twee startblokken een tijdelijk karakter.
Startblok Zeeburg en Doebaai
is eind volgend jaar klaar.
Trefwoorden
amsterdamse school
startblok
amsterdam
spaarndammerbuurt
woningbouw
de key
kenk architecten
gele blok
michel de klerk
starters
statushouders
woonstichting de key
Locatie
Best gelezen
1
Benthem Crouwel Architects plaatst slotstuk in Paleiskwartier van Den Bosch
donderdag, 13 november
2
Den Bosch 'pauzeert' aanbesteding voor ontwerp gebiedsontwikkeling Citadelpoort
maandag, 17 november
3
MVRDV en Buro Happold ontwerpen nieuw theater in Veenendaal
vrijdag, 14 november
4
Expositie in Kunsthal belicht eerdere toeristische periode Rotterdam
dinsdag, 18 november
5
Nominaties Zuiderkerkprijs en Geurt Brinkgreve Bokaal 2025 bekend
vrijdag, 14 november
Gerelateerde nieuwsberichten
4,5 miljoen euro subsidie voor isoleren Amsterdamse monumenten
31 maart
Expositie over studenten en statushouders in één wooncomplex
25 augustus 2020
Modulaire bijna-energieneutrale woningen Elzenhagen klaar
3 mei 2019
Gerestaureerd postkantoor in Het Schip heropent in september
17 augustus 2020
Jubileumjaar Amsterdamse School van start
24 februari 2016
'27.000 statushouders moeten volgend jaar een woning krijgen'
2 november 2020
Fors meer huizen nodig door sterkere bevolkingsgroei
5 november 2020
APTO Architects wint prijsvraag Doebaai Zeeburgereiland
17 maart 2021
Spaarndammerhart: eigentijdse Amsterdamse School nabij Het Schip
31 mei 2021
KENK architecten presenteert opgeleverd Startblok Wormerveerstraat
28 maart 2022
Vereniging Eigen Huis wil 10.000 betaalbare starterswoningen per jaar
16 augustus 2022
Lieven de Key realiseert studentenstudio’s in rijksmonument
25 april 2023
4,5 miljoen euro subsidie voor isoleren Amsterdamse monumenten
31 maart
Expositie over studenten en statushouders in één wooncomplex
25 augustus 2020
Modulaire bijna-energieneutrale woningen Elzenhagen klaar
3 mei 2019
Gerestaureerd postkantoor in Het Schip heropent in september
17 augustus 2020
Jubileumjaar Amsterdamse School van start
24 februari 2016
'27.000 statushouders moeten volgend jaar een woning krijgen'
2 november 2020
Fors meer huizen nodig door sterkere bevolkingsgroei
5 november 2020
APTO Architects wint prijsvraag Doebaai Zeeburgereiland
17 maart 2021
Spaarndammerhart: eigentijdse Amsterdamse School nabij Het Schip
31 mei 2021
KENK architecten presenteert opgeleverd Startblok Wormerveerstraat
28 maart 2022
Vereniging Eigen Huis wil 10.000 betaalbare starterswoningen per jaar
16 augustus 2022
Lieven de Key realiseert studentenstudio’s in rijksmonument
25 april 2023
Toon alles
Andere nieuwsberichten
MoederscheimMoonen Architects ontwerpt eigen kantoor in historische vertrekhal Oranjelijn Rotterdam
3 uur geleden
MoederscheimMoonen Architects levert nieuw, duurzame hoofdkantoor van moedermaatschappij TBP Group op.
Restauratie Bakenessertoren Haarlem bekroond met Lieven de Key Penning 2025
3 uur geleden
De restauratie van de Bakenessertoren in Haarlem is onderscheiden met de Lieven de Key Penning 2025. De publieksprijs werd toegekend aan de verbouwing en uitbreiding van het Stedelijk Gymnasium.
Snitker/Borst wint tender voor woningen in houtbouw op vroegere schoollocatie Purmerend
Vandaag, 14:39
Snitker/Borst Architecten heeft samen met Mercuur Bouw en Ontwikkeling een houtbouwtender in Purmerend gewonnen, uitgeschreven door de Wooncompagnie. Het project omvat 35 duurzame en betaalbare woningen, verdeeld over twee appartementengebouwen.
SVP ontwerpt 75 woningen op plek Potterij de Zaalberg in Leiden
Vandaag, 10:33
In Leiden is een omgevingsvergunning verleend voor de bouw van 75 woningen op de plek van de voormalige Potterij de Zaalberg. In het ontwerp blijft de historische geschiedenis van de plek langs de kade van de Oude Rijn voelbaar.
Landelijke ‘bouwbaas’ is geen goed idee, vinden deskundigen
Vandaag, 13:27
Zo'n nieuwe functie zou een ‘extra laag in het toch al topzware bureaucratische woonbeleid’ betekenen, staat in een advies.
Zuid-Holland vergunt weer projecten met forse stikstofreductie
Vandaag, 11:19
De provincie gaat vergunningen verlenen voor projecten die weliswaar voor stikstofuitstoot zorgen, maar na afronding wel veel minder dan in de oorspronkelijke situatie.
Vereniging Eigen Huis: criteria energielabel onduidelijk voor huiseigenaar
Gisteren, 14:26
Huiseigenaren weten niet goed wat nodig is om een label op te krikken, constateert Vereniging Eigen Huis in een onderzoek.
Amnesty: Nederlands bouwbedrijf betrokken bij arbeidsuitbuiting Saoedi-Arabië
Gisteren, 10:16
Strukton heeft een rol gespeeld bij de uitbuiting van arbeidsmigranten bij de bouw van een metro in Riyad, meldt Amnesty International.
Verbouwing Binnenhof kost 2,7 miljard euro, zomer 2031 klaar
17 november, 1:19
De laatste officiële inschatting van een einddatum was ‘op zijn vroegst eind 2028’, maar het jaartal 2030 stond ook al in documenten.
Vlaanderen aansprakelijk voor Limburgse schade in tramdebacle
17 november, 9:36
De Vlaamse regering is aansprakelijk voor de miljoenen euro's aan kosten die zijn gemaakt rond de afgeblazen tramlijn tussen Maastricht en het Belgische Hasselt.
Ga naar het nieuws-archief
Ronnie Weessies
Redacteur
1
0
0
0
Voor een optimale gebruikservaring plaatst Architectenweb functionele cookies. Wat de verschillende cookies precies doen leggen we uit in een
overzicht
. Cookies van social media kun je optioneel
aanzetten
.
Akkoord
Instellingen
Annuleren
OK
Sluiten
Doorgaan
Inloggen
Maak een gratis persoonlijk account aan
Feedback
Feedback
Wij horen graag jouw feedback. Laat je reactie achter en eventueel jouw e-mail adres.
Reactie
Verstuur