Projecten
Producten
Bedrijven
Vacatures
Agenda
Awards
Podcasts
more_horiz
Videos
Magazine
Thema's
Favorieten
Profiel
Uitloggen
Abonneer je nu op onze nieuwsbrieven!
Abonneren
Nee, bedankt
Ja, denk met me mee rond de
materialisering van mijn project
Copyright: Studioninedots en 3D Studio Prins
Copyright: Studioninedots
Copyright: Studioninedots en 3D Studio Prins
Copyright: Studioninedots en 3D Studio Prins
Copyright: Studioninedots en 3D Studio Prins
Copyright: Studioninedots en Delva Landscape Architects Urbanism
Copyright: Studioninedots
Copyright: Studioninedots
Copyright: Studioninedots
Copyright: Studioninedots
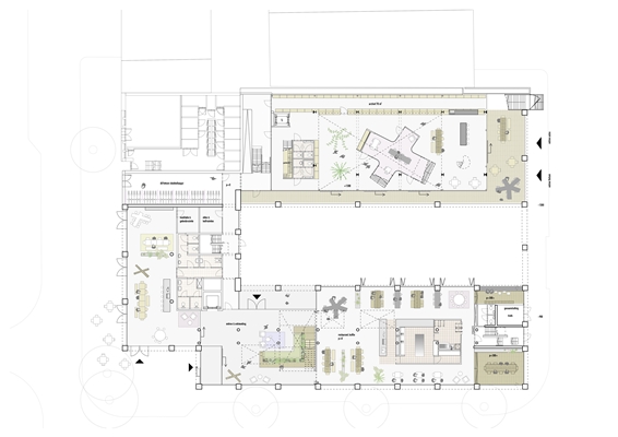
Plint in 3D
Copyright: Studioninedots
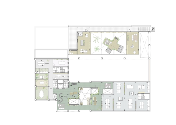
Begane grond
Copyright: Studioninedots
Eerste verdieping
Copyright: Studioninedots
Tweede verdieping
Copyright: Studioninedots
Derde verdieping
Copyright: Studioninedots
Vierde verdieping
Copyright: Studioninedots
Copyright: Studioninedots
Team Studioninedots verbouwt hoofdkantoor De Key
8 juni 2018, 12:35
Een team onder leiding van
Studioninedots
gaat het hoofdkantoor van woningcorporatie De Key in Amsterdam verbouwen. Drie bestaande werkgebouwen aan de Hoogte Kadijk in het stadscentrum worden zowel aan de binnen- als buitenzijde tot een eenheid gesmeed. De nieuwe indeling is vooral ontworpen om onderlinge ontmoeting te stimuleren, meldt het architectenbureau.
Ook kunnen er dankzij de introductie van flexibele werkvormen meer mensen in het gebouw komen te werken. Dat is deels noodzakelijk omdat twee vestigingen van De Key samengevoegd worden in het hoofdkantoor. Er worden uiteenlopende ruimtes, afgestemd op de aard van de werkzaamheden, gerealiseerd. Ook wordt het complex transparanter en komt er meer daglicht binnen. Er worden natuurlijke materialen toegepast en er komt meer groen, om zo het welbevinden van gebruikers en omwonenden te vergroten.
Centraal in het ontwerp staat het verbinden van de ruimtes op de begane grond. Het gaat hierbij om ruimtes voor informeel overleg, zoals een collectief restaurant aan de Kruithuisstraat, een gemeenschapsruimte aan de Hoogte Kadijk, een ‘werklab’ in de Houtmanloods en (bij mooi weer) de tuin tussen deze ruimtes in. De drie bouwdelen en de tuin worden als met een lint bijeengebonden met een doorlopende structuur van betonnen kaders, open of voorzien van glazen puien.
De verbouwing moet in 2020 klaar zijn. DZAP verzorgt het interieurontwerp, DELVA Landscape Architects / Urbanism is aangesteld voor het landschapsontwerp. Ook Techniplan, DPA, Bouwadviesbureau Strackee, Skaal Bouweconomisch Adviesbureau en Wijngaarde & partners behoren tot het team dat de verbouwing voor zijn rekening mag nemen.
Trefwoorden
studioninedots
dzap
de key
delva landscape architects / urbanism
Best gelezen
1
Een verbod op eengezinswoningen
dinsdag, 24 maart
2
Architectenweb symposium: ontwerpen van autovrije buurten
woensdag, 25 maart
3
Schiphol maakt nieuwe 'huisarchitecten' bekend
donderdag, 26 maart
4
MVSA Architects en Powerhouse Company ontwerpen dubbele woontoren bij Den Haag Centraal
maandag, 30 maart
5
Studioninedots ontwerpt zelfbouwwoning als landschap van gestapelde doosjes
woensdag, 25 maart
Gerelateerde nieuwsberichten
Lieven de Key realiseert studentenstudio’s in rijksmonument
25 april 2023
Drie panden samengevoegd tot nieuw hoofdkantoor Lieven de Key
27 juni 2022
Studioninedots benoemt vier associates
10 december 2021
Westbeat als sculpturale verbinder ontworpen door Studioninedots
16 december 2020
Blok N van Studioninedots in Jeruzalem opgeleverd
6 september 2019
Collectiviteit basis voor circulariteit in Ruimtelijk Raamwerk M4H
4 juli 2019
Studioninedots doet studie naar verstedelijking Overamstel
22 januari 2019
Cushman & Wakefield neemt DZAP over
10 oktober 2018
Getrapte woongebouwen op Zeeburgereiland door Studioninedots opgeleverd
9 november 2017
Yotel bouwt vestiging in Buiksloterham
2 juni 2017
Studioninedots ontwerpt West Beat Amsterdam
1 november 2016
CPO-project aan de Amstel opgeleverd
7 juli 2016
Studioninedots ontwerpt City Icoon Buiksloterham
18 april 2016
Bouw campus Little Manhattan van start
11 december 2015
Lieven de Key realiseert studentenstudio’s in rijksmonument
25 april 2023
Drie panden samengevoegd tot nieuw hoofdkantoor Lieven de Key
27 juni 2022
Studioninedots benoemt vier associates
10 december 2021
Westbeat als sculpturale verbinder ontworpen door Studioninedots
16 december 2020
Blok N van Studioninedots in Jeruzalem opgeleverd
6 september 2019
Collectiviteit basis voor circulariteit in Ruimtelijk Raamwerk M4H
4 juli 2019
Studioninedots doet studie naar verstedelijking Overamstel
22 januari 2019
Cushman & Wakefield neemt DZAP over
10 oktober 2018
Getrapte woongebouwen op Zeeburgereiland door Studioninedots opgeleverd
9 november 2017
Yotel bouwt vestiging in Buiksloterham
2 juni 2017
Studioninedots ontwerpt West Beat Amsterdam
1 november 2016
CPO-project aan de Amstel opgeleverd
7 juli 2016
Studioninedots ontwerpt City Icoon Buiksloterham
18 april 2016
Bouw campus Little Manhattan van start
11 december 2015
Toon alles
Gerelateerde video's
Studioninedots
Nominatie voor de prijs voor Architect van het Jaar 2023
Andere nieuwsberichten
Gebouw wooncoöperatie krijgt gevel van hergebruikte ventilatiekanalen
Vandaag, 16:04
Naar verwachting wordt begin volgend jaar gestart met de bouw van een woongebouw voor wooncoöperatie De Bonte Hulst in Amsterdam-Noord. Het gebouw in Buiksloterham is ontworpen door bureau SLA.
Jan Knikker vertrekt bij MVRDV
Vandaag, 14:46
Knikker, die sinds 2016 partner was bij MVRDV, heeft een belangrijke rol gespeeld bij de professionalisering van de pr- en acquisitieactiviteiten van MVRDV en de mede daaruit volgende groei van het bureau.
MVSA Architects en Powerhouse Company ontwerpen dubbele woontoren bij Den Haag Centraal
Vandaag, 13:19
RED Company heeft met Patrizia SE, Staedion en Bellevue CS The Hague overeenstemming bereikt over de ontwikkeling van de Bellevue-locatie pal naast Den Haag Centraal. Voor de bekroning van de twee torens liggen nog drie varianten op tafel.
Woonhuis tegen dijklichaam loopt door tafelconstructie af in hoogte
Vandaag, 12:13
Aan de rand van het Gelderse dorp Herwijnen is het door B2A ontworpen woonhuis Cascade opgeleverd. De 250 vierkante meter omvattende woning rust op een tafelvormige constructie van acht funderingskolommen tegen een dijklichaam.
OM vervolgt oud-werknemers Strukton na Saudische omkopingskwestie
4 uur geleden
Eerder werd al bekend dat het bouwbedrijf voor tien miljoen euro heeft geschikt in de corruptiezaak.
Duitsland trekt acht miljard uit voor extra klimaatmaatregelen
Vandaag, 10:59
Het geld is onder andere bedoeld voor de bouw van extra windmolens en subsidies voor de aanschaf van elektrische auto's.
‘Transformatie en optoppen levert tienduizenden woningen en klimaatwinst op’
27 maart, 11:53
Woningbouw vergt veel grondstoffen, maar de Wetenschappelijke Klimaatraad ziet veel mogelijkheden om het anders aan te pakken.
Zeeuwse Staten willen inspraak inwoners op groeiplan provincie
27 maart, 9:30
Meerdere Statenfracties in de provincie Zeeland hebben opgeroepen de inwoners op een goede wijze te betrekken bij het uitwerken van de strategische agenda 2050.
Minister: meer geld nodig voor Warmtefonds voor duurzamere woning
26 maart, 12:29
Boekholt gaat de komende tijd op zoek naar geld, zei ze in een debat met de Tweede Kamer.
Kadaster: nieuwbouwappartementen in trek bij oudere kopers
26 maart, 9:35
Als zij verhuisplannen hebben, willen ze vaker een nieuwbouwhuis dan andere leeftijdsgroepen en zijn ze vaker bereid verder weg te gaan dan jongere kopers.
Ga naar het nieuws-archief
Ronnie Weessies
Redacteur
1
0
0
0
Voor een optimale gebruikservaring plaatst Architectenweb functionele cookies. Wat de verschillende cookies precies doen leggen we uit in een
overzicht
. Cookies van social media kun je optioneel
aanzetten
.
Akkoord
Instellingen
Annuleren
OK
Sluiten
Doorgaan
Inloggen
Maak een gratis persoonlijk account aan
Feedback
Feedback
Wij horen graag jouw feedback. Laat je reactie achter en eventueel jouw e-mail adres.
Reactie
Verstuur