Projecten
Producten
Bedrijven
Vacatures
Agenda
Awards
Podcasts
more_horiz
Videos
Magazine
Favorieten
Profiel
Uitloggen
Abonneer je nu op onze nieuwsbrieven!
Abonneren
Nee, bedankt
Ja, denk met me mee rond de
materialisering van mijn project
Copyright: Reset architecture
Copyright: Reset architecture
Copyright: Reset architecture
Copyright: Reset architecture
Copyright: Reset architecture
Copyright: Reset architecture
Copyright: Reset architecture
Copyright: Reset architecture
Copyright: Reset architecture
Copyright: Reset architecture
Copyright: Reset architecture
Copyright: Reset architecture
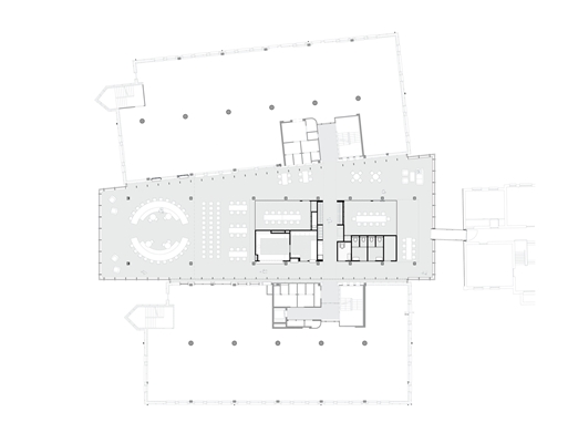
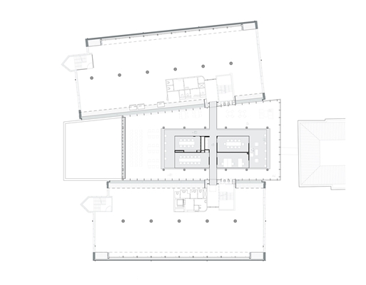
Verbouwing voor gemeentehuis Geldrop-Mierlo
16 maart 2018, 10:31
Het gemeentehuis van Geldrop-Mierlo ondergaat het komende jaar een verbouwing. Het gedeelte uit de jaren tachtig wordt uitgebreid met een multifunctioneel vergadercentrum en de kantoorvleugels van het bestaande pand krijgen een interieurrenovatie. Het ontwerp voor de verbouwing is gemaakt door
Reset architecture
, het interieurontwerp wordt verzorgd door
burobas
.
Aanleiding voor de verbouwing is een toename van de ruimtebehoefte door de decentralisatie van overheidstaken en de afwezigheid van een raadzaal en goede vergaderfaciliteiten voor ambtelijk gebruik, meldt Reset Architecture.
Na de verbouwing biedt het gemeentehuis ruimte aan 160 hernieuwde werkplekken in de kantoorvleugels. Het nieuwe vergadercentrum is 750 vierkante meter groot en telt nog eens ongeveer vijftig flexwerk- en vergaderplekken met de mogelijkheid raadsvergaderingen te organiseren met 120 publiek bezoekers.
Onderdeel van de vraagstelling was een verbetering van de architectonische zeggingskracht van het complex. De huidige situatie mist de uitstraling van een openbaar gebouw en communiceert niet duidelijke dat dit het gemeentehuis is.
Leo de Bever
Het gemeentehuis bestaat nu uit twee met elkaar verbonden gebouw; een rijksmonumentale villa uit 1868 en een gebouw uit 1985 (van architect Leo de Bever) met twee kantoorvleugels en een middengebied dat met een aangekapt tussenlid tegen de villa staat.
Reset architecture heeft de villa visueel losgekoppeld van het jarentachtiggebouw om de monumentale status van de villa te benadrukken en een duidelijk entree situatie te creëren vanuit de omringende openbare ruimte. Vervolgens is een nieuw transparant volume ontworpen dat is ingeklemd tussen de twee kantoorvleugels boven de begane grond. Met deze herschikking ontstaat duidelijkheid in de samenstelling van het complex, meldt reset Architecture.
De villa en het nieuwe middengebied vormen de publieke- en bestuurszone, centraal, tussen de twee ambtelijke vleugels. Om de publieke functie van de nieuwbouw te accentueren reageert deze op de eclectische villa. De gevels van de villa hebben een symmetrisch opzet met een verticale geleding die benadrukt wordt door een middenrisaliet en hoekpilasters.
Ver doorgevoerde abstractie
De toevoeging van Reset architecture kan worden opgevat als een ver doorgevoerde abstractie hiervan. Het continueert de witte kleur van de villa in een vliesgevel waarin de verticaliteit in het detail tot het uiterste wordt benadrukt. De uitbreiding manifesteert zich nadrukkelijk, het steekt voorbij de kantoorvleugels met een overstek en de transparantie van de gevels communiceert een uitnodigend openbare karakter en zet de besluitvorming van de raad ‘in de etalage’.
Het interieur van het multifunctionele vergadercentrum heeft een open en ruimtelijke karakter. Het vergadercentrum presenteert zich als één geheel met daarin vergaderkamers op twee verdiepingen. De samenhang van de ruimte wordt versterkt door een doorlopende ritmiek van stijlen in de vier gevels en alzijdige lichtinval.
Trefwoorden
reset architecture
geldrop
mierlo
gemeentehuis
verbouwing
burobas
Best gelezen
1
44 woningen op bosrijke locatie in Driebergen
vrijdag, 15 mei
2
Parkeerplein naast Tilburgse schouwburg maakt plaats voor multifunctionele gebouwen
woensdag, 13 mei
3
'Zwevend huis' naar ontwerp van Benthem Crouwel in Amersfoortse wijk
woensdag, 13 mei
4
Schoonhovens College van Geurst & Schulze architecten stimuleert vakmanschap, ontmoeting en leerprestaties
dinsdag, 12 mei
5
Zijn tenders in Duitsland beter geregeld dan in Nederland?
dinsdag, 12 mei
Gerelateerde nieuwsberichten
Een galerie waar wonen en tentoonstellen in elkaar overvloeien
10 april 2025
Vernieuwde publiekhal van gemeentehuis Moerdijk is groen en gastvrij
23 november 2020
Vertrouwd tijdelijk thuis voor kinderen door Coenen Sättele Architecten
4 december 2019
Schuur herbestemd tot archeologisch museum
6 februari 2018
Een galerie waar wonen en tentoonstellen in elkaar overvloeien
10 april 2025
Vernieuwde publiekhal van gemeentehuis Moerdijk is groen en gastvrij
23 november 2020
Vertrouwd tijdelijk thuis voor kinderen door Coenen Sättele Architecten
4 december 2019
Schuur herbestemd tot archeologisch museum
6 februari 2018
Toon alles
Andere nieuwsberichten
KAAN Architecten en TU Delft presenteren boek Building Narratives
2 uur geleden
Hoe kunnen verhalen het ontwerp kunnen sturen en vormgeven, in plaats van slechts als vertelmiddel te dienen? Die vraag staat centraal in het boek 'Building Narratives. Instances from the Architecture of Dialogue'.
Amsterdam start selectie voor circulair en gestapeld bedrijfsgebouw langs A5
4 uur geleden
De gemeente Amsterdam is een selectieprocedure gestart voor de bouw van een gestapeld en circulair bedrijfsgebouw in Sloterijk Poort Noord.
Noordbrabants Museum zoekt jonge architect voor herinrichting vaste collectiepresentatie
Vandaag, 10:41
Het Noordbrabants Museum in Den Bosch zoekt een jonge architect voor de herinrichting van diens vaste collectiepresentatie. Daartoe heeft het museum een open call uitgeschreven.
Stuur nu jullie project in voor de prijs voor Kantoorgebouw van het Jaar 2026
Vandaag, 09:00
Hebben jullie een kantoorgebouw in Nederland ontworpen dat in de periode van 1 september 2025 tot en met 31 augustus 2026 opgeleverd of voltooid is? Stuur dat dan nu in voor de Architectenweb Awards 2026! Deadline is 19 juni 2026.
Eneco pleit voor voldoende marktwerking in de energietransitie
1 uur geleden
Aanleiding voor de oproep van het energiebedrijf is de steeds grotere rol van de overheid in de productie van energie.
Nationaal Park Utrechtse Heuvelrug wordt twee keer zo groot
3 uur geleden
Minister Van Essen heeft besloten om na het zuidelijke deel ook het noorden van het gebied de officiële status van Nationaal Park te geven.
BPD en Rabobank stimuleren biobased woningbouw en drinkwaterbesparing
Vandaag, 11:47
BPD en Rabobank kondigen de bouwstart aan van 160 nieuwbouwwoningen met biobased materialen en drinkwaterbesparende technieken.
ITA Ensemble speelt 'De Architect' van sterregisseur Rebecca Frecknall
15 mei, 3:11
De voorstelling is een hedendaagse bewerking van Henirik Ibsens 'Bouwmeester Solness'.
Commissie: milieustudie Schiphol schiet tekort voor omwonenden
15 mei, 12:08
De Commissie voor de milieueffectrapportage stelt zelfs dat het rapport herzien zou moeten worden.
Koen Pörtzgen benoemd tot partner bij Zecc Architecten
15 mei, 10:15
Samen met Marnix van der Meer (54) en Bart Kellerhuis (47) vormt de 39-jarige Pörtzgen vanaf dit jaar de directie van het Utrechtse bureau.
Ga naar het nieuws-archief
0
0
0
0
Voor een optimale gebruikservaring plaatst Architectenweb functionele cookies. Wat de verschillende cookies precies doen leggen we uit in een
overzicht
. Cookies van social media kun je optioneel
aanzetten
.
Akkoord
Instellingen
Annuleren
OK
Sluiten
Doorgaan
Inloggen
Maak een gratis persoonlijk account aan
Feedback
Feedback
Wij horen graag jouw feedback. Laat je reactie achter en eventueel jouw e-mail adres.
Reactie
Verstuur