Projecten
Producten
Bedrijven
Vacatures
Agenda
Awards
Podcasts
more_horiz
Videos
Magazine
Favorieten
Profiel
Uitloggen
Abonneer je nu op onze nieuwsbrieven!
Abonneren
Nee, bedankt
Ja, denk met me mee rond de
materialisering van mijn project
Copyright: Mecanoo architecten
Copyright: Mecanoo architecten
Copyright: Mecanoo architecten
Copyright: Mecanoo architecten
Copyright: Mecanoo architecten
Copyright: Mecanoo architecten
Copyright: Mecanoo architecten
Copyright: Mecanoo architecten
Copyright: Mecanoo architecten
Copyright: Mecanoo architecten
Copyright: Mecanoo architecten
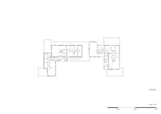
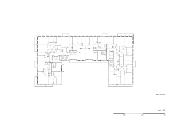
Mecanoo presenteert woongebouw ‘De Halve Maen’ op Overhoeks
18 mei 2017, 18:47
Alvaro Siza, Tony Fretton en Jo Coenen ontwierpen eerder al een woongebouw op de campus van Overhoeks, op de noordoever van het Amsterdamse IJ. Nu is hier ook een woongebouw naar ontwerp van Mecanoo aan toegevoegd. Het gebouwontwerp is geïnspireerd op de architectuur van de negentiende-eeuwse woongebouwen in Parijs.
Binnen de randvoorwaarden van het stedenbouwkundig plan van Geurst & Schulze voor dit deel van Overhoeks, heeft Mecanoo geprobeerd om het woongebouw ‘De Halve Maen’ enige sculpturaliteit mee te geven. De verspringende daklijn en transparante entreehal geven het gebouw volgens het bureau een dynamische uitstraling. De onderbouw van het U-vormige complex bestaat uit vijf tot zes lagen metselwerk in warme geeltinten. De ruime balkons zijn slank gedetailleerd met sierlijke hekjes.
Door de dubbele openslaande deuren diep in de gevel te plaatsen, ontstaat voor elk raam een Frans balkon. De entree ligt aan de zijde van het plein en loopt door tot aan de binnentuin. Een terugliggende bovenbouw met lichtgrijze gevelbekleding vormt de bekroning van het complex. Hier zijn op twee tot drie verdiepingen twintig bijzondere penthouses met grote daktuinen ondergebracht. Door delen uit de gebouwenveloppe weg te snijden en ergens anders weer toe te voegen is een elegante sculptuur ontstaan van in elkaar overlopende volumes.
Inspiratiebron voor de vormgeving en materialisering vormen de chique zandstenen woongebouwen van Parijs met hun grote openslaande deuren, smeedijzeren hekwerken en zinken daken. De appartementen zijn zoveel mogelijk twee- of meerzijdig georiënteerd, zodat ze maximaal profiteren van het zonlicht. Dit leverde een asymmetrische plattegrond op en een grote variëteit aan buitenruimtes.
In opdracht van Ymere Ontwikkeling zijn in woongebouw ‘De Halve Maen’ 86 vrije sector huur appartementen gerealiseerd. De appartementen variëren in grootte van 53 m2 tot 136 m2, zodat het woongebouw een mix van huishoudens zal huisvesten. Parkeren gebeurt in de parkeergarage die onder de volledige campus ligt.
Het eerste deel van de campus van Overhoeks, gelegen aan het IJ, is inmiddels grotendeels voltooit. De komende jaren zal het erachter gelegen deel van de campus versneld ontwikkeld worden. Tot 2025 zullen Amvest en Ymere hier 1.500-1.800 woningen bouwen.
Trefwoorden
amsterdam
woningbouw
overhoeks
mecanoo
Best gelezen
1
AM en Amvest zoeken architecten voor herontwikkeling Draka-terrein
dinsdag, 19 mei
2
Woningbouwproject KAAP langs het IJ in Amsterdam voltooid
dinsdag, 19 mei
3
Renovatie station Leeuwarden door Movares afgerond
woensdag, 20 mei
4
Dam & Partners ontwerpt multifunctioneel gebouw in Schinkelhaven
dinsdag, 19 mei
5
Utrechtse flats gerenoveerd volgens 'chassis-carrosseriemethode'
donderdag, 21 mei
Gerelateerde nieuwsberichten
Realisatie houtbouw The Ark in woonwijk Overhoeks van start
10 februari
Bouw negentig meter hoge BrinkToren Overhoeks gestart
11 oktober 2022
Woonblok The Row is ranke verschijning in nieuwe wijk Overhoeks
1 oktober 2021
Mecanoo ontwerpt negentig meter hoge woontoren op Overhoeks
17 juli 2020
KAAN Architecten presenteert The Stack op Overhoeks
24 april 2020
Bouw Y-Towers Amsterdam volgende maand hervat
9 december 2019
Amsterdam zoekt ontwikkelaar laatste kavel Overhoeks
7 oktober 2019
KCAP ontwerpt tweelinggebouw voor Overhoeks
19 november 2018
Bouw IKC Overhoeks aanstaande
19 oktober 2018
Mecanoo ontwerpt nieuwe woonwijk op voormalig gasfabriekterrein in Hilversum
6 juli 2018
Overeenkomst voor 290 woningen op Overhoeks Amsterdam
19 juni 2018
Mecanoo wint prijsvraag Shenzhen North Station
5 september 2017
Helder interieur in gerenoveerd kantoor waterschap Delfland naar ontwerp Mecanoo
28 augustus 2017
Mecanoo transformeert Perth City Hall
24 augustus 2017
Strakke kantoortoren contrasteert met bruisende markt
2 augustus 2017
This Is Holland-paviljoen op Overhoeks opgeleverd
1 augustus 2017
Bouw congreshotel en woontoren Overhoeks van start
20 april 2017
DP6 ontwerpt appartementengebouw Overhoeks
12 januari 2017
OeverZaaijer ontwerpt woontoren Overhoeks
22 april 2016
Ontwerp twee torens Overhoeks gepresenteerd
26 juni 2015
Eerste fase Overhoeks nadert voltooiing
14 november 2014
Realisatie houtbouw The Ark in woonwijk Overhoeks van start
10 februari
Bouw negentig meter hoge BrinkToren Overhoeks gestart
11 oktober 2022
Woonblok The Row is ranke verschijning in nieuwe wijk Overhoeks
1 oktober 2021
Mecanoo ontwerpt negentig meter hoge woontoren op Overhoeks
17 juli 2020
KAAN Architecten presenteert The Stack op Overhoeks
24 april 2020
Bouw Y-Towers Amsterdam volgende maand hervat
9 december 2019
Amsterdam zoekt ontwikkelaar laatste kavel Overhoeks
7 oktober 2019
KCAP ontwerpt tweelinggebouw voor Overhoeks
19 november 2018
Bouw IKC Overhoeks aanstaande
19 oktober 2018
Mecanoo ontwerpt nieuwe woonwijk op voormalig gasfabriekterrein in Hilversum
6 juli 2018
Overeenkomst voor 290 woningen op Overhoeks Amsterdam
19 juni 2018
Mecanoo wint prijsvraag Shenzhen North Station
5 september 2017
Helder interieur in gerenoveerd kantoor waterschap Delfland naar ontwerp Mecanoo
28 augustus 2017
Mecanoo transformeert Perth City Hall
24 augustus 2017
Strakke kantoortoren contrasteert met bruisende markt
2 augustus 2017
This Is Holland-paviljoen op Overhoeks opgeleverd
1 augustus 2017
Bouw congreshotel en woontoren Overhoeks van start
20 april 2017
DP6 ontwerpt appartementengebouw Overhoeks
12 januari 2017
OeverZaaijer ontwerpt woontoren Overhoeks
22 april 2016
Ontwerp twee torens Overhoeks gepresenteerd
26 juni 2015
Eerste fase Overhoeks nadert voltooiing
14 november 2014
Toon alles
Andere nieuwsberichten
SOME architects presenteert resultaten van onderzoek naar woonwensen 55-plussers
Gisteren, 16:09
Publicatie ‘Woontitanen’ biedt inspiratie en handvatten om kloof tussen vraag en aanbod in woningaanbod voor 55-plussers te dichten.
In beeld: inschuiven dakdeel van 2,4 miljoen kilo over Vivaldipassage
Gisteren, 14:43
Bij station Amsterdam Zuid vond afgelopen week een bijzondere inschuifoperatie plaats. Ten oosten van het station werd een nieuw dakdeel met een gewicht van 2,4 miljoen kilo over de toekomstige Vivalipassage geschoven.
Brug van hergebruikte materialen over Papaverkanaal in Buiksloterham
Gisteren, 13:15
Knipscheer Infra en Rademacher / De Vries Architecten hebben de aanbesteding gewonnen voor een brug van hergebruikte materialen in de Amsterdamse wijk Buiksloterham.
OZ transformeert kantoorgebouw achter voormalig hoofdkantoor Shell tot Ypsilon Park
Gisteren, 10:41
OZ transformeert een kantoorgebouw uit de jaren zeventig aan de Wassenaarseweg in Den Haag tot een woongebouw. Ypsilon Park bestaat uit 79 appartementen en penthouses, die in grootte variëren van 75 tot 280 vierkante meter.
Amsterdam wil woningbezitters weren uit sociale huurwoning
Gisteren, 12:23
Het stadsbestuur wil daarmee duidelijk maken dat het onwenselijk is dat huizenbezitters sociale huurwoningen bezet houden.
Mogelijk minder ruimte nodig voor uitbreidingsplannen Moerdijk
Gisteren, 09:47
Het dorp Moerdijk zou in dat geval kunnen blijven bestaan, aldus de gemeente.
Museum Rotterdam ontvangt sleutels van Citykerk Het Steiger
21 mei, 3:01
Citykerk Het Steiger, een wederopbouwmonument in de Rotterdamse binnenstad, ondergaat in de komende jaren een transformatie naar onderkomen voor Museum Rotterdam, alsook naar woon- en kantoorruimte.
Naturalis: Nederlandse natuur verbetert, maar niet snel genoeg
21 mei, 1:50
Het gaat beter met de natuur in Nederland, maar niet snel genoeg om aan afspraken te voldoen.
Bouw van flexwoningen valt tegen, ziet Rekenkamer
21 mei, 9:50
De 948 miljoen euro die sinds 2021 opzij is gezet om meer flexwoningen te bouwen, is pas deels uitgegeven.
Binnenhof al bij voorbaat te klein voor alle organisaties
20 mei, 2:47
Nog voordat de verbouwing van het Binnenhof klaar is, is het complex te klein voor alle organisaties die erin moeten.
Ga naar het nieuws-archief
0
0
0
0
Voor een optimale gebruikservaring plaatst Architectenweb functionele cookies. Wat de verschillende cookies precies doen leggen we uit in een
overzicht
. Cookies van social media kun je optioneel
aanzetten
.
Akkoord
Instellingen
Annuleren
OK
Sluiten
Doorgaan
Inloggen
Maak een gratis persoonlijk account aan
Feedback
Feedback
Wij horen graag jouw feedback. Laat je reactie achter en eventueel jouw e-mail adres.
Reactie
Verstuur