Projecten
Producten
Bedrijven
Vacatures
Agenda
Awards
Podcasts
more_horiz
Videos
Magazine
Thema's
Favorieten
Profiel
Uitloggen
Copyright: Studio Leon Thier
Copyright: Studio Leon Thier
Copyright: Studio Leon Thier
Copyright: Peter de Ruig
Copyright: Peter de Ruig
Copyright: Peter de Ruig
Copyright: Rigobert Nivillac
Situatie (Tekening: Studio Leon Thier)
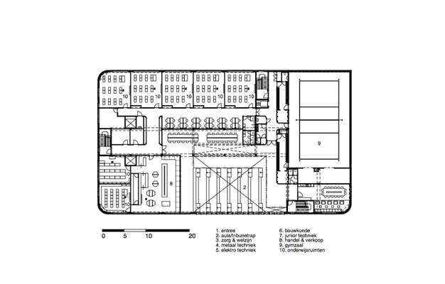
Begane grond (Tekening: Studio Leon Thier)
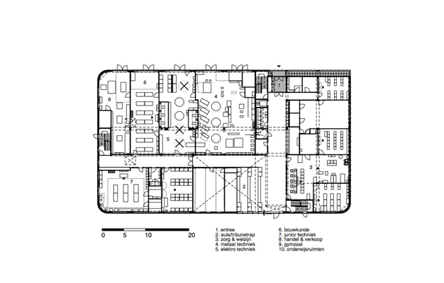
Eerste verdieping (Tekening: Studio Leon Thier)
Tweede verdieping (Tekening: Studio Leon Thier)
Doorsnede (Tekening: Studio Leon Thier)
School als 'flonkering in een smaragd'
3 juni 2016, 19:06
In Nieuw-Vennep wordt naar ontwerp van VOF HET-SLT (combinatie
HET architectenbureau
en
Studio Leon Thier
) momenteel de nieuwe huisvesting voor het Herbert Vissers College gerealiseerd. Begin april is de buitenzijde van de VMBO-school afgerond, voor het begin van het nieuwe schooljaar wordt het interieur afgerond.
Een ‘flonkering in een smaragd’ noemen HET architectenbureau en Studio Leon Thier hun ontwerp voor het Herbert Vissers College. Om haar leerlingen voor te bereiden op de praktijk, toont iedere VMBO in zijn schoolgebouw een ‘afspiegeling’ van die praktijk. Via de metafoor van de flonkerende smaragd hebben de architectenbureaus dit thema vertaald in een schoolgebouw met groene, glanzende gevels en een groot venster dat de activiteit in de school laat zien.
Het hart van de school wordt gevormd door een multifunctionele tribunetrap waar leerlingen elkaar kunnen ontmoeten, maar waar ook gemeenschappelijke activiteiten plaats kunnen vinden. Via het grote venster dat langs deze trap loopt, valt daglicht diep het compacte gebouw binnen.
‘Windows of Fame’
Alle werkplaatsen voor de technische sectoren binnen het Herbert Vissers College liggen op de begane grond aan een brede expeditiestraat, net als bij een echt bedrijfsgebouw. Bovenaan de tribunetrap, op de eerste verdieping, ligt de sector Handel en Verkoop, vormgegeven als een winkel met etalages. Op deze verdieping liggen de onderbouwlokalen rond een leerplein, waar de leerlingen zelfstandig kunnen werken. Hier ligt ook de gymzaal. Op de tweede verdieping liggen de lokalen voor de bovenbouw, eveneens rond een leerplein.
In ‘Windows of Fame’, etalages met vitrines aan de ontmoetingsruimte, zullen de gemaakte producten van de leerlingen getoond worden. Dit zal het zichtbare en trotse resultaat van het onderwijs zijn.
Buitenruimte als leerobject
Begin april 2016 is het exterieur van het schoolgebouw opgeleverd, bij de start van het nieuwe schooljaar zal ook het interieur afgerond zijn. Komende zomer zal daarbij gestart worden met de sloop van de oudbouw die nog op het terrein staat.
Door de compacte opzet van de nieuwbouw is er op het terrein straks, in aanvulling op de gymzaal binnen het gebouw, veel ruimte over voor sport en spel. Daarbij is het idee om de leerlingen zelf een aantal onderdelen van de buitenruimte te laten maken, zodat de buitenruimte zelf ook een leerobject wordt.
Trefwoorden
krepla trappen
nieuw-vennep
heemstede
studio leon thier
vmbo
school
herbert vissers college
het architectenbureau
Best gelezen
1
Woongebouw voor gezinnen biedt ruime corridor en gekoppelde terrassen met glijbaan
woensdag, 12 november
2
Benthem Crouwel Architects plaatst slotstuk in Paleiskwartier van Den Bosch
donderdag, 13 november
3
Den Bosch 'pauzeert' aanbesteding voor ontwerp gebiedsontwikkeling Citadelpoort
maandag, 17 november
4
Bedrijfsgebouw uit hergebruikte materialen voor garagebedrijf dat gespecialiseerd is in oude Volvo’s
woensdag, 12 november
5
MVRDV en Buro Happold ontwerpen nieuw theater in Veenendaal
vrijdag, 14 november
Gerelateerde nieuwsberichten
Naoorlogse fabriek getransformeerd tot stadskantoor Den Haag
21 september 2022
Campus Den Haag heeft nieuwe vestiging aan Turfmarkt
25 april 2017
Winnaars Gulden Feniks bekend
8 juni 2011
Zuidelijke Stadswalzone Den Bosch vernieuwd
21 februari 2012
Studentenhuisvesting Woudestein-campus klaar
17 januari 2014
Scholencomplex Het Nest is flexibel en duurzaam
11 maart 2014
Zomerserie (4): ruimte voor... schetsen
13 augustus 2015
Gerenoveerde politieacademie geopend
1 september 2010
Woningen internationale studenten voor EUR
1 september 2011
Politieacademie wint Architectuurprijs Apeldoorn
29 november 2010
Zuidelijke Stadswalzone Den Bosch geopend
15 september 2015
Nieuw Augustinianum moet inhoud uitstralen
28 maart 2014
Universiteit Leiden betrekt onderbouw voormalig ministerie
1 juli 2016
Nieuw schoolgebouw van Augustinianum met een podium in het hart
13 december 2017
St Caecilia: een brede school met ruime lokalen
17 juni 2016
Naoorlogse fabriek getransformeerd tot stadskantoor Den Haag
21 september 2022
Campus Den Haag heeft nieuwe vestiging aan Turfmarkt
25 april 2017
Winnaars Gulden Feniks bekend
8 juni 2011
Zuidelijke Stadswalzone Den Bosch vernieuwd
21 februari 2012
Studentenhuisvesting Woudestein-campus klaar
17 januari 2014
Scholencomplex Het Nest is flexibel en duurzaam
11 maart 2014
Zomerserie (4): ruimte voor... schetsen
13 augustus 2015
Gerenoveerde politieacademie geopend
1 september 2010
Woningen internationale studenten voor EUR
1 september 2011
Politieacademie wint Architectuurprijs Apeldoorn
29 november 2010
Zuidelijke Stadswalzone Den Bosch geopend
15 september 2015
Nieuw Augustinianum moet inhoud uitstralen
28 maart 2014
Universiteit Leiden betrekt onderbouw voormalig ministerie
1 juli 2016
Nieuw schoolgebouw van Augustinianum met een podium in het hart
13 december 2017
St Caecilia: een brede school met ruime lokalen
17 juni 2016
Toon alles
Andere nieuwsberichten
Ontwerpend onderzoek van Bright, Bura en Polyfern naar mogelijke ontwikkeling van Almere Pampus
Vandaag, 16:45
Team Pampus* presenteert het Ontwerpend Onderzoek Masterplan voor Boven- en Ondergrond voor Almere Pampus.
BDG Architecten verbouwt Enschedese kwekerij tot De Stadskas
Vandaag, 15:22
Op de plek van de huidige kweekkas aan de Blijdensteinbleekweg verrijst een grotendeels houten gebouw met onder meer horeca, een winkelfunctie en uiteraard een kas.
Expositie in Kunsthal belicht eerdere toeristische periode Rotterdam
Vandaag, 13:41
In de afgelopen tien, vijftien jaar is Rotterdam uitgegroeid tot een stad die veel toeristen trekt. Dat laatste was in de negentiende eeuw en in de eerste decennia van de twintigste eeuw ook al het geval.
Zelfsluitende Vlotterkering in Steyl vormt tevens 'balkon aan de Maas'
Vandaag, 11:37
In het Limburgse Steyl is de Vlotterkering in werking gesteld. De kering, die het kloosterdorp veilig moet houden bij hoogwater in de Maas, fungeert in rust als een plek om te genieten van het zicht op de rivier.
Vereniging Eigen Huis: criteria energielabel onduidelijk voor huiseigenaar
Vandaag, 14:26
Huiseigenaren weten niet goed wat nodig is om een label op te krikken, constateert Vereniging Eigen Huis in een onderzoek.
Amnesty: Nederlands bouwbedrijf betrokken bij arbeidsuitbuiting Saoedi-Arabië
Vandaag, 10:16
Strukton heeft een rol gespeeld bij de uitbuiting van arbeidsmigranten bij de bouw van een metro in Riyad, meldt Amnesty International.
Verbouwing Binnenhof kost 2,7 miljard euro, zomer 2031 klaar
Gisteren, 13:19
De laatste officiële inschatting van een einddatum was ‘op zijn vroegst eind 2028’, maar het jaartal 2030 stond ook al in documenten.
Vlaanderen aansprakelijk voor Limburgse schade in tramdebacle
Gisteren, 09:36
De Vlaamse regering is aansprakelijk voor de miljoenen euro's aan kosten die zijn gemaakt rond de afgeblazen tramlijn tussen Maastricht en het Belgische Hasselt.
Zuid-Holland verhoogt budget voor restauratie rijksmonumenten
14 november, 2:08
De provincie Zuid-Holland verhoogt het budget voor de restauratie van rijksmonumenten structureel.
Rapport: natuur kan helpen beschermen tegen stijgende zeespiegel
14 november, 9:24
Natuurlijke oplossingen zoals ruim baan geven aan gebieden met eb en vloed kunnen helpen de Nederlandse kustlijn te beschermen tegen de stijgende zeespiegel.
Ga naar het nieuws-archief
0
0
0
0
Voor een optimale gebruikservaring plaatst Architectenweb functionele cookies. Wat de verschillende cookies precies doen leggen we uit in een
overzicht
. Cookies van social media kun je optioneel
aanzetten
.
Akkoord
Instellingen
Annuleren
OK
Sluiten
Doorgaan
Inloggen
Maak een gratis persoonlijk account aan
Feedback
Feedback
Wij horen graag jouw feedback. Laat je reactie achter en eventueel jouw e-mail adres.
Reactie
Verstuur