Projecten
Producten
Bedrijven
Vacatures
Agenda
Awards
Podcasts
more_horiz
Videos
Magazine
Favorieten
Profiel
Uitloggen
Abonneer je nu op onze nieuwsbrieven!
Abonneren
Nee, bedankt
Ja, denk met me mee rond de
materialisering van mijn project
Copyright: Rogers Stirk Harbour & Partners
Copyright: Rogers Stirk Harbour & Partners
Copyright: Rogers Stirk Harbour & Partners
Copyright: Rogers Stirk Harbour & Partners
Copyright: Rogers Stirk Harbour & Partners
Copyright: Rogers Stirk Harbour & Partners
Copyright: Rogers Stirk Harbour & Partners
Copyright: Rogers Stirk Harbour & Partners
Copyright: Rogers Stirk Harbour & Partners
Copyright: Rogers Stirk Harbour & Partners
Copyright: Rogers Stirk Harbour & Partners
Copyright: Rogers Stirk Harbour & Partners
Copyright: Rogers Stirk Harbour & Partners
Video + foto's: Leadenhall Building
20 mei 2016, 16:37
Rogers Stirk Harbour & Partners
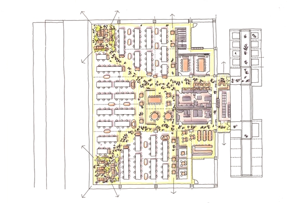
(RHSP) heeft zich gevestigd in het door het bureau zelf ontworpen Leadenhall Building in Londen. Vandaag presenteerde het bureau van Richard Rogers foto’s van het kantoor op de veertiende verdieping van het gebouw.
Na dertig jaar gevestigd te zijn geweest op Thames Warf in het westen van Londen heeft RSHP (tweehonderd medewerkers) een kantoor betrokken dat beter past bij de huidige organisatiestructuur. De verdieping heeft een open plattegrond en de plafonds zijn grotendeels open gelaten, zodat de materialisatie van het gebouw ook in het interieur zichtbaar is.
In onderstaande video’s reportages van het Leadenhall Building zelf, bovenaan dit bericht foto’s van het kantoor van RSHP.
https://youtu.be/xrRprzvPxmg
https://vimeo.com/114879284
Trefwoorden
rogers stirk harbour partners
Locatie
Best gelezen
1
Architect Cees Dam op 93-jarige leeftijd overleden
dinsdag, 14 april
2
Powerhouse Company wint aanbesteding voor verbouwing Vista College Maastricht
dinsdag, 14 april
3
Tien bureaus geselecteerd voor tweede ronde nieuwbouw De Meervaart
woensdag, 15 april
4
Voormalig hoofdkantoor Ferro in M4H verbouwd tot bedrijfsverzamelgebouw
woensdag, 15 april
5
Anterieure overeenkomst voor bouw woontoren The Four in Eindhoven
donderdag, 16 april
Gerelateerde nieuwsberichten
Kantoortoren van LegoRogers in Mexico Stad geopend
10 februari 2016
RSHP wint competitie voor Louvre-depot
8 juli 2015
Museum viert 80e verjaardag Richard Rogers
18 juli 2013
NEO Bankside in Londen is opgeleverd
9 januari 2013
'Grote' bureaus in race om toren in New York
12 juli 2012
Kantoortoren van LegoRogers in Mexico Stad geopend
10 februari 2016
RSHP wint competitie voor Louvre-depot
8 juli 2015
Museum viert 80e verjaardag Richard Rogers
18 juli 2013
NEO Bankside in Londen is opgeleverd
9 januari 2013
'Grote' bureaus in race om toren in New York
12 juli 2012
Toon alles
Andere nieuwsberichten
OMA gebruikt bestaand gebouw als canvas bij renovatie Edo-Tokyo Museum
17 april, 3:55
Na een renovatie van bijna vier jaar is het Edo-Tokyo Museum in de Japanse hoofdstad Tokio heropend. OMA nam het uit 1993 stammende gebouw, dat is ontworpen door de Metabolist Kiyonori Kikutake, onder handen.
Winnaars verkiezing Beste Bossche Gebouw 2020–2025 bekend
17 april, 2:16
De vakjury en het publiek wezen elk in drie categorieën een winnaar aan. Daarnaast kende vakjury nog een wildcard toe aan een project.
Appartementengebouwen door MIX architectuur vormen sluitstuk Noorderhaven Zutphen
17 april, 12:29
In de nieuwe buurt Noorderhaven in Zutphen zijn drie appartementengebouwen naar ontwerp van MIX architectuur opgeleverd. De gebouwen met in totaal tachtig woningen vormen het sluitstuk van de gebiedsontwikkeling.
EUmies Award naar renovatie congrescentrum in Charleroi en tijdelijke ruimtes Sloveens theater
17 april, 10:54
Donderdag zijn de winnaars van de EUmies Award 2026 bekendgemaakt. De renovatie van het congrescentrum Charleroi Palais des Expositions won in de belangrijkste categorie architectuur.
Woningbouwzaken krijgen langer voorrang bij Raad van State
17 april, 4:49
Om het huizentekort tegen te gaan, blijft de Raad van State woningbouwzaken met voorrang behandelen.
Inspectie positief over verbetering sociale veiligheid TU Delft
17 april, 11:36
De TU Delft heeft aanzienlijke stappen gezet om de sociale veiligheid voor medewerkers te verbeteren.
NVM vreest minder nieuwbouw door veranderende voorrang stroomnet
17 april, 9:23
Bouwers kunnen, door onzekerheid over welke projecten straks nog maatschappelijke prioriteit krijgen in een bepaalde regio, besluiten om minder nieuwe huizen te bouwen.
Architecten voor restauratie en herbestemming Rivièrahal gekozen
16 april, 12:00
Voor de grootscheepse restauratie en herbestemming van de Rivièrahal in de Rotterdamse Diergaarde Blijdorp zijn Mecanoo en BiermanHenket geselecteerd.
Bewoners aardbevingsgebied Groningen blijven kritisch op herstel
16 april, 10:34
Door de complexiteit en onzekerheid van het jarenlange proces ervaren mensen stress en frustratie.
ING: optoppen en splitsen van woningen steeds minder haalbaar
15 april, 1:22
Het kabinet-Jetten gaat naar verwachting het doel van 15.000 extra woningen per jaar uit verbouwingen niet halen, stelt ING.
Ga naar het nieuws-archief
0
0
0
0
Voor een optimale gebruikservaring plaatst Architectenweb functionele cookies. Wat de verschillende cookies precies doen leggen we uit in een
overzicht
. Cookies van social media kun je optioneel
aanzetten
.
Akkoord
Instellingen
Annuleren
OK
Sluiten
Doorgaan
Inloggen
Maak een gratis persoonlijk account aan
Feedback
Feedback
Wij horen graag jouw feedback. Laat je reactie achter en eventueel jouw e-mail adres.
Reactie
Verstuur