Projecten
Producten
Bedrijven
Vacatures
Agenda
Awards
Podcasts
more_horiz
Videos
Magazine
Favorieten
Profiel
Uitloggen
Abonneer je nu op onze nieuwsbrieven!
Abonneren
Nee, bedankt
Ja, denk met me mee rond de
materialisering van mijn project
Copyright: Pietro Savorelli
Copyright: Pietro Savorelli
Copyright: Pietro Savorelli
Copyright: Pietro Savorelli
Copyright: Pietro Savorelli
Copyright: Pietro Savorelli
Copyright: Pietro Savorelli
Copyright: Pietro Savorelli
Copyright: Pietro Savorelli
Copyright: Pietro Savorelli
Copyright: Pietro Savorelli
Copyright: Pietro Savorelli
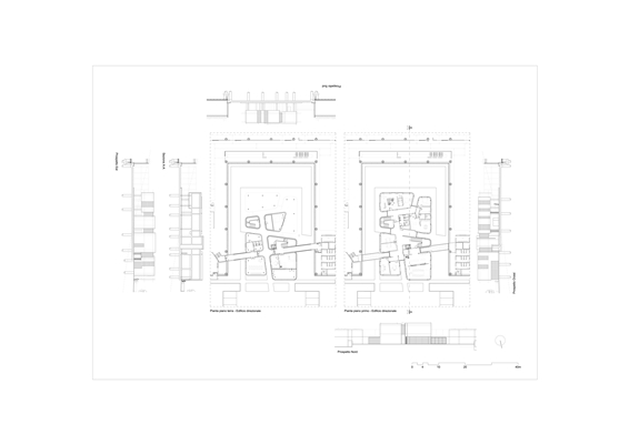
Copyright: Doorsnedes. Enzo Eusebi + Partners
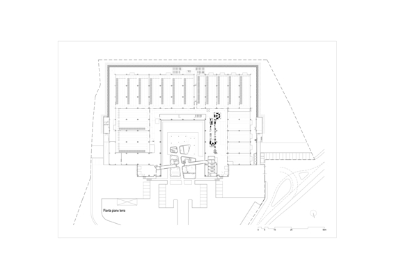
Copyright: Plattegrond niveau 0. Enzo Eusebi + Partners
Prosciutto-fabriek gaat op in het landschap
3 maart 2016, 16:59
De nieuwe prosciutto-fabriek van producent Salpi ligt letterlijk in de heuvels van Umbriƫ. De Italiaanse architect Enzo Eusebi heeft in zijn ontwerp het gebouw voor een ruim deel ondergronds gesitueerd.
De fabriek van Opificio Salpi ligt in de omgeving van Perugia aan de voet van een heuvel. Architectenbureau
Enzo Eusebi + Partners
heeft het gebouw als het ware deels in de heuvel geschoven. Het U-vormige volume, dat zich opent in de richting van het dal, is bedekt met een groendak dat aansluit op de natuurlijke omgeving.
Hout en spiegels
De plattegrond is een herinterpretatie van de traditionele āblokvormā, aldus Eusebi. De U-vorm, die het grootste deel van de totale 7.000 m
2
beslaat, herbergt voornamelijk de hammenproductie. De opening van de U-vorm wordt gesloten door een aantal kleinere volumes, die het complex architectonisch karakteriseren en zichtbaar maken.
De volumes hebben afgeronde hoeken en voorzien van houten en spiegelende gevelbekleding. De spiegelende gevels zorgen voor, legt het architectenbureau uit, een vermenigvuldiging van de omgeving, maar ook voor weerkaatsing van het daglicht naar de fabrieksvloeren.
De fabriek is voorzien van grote glazen gevels, zodat de werknemers voldoende daglicht en uitzicht hebben. In het interieur is het hout toegepast dat ook de gevels van een aantal de paviljoen kenmerkt.
Duurzaamheid
Eusebi heeft zich in zijn ontwerp laten leiden door een streven naar welbevinden van de gebouwgebruikers en door duurzaamheid, geeft hij aan. De architect heeft daarbij de LEED-standaard gevolgd.
Dit resulteerde bijvoorbeeld in de keuze om een ruim deel van de fabriek ondergronds te situeren. Het groendak draagt bij aan versterking van de thermische isolatie, vermindering van de geluidsoverlast en regulering van de hemelwaterafvoer.Binnen de U-vorm een bassin om regenwater te verzamelen.
De fabriek maakt gebruik van vijftig pv-panelen en tien zonnecollectoren op het eigen terrein. De restwarmte van het productieproces komt ten goede aan de citrusbomen, die op het groendak zullen worden geplant.
Het ontwerp is gemaakt in 2010; Opificio Salpi is recent opgeleverd.
Trefwoorden
italië
perugia
leed
duurzaamheid
fabriek
umbrië
enzo eusebi partners
duurzaam
Best gelezen
1
Woontoren Front door Monadnock wint tiende Architectuurprijs Nijmegen
donderdag, 9 april
2
Spoorwegverleden inspireert ontwerp woonblok Wisselspoor 10 in Utrecht
woensdag, 8 april
3
Rotterdam mag woningen gaan bouwen aan de Parkhaven
woensdag, 8 april
4
RED Company vraagt vergunning aan voor productie- en onderzoeksfaciliteit Lilly
dinsdag, 7 april
5
KOW wint met Marker Woods tender voor nieuwe wijk Eschmarkerveld
woensdag, 8 april
Gerelateerde nieuwsberichten
Hoofdkantoor Gucci in oude fabriek vliegtuigbouwer geopend
1 maart 2018
Begraafplaats als stiltecentrum van Gubbio
14 januari 2014
Architect Botta schenkt stoelontwerp
25 juli 2013
Tschumi ontwerpt cultuurcentrum in Italië
12 maart 2013
Duurzaam gebouw voor betonproducent Bergamo
24 januari 2013
Hoofdkantoor Gucci in oude fabriek vliegtuigbouwer geopend
1 maart 2018
Begraafplaats als stiltecentrum van Gubbio
14 januari 2014
Architect Botta schenkt stoelontwerp
25 juli 2013
Tschumi ontwerpt cultuurcentrum in Italië
12 maart 2013
Duurzaam gebouw voor betonproducent Bergamo
24 januari 2013
Toon alles
Andere nieuwsberichten
Restauratie Atlasbeeld op dak Koninklijk Paleis Amsterdam afgerond
Gisteren, 15:38
Het beeld op het fronton van het paleis was in juli van zijn plek gehaald voor een uitgebreide onderhoudsbeurt in Antwerpen.
Nieuw zitgebied Lounge 2 Schiphol geïnspireerd door overgangsfase in oeuvre Mondriaan
Gisteren, 14:16
Op luchthaven Schiphol is de derde en laatste fase van door Beyond Space ontworpen zitgebieden opgeleverd. Net als de eerste twee fases van het project is dit gedeelte geïnspireerd door het werk van Mondriaan, maar dan uit een eerdere periode.
SeARCH en Heutink Groep winnen tender voor woongebouw Sluisbuurt
Gisteren, 11:15
Gebouw Radius biedt plek aan zoān honderd appartementen, een stadskamer, een binnentuin, daktuinen en andere gemeenschappelijke ruimtes. Het gebouw wordt gerealiseerd van natuurlijke materialen als hout, stampleem en leemsteen.
Woontoren Front door Monadnock wint tiende Architectuurprijs Nijmegen
9 april, 10:00
āFront is een optimistisch icoon, gemaakt met lef, dat ambachtelijkheid en vakmanschap uitstraaltā, stelt de jury in zijn rapport.
Grote en kleine gemeenten balen van bouwregels Zuid-Holland
Gisteren, 16:31
Grote en kleine gemeenten in Zuid-Holland hebben hun zorgen geuit over nieuwe regels van de provincie, die volgens hen de woningbouw belemmeren.
Twijfels in Zuid-Holland over halen van doelen landelijk gebied
Gisteren, 12:18
De meeste partijen in de Zuid-Hollandse politiek hebben twijfels over de plannen die in zestien deelgebieden zijn gemaakt voor de aanpak van het landelijk gebied.
Huurprijzen stijgen harder dan koopwoningprijzen
Gisteren, 09:31
Volgens Huurwoningen.nl en Pararius moesten nieuwe huurders in het eerste kwartaal gemiddeld 21,12 euro per vierkante meter per maand neerleggen.
ABN AMRO: investeringen defensie vergroten druk op bouwcapaciteit
9 april, 12:29
Kazernes, opslagplaatsen en oefenterreinen dingen om dezelfde aannemers, ingenieurs en installateurs die ook nodig zijn voor bijvoorbeeld woningbouw.
Europa kent 831 miljoen euro subsidie toe aan Utrechtse projecten
9 april, 9:27
Het gaat onder meer om projecten tegen oververhitting van gebouwen, slimmer gebruik van energie en het hergebruik van materialen en grondstoffen.
Rotterdam mag woningen gaan bouwen aan de Parkhaven
8 april, 3:38
De Raad van State maakte woensdag bekend dat alle bezwaren tegen het bestemmingsplan zijn verworpen.
Ga naar het nieuws-archief
0
0
0
0
Voor een optimale gebruikservaring plaatst Architectenweb functionele cookies. Wat de verschillende cookies precies doen leggen we uit in een
overzicht
. Cookies van social media kun je optioneel
aanzetten
.
Akkoord
Instellingen
Annuleren
OK
Sluiten
Doorgaan
Inloggen
Maak een gratis persoonlijk account aan
Feedback
Feedback
Wij horen graag jouw feedback. Laat je reactie achter en eventueel jouw e-mail adres.
Reactie
Verstuur