Projecten
Producten
Bedrijven
Vacatures
Agenda
Awards
Podcasts
more_horiz
Videos
Magazine
Favorieten
Profiel
Uitloggen
Abonneer je nu op onze nieuwsbrieven!
Abonneren
Nee, bedankt
Ja, denk met me mee rond de
materialisering van mijn project
Copyright: Studio Dois
Copyright: Inês Guedes
Copyright: Inês Guedes
Copyright: Inês Guedes
Copyright: Inês Guedes
Copyright: Inês Guedes
Copyright: Inês Guedes
Copyright: Inês Guedes
Copyright: Inês Guedes
Copyright: Inês Guedes
Copyright: Inês Guedes
Copyright: Inês Guedes
Copyright: Inês Guedes
Copyright: Inês Guedes
Copyright: Inês Guedes
Copyright: Inês Guedes
Copyright: Studio Dois
Copyright: Studio Dois
Copyright: Studio Dois
Copyright: Studio Dois
Copyright: Studio Dois
Copyright: Studio Dois
Copyright: Studio Dois
Copyright: Studio Dois
Studio Dois levert villa in Funchal op
1 december 2015, 11:43
Studio Dois
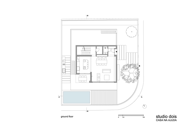
, het bureau van Nederlander Rik den Heijer en zijn vrouw Carolina Sumares, heeft een villa op het Portugese eiland Madeira opgeleverd. De woning ligt in een wijk in de hoofdstad Funchal die momenteel in ontwikkeling is. Omdat er in de directe nabijheid andere villa’s staan of gebouwd gaan worden, was de architecten gevraagd zoveel mogelijk privacy te waarborgen in het ontwerp.
Daarnaast schreef het stedenbouwkundig plan een rechthoekige plattegrond voor en een gevel die aansluit op de andere bebouwing in de omgeving. Dit heeft zich vertaald in een wit blok, waarin op de zuidgevel na nauwelijks directe openingen zijn gemaakt. Alleen de terrassen met de verticale tuinen van de drie slaapkamers op de verdieping zijn vanaf de straat zichtbaar.
De begane grond heeft een open plattegrond. De bewoners kunnen de keuken en eetkamer door middel van een schuifwand scheiden van de woonkamer. Dankzij een schuifpui kan zowel het eet- als woongedeelte worden geopend naar de buitenruimte met zwembad. In de kelder bevinden zich een garage, kantoor en snookerruimte. Een patio zorgt voor natuurlijke ventilatie.
Rik den Heijer en Carolina Sumares zijn enkele jaren geleden vertrokken naar Madeira om daar een eigen bureau te beginnen. Vorig jaar
heeft Den Heijer hier meer over verteld
in het kader van de Architectenweb-zomerserie ‘Architect in het buitenland’.
Trefwoorden
funchal
villa
studio dois
madeira
rik den heijer
Best gelezen
1
Woontoren Front door Monadnock wint tiende Architectuurprijs Nijmegen
donderdag, 9 april
2
Spoorwegverleden inspireert ontwerp woonblok Wisselspoor 10 in Utrecht
woensdag, 8 april
3
SeARCH en Heutink Groep winnen tender voor woongebouw Sluisbuurt
vrijdag, 10 april
4
Rotterdam mag woningen gaan bouwen aan de Parkhaven
woensdag, 8 april
5
KOW wint met Marker Woods tender voor nieuwe wijk Eschmarkerveld
woensdag, 8 april
Gerelateerde nieuwsberichten
Zomerserie (7): Architect in... Portugal
14 augustus 2014
Andere nieuwsberichten
Voormalig hoofdkantoor Ferro in M4H verbouwd tot bedrijfsverzamelgebouw
38 minuten geleden
Naar ontwerp van GROUP A werd het voormalige hoofdkantoor van chemiebedrijf Ferro verbouwd tot een bedrijfsverzamelgebouw voor jonge (maritieme) maakbedrijven, die zich bezighouden met energietransitie, mobiliteit en circulariteit.
Tien bureaus geselecteerd voor tweede ronde nieuwbouw De Meervaart
2 uur geleden
Het tiental bureaus mag een ‘pre-visie’ op de ontwerpopgave maken voor het theatergebouw, dat aan de zuidwestoever van de Sloterplas komt te staan.
Architect Cees Dam op 93-jarige leeftijd overleden
Gisteren, 14:35
De oprichter van Dam & Partners architecten ontwierp onder meer de Stopera in Amsterdam (samen met Wilhelm Holzbauer), het stadhuis van Almere en het Huis van de Toekomst in Rosmalen.
Powerhouse Company wint aanbesteding voor verbouwing Vista College Maastricht
Gisteren, 12:16
Het onderkomen van de mbo-school wordt gerenoveerd en uitgebreid met een houten gebouwdeel, dat onder meer de nieuwe hoofdentree en twee atria bevat. Ook moet de nieuwbouw de bestaande gebouwen beter met elkaar verbinden.
Geen rechtszaak over subsidie ministerie aan Van Gogh Museum
1 uur geleden
De zaak draait om geld dat het museum nodig zegt te hebben voor een renovatie.
AFM: funderingsproblemen bij bijna 220.000 woningen
Gisteren, 13:25
De huizen van bijna een half miljoen woningeigenaren hebben een hoog risico op funderingsproblemen of een mogelijke kwetsbare fundering.
Oprichter omgevallen vastgoedconcern Evergrande bekent schuld
Gisteren, 09:17
Evergrande was ooit de grootste projectontwikkelaar van China, maar kwam in de problemen toen het zijn schulden niet kon terugbetalen.
Grote en kleine gemeenten balen van bouwregels Zuid-Holland
10 april, 4:31
Grote en kleine gemeenten in Zuid-Holland hebben hun zorgen geuit over nieuwe regels van de provincie, die volgens hen de woningbouw belemmeren.
Twijfels in Zuid-Holland over halen van doelen landelijk gebied
10 april, 12:18
De meeste partijen in de Zuid-Hollandse politiek hebben twijfels over de plannen die in zestien deelgebieden zijn gemaakt voor de aanpak van het landelijk gebied.
Huurprijzen stijgen harder dan koopwoningprijzen
10 april, 9:31
Volgens Huurwoningen.nl en Pararius moesten nieuwe huurders in het eerste kwartaal gemiddeld 21,12 euro per vierkante meter per maand neerleggen.
Ga naar het nieuws-archief
0
0
0
0
Voor een optimale gebruikservaring plaatst Architectenweb functionele cookies. Wat de verschillende cookies precies doen leggen we uit in een
overzicht
. Cookies van social media kun je optioneel
aanzetten
.
Akkoord
Instellingen
Annuleren
OK
Sluiten
Doorgaan
Inloggen
Maak een gratis persoonlijk account aan
Feedback
Feedback
Wij horen graag jouw feedback. Laat je reactie achter en eventueel jouw e-mail adres.
Reactie
Verstuur