Projecten
Producten
Bedrijven
Vacatures
Agenda
Awards
Podcasts
more_horiz
Videos
Magazine
Thema's
Favorieten
Profiel
Uitloggen
Nieuw
Populair
Toon alles
Architectenweb magazine #14
Architectenweb magazine #13
Publieke gebouwen
Architectenweb magazine #12
Kantoren
Architectenweb magazine #11
Scholen
Architectenweb magazine #10
Zorg
Architectenweb magazine #14
Architectenweb magazine #10
Zorg
Architectenweb magazine #12
Kantoren
Architectenweb magazine #13
Publieke gebouwen
Architectenweb magazine #6
Transformatie en Renovatie
Om direct naar je favorieten te kunnen gaan is het nodig om eerst in te loggen.
Nieuw
Architectenweb Awards 2025
Architectenweb Awards 2024
Architectenweb Awards 2023
Architectenweb Awards 2022
Architectenweb Awards 2021
Architectenweb Awards 2020
Architectenweb Awards 2019
Architectenweb Awards 2018
Om direct naar je favorieten te kunnen gaan is het nodig om eerst in te loggen.
Nieuw
Populair
Favorieten
Toon alles
Vakwerk Architecten
Nominatie voor de prijs voor Architect van het Jaar 2025
Sanne van Manen
Nominatie voor de prijs voor Architect van het Jaar 2025
KSA
Nominatie voor de prijs voor Architect van het Jaar 2025
KRFT
Nominatie voor de prijs voor Architect van het Jaar 2025
Joost Ector
Nominatie voor de prijs voor Architect van het Jaar 2025
Prijsuitreiking Architectenweb Awards 2024
Impressie van een feestelijke avond
Martens, Willems & Humblé Architecten
Nominatie voor de prijs voor Architect van het Jaar 2024
Uitreiking van Architectenweb Awards 2020
Impressie van de prijsuitreiking via Zoom
De Zwarte Hond
Nominatie voor de prijs voor Architect van het Jaar 2024
Avond met De Zwarte Hond
Symposium
Om direct naar je favorieten te kunnen gaan is het nodig om eerst in te loggen.
Nieuw
Populair
Categorieën
Favorieten
Toon alles
ST1centrum
Dé specialist op het gebied van gevelstenen en dakpannen
Studio Massimo
Architecture & Nature
Brandpreventie Academy BV
Cay Circulaire Keukens
Circulaire keukens en pantry's
Studio Kirsten Reith
Interieurontwerp
Studio175
Interieuradvies in regio Utrecht
Interior & Co
Studio175
Interieuradvies in regio Utrecht
Cay Circulaire Keukens
Circulaire keukens en pantry's
Brandpreventie Academy BV
Orange Automatic Doors
Studio Kirsten Reith
Interieurontwerp
Architecten
Architectuur
Mobiliteit en infrastructuur
Stedenbouw en landschapsarchitectuur
Leveranciers
Gevels
Daken
Ramen en deuren
Trappen, liften en balustrades
Binnenwanden
Vloeren
Plafonds
Verlichting
Sanitair
Projectinrichting
Installaties
Constructies
Buitenruimte
Software
Adviseurs
Bestekschrijvers
Bouwmanagement
Installatie adviseurs E
Bouwfysica
Calculators
Installatie adviseurs G/W
Bouwkundig tekenwerk
Constructeurs
Lichtadviseurs
Adviseur beveiliging
Juristen
Intermediairs, Payrolling
Aannemers
Overig
Presentatie
Instellingen / onderwijs
Overig
Om direct naar je favorieten te kunnen gaan is het nodig om eerst in te loggen.
Nieuw
Populair
Favorieten
Toon alles
Gesprek met Stephan Sliepenbeek over hoogbouw in Amstel III
Gesprek met Ellen van Bueren over gebiedsontwikkeling en hoogbouw
Gesprek met Ma Yansong over ontwerpen die emotie oproepen
Gesprek met Paul de Ruiter over innovatieve en duurzame hoogbouw
Gesprek met Pi de Bruijn over zijn ontwerpen voor de Tweede Kamer toen en nu
Gesprek met Ellen van Bueren over gebiedsontwikkeling en hoogbouw
Gesprek met Oresti Sarafopoulos over het ontwerpen van een kantoorgebouw met bijna geen installaties
Gesprek met Stijn Steenbakkers over verdichting en hoogbouw in Eindhoven
Gesprek met Pi de Bruijn over zijn ontwerpen voor de Tweede Kamer toen en nu
Gesprek met Paul de Ruiter over innovatieve en duurzame hoogbouw
Om direct naar je favorieten te kunnen gaan is het nodig om eerst in te loggen.
Nieuw
Populair
Categorieën
Favorieten
Toon alles
Hoofdkantoor We Enable Climbers
Renovatie met respect voor oorspronkelijke ontwerp
Øbro-Hallen
ITO Toren Amsterdam
Natuurlijk modern bedrijfsgebouw
Boekweitkamp, Den Haag
Exclusieve wooneenheden
Kantoorinterieur: van Rest tot Ruimte
De Grote Zwaan, Nijmegen
Renovatieproject Ockenburghstraat
Architectuur
Woningbouw
Zorg
Hotels
Restaurants en café’s
Winkels
Sportgebouwen
Culturele gebouwen
Overheidsgebouwen
Scholen
Kantoren
Bedrijfsgebouwen
Paviljoens en kunst
Overig
Mobiliteit en infrastructuur
Trein- en metrostations
Luchthavens
Busstations
Parkeergarages
Fietsparkeren
Wegen
Bruggen
Water
Energie
Tankstations en laadstations
Waterzuivering en afvalverwerking
Overig
Stedenbouw en landschapsarchitectuur
Regionale visies
Gebiedsvisies
Plannen stedelijk weefsel
Amusementsparken en dierentuinen
Lichtontwerpen
Openbare ruimte
Pleinen
Parken
Tuinen
Speelplaatsen
Uitkijktorens
Overige (bijv. begraafplaatsen)
Om direct naar je favorieten te kunnen gaan is het nodig om eerst in te loggen.
Nieuw
Populair
Categorieën
Favorieten
Toon alles
Akoestische scheidingswand met print
Een oplossing met print waar je stil van wordt
Palazzo Collection
De Collectie waar alle sterke punten van onze gevelstenen samenkomen!
WoodFrame Slim Meranti
Profielen uit post-consumer meranti hardhout uit Nederlandse sloopprojecten, FSC Recycled
Nieuw! Circus Zitelementen stelen de show
Duurzaam en uitnodigend straatmeubilair voor elke buitenruimte
Naturoll 031 (nieuw!)
Betere prestaties, meer rendement.
Akoestisch kussen.
Ervaar de ultime natuurlijke oplossing voor akoestiek problemen.
StoTherm Wood: cementvrij gevelsysteem met houtvezelisolatie
Biobased gevelisolatie met natuurlijke prestaties
Lumiglaze – Het vlakglas van VELUX Commercial
Een nieuw tijdperk in daglichtontwerp – minimalistisch, functioneel en klaar voor de toekomst.
Veelzijdig straatmeubilair
Van openbare ruimte naar (be)leefomgeving
Knauf MaxSpace
Minder wand, méér ruimte. Het ideale profiel voor meer winst per m²
Gevels
Gevelbekleding
Vliesgevels
Zonwering buiten
Isolatie
Gevelconstructies
Signing
Overig
Daken
Dakafwerkingen
Dakisolatie
Dakconstructies
Dakranden, dakgoten en HWA's
Dakramen
Lichtkoepels
Lichtstraten
Schoorstenen
Overig
Dakluiken
Ramen en deuren
Raam- en deursystemen / kozijnen
Vliesgevels
Hang- en sluitwerk
Beveiliging en luiken
Dorpels en vensterbanken
Lateien
Roosters
Glas
Dakramen
Dakkoepels
Lichtstraten
Zonwering buiten
Zonwering binnen
Buitendeuren
Binnendeuren
Postvakken en brievenbussen
Overig
Dakluiken
Trappen, liften en balustrades
Trappen
Roltrappen
Liften
Balustrades en hekwerken
Galerijen
Binnenwanden
Binnenwanden
Wandafwerking
Vloeren
Constructieve vloeren
Verhoogde vloeren
Vloerafwerkingen
Overig
Plafonds
Tegels
Lineair
Grill
Open en roosters
Naadloos
Eilanden en baffles
Plafondafwerkingen
Ophangsystemen
Overig
Klimaatplafonds
Verlichting
Binnenverlichting
Buitenverlichting
Sanitair
Kranen en douchesets
Wastafels
Douchewanden en douchebakken
Baden
Waterclosets
Accessoires
Overig
Projectinrichting
Stoelen
Banken
Tafels
Kasten
Balies
Vrijstaande wanden
Keukens
Accessoires
Overig
Cabines
Interieurbeplanting
Stoffering
Installaties
Verwarming, koeling en ventilatie
Elektrotechnische installaties
Schakelmateriaal
Domotica
Deurcommunicatie
Beveiliging
Liften
Onderhoudsinstallaties
Overig
Brandbeveiliging
Constructies
Draagconstructies
Funderingen en kelders
Overig
Brandbeveiliging
Buitenruimte
Bestratingen en verhardingen
Afwateringen
Terreinafscheidingen en geluidsschermen
Buitenmeubilair
Fietsparkeren
Terrassen
Terrasoverkappingen
Bruggen
Accessoires
Overig
Beplanting
Sport- en speeltoestellen
Software
Tekenen 2D
Modelleren 3D / BIM
Visualisatie / rendering
Parametrisch ontwerpen
Bouwfysica
Draagconstructie
Overig
Virtual Reality
Cloudoplossingen
Om direct naar je favorieten te kunnen gaan is het nodig om eerst in te loggen.
Nieuw
Populair
Favorieten
Toon alles
Prefab beurs - 7 t/m 9 oktober 2025
Brabanthallen 's-Hertogenbosch
Boekpresentatie en panelgesprek met Floor Milikowsky
Prins Hendrikkade 600, 1011 VX Amsterdam
Architects Table ’25: Lunch & Inspiratie in HAUT Amsterdam
ATAG LIVE – HAUT gebouw, Spaklerweg 10F, 1096 BA Amsterdam (tegenover metrostation Spaklerweg)
Inspiratiedag @ Sempergreen – Gevelgroen
Defensieweg 1, 3984 LR Odijk
Architectenweb symposium: klein maar fijn wonen?
Pakhuis de Zwijger
Architects Table ’25: Lunch & Inspiratie in HAUT Amsterdam
ATAG LIVE – HAUT gebouw, Spaklerweg 10F, 1096 BA Amsterdam (tegenover metrostation Spaklerweg)
Ontdek het seminarieprogramma van Architect@Work Amsterdam
De Kromhouthal, Gedempt Hamerkanaal 231, Amsterdam
DigiBouw 2025 – hét event voor digitalisering in de bouwsector
Expozaal van het Beatrixgebouw in Utrecht
Prefab beurs - 7 t/m 9 oktober 2025
Brabanthallen 's-Hertogenbosch
Boekpresentatie en panelgesprek met Floor Milikowsky
Prins Hendrikkade 600, 1011 VX Amsterdam
Om direct naar je favorieten te kunnen gaan is het nodig om eerst in te loggen.
Nieuw
Toon alles
Design
Duurzaamheid
Gevel
Infrastructuur
Interieur
Kantoren
Leisure
Openbare ruimte
Publieke gebouwen
Scholen
Transformatie en Renovatie
Woningbouw
Zorg
Om direct naar je favorieten te kunnen gaan is het nodig om eerst in te loggen.
Nieuw
Populair
Toon alles
9graden architectuur Amersfoort zoekt een bouwkundig modelleur
SVP zoekt bureauondersteuner
SVP zoekt medior stedenbouwkundige
Mulderblauw zoekt een architect
Mulderblauw zoekt een projectleider
WE zoekt senior architect
Junior Architect (NL/EN)
Architect
Studio Nauta zoekt projectleider
Junior Ontwerper
De Academie van Bouwkunst Amsterdam zoekt twee onderzoekers voor lectoraat
Site Practice zoekt medior architect met 4-6 jaar ervaring (Amsterdam)
Om direct naar je favorieten te kunnen gaan is het nodig om eerst in te loggen.
Copyright: Stijn Bollaert
Copyright: Stijn Bollaert
Copyright: Stijn Bollaert
Copyright: Stijn Bollaert
Copyright: Stijn Bollaert
Copyright: Stijn Bollaert
Copyright: Stijn Bollaert
Copyright: Stijn Bollaert
Copyright: Stijn Bollaert
Copyright: Stijn Bollaert
Copyright: Stijn Bollaert
Copyright: Axonometrie. Monadnock
Copyright: Doorsnede. Monadnock
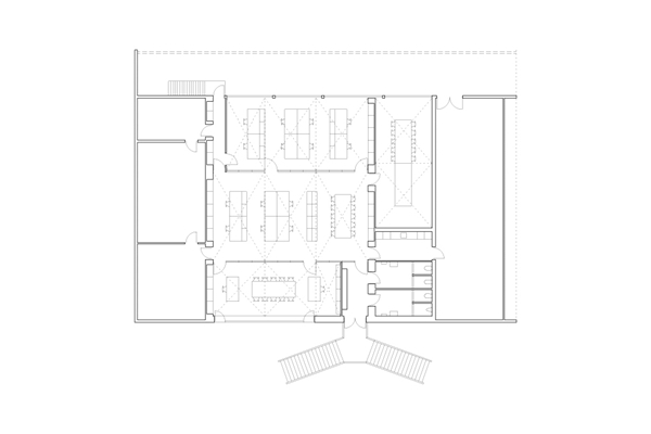
Copyright: Plattegrond. Monadnock
Tentkamers verzachten kantoor Tichelaar
26 oktober 2015, 16:53
De kantoren van Koninklijke Tichelaar zijn vanuit het centrum van Makkum verhuisd naar het eigen fabriekscomplex, dat
Monadnock
in 2006 heeft gerealiseerd. Om in het utilitaire industriegebouw een aangename kantooromgeving te creëren heeft het architectenbureau zich laten inspireren door de klassieke 'tentkamers'.
Met de verhuizing van de kantoren zijn alle bedrijfsonderdelen van
Tichelaar
nu op één locatie geconcentreerd. Monadnock kreeg de opdracht om in de harde en functionele omgeving van de fabriekshal een aantrekkelijke werkplek te creëren, met veilig en schoon uitzicht op de zware kleiwerken in de fabriek. Daarnaast moest Tichelaar gasten in een representatief interieur kunnen ontvangen.
Om een zachte en vriendelijk interieur te ontwerpen heeft het architectenbureau de tentkamers, zoals te vinden in oude landhuizen, als leidraad genomen. Monadnock verwijst naar de blauwe tentkamer in slot Charlottenburg te Potsdam, ontworpen door de Duitse architect Karl Friedrich Schinkel, als meest iconische uitgangspunt.
Textielplafond
Dit concept heeft Monadnock vertaald naar een groot, licht textielplafond. Het zachte textiel camoufleert de installaties van ventilatie en verlichting, terwijl het tegelijkertijd het binnenvallend daglicht egaal over de werkplekken verdeeld, aldus de architecten.
Verder verbindt het textielplafond de vier kamers, waarin de gehele kantoorruimte is opgedeeld. Het plafond, in de vorm van vier piramides, vergroot de expressie van de hoogte. De ruimtelijke samenhang van het kantoor wordt ondersteund door glaswanden, die visueel contact mogelijk houden.
Meubilair
Meubels als kasten en tafels zijn op maat gemaakt en worden doorgezet in alle kamers, samen met het terughoudende kleurenpalet. De hoogte van de kasten biedt privacy en geluiddemping bij gesprekken in zittende positie; staand kan men de ruimte overzien en met collega's op andere plekken praten.
Het plafond is vervaardigd uit standaard ventilatiedoek, dat normaal wordt gebruikt voor ventilatiekanalen. Daardoor verloopt alle luchtcirculatie direct door het doek, zonder roosters. De akoestiek in de kantoorruimte wordt geregeld door het textielplafond en de met vilt beklede kasten.
Trap
Aan de buitenzijde heeft Monadnock een grote trap toegevoegd. Die vormt de nieuwe hoofdentree van het gebouw.
Trefwoorden
monadnock
makkum
kantoor
interieur
koninklijke tichelaar makkum
fabriek
tentkamer
tichelaar
fabriekshal
Locatie
Best gelezen
1
Rijk schrijft aanbesteding uit voor nieuwe marinierskazerne
woensdag, 1 oktober
2
Architectenweb symposium: klein maar fijn wonen?
donderdag, 2 oktober
3
Plan Spot belooft Lelystad bruisend centrumgebied
vrijdag, 3 oktober
4
Nominaties Interieur van het Jaar 2025 bekend
woensdag, 1 oktober
5
‘NDSM-werf en Buiksloterham zijn júíst inspirerende voorbeelden voor de stad van morgen’
vrijdag, 3 oktober
Gerelateerde nieuwsberichten
Park Paviljoen De Hoge Veluwe is eigentijds landhuis
17 juli 2019
Woongebouw Crevas door Monadnock markeert entree tot Hart van de Waalsprong
18 maart
Verbijzonderde kopgevels geven woongebouw in Hilversum gezicht
22 april
Architecten ontvangstgebouw Hoge Veluwe bekend
18 oktober 2012
Tichelaar-tegels voor Victoria & Albert Museum
3 september 2014
NHM: megahal, forum of klassiek museum
10 februari 2011
Torengebouw van Monadnock voor Nieuw-Bergen
3 november 2015
Ontvangstgebouw nationaal park De Hoge Veluwe door De Zwarte Hond en Monadnock
20 maart 2018
Gebouw als architectonisch leermiddel
29 oktober 2015
Park Paviljoen De Hoge Veluwe is eigentijds landhuis
17 juli 2019
Woongebouw Crevas door Monadnock markeert entree tot Hart van de Waalsprong
18 maart
Verbijzonderde kopgevels geven woongebouw in Hilversum gezicht
22 april
Architecten ontvangstgebouw Hoge Veluwe bekend
18 oktober 2012
Tichelaar-tegels voor Victoria & Albert Museum
3 september 2014
NHM: megahal, forum of klassiek museum
10 februari 2011
Torengebouw van Monadnock voor Nieuw-Bergen
3 november 2015
Ontvangstgebouw nationaal park De Hoge Veluwe door De Zwarte Hond en Monadnock
20 maart 2018
Gebouw als architectonisch leermiddel
29 oktober 2015
Toon alles
Gerelateerde podcasts
Gesprek met Job Floris over het ontwerpen van gelaagde architectuur
20 maart
Andere nieuwsberichten
Door Gortemaker Feenstra Algra ontworpen Institut Roi Albert II in Brussel officieel geopend
Gisteren, 14:53
In dit centrum voor oncologie en hematologie is alle zorg op deze gebieden van het universitair ziekenhuis Saint-Luc op één locatie ondergebracht. Het H-vormige gebouw kenmerkt zich door een houten lamellengevel, afgewisseld met glas.
Woontoren Cunabula naast Thialfstadion bereikt finish
Gisteren, 13:46
René van Zuuk Architekten voorzag de woontoren voor topsporters in Heerenveen van een opvallende gevel.
IVY Amsterdam markeert entree Klaprozenbuurt in Buiksloterham
Gisteren, 11:28
In de Amsterdamse Klaprozenbuurt is woningbouwproject IVY Amsterdam opgeleverd. Het door BurtonHamfelt Urban Architecture ontworpen complex bestaat uit meerdere volumes met in totaal 157 woningen.
Realisatieovereenkomst voor hoogbouwcomplex De Sax op Wilhelminapier getekend
6 oktober, 4:16
VOF PhilHavana en BAM Bouw en Techniek hebben een realisatieovereenkomst getekend voor hoogebouwcomplex De Sax op de Wilhelminapier in Rotterdam.Het door MVRDV ontworpen woningbouwproject bestaat uit twee torens die worden verbonden door een 'balk'.
Uitwerking van plannen voor Nedersaksenlijn kan beginnen
Gisteren, 12:17
Maandag is het startsein gegeven voor de eerste onderzoeken die uiteindelijk moeten leiden tot de spoorlijn die Groningen en Twente met elkaar verbindt.
Mona Keijzer lonkt naar investeerders op vastgoedbeurs in München
Gisteren, 10:02
"We moeten 1,6 miljoen woningen bouwen. Daarvoor hebben we buitenlandse investeerders nodig", stelt de demissionair minister.
Jongeren debatteren in het Nieuwe Instituut met Kamerleden over wonen
6 oktober, 2:26
Tot de thema’s die worden besproken, behoren betaalbaarheid, het creëren van meer woningen en de betrokkenheid van jongeren bij deze plannen.
GL-PvdA wil komende tien jaar 36 miljard uitgeven aan woningbouw
6 oktober, 10:10
Het grootste deel van het geld, 33 miljard euro, moet gaan naar publieke investeringen in de woningbouw.
Kamer wil dat Keijzer afziet van versoepelingen huurwet
3 oktober, 12:11
Sinds de huurwet - tegen de zin van Keijzer - van kracht werd, waarschuwen verhuurders dat daardoor het aanbod aan betaalbare huurwoningen afneemt.
Steden vrezen voor woningbouw door nieuwe regels netcongestie
2 oktober, 4:25
Amsterdam, Den Haag, Rotterdam en Utrecht vrezen dat de bouw van nieuwe woningen stil komt te liggen door netcongestie.
Ga naar het nieuws-archief
0
0
0
0
Voor een optimale gebruikservaring plaatst Architectenweb functionele cookies. Wat de verschillende cookies precies doen leggen we uit in een
overzicht
. Cookies van social media kun je optioneel
aanzetten
.
Akkoord
Instellingen
Annuleren
OK
Sluiten
Doorgaan
Inloggen
Maak een gratis persoonlijk account aan
Feedback
Feedback
Wij horen graag jouw feedback. Laat je reactie achter en eventueel jouw e-mail adres.
Reactie
Verstuur