Projecten
Producten
Bedrijven
Vacatures
Agenda
Awards
Podcasts
more_horiz
Videos
Magazine
Favorieten
Profiel
Uitloggen
Abonneer je nu op onze nieuwsbrieven!
Abonneren
Nee, bedankt
Ja, denk met me mee rond de
materialisering van mijn project
Copyright: RPBW/Rendering: IDA+
Copyright: RPBW/Rendering: IDA+
Copyright: RPBW/Rendering: IDA+
Copyright: RPBW/Rendering: IDA+
Copyright: RPBW
Copyright: RPBW
Copyright: RPBW
Copyright: RPBW
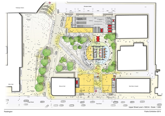
Renzo Piano presenteert nieuwe toren in Londen
23 oktober 2015, 13:15
Renzo Piano Building Workshop
heeft het ontwerp voor een nieuwe toren in Londen onthuld. Het cilindrische bouwwerk bij Paddington Station krijgt een hoogte van 224 meter en gaat een gemengd programma huisvesten. Een ander doel van het project is om de infrastructuur rond de ov-voorzieningen te verbeteren.
In de 65 verdiepingen tellende toren komen tweehonderd woningen, plus kantoren, winkels, restaurants en café's. Daarnaast wordt rond het gebouw nieuwe openbare ruimte ter grootte van vierduizend vierkante meter aangelegd. De toren wordt bekroond met een daktuin die is gemodelleerd naar de Koninklijke Botanische Tuinen (Kew Gardens) in de Britse hoofdstad.
Het plan is om ook de verbinding tussen het treinstation en de metrolijn te verbeteren, zodat deze plek nog meer een toegangspoort tot de stad kan worden. Met de realisatie van het plan is volgens Renzo Piano een bedrag van één miljard pond (1,37 miljard euro) gemoeid. De bouwaanvraag wordt naar verwachting volgende maand ingediend. In 2020 moet de toren er staan.
Piano werkt voor het project samen met ontwikkelaar Sellar Property Group, waarmee hij ook de 300 meter hoge toren The Shard heeft gerealiseerd.
Trefwoorden
renzo piano
renzo piano building workshop
londen
Locatie
Best gelezen
1
Architect Cees Dam op 93-jarige leeftijd overleden
dinsdag, 14 april
2
Powerhouse Company wint aanbesteding voor verbouwing Vista College Maastricht
dinsdag, 14 april
3
Tien bureaus geselecteerd voor tweede ronde nieuwbouw De Meervaart
woensdag, 15 april
4
Anterieure overeenkomst voor bouw woontoren The Four in Eindhoven
donderdag, 16 april
5
Voormalig hoofdkantoor Ferro in M4H verbouwd tot bedrijfsverzamelgebouw
woensdag, 15 april
Gerelateerde nieuwsberichten
Genova San Giorgio-brug officieel geopend
4 augustus 2020
Zes kandidaten voor Centre for Music Londen
10 juli 2017
Octatube: ‘Koppelstuk tussen droom en realiteit’
24 januari 2014
Science Center NEMO wil uitbreiden
4 oktober 2013
Renzo Piano in Italiaanse Senaat
2 september 2013
Renzo Piano ontwerpt minimaal huis
16 augustus 2013
Exterieur hoogste toren van Europa klaar
9 juli 2012
Klooster bij kerk Ronchamp opgeleverd
26 september 2011
Nieuwe rustplaats heilige in kerk Renzo Piano
20 april 2010
Piano onthult uitbreiding museum Boston
27 januari 2010
Genova San Giorgio-brug officieel geopend
4 augustus 2020
Zes kandidaten voor Centre for Music Londen
10 juli 2017
Octatube: ‘Koppelstuk tussen droom en realiteit’
24 januari 2014
Science Center NEMO wil uitbreiden
4 oktober 2013
Renzo Piano in Italiaanse Senaat
2 september 2013
Renzo Piano ontwerpt minimaal huis
16 augustus 2013
Exterieur hoogste toren van Europa klaar
9 juli 2012
Klooster bij kerk Ronchamp opgeleverd
26 september 2011
Nieuwe rustplaats heilige in kerk Renzo Piano
20 april 2010
Piano onthult uitbreiding museum Boston
27 januari 2010
Toon alles
Andere nieuwsberichten
LEVS publiceert duurzaamheidsanalyse eigen projecten
Gisteren, 14:45
Met de Rapportage Duurzaamheid 2021–2025 heeft het bureau 43 projecten uit de afgelopen vijf jaar getoetst aan de Paris Proof normen.
Nominaties Rotterdam Architectuurprijs 2026 bekend
Gisteren, 09:00
Zowel de jury als het publiek heeft de keuze uit tien projecten, die zijn geselecteerd uit 36 inzendingen. De winnaars worden op 12 juni bekendgemaakt in het Nhow Hotel in Rotterdam.
Wie verdient dit jaar de prijs voor Architect van het Jaar?
Gisteren, 09:00
Welke architect, of collectief van architecten, heeft dit jaar de grootste bijdrage geleverd aan de ontwikkeling van de architectuur in Nederland? Stuur jouw suggestie, met een beknopte motivatie, uiterlijk 15 mei 2026 op naar Architectenweb.
OMA gebruikt bestaand gebouw als canvas bij renovatie Edo-Tokyo Museum
17 april, 3:55
Na een renovatie van bijna vier jaar is het Edo-Tokyo Museum in de Japanse hoofdstad Tokio heropend. OMA nam het uit 1993 stammende gebouw, dat is ontworpen door de Metabolist Kiyonori Kikutake, onder handen.
Minister wil Lelystad Airport openen in oktober 2027
Gisteren, 12:24
Het vliegveld heeft nog geen natuurvergunning, maar Vincent Karremans werkt ‘parallel’ aan de andere zaken die nog moeten worden geregeld voordat vakantievluchten vanuit Flevoland kunnen beginnen.
Boekholt wil minder strenge huurwet, hogere huren mogelijk
Gisteren, 10:15
Verhuurders moeten meer kunnen vragen voor dure huurhuizen, nieuwbouw en huizen zonder tuin of balkon.
Woningbouwzaken krijgen langer voorrang bij Raad van State
17 april, 4:49
Om het huizentekort tegen te gaan, blijft de Raad van State woningbouwzaken met voorrang behandelen.
Inspectie positief over verbetering sociale veiligheid TU Delft
17 april, 11:36
De TU Delft heeft aanzienlijke stappen gezet om de sociale veiligheid voor medewerkers te verbeteren.
NVM vreest minder nieuwbouw door veranderende voorrang stroomnet
17 april, 9:23
Bouwers kunnen, door onzekerheid over welke projecten straks nog maatschappelijke prioriteit krijgen in een bepaalde regio, besluiten om minder nieuwe huizen te bouwen.
Architecten voor restauratie en herbestemming Rivièrahal gekozen
16 april, 12:00
Voor de grootscheepse restauratie en herbestemming van de Rivièrahal in de Rotterdamse Diergaarde Blijdorp zijn Mecanoo en BiermanHenket geselecteerd.
Ga naar het nieuws-archief
0
0
0
0
Voor een optimale gebruikservaring plaatst Architectenweb functionele cookies. Wat de verschillende cookies precies doen leggen we uit in een
overzicht
. Cookies van social media kun je optioneel
aanzetten
.
Akkoord
Instellingen
Annuleren
OK
Sluiten
Doorgaan
Inloggen
Maak een gratis persoonlijk account aan
Feedback
Feedback
Wij horen graag jouw feedback. Laat je reactie achter en eventueel jouw e-mail adres.
Reactie
Verstuur