Projecten
Producten
Bedrijven
Vacatures
Agenda
Awards
Podcasts
more_horiz
Videos
Magazine
Favorieten
Profiel
Uitloggen
Abonneer je nu op onze nieuwsbrieven!
Abonneren
Nee, bedankt
Ja, denk met me mee rond de
materialisering van mijn project
Copyright: Simon Menges
Copyright: Simon Menges
Copyright: Simon Menges
Copyright: Simon Menges
Copyright: Simon Menges
Copyright: Simon Menges
Copyright: Simon Menges
Copyright: Simon Menges
Copyright: Simon Menges
Copyright: Simon Menges
Copyright: Simon Menges
Copyright: Simon Menges
Copyright: Zuidgevel. Barozzi Veiga
Copyright: Westgevel. Barozzi Veiga
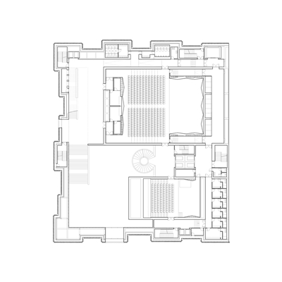
Copyright: Begane grond. Barozzi Veiga
Copyright: Eerste verdieping. Barozzi Veiga
Copyright: Tweede verdieping. Barozzi Veiga
Copyright: Derde/vierde verdieping. Barozzi Veiga
Copyright: Zaal. Barozzi Veiga
Copyright: Doorsnede. Barozzi Veiga
Copyright: Doorsnede. Barozzi Veiga
Copyright: Doorsnede. Barozzi Veiga
Copyright: Situatie. Barozzi Veiga
Klassieke muziek in sneeuwwit concertgebouw
8 januari 2015, 11:20
In de Poolse stad Szczecin is temidden van historische bebouwing een sneeuwwit concertgebouw verrezen. Het ontwerp van het Spaanse architectenbureau
Barozzi Veiga
zoekt tegelijkertijd contrast met en aansluiting bij de omgeving en de traditie.
De nieuwe Philharmonic Hall van Szczecin is gesitueerd op historische grond. Hier heeft het 'Konzerthaus' gestaan, dat in de Tweede Wereldoorlog is verwoest. De realisatie van het nieuwe concertgebouw herstelt tegelijkertijd een stedelijke hoek in een wijk nabij het oude stadscentrum.
Interieur
Het gebouw biedt onderdak aan een concertzaal voor duizend toeschouwers, een kamermuziekzaal voor tweehonderd toeschouwers, een expositie- en conferentieruimte en een royale foyer, die ook dienst kan worden ingezet voor evenementen. Een doorgaande publieke 'promenade' over de verschillende verdiepingen verbindt alle functies in het gebouw.
Aan de randen van de plattegrond zijn overwegend serviceruimten gesitueerd. Daarmee heeft Barozzi Veiga ten eerste een centraal vlak gecreëerd, waarin beide concertzalen zijn geplaatst. Ten tweede hebben de architecten met deze ring willen zorgen voor een relatie tussen het gebouw met zijn omgeving.
Puntige contouren
Aan de buitenzijde oogt de Philharmonic Hall als een samengesteld en complex volume. De verspringende en nagenoeg geheel gesloten gevel en de puntige contouren suggereren een geabstraheerde verzameling gebouwen. Deze kenmerken zorgen ook voor aansluiting bij de bestaande aangrenzende bebouwing, terwijl het ijzige exterieur een contrast vormt.
De architecten hebben het gebouw opgevat als een 'lantaarn': de gevel is uitgevoerd in wit glas, dat oplicht waar het interieur wordt verlicht. De sobere en strenge vormgeving van de buitenzijde en de verkeerszones in het gebouw vormt een groot contrast met de uitvoering van de grote zaal.
Traditie
"Aansluitend bij de centraal-Europese traditie van klassieke concertgebouwen, is decoratie ornamenteel en functioneel", leggen de architecten uit. De zaal vertoont gefacetteeerde wanden en plafond, opgebouwd volgens een Fibonacci-reeks, waarbij het aantal facetten toeneemt vanaf het podium. De goudkleurige afwerking versterkt de band met de traditionele concertgebouwen, aldus Barozzi Veiga.
Trefwoorden
polen
filharmonie
gevel
concertgebouw
concertzaal
barozzi veiga
szczecin
Locatie
Best gelezen
1
Woontoren Front door Monadnock wint tiende Architectuurprijs Nijmegen
donderdag, 9 april
2
Spoorwegverleden inspireert ontwerp woonblok Wisselspoor 10 in Utrecht
woensdag, 8 april
3
Rotterdam mag woningen gaan bouwen aan de Parkhaven
woensdag, 8 april
4
RED Company vraagt vergunning aan voor productie- en onderzoeksfaciliteit Lilly
dinsdag, 7 april
5
KOW wint met Marker Woods tender voor nieuwe wijk Eschmarkerveld
woensdag, 8 april
Gerelateerde nieuwsberichten
Design District in Londen is gevarieerde en complexe wijk
31 maart 2020
Nieuwe concertzaal in middeleeuwse Bijlokehospitaal Gent
24 september 2020
De Harmonie in Antwerpen heeft zijn luister terug
13 december 2021
Twintig jaar, tien winnaars – Mies van der Rohe Award
11 februari 2021
Spelonkachtige concertzaal voor Poolse stad
8 februari 2016
Mies van der Rohe Award voor Poolse filharmonie
8 mei 2015
Shortlist Mies van der Rohe Award bekend
26 februari 2015
Elbphilharmonie Hamburg 647 procent duurder
17 december 2012
Nieuw concertgebouw in Reykjavik geopend
23 augustus 2011
Design District in Londen is gevarieerde en complexe wijk
31 maart 2020
Nieuwe concertzaal in middeleeuwse Bijlokehospitaal Gent
24 september 2020
De Harmonie in Antwerpen heeft zijn luister terug
13 december 2021
Twintig jaar, tien winnaars – Mies van der Rohe Award
11 februari 2021
Spelonkachtige concertzaal voor Poolse stad
8 februari 2016
Mies van der Rohe Award voor Poolse filharmonie
8 mei 2015
Shortlist Mies van der Rohe Award bekend
26 februari 2015
Elbphilharmonie Hamburg 647 procent duurder
17 december 2012
Nieuw concertgebouw in Reykjavik geopend
23 augustus 2011
Toon alles
Andere nieuwsberichten
Restauratie Atlasbeeld op dak Koninklijk Paleis Amsterdam afgerond
3 uur geleden
Het beeld op het fronton van het paleis was in juli van zijn plek gehaald voor een uitgebreide onderhoudsbeurt in Antwerpen.
Nieuw zitgebied Lounge 2 Schiphol geïnspireerd door overgangsfase in oeuvre Mondriaan
4 uur geleden
Op luchthaven Schiphol is de derde en laatste fase van door Beyond Space ontworpen zitgebieden opgeleverd. Net als de eerste twee fases van het project is dit gedeelte geïnspireerd door het werk van Mondriaan, maar dan uit een eerdere periode.
SeARCH en Heutink Groep winnen tender voor woongebouw Sluisbuurt
Vandaag, 11:15
Gebouw Radius biedt plek aan zo’n honderd appartementen, een stadskamer, een binnentuin, daktuinen en andere gemeenschappelijke ruimtes. Het gebouw wordt gerealiseerd van natuurlijke materialen als hout, stampleem en leemsteen.
Woontoren Front door Monadnock wint tiende Architectuurprijs Nijmegen
Gisteren, 22:00
“Front is een optimistisch icoon, gemaakt met lef, dat ambachtelijkheid en vakmanschap uitstraalt”, stelt de jury in zijn rapport.
Grote en kleine gemeenten balen van bouwregels Zuid-Holland
2 uur geleden
Grote en kleine gemeenten in Zuid-Holland hebben hun zorgen geuit over nieuwe regels van de provincie, die volgens hen de woningbouw belemmeren.
Twijfels in Zuid-Holland over halen van doelen landelijk gebied
Vandaag, 12:18
De meeste partijen in de Zuid-Hollandse politiek hebben twijfels over de plannen die in zestien deelgebieden zijn gemaakt voor de aanpak van het landelijk gebied.
Huurprijzen stijgen harder dan koopwoningprijzen
Vandaag, 09:31
Volgens Huurwoningen.nl en Pararius moesten nieuwe huurders in het eerste kwartaal gemiddeld 21,12 euro per vierkante meter per maand neerleggen.
ABN AMRO: investeringen defensie vergroten druk op bouwcapaciteit
Gisteren, 12:29
Kazernes, opslagplaatsen en oefenterreinen dingen om dezelfde aannemers, ingenieurs en installateurs die ook nodig zijn voor bijvoorbeeld woningbouw.
Europa kent 831 miljoen euro subsidie toe aan Utrechtse projecten
Gisteren, 09:27
Het gaat onder meer om projecten tegen oververhitting van gebouwen, slimmer gebruik van energie en het hergebruik van materialen en grondstoffen.
Rotterdam mag woningen gaan bouwen aan de Parkhaven
8 april, 3:38
De Raad van State maakte woensdag bekend dat alle bezwaren tegen het bestemmingsplan zijn verworpen.
Ga naar het nieuws-archief
0
0
0
0
Voor een optimale gebruikservaring plaatst Architectenweb functionele cookies. Wat de verschillende cookies precies doen leggen we uit in een
overzicht
. Cookies van social media kun je optioneel
aanzetten
.
Akkoord
Instellingen
Annuleren
OK
Sluiten
Doorgaan
Inloggen
Maak een gratis persoonlijk account aan
Feedback
Feedback
Wij horen graag jouw feedback. Laat je reactie achter en eventueel jouw e-mail adres.
Reactie
Verstuur