Projecten
Producten
Bedrijven
Vacatures
Agenda
Awards
Podcasts
more_horiz
Videos
Magazine
Favorieten
Profiel
Uitloggen
Abonneer je nu op onze nieuwsbrieven!
Abonneren
Nee, bedankt
Ja, denk met me mee rond de
materialisering van mijn project
Copyright: Barcode Architects
Copyright: Barcode Architects
Copyright: Barcode Architects
Copyright: Barcode Architects
Copyright: Barcode Architects
Copyright: Barcode Architects
Copyright: Barcode Architects
Copyright: Barcode Architects
Nieuw gebouw aan plein Rozet Arnhem
4 december 2014, 13:27
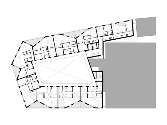
Aan het Bartokplein in Arnhem wordt volgend jaar gestart met de bouw van een nieuw complex naar ontwerp van
Barcode Architects
. In het gebouw komen appartementen, een supermarkt en een nieuwe entree van de CASA Showroom. De zestig appartementen zullen worden ontsloten via een ruime binnentuin.
Het gebouw Arnhem Bartok wordt gerealiseerd op de plek van een oud pand, aan het plein waar ook kenniscluster
Rozet
staat en het beeld
Aardvarken
van kunstenaar Florentijn Hofman ‘ligt’. Met het door Barcode ontworpen gebouw moet de locatie verder worden getransformeerd tot een levendige bestemming in het centrum van de Gelderse hoofdstad.
Het in wit metselwerk opgetrokken gebouw krijgt een gedifferentieerde gevel en grote teruggevouwen dakterrassen. De gevel rond de binnentuin wordt uitgevoerd met warme materialen waarin een gevelhoge afbeelding van de componist Bartók is opgenomen. Hiermee wordt geknipoogd naar de naam van de locatie en krijgt het gebouw letterlijk een eigen gezicht.
“Het doel is om een architectuur te creëren die, in tegenstelling tot de naastgelegen monotone afstandelijke gebouwvolumes van het hotel en de parkeergarage, een nieuwe dialoog aangaat tussen deze grove volumes en de schaal en maat van de historische binnenstad”, zegt Dirk Peters, bureaupartner van Barcode Architects.
“We omkleden de parkeergarage in feite met een gebouwschil die een nieuwe overgangsschaal in het centrumgebied introduceert. Het ontwerp kan hierdoor gezien worden als een stedenbouwkundige schakel in de stad.”
Naar verwachting wordt Arnhem Bartok eind 2016 opgeleverd.
Trefwoorden
barcode architects
arnhem
rozet
Locatie
Best gelezen
1
Bouw van twee woontorens De Havenmeesters in Den Haag gestart
vrijdag, 3 april
2
Máxima heropent vernieuwde boulevard van Scheveningen
vrijdag, 3 april
3
Studio AAAN zoekt met Hillehuis aansluiting bij architectuur Beijerlandselaan
vrijdag, 3 april
4
Inschrijving voor Dutch Daylight Award 2026 geopend
vrijdag, 3 april
5
RED Company vraagt vergunning aan voor productie- en onderzoeksfaciliteit Lilly
dinsdag, 7 april
Gerelateerde nieuwsberichten
Barcode Architects: ‘Van Rotterdam een wandelstad maken’
3 september 2020
De Zwarte Hond presenteert woongebouw Kerkplein
15 maart 2017
Nieuwe woontoren aan Wijnhaven Rotterdam
8 juni 2016
Rozet kanshebber nieuwe internationale prijs
11 mei 2016
Multifunctioneel gebouw Barcode in Bordeaux klaar
19 januari 2016
NEXIT verbouwt Theater aan de Rijn
17 februari 2015
Winnaars ARC14 Awards bekend
28 november 2014
Het Grote Interieurcongres: gezondheid en bewezen beleving
19 november 2014
Gelderland gaat voor enige plan provinciehuis
18 november 2014
Van Dongen-Koschuch verbouwt Musis Sacrum
18 september 2014
NL Architects winnaar ontwerp geannuleerd ArtA
18 juni 2014
Arnhemse architectuurprijs voor Rozet en De Stek
16 juni 2014
Rozet verkozen tot BNA Beste Gebouw van het Jaar 2014
20 mei 2014
Transformatie voormalige bieb Arnhem van start
19 mei 2014
Jaarboek Architectuur 2013/2014 gepresenteerd
17 april 2014
Bouw Kunstencluster Arnhem van de baan
11 april 2014
Arnhem krijgt uiterwaardenpark langs de Rijn
15 januari 2014
Kerktoren wordt museum Slag om Arnhem
3 januari 2014
Rozet is “een kast vol kennis”
9 december 2013
'Opgetilde schatkist' voor Gelders Archief
19 september 2013
Rozet: een 'viezig' gebouw
14 juni 2013
Barcode Architects: ‘Van Rotterdam een wandelstad maken’
3 september 2020
De Zwarte Hond presenteert woongebouw Kerkplein
15 maart 2017
Nieuwe woontoren aan Wijnhaven Rotterdam
8 juni 2016
Rozet kanshebber nieuwe internationale prijs
11 mei 2016
Multifunctioneel gebouw Barcode in Bordeaux klaar
19 januari 2016
NEXIT verbouwt Theater aan de Rijn
17 februari 2015
Winnaars ARC14 Awards bekend
28 november 2014
Het Grote Interieurcongres: gezondheid en bewezen beleving
19 november 2014
Gelderland gaat voor enige plan provinciehuis
18 november 2014
Van Dongen-Koschuch verbouwt Musis Sacrum
18 september 2014
NL Architects winnaar ontwerp geannuleerd ArtA
18 juni 2014
Arnhemse architectuurprijs voor Rozet en De Stek
16 juni 2014
Rozet verkozen tot BNA Beste Gebouw van het Jaar 2014
20 mei 2014
Transformatie voormalige bieb Arnhem van start
19 mei 2014
Jaarboek Architectuur 2013/2014 gepresenteerd
17 april 2014
Bouw Kunstencluster Arnhem van de baan
11 april 2014
Arnhem krijgt uiterwaardenpark langs de Rijn
15 januari 2014
Kerktoren wordt museum Slag om Arnhem
3 januari 2014
Rozet is “een kast vol kennis”
9 december 2013
'Opgetilde schatkist' voor Gelders Archief
19 september 2013
Rozet: een 'viezig' gebouw
14 juni 2013
Toon alles
Andere nieuwsberichten
Cityförster wint eerste prijs in competitie stadsvernieuwingsproject Boedapest
1 uur geleden
Cityförster heeft in samenwerking met Coldefy, Treibhaus, Spora Architects en Markó & Placemakers, de eerste prijs gewonnen bij een prijsvraag voor een masterplan voor een van de meest prestigieuze stadsvernieuwingsprojecten in Europa.
ANA ontwerpt woongebouw voor 55-plussers in Amsterdam-Zuidoost
Gisteren, 16:43
In de wijk Reigersbos in Amsterdam-Zuidoost wordt een door ANA architecten ontworpen wooncomplex voor ouderen van 55+ gerealiseerd. Jade Rhenenhof bestaat uit 55 woningen en een gemeenschappelijke ruimte voor de bewoners.
KOW wint met Marker Woods tender voor nieuwe wijk Eschmarkerveld
Gisteren, 14:20
Met het plan Marker Woods heeft het team van Hegeman, KOW Architecten en RRog stedenbouw en landschap de tender voor veld 5 in de Enschedese wijk Eschmarkerveld gewonnen.
Bouw The Emerald in Bajeskwartier van start
Gisteren, 13:42
Het project bestaat uit drie woontorens van zeven tot zeventien verdiepingen hoog, met in totaal 123 appartementen. Het ontwerp is gemaakt door Arons en Gelauff architecten en Civic Architects.
ABN AMRO: investeringen defensie vergroten druk op bouwcapaciteit
1 minuut geleden
Kazernes, opslagplaatsen en oefenterreinen dingen om dezelfde aannemers, ingenieurs en installateurs die ook nodig zijn voor bijvoorbeeld woningbouw.
Europa kent 831 miljoen euro subsidie toe aan Utrechtse projecten
3 uur geleden
Het gaat onder meer om projecten tegen oververhitting van gebouwen, slimmer gebruik van energie en het hergebruik van materialen en grondstoffen.
Rotterdam mag woningen gaan bouwen aan de Parkhaven
Gisteren, 15:38
De Raad van State maakte woensdag bekend dat alle bezwaren tegen het bestemmingsplan zijn verworpen.
Pensioenfonds ABP investeert fors in huurwoningen senioren
Gisteren, 09:34
Pensioenfonds ABP en vermogensbeheerder CBRE Investment Management investeren 350 miljoen in de bouw van nieuwe huurwoningen voor senioren.
Nieuw keurmerk voor inspectie- en adviesbedrijven binnenklimaat
7 april, 2:00
Met onder meer vastgestelde meetprotocollen moet het keurmerk een kwaliteitsimpuls aan de betreffende markt geven.
Kabinet trekt enkele miljarden uit voor nieuw windpark op zee
7 april, 10:06
Vanaf 2032 moet het windpark één gigawatt stroom gaan leveren, genoeg voor ongeveer een miljoen huishoudens.
Ga naar het nieuws-archief
0
0
0
0
Voor een optimale gebruikservaring plaatst Architectenweb functionele cookies. Wat de verschillende cookies precies doen leggen we uit in een
overzicht
. Cookies van social media kun je optioneel
aanzetten
.
Akkoord
Instellingen
Annuleren
OK
Sluiten
Doorgaan
Inloggen
Maak een gratis persoonlijk account aan
Feedback
Feedback
Wij horen graag jouw feedback. Laat je reactie achter en eventueel jouw e-mail adres.
Reactie
Verstuur