Projecten
Producten
Bedrijven
Vacatures
Agenda
Awards
Podcasts
more_horiz
Videos
Magazine
Favorieten
Profiel
Uitloggen
Abonneer je nu op onze nieuwsbrieven!
Abonneren
Nee, bedankt
Ja, denk met me mee rond de
materialisering van mijn project
Copyright: Valerie Clarysse
Copyright: Valerie Clarysse
Copyright: Valerie Clarysse
Copyright: Valerie Clarysse
Copyright: Valerie Clarysse
Copyright: Valerie Clarysse
Copyright: Valerie Clarysse
Copyright: Valerie Clarysse
Copyright: Valerie Clarysse
Copyright: Valerie Clarysse
Copyright: Valerie Clarysse
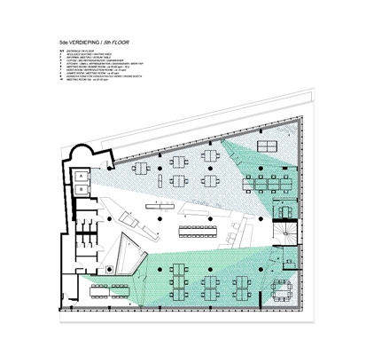
Copyright: Plattegrond. Ideal Projects
Interieurontwerp speelt met perspectief
18 augustus 2014, 17:27
Het jonge Amerikaanse bedrijf Optimizely heeft onlangs zijn intrek genomen in een kantoor aan de Amsterdamse Nes. Het interieurontwerp van
Ideal Projects
voor het nieuwe Europese hoofdkantoor reflecteert de werkwijze van Optimizely.
Het ontwerpbureau Ideal Projects kreeg de opdracht om een interieurontwerp te maken voor het nieuwe kantoor, met een oppervlakte van zeshonderd vierkante meter. Het principe dat Optimizely in zijn werk hanteert, heeft Ideal Projects als uitgangspunt voor het ontwerp genomen. Overal speelt Ideal Projects met perspectieven.
Diagonalen
Optimizely helpt opdrachtgevers via A/B-testen websites en apps te optimaliseren; het bedrijf geeft hen richting door steeds twee keuzemogelijkheden te bieden. Het concept wordt benadrukt door het spel met perspectief, bijvoorbeeld via de plaatsing van wanden ten opzichte van elkaar.
Door het hele kantoor – in plafonds, vloeren, verlichting en grapics – wisselen diagonale lijnen en haakse hoeken elkaar af. De verlaagde plafonddelen werken als een luifel boven de ingang van verschillende vergaderkamers en maakt ze geluidsdicht.
Ontmoeting en communicatie
Het bedrijf wil zijn medewerkers een flexibele werkomgeving bieden, waar ze hun eigen werkdag kunnen indelen. Het kantoor is open en transparant opgezet, met verschillende werkplekken. De werkvloer is georganiseerd rondom een centraal gesitueerde Urban Landscape. Dit moet communicatie en samenwerking stimuleren.
Het Urban Landscape bestaat uit een bar en verschillende manieren om elkaar informeel te ontmoeten. De ruimte kan ook gebruikt worden voor presentaties aan groepen tot honderd personen. Vier vergaderruimten op de hoeken van de vijfde verdieping kijken uit over het historische centrum van de stad.
Materialen
De naam van de onderneming, geschreven in morsealfabet, is gebruikt als een print op verschillende plekken in het gehele kantoor. Op de betonwand bij de grote vergaderruimte zijn de kernwaarden van Optimizely gedrukt. De ruwe industriële elementen in combinatie met het warme eikenhout maken de verbinding met het hoofdkantoor in San Francisco.
Trefwoorden
ideal projects
interieurontwerp
amsterdam
kantoor
kantoorinrichting
interieur
Best gelezen
1
Woontoren Front door Monadnock wint tiende Architectuurprijs Nijmegen
donderdag, 9 april
2
Spoorwegverleden inspireert ontwerp woonblok Wisselspoor 10 in Utrecht
woensdag, 8 april
3
Rotterdam mag woningen gaan bouwen aan de Parkhaven
woensdag, 8 april
4
RED Company vraagt vergunning aan voor productie- en onderzoeksfaciliteit Lilly
dinsdag, 7 april
5
KOW wint met Marker Woods tender voor nieuwe wijk Eschmarkerveld
woensdag, 8 april
Gerelateerde nieuwsberichten
Annekoos Littel schept open werkomgeving
5 november 2014
Interieurontwerp met inbreng van gebruiker
27 augustus 2014
Mentjens maakt Maliehuis tot eclectisch monument
23 juli 2014
Ingetogen inrichtingsontwerp voor MOA
7 mei 2014
Restaurant in voormalige kapel Antwerpen geopend
6 mei 2014
Nieuw interieur reflecteert identiteit Dunea
2 april 2014
Ideal Projects ontwerpt interieur voor SSR
23 april 2013
Annekoos Littel schept open werkomgeving
5 november 2014
Interieurontwerp met inbreng van gebruiker
27 augustus 2014
Mentjens maakt Maliehuis tot eclectisch monument
23 juli 2014
Ingetogen inrichtingsontwerp voor MOA
7 mei 2014
Restaurant in voormalige kapel Antwerpen geopend
6 mei 2014
Nieuw interieur reflecteert identiteit Dunea
2 april 2014
Ideal Projects ontwerpt interieur voor SSR
23 april 2013
Toon alles
Andere nieuwsberichten
Restauratie Atlasbeeld op dak Koninklijk Paleis Amsterdam afgerond
3 uur geleden
Het beeld op het fronton van het paleis was in juli van zijn plek gehaald voor een uitgebreide onderhoudsbeurt in Antwerpen.
Nieuw zitgebied Lounge 2 Schiphol geïnspireerd door overgangsfase in oeuvre Mondriaan
Vandaag, 14:16
Op luchthaven Schiphol is de derde en laatste fase van door Beyond Space ontworpen zitgebieden opgeleverd. Net als de eerste twee fases van het project is dit gedeelte geïnspireerd door het werk van Mondriaan, maar dan uit een eerdere periode.
SeARCH en Heutink Groep winnen tender voor woongebouw Sluisbuurt
Vandaag, 11:15
Gebouw Radius biedt plek aan zo’n honderd appartementen, een stadskamer, een binnentuin, daktuinen en andere gemeenschappelijke ruimtes. Het gebouw wordt gerealiseerd van natuurlijke materialen als hout, stampleem en leemsteen.
Woontoren Front door Monadnock wint tiende Architectuurprijs Nijmegen
Gisteren, 22:00
“Front is een optimistisch icoon, gemaakt met lef, dat ambachtelijkheid en vakmanschap uitstraalt”, stelt de jury in zijn rapport.
Grote en kleine gemeenten balen van bouwregels Zuid-Holland
3 uur geleden
Grote en kleine gemeenten in Zuid-Holland hebben hun zorgen geuit over nieuwe regels van de provincie, die volgens hen de woningbouw belemmeren.
Twijfels in Zuid-Holland over halen van doelen landelijk gebied
Vandaag, 12:18
De meeste partijen in de Zuid-Hollandse politiek hebben twijfels over de plannen die in zestien deelgebieden zijn gemaakt voor de aanpak van het landelijk gebied.
Huurprijzen stijgen harder dan koopwoningprijzen
Vandaag, 09:31
Volgens Huurwoningen.nl en Pararius moesten nieuwe huurders in het eerste kwartaal gemiddeld 21,12 euro per vierkante meter per maand neerleggen.
ABN AMRO: investeringen defensie vergroten druk op bouwcapaciteit
Gisteren, 12:29
Kazernes, opslagplaatsen en oefenterreinen dingen om dezelfde aannemers, ingenieurs en installateurs die ook nodig zijn voor bijvoorbeeld woningbouw.
Europa kent 831 miljoen euro subsidie toe aan Utrechtse projecten
Gisteren, 09:27
Het gaat onder meer om projecten tegen oververhitting van gebouwen, slimmer gebruik van energie en het hergebruik van materialen en grondstoffen.
Rotterdam mag woningen gaan bouwen aan de Parkhaven
8 april, 3:38
De Raad van State maakte woensdag bekend dat alle bezwaren tegen het bestemmingsplan zijn verworpen.
Ga naar het nieuws-archief
0
0
0
0
Voor een optimale gebruikservaring plaatst Architectenweb functionele cookies. Wat de verschillende cookies precies doen leggen we uit in een
overzicht
. Cookies van social media kun je optioneel
aanzetten
.
Akkoord
Instellingen
Annuleren
OK
Sluiten
Doorgaan
Inloggen
Maak een gratis persoonlijk account aan
Feedback
Feedback
Wij horen graag jouw feedback. Laat je reactie achter en eventueel jouw e-mail adres.
Reactie
Verstuur