Projecten
Producten
Bedrijven
Vacatures
Agenda
Awards
Podcasts
more_horiz
Videos
Magazine
Thema's
Favorieten
Profiel
Uitloggen
Copyright: Woonkamer. MVRDV
Copyright: Slaapkamer. MVRDV
Copyright: Sky Vault. MVRDV
Copyright: Sky Garage. MVRDV
Copyright: Uitzicht. MVRDV
Copyright: Het gebouw. MVRDV
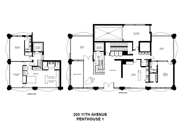
Copyright: Plattegrond. MVRDV
MVRDV ontwerpt luxe penthouse met autolift
7 mei 2014, 17:16
MVRDV
heeft van Young Woo & Associates de opdracht gekregen om een penthouse in New York van 335 vierkante meter te ontwerpen. Het luxe appartement PH1 omvat drie slaapkamers, een ‘sky-vault’ en een privé-lift, zodat de auto voor de deur – op twaalf hoog – kan worden geparkeerd.
Het maisonnette-appartement ligt op de twaalfde en dertiende verdieping van het gebouw 200 11th Avenue in het exclusieve West Chelsea, Manhattan, New York.
Het penthouse PH1 is volledig opnieuw vormgegeven door het Rotterdamse architectenbureau. De woning heeft een 24 meter brede gevel en biedt uitzicht over de Hudson. De buitenruimte van 62 vierkante meter is verdeeld over twee loggia’s. PH1 heeft drie slaapkamers en vier badkamers, een studeerkamer, woon-eetkamer, een keuken en een garage ‘en suite’.
Inloopkluis
Naast de privélift waarmee ook de auto naar boven kan worden gebracht, heeft PH1 nog een bijzonderheid. De twee verdiepingen zijn tevens met elkaar zijn verbonden via de ‘Sky Vault’, een glazen trap en verticale ruimte ineen. De trap loopt door een ruimte die aan de bovenzijde met een automatisch bedienbaar glazen luik is af te sluiten. De ruimte is te gebruiken als kluis, wijnkelder of privégalerie.
Bij het herontwerp van het penthouse kiest MVRDV voor een afwerking in hoogwaardige materialen. De garage wordt geheel in hoogglanzend roestvast staal uitgevoerd, met een groot raam op het oosten.
Te koop
Het negentien verdiepingen tellende gebouw is ontworpen door Annabelle Selldorf en in 2010 opgeleverd met veertien woningen. Mede door de hippe locatie en de privéliften is het volgens het architectenbureau erg in trek bij Amerikaanse celebrities.
PH1, de eerste oplevering van MVRDV in New York wordt op dit moment gerealiseerd en staat al te koop op netseekers.com.
Trefwoorden
mvrdv
new york
ph1
selldorf architects
interieur
hoogbouw
Best gelezen
1
Het streven naar nieuw is ouderwets
donderdag, 20 november
2
SAWA officieel geopend door Koningin Máxima
donderdag, 20 november
3
Space&Matter ontwerpt ingetogen houten paviljoen voor BSO in Zeist
vrijdag, 21 november
4
Studioninedots deelt nieuwe beelden van project Spark op Smakkelaarsveld in Utrecht
maandag, 24 november
5
MoederscheimMoonen Architects ontwerpt eigen kantoor in historische vertrekhal Oranjelijn Rotterdam
woensdag, 19 november
Gerelateerde nieuwsberichten
Financiële gezondheid MVRDV beloond
3 juli 2014
MVRDV ontwerpt Weense toren met 'taille'
22 januari 2015
Bouw Rockmuseum Roskilde van start
27 juni 2014
'Ingedrukt' kantoorgebouw MVRDV opgeleverd
27 november 2014
MVRDV wint prijsvraag Hafenspitze Mainz
16 oktober 2014
Studio OxL maakt werkplaats tot garageloft
17 december 2014
Kapel museum Schiedam gehuld in rode kasten
12 juni 2014
Bouwstart URL-project Concrete in New York
3 juli 2013
MVRDV transformeert loods tot kantoorpand
26 maart 2014
MVRDV: legendarische fabriek wordt woonwijk
28 april 2014
Financiële gezondheid MVRDV beloond
3 juli 2014
MVRDV ontwerpt Weense toren met 'taille'
22 januari 2015
Bouw Rockmuseum Roskilde van start
27 juni 2014
'Ingedrukt' kantoorgebouw MVRDV opgeleverd
27 november 2014
MVRDV wint prijsvraag Hafenspitze Mainz
16 oktober 2014
Studio OxL maakt werkplaats tot garageloft
17 december 2014
Kapel museum Schiedam gehuld in rode kasten
12 juni 2014
Bouwstart URL-project Concrete in New York
3 juli 2013
MVRDV transformeert loods tot kantoorpand
26 maart 2014
MVRDV: legendarische fabriek wordt woonwijk
28 april 2014
Toon alles
Andere nieuwsberichten
RxDOMI ontwikkelt modulaire, biobased mantelzorgwoning op basis van WikiHouse-systeem
Gisteren, 16:06
Met 3D-modules van 10 m2 kunnen kleinere en grote woonruimtes gerealiseerd worden. RxDOMI ontwikkelt en bouwt de modulaire mantelzorgwoning.
Open oproep: deel jullie ontwerp binnen de Merwedekanaalzone
Gisteren, 12:30
Half december willen we op Architectenweb.nl een overzichtsartikel van de verschillende ontwerpen publiceren en nemen jullie ontwerp daar dan graag in mee!
Stad Villingen-Schwenningen kiest VenhoevenCS en RKW Architektur voor nieuw Zentralbad
Gisteren, 12:00
VenhoevenCS heeft, in samenwerking met RKW Architektur +, de aanbesteding gewonnen voor het nieuwe Zentralbad in Villingen-Schwenningen, Duitsland.
Compacter schoolgebouw in Klein-Zundert maakt veel groener schoolplein mogelijk
Gisteren, 10:30
In Klein-Zundert, een dorp in Noord-Brabant, heeft een uitgestrekte, eenlaagse school plaats gemaakt voor een tweelaagse, duurzame school met houten aula als hart. Door de compactere opzet van de nieuwe school kon de omgeving ervan vergroend worden.
Kennisinstituut: reizen met auto, vliegtuig en e-bike in de lift
Gisteren, 12:56
Het wegverkeer, het aantal vliegtuigpassagiers, en het gebruik van de elektrische fiets zijn in 2024 gegroeid en naar verwachting zet die stijging door.
Amsterdam koppelt metrolijn 50 en 53 om capaciteit metronetwerk te verhogen
Gisteren, 10:00
Op het nieuwe netwerk kunnen de metro's vaker rijden: acht keer per uur overdag en tien keer per uur in de spits. Door de ontvlechting rijden er straks minder lijnen op hetzelfde spoor.
Gemeente Den Haag komt met meldpunt voor onveilige plekken
24 november, 12:11
De gemeente Den Haag heeft een meldpunt gecreëerd waar mensen melding kunnen maken van onveilige plekken. Experts bekijken de locaties vervolgens om vast te stellen welke maatregelen er nodig zijn om het gevoel van veiligheid te verbeteren.
Vervoersregio's Rotterdam, Den Haag en Amsterdam willen miljard extra voor OV
21 november, 11:29
Volgens burgemeester Jan van Zanen van Den Haag is 500 miljoen euro extra nodig "om niet achteruit te gaan door indexering en bezuinigingen". En nog eens 500 miljoen euro is nodig "om het OV mee te laten groeien met het aantal inwoners.
Mogelijke proef zelfrijdende pendelbussen tussen station Hoofddorp en Schiphol Trade Park
20 november, 2:15
De provincie Noord-Holland onderzoekt of het zelfrijdende pendelbussen zonder chauffeur kan laten rijden in de buurt van Schiphol. Als dit qua veiligheid en techniek haalbaar is, wil de provincie in 2027 een proef starten.
Fietsflat bij Amsterdam Centraal wordt na 25 jaar gesloopt
20 november, 1:45
Voor de door VMX Architects ontworpen fietsenstalling is geen nieuwe plek gevonden. Daarom wordt de 'fietsflat' nu gesloopt.
Ga naar het nieuws-archief
0
0
0
0
Voor een optimale gebruikservaring plaatst Architectenweb functionele cookies. Wat de verschillende cookies precies doen leggen we uit in een
overzicht
. Cookies van social media kun je optioneel
aanzetten
.
Akkoord
Instellingen
Annuleren
OK
Sluiten
Doorgaan
Inloggen
Maak een gratis persoonlijk account aan
Feedback
Feedback
Wij horen graag jouw feedback. Laat je reactie achter en eventueel jouw e-mail adres.
Reactie
Verstuur