Projecten
Producten
Bedrijven
Vacatures
Agenda
Awards
Podcasts
more_horiz
Videos
Magazine
Thema's
Favorieten
Profiel
Uitloggen
Abonneer je nu op onze nieuwsbrieven!
Abonneren
Nee, bedankt
Ja, denk met me mee rond de
materialisering van mijn project
Copyright: Drost + van Veen architecten
Copyright: Drost + van Veen architecten
Copyright: Drost + van Veen architecten
Copyright: Drost + van Veen architecten
Copyright: Personeelsgebouw westgevel ( Drost + van Veen architecten)
Copyright: Personeelsgebouw zuidgevel ( Drost + van Veen architecten)
Copyright: Werfgebouw noordgevel ( Drost + van Veen architecten)
Copyright: Werfgebouw westgevel ( Drost + van Veen architecten)
Copyright: Werfgebouw zuidgevel ( Drost + van Veen architecten)
Copyright: Drost + van Veen architecten
Ontwerp voor gemeentewerf en De Doorslag
5 december 2013, 16:29
Drost + van Veen architecten
en
Giesbers Wijchen
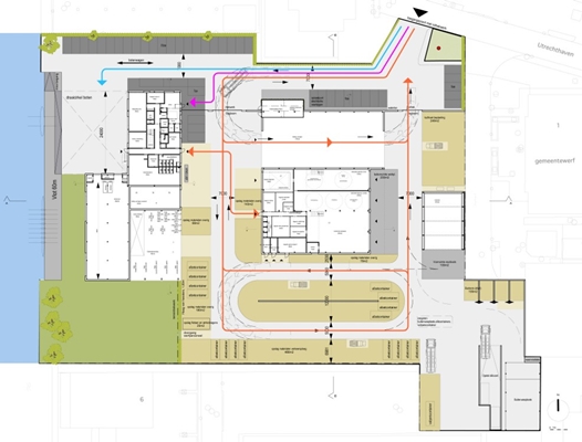
hebben het ontwerp gepresenteerd van het gecombineerde onderkomen voor de gemeentewerf Nieuwegein en roeivereniging De Doorslag. Om een heldere logistiek te creëren zijn programmaonderdelen samengevoegd in twee grote volumes in het centrum van het terrein.
Na de publicatie van dit bericht deelde Drost + van Veen mee dat het ontwerp niet uitgevoerd gaat worden.
Het volume aan het water bevat de personeelfaciliteiten, botenloods en opslagloods. Beide toekomstige gebruikers komen hier samen, meldt Drost + van Veen architecten.
“Het is daarom zowel qua uitstraling als positionering het belangrijkste gebouw op het terrein. In het tweede volume, centraal op de locatie, bevinden zich de werkplaatsen en magazijnen, goed en snel bereikbaar vanaf alle zijden. De twee volumes vormen een ensemble”, aldus het bureau.
In het integrale ontwerp vormt duurzaamheid een vast onderdeel, vervolgt Drost + van Veen. “Het duurzame proces strekt zich uit over tal van terreinen, zoals eisen bij de inkoop van materialen, eisen aan toeleveranciers en andere partijen, maatregelen voor energiezuiniger vervoer en werkverkeer, het beperken van de CO2-uitstoot, hergebruik van (rest)materialen en afvalscheiding”, zegt het bureau.
“Door een combinatie van installatietechnische, bouwkundige en andere oplossingen voldoet het gebouw ruimschoots aan de gevraagde minimale GPR-score van 7,4.”
In het ontwerp worden tevens de identiteit, cultuur en visie van de gebruikers uitgedragen, vertelt Drost + van Veen. “Alle nieuwe gebouwen vormen een ensemble door vorm en materiaal; in alle bouwvolumes wordt metselwerk toegepast met eenzelfde type baksteen en metselverband.”
“Om de eigen identiteit en functionaliteit van elk volume te onderstrepen wordt daarnaast per gebouw een extra materiaal toegepast. In het één een kunststof, translucent plaatmateriaal, in het ander stalen gevelplaat.”
“De context is in ons ontwerp van grote invloed op de uiteindelijke identiteit. In dit ontwerp spelen het water, de omliggende bebouwing en de gevraagde duurzame uitstraling een grote rol. Met baksteen zoeken we aansluiting bij de buren aan de zuidkant; met stalen gevelpanelen bij die aan de noordzijde”, aldus Drost + van Veen architecten.
Trefwoorden
drost en van veen architecten
giesberswijchen
nieuwegein
Best gelezen
1
Finalisten presenteren ontwerp voor Shift Landmark in Rotterdam
woensdag, 4 maart
2
Architect Oliver Thill op 55-jarige leeftijd overleden
donderdag, 5 maart
3
Nieuwe Hittekaart Woningmarkt 2026 van BPD toont aanhoudende woningdruk
dinsdag, 3 maart
4
Strijp-S krijgt woonbuurtje met karakteristieken voormalig Philips-terrein
maandag, 2 maart
5
Haagse gemeenteraad stemt in met bouw van 11.400 woningen in nieuw stadscentrum
maandag, 2 maart
Gerelateerde nieuwsberichten
Brandstichting Plaswijcktheater; "Waarom nu net gebouwen die voor publiek gebruik zijn?"
28 januari 2021
Drost en Van Veen vormen elk eigen bureau
17 november 2014
Onderwijsgebouw ontworpen als boomblad
25 maart 2014
Sculpturale en open orthodontiepraktijk in Wijchen
7 december 2016
Certificaat staaft GPR Gebouw-berekening
26 februari 2014
Gemeentewerf deelt locatie met roeiers
5 november 2015
Bouw woon- en zorgcomplex Nieuw Overbos gestart
6 november 2012
Openbare ruimte Eemplein Amersfoort is klaar
22 november 2012
Le Medi wint Kleur Buiten Prijs 2010
11 februari 2011
Drost + van Veen ontwerpt bibliotheek Den Helder
9 januari 2013
Drost en Van Veen vernieuwt zorgcentrum
5 september 2008
Drost + van Veen wint prijs Haarlemmermeer
29 juni 2009
Vughts kazerneterrein wordt woonlocatie
24 april 2009
Museum gebaseerd op stolpboerderij
9 december 2010
WE-S ontwerpt sculpturale werkplaatsen voor gemeente Machelen
30 januari 2020
Brandstichting Plaswijcktheater; "Waarom nu net gebouwen die voor publiek gebruik zijn?"
28 januari 2021
Drost en Van Veen vormen elk eigen bureau
17 november 2014
Onderwijsgebouw ontworpen als boomblad
25 maart 2014
Sculpturale en open orthodontiepraktijk in Wijchen
7 december 2016
Certificaat staaft GPR Gebouw-berekening
26 februari 2014
Gemeentewerf deelt locatie met roeiers
5 november 2015
Bouw woon- en zorgcomplex Nieuw Overbos gestart
6 november 2012
Openbare ruimte Eemplein Amersfoort is klaar
22 november 2012
Le Medi wint Kleur Buiten Prijs 2010
11 februari 2011
Drost + van Veen ontwerpt bibliotheek Den Helder
9 januari 2013
Drost en Van Veen vernieuwt zorgcentrum
5 september 2008
Drost + van Veen wint prijs Haarlemmermeer
29 juni 2009
Vughts kazerneterrein wordt woonlocatie
24 april 2009
Museum gebaseerd op stolpboerderij
9 december 2010
WE-S ontwerpt sculpturale werkplaatsen voor gemeente Machelen
30 januari 2020
Toon alles
Andere nieuwsberichten
André Kempe: ‘Het ging Oliver Thill om het geven van betekenis’
Gisteren, 19:15
Agelopen maandag is architect Oliver Thill overleden. Zijn compagnon André Kempe gedenkt de man met wie hij al meer dan 35 jaar bevriend was en ruim een kwarteeuw geleden Atelier Kempe Thill oprichtte.
TconcepT transformeert voormalig warenhuis in Offenbach tot bibliotheek
Gisteren, 15:54
Het 12.000 vierkante meter omvattende complex gaat in bredere zin fungeren als een cultuur- en educatiecentrum met vele functies. In 2027 moet Station Mitte, zoals het gebouw zijn volgende leven wordt genoemd, klaar zijn.
Werkstatt gaat verder zonder medeoprichter Niels Groeneveld
Gisteren, 14:49
Medeoprichter van Werkstatt Niels Groeneveld stopt als partner bij het bureau, om zich te kunnen richten op zijn gezin en onderwijs. Floor Frings en Raoul Vleugels blijven het Eindhovense bureau leiden.
Binationaal ontwerpteam buigt zich over waterhuishouding Cartagena in Colombia
Gisteren, 13:43
Een Colombiaans-Nederlands ontwerpteam met Felixx Landscape Architects & Planners en Witteveen+Bos moedigt Cartagena aan om haar relatie met water te heroverwegen en na te denken over een veerkrachtige toekomst
Kunstmuseum in Den Haag moet worden verbouwd
Gisteren, 16:32
Daarvoor dient het museum in het Statenkwartier waarschijnlijk een tijd te sluiten.
Coen van Oostrom benoemd tot nieuwe voorzitter VNO-NCW
Gisteren, 12:23
De oprichter van ontwikkelaar Edge volgt in die rol Ingrid Thijssen op, die deze week is begonnen als nieuwe bestuursvoorzitter van de TU Delft.
Rapport: lokaal klimaatbeleid schiet nog tekort
Gisteren, 10:25
De makers van de zogeheten Toekomstmeter hebben het beleid van zeventig gemeenten doorgelicht.
Hardt Hyperloop failliet verklaard door rechtbank
5 maart, 11:37
Het Rotterdamse bedrijf was bezig met de ontwikkeling van technologie om mensen op hoge snelheid via capsules door een vacuümbuis te vervoeren.
Onderzoek: zeespiegel kustgebieden hoger dan in studies aangenomen
5 maart, 9:13
De zeespiegel aan de kust is in grote delen van de wereld waarschijnlijk hoger dan in veel wetenschappelijke studies wordt aangenomen.
Gelderland geeft voorrang aan vergunningen met minder stikstof
4 maart, 12:24
De plannen zijn onderdeel van het pakket maatregelen dat het Gelderse bestuur wil nemen om de vergunningverlening voor zaken als de woningbouw weer op gang te krijgen.
Ga naar het nieuws-archief
0
0
0
0
Voor een optimale gebruikservaring plaatst Architectenweb functionele cookies. Wat de verschillende cookies precies doen leggen we uit in een
overzicht
. Cookies van social media kun je optioneel
aanzetten
.
Akkoord
Instellingen
Annuleren
OK
Sluiten
Doorgaan
Inloggen
Maak een gratis persoonlijk account aan
Feedback
Feedback
Wij horen graag jouw feedback. Laat je reactie achter en eventueel jouw e-mail adres.
Reactie
Verstuur