Projecten
Producten
Bedrijven
Vacatures
Agenda
Awards
Podcasts
more_horiz
Videos
Magazine
Thema's
Favorieten
Profiel
Uitloggen
Abonneer je nu op onze nieuwsbrieven!
Abonneren
Nee, bedankt
Ja, denk met me mee rond de
materialisering van mijn project
Copyright: Jan Bitter
Copyright: Jan Bitter
Copyright: Jan Bitter
Copyright: Jan Bitter
Copyright: Jan Bitter
Copyright: Jan Bitter
Copyright: Jan Bitter
Copyright: Jan Bitter
Copyright: Jan Bitter
Copyright: Situatie, landschapsontwerp. Topotek 1
Copyright: Plattegrond tweede verdieping. Holzer Kobler Architekturen
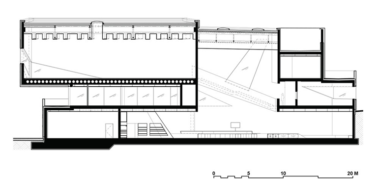
Copyright: Dwarsdoorsnede. Holzer Kobler Architekturen
Archeologisch centrum weerspiegelt landschap
22 juli 2013, 16:03
Het Paläon in Schöningen, in de Duitse deelstaat Niedersachsen, is gewijd aan de 300.000 jaar oude jachtwapens die in de omgeving zijn gevonden. Het onderzoeks- en belevingscentrum naar ontwerp van
Holzer Kobler Architekturen
staat als een gefacetteerd, spiegelend landmark in de heuvelachtige omgeving.
Het drielaags gebouw is van verre zichtbaar in het licht glooiende landschap, dat zich bovendien spiegelt in de gebouwhuid. Het onderzoeks- en belevingscentrum Paläon staat aan de rand van een dagbouwgebied voor bruinkool en bij de belangrijke archeologische vindplaats van de zogenoemde Schöningen Speere. Het Paläon is voor een groot deel gewijd aan de Schöninger Speere, de oudste gevonden jachtwapens tot nu toe.
Uitsneden
Grote, scherpe uitsneden in de gebouwhuid bieden wijdse uitzichten op de vindplaats van de speren en de bruinkoolgroeves, de bossen en de grazende Przewalski-paarden. “De openingen snijden in het gebouw als de speren in de huid van de paarden”, stellen de architecten. Evengoed kan worden gezegd dat het hoekige gebouw met insnijdingen de vorm overneemt van de afgravingen door dagbouw en archeologie in het landschap, zoals de zich vanaf het volume uitstrekkende wegen het landschap als het ware indelen. In combinatie met de gevels die de bossen en weiden weerspiegelen brengt het gebouw de architectuur, het kunstmatige en het natuurlijke landschap samen.
Tentoonstelling
Eenzelfde hoekigheid kenmerkt het interieur, vooral met betrekking tot de witte tentoonstellingsmeubels en –wanden. Een gebouwhoge foyer in het midden van het Paläon verbindt de verschillende zichtlijnen naar buiten met elkaar. Alle functies van het gebouw – tentoonstelling, educatie, administratie, restaurant en winkel – zijn bereikbaar vanuit de foyer. Hoogtepunt van de tentoonstelling is uiteraard de ‘sperenkapel’ met de 300.000 jaar oude Schöninger Speere. Verder krijgt de bezoeker via de tentoonstelling, en andere presentaties een beeld van de huidige opgravingswerkzaamheden bij Schöningen, archeologie in het algemeen, de leefwereld van de oermens en actuele thema’s als klimaatverandering en duurzaamheid.
Landschap
De inbedding van het onderzoeks- en belevingscentrum in het landschap heeft Holzer Kobler in samenwerking met de landschapsarchitecten van
Topotek 1
uitgewerkt. Er is zowel een parklandschap gecreërd dat refereert aan de warme perioden in de oertijd, als sterk door de gebouwarchitectuur bepaalde toegang-
en verblijfgebieden. In het oosten is de helft van het terrein bedekt met bos, in het westen en direct rond het Paläon strekken zich minder dicht bos, weiden en een meer uit. Een wegennet voert de bezoeker langs bijzondere uitzichtspunten, zoals de opgravingslocaties en, zichtbaar vanaf een hoger gelegen punt, het verblijfsgebied van de wilde paarden.
Trefwoorden
holzer kobler architekturen
archeologische opgraving
landschapsarchitectuur
landschap
archeologie
museum
topotek 1
dagbouw
Best gelezen
1
Een verbod op eengezinswoningen
dinsdag, 24 maart
2
Architectenweb symposium: ontwerpen van autovrije buurten
woensdag, 25 maart
3
Schiphol maakt nieuwe 'huisarchitecten' bekend
donderdag, 26 maart
4
Studioninedots ontwerpt zelfbouwwoning als landschap van gestapelde doosjes
woensdag, 25 maart
5
Mecanoo deelt nieuwe foto's van De Nederlandsche Bank
woensdag, 25 maart
Gerelateerde nieuwsberichten
Archeologiecentrum is deel van het landschap
20 januari 2015
Moderne bibliotheek met historische basis
23 juli 2013
Museum van afwezigheid in Mechelen
8 juli 2013
Uitgebreid Museum De Fundatie opent deuren
31 mei 2013
Mediterraan museum Marseille opent deuren
10 mei 2013
KCAP wint prijsvraag 'Belval Square Mile'
21 februari 2011
BIG wint met skipiste annex energiecentrale
28 januari 2011
Archeologiecentrum is deel van het landschap
20 januari 2015
Moderne bibliotheek met historische basis
23 juli 2013
Museum van afwezigheid in Mechelen
8 juli 2013
Uitgebreid Museum De Fundatie opent deuren
31 mei 2013
Mediterraan museum Marseille opent deuren
10 mei 2013
KCAP wint prijsvraag 'Belval Square Mile'
21 februari 2011
BIG wint met skipiste annex energiecentrale
28 januari 2011
Toon alles
Andere nieuwsberichten
Gebouw wooncoöperatie krijgt gevel van hergebruikte ventilatiekanalen
2 uur geleden
Naar verwachting wordt begin volgend jaar gestart met de bouw van een woongebouw voor wooncoöperatie De Bonte Hulst in Amsterdam-Noord. Het gebouw in Buiksloterham is ontworpen door bureau SLA.
Jan Knikker vertrekt bij MVRDV
3 uur geleden
Knikker, die sinds 2016 partner was bij MVRDV, heeft een belangrijke rol gespeeld bij de professionalisering van de pr- en acquisitieactiviteiten van MVRDV en de mede daaruit volgende groei van het bureau.
MVSA Architects en Powerhouse Company ontwerpen dubbele woontoren bij Den Haag Centraal
Vandaag, 13:19
RED Company heeft met Patrizia SE, Staedion en Bellevue CS The Hague overeenstemming bereikt over de ontwikkeling van de Bellevue-locatie pal naast Den Haag Centraal. Voor de bekroning van de twee torens liggen nog drie varianten op tafel.
Woonhuis tegen dijklichaam loopt door tafelconstructie af in hoogte
Vandaag, 12:13
Aan de rand van het Gelderse dorp Herwijnen is het door B2A ontworpen woonhuis Cascade opgeleverd. De 250 vierkante meter omvattende woning rust op een tafelvormige constructie van acht funderingskolommen tegen een dijklichaam.
OM vervolgt oud-werknemers Strukton na Saudische omkopingskwestie
1 uur geleden
Eerder werd al bekend dat het bouwbedrijf voor tien miljoen euro heeft geschikt in de corruptiezaak.
Duitsland trekt acht miljard uit voor extra klimaatmaatregelen
Vandaag, 10:59
Het geld is onder andere bedoeld voor de bouw van extra windmolens en subsidies voor de aanschaf van elektrische auto's.
‘Transformatie en optoppen levert tienduizenden woningen en klimaatwinst op’
27 maart, 11:53
Woningbouw vergt veel grondstoffen, maar de Wetenschappelijke Klimaatraad ziet veel mogelijkheden om het anders aan te pakken.
Zeeuwse Staten willen inspraak inwoners op groeiplan provincie
27 maart, 9:30
Meerdere Statenfracties in de provincie Zeeland hebben opgeroepen de inwoners op een goede wijze te betrekken bij het uitwerken van de strategische agenda 2050.
Minister: meer geld nodig voor Warmtefonds voor duurzamere woning
26 maart, 12:29
Boekholt gaat de komende tijd op zoek naar geld, zei ze in een debat met de Tweede Kamer.
Kadaster: nieuwbouwappartementen in trek bij oudere kopers
26 maart, 9:35
Als zij verhuisplannen hebben, willen ze vaker een nieuwbouwhuis dan andere leeftijdsgroepen en zijn ze vaker bereid verder weg te gaan dan jongere kopers.
Ga naar het nieuws-archief
0
0
0
0
Voor een optimale gebruikservaring plaatst Architectenweb functionele cookies. Wat de verschillende cookies precies doen leggen we uit in een
overzicht
. Cookies van social media kun je optioneel
aanzetten
.
Akkoord
Instellingen
Annuleren
OK
Sluiten
Doorgaan
Inloggen
Maak een gratis persoonlijk account aan
Feedback
Feedback
Wij horen graag jouw feedback. Laat je reactie achter en eventueel jouw e-mail adres.
Reactie
Verstuur