Projecten
Producten
Bedrijven
Vacatures
Agenda
Awards
Podcasts
more_horiz
Videos
Magazine
Thema's
Favorieten
Profiel
Uitloggen
Abonneer je nu op onze nieuwsbrieven!
Abonneren
Nee, bedankt
Ja, denk met me mee rond de
materialisering van mijn project
Copyright: Woningtype F2, exterieur. META architectenbureau
Copyright: Woningtype F3-4 exterieur. META architectenbureau
Copyright: Woingtype F2, interieur. META architectenbureau
Copyright: Woningtypen F2-3-4. META architectenbureau
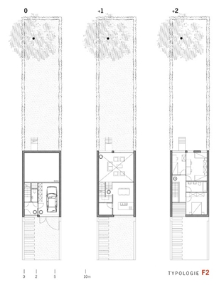
Copyright: Plattegrond type F2. META architectenbureau
Copyright: Plattegrond type F3. META architectenbureau
Copyright: Situatie. META architectenbureau
Copyright: Doorsnede Type F2. META architectenbureau
Doorsnede Type F3-4
Copyright: Plattegrond omgeving. META architectenbureau
Winnend ontwerp voor woonerf in Brasschaat
20 november 2012, 12:31
Het Antwerpse
META architectuurbureau
heeft het winnende ontwerp gemaakt voor een woonerf in Brasschaat. De verschillende woningen vormen zowel functioneel als esthetisch een geheel.
Het plan voor de Officierenwijk in Brasschaat, Belgiƫ, voorziet in 23 eengezinswoningen, waarvan 17 sociale woningen, 5 eenvoudige woningen en een zogenoemde kangoeroewoning, een woonvorm voor zorgbehoevende mensen met behoud van hun zelfstandigheid.
De woningen zijn verdeeld over twee rijen en een huis dat aansluit op bestaande bouw. Het wijkje is gesitueerd tussen bestaande woningen en de talrijke bomen. De woningen in het ontwerp van META architectuurbureau vormen een eenheid, waaraan de gevel een belangrijke visuele bijdrage levert.
Alle gevels bestaan uit een betonnen kader met een houten invulling, afgewisseld met glas of openingen in de vorm van bijvoorbeeld balkons. Het totaalbeeld biedt een spel met regelmaat en variatie. Het laat niet alleen de volumes op elkaar aansluiten, maar ook de Officierenwijk op de bosrijke omgeving.
Trefwoorden
meta architectuurbureau
woningbouw
belgië
brasschaat
sociale woningbouw
Best gelezen
1
MVSA Architects en Powerhouse Company ontwerpen dubbele woontoren bij Den Haag Centraal
maandag, 30 maart
2
Architectenweb symposium: ontwerpen van autovrije buurten
woensdag, 25 maart
3
Schiphol maakt nieuwe 'huisarchitecten' bekend
donderdag, 26 maart
4
Amsterdam wil hiphopcentrum realiseren in stadsdeel Zuidoost
vrijdag, 27 maart
5
Studioninedots ontwerpt zelfbouwwoning als landschap van gestapelde doosjes
woensdag, 25 maart
Gerelateerde nieuwsberichten
META realiseert afwisselend en coherent sociale woningbouwproject
22 april 2020
META en MikeViktorViktor ontwerpen inbreiding Mortsel
21 juni 2018
Herbestemming voor oude Normaalschoollocatie Lier
27 oktober 2017
Universiteitscampus Antwerpen uitgebreid met Gebouw M
4 oktober 2017
Zwevend gouden blok voor Universiteit Antwerpen
27 september 2016
Amerikaanse stad krijgt 'woenurf'
8 april 2015
Nieuwbouw voegt zich in de rij
22 januari 2013
Houten onderwijsgebouw voor campus Gent
10 januari 2013
Architecten voor Gebouw O Antwerpen bekend
26 november 2012
Crepain Binst ontwerpt Nieuw Brugge
21 november 2012
Buur-Hosper gaat Antwerpse Kievitwijk inrichten
6 november 2012
Happel Cornelisse wint open oproep Antwerpen
21 september 2012
Veel gemeenten willen minder sociale woningen
24 mei 2012
META realiseert afwisselend en coherent sociale woningbouwproject
22 april 2020
META en MikeViktorViktor ontwerpen inbreiding Mortsel
21 juni 2018
Herbestemming voor oude Normaalschoollocatie Lier
27 oktober 2017
Universiteitscampus Antwerpen uitgebreid met Gebouw M
4 oktober 2017
Zwevend gouden blok voor Universiteit Antwerpen
27 september 2016
Amerikaanse stad krijgt 'woenurf'
8 april 2015
Nieuwbouw voegt zich in de rij
22 januari 2013
Houten onderwijsgebouw voor campus Gent
10 januari 2013
Architecten voor Gebouw O Antwerpen bekend
26 november 2012
Crepain Binst ontwerpt Nieuw Brugge
21 november 2012
Buur-Hosper gaat Antwerpse Kievitwijk inrichten
6 november 2012
Happel Cornelisse wint open oproep Antwerpen
21 september 2012
Veel gemeenten willen minder sociale woningen
24 mei 2012
Toon alles
Andere nieuwsberichten
'Materialenwerf' in M4H vormt festivalhart Rotterdam Architectuur Maand
4 uur geleden
Op 3 juni opent het flexibel opgezette bouwwerk in M4H, waar gebruikte bouwmaterialen worden verzameld, bewerkt en opnieuw ingezet. Gedurende de hele maand juni wordt er getest hoe een circulaire stad eruit kan zien, meldt AIR Rotterdam.
Concrete vertaalt ideeën van culinaire chefs naar interieur
Vandaag, 12:15
In de Amsterdamse Noorderstraat heeft Concrete het interieur van het nieuwe restaurant Amice ontworpen.
Gebouw wooncoöperatie krijgt gevel van hergebruikte ventilatiekanalen
Gisteren, 16:04
Naar verwachting wordt begin volgend jaar gestart met de bouw van een woongebouw voor wooncoöperatie De Bonte Hulst in Amsterdam-Noord. Het gebouw in Buiksloterham is ontworpen door bureau SLA.
Jan Knikker vertrekt bij MVRDV
Gisteren, 14:46
Knikker, die sinds 2016 partner was bij MVRDV, heeft een belangrijke rol gespeeld bij de professionalisering van de pr- en acquisitieactiviteiten van MVRDV en de mede daaruit volgende groei van het bureau.
Michael Braungart luistert vijftienjarig jubileum Cradle to Cradle Café op
Vandaag, 11:27
Op dinsdag 14 april organiseert het Cradle to Cradle Café een speciaal jubileumfestival in Utrecht ter gelegenheid van zijn vijftienjarig bestaan.
PBL: politieke keuzes nodig voor aanpassing klimaatverandering
Vandaag, 10:23
Een verstandige keuze is alvast om alles klimaatadaptief aan te pakken, aldus het Planbureau voor de Leefomgeving.
OM vervolgt oud-werknemers Strukton na Saudische omkopingskwestie
Gisteren, 16:52
Eerder werd al bekend dat het bouwbedrijf voor tien miljoen euro heeft geschikt in de corruptiezaak.
Duitsland trekt acht miljard uit voor extra klimaatmaatregelen
Gisteren, 10:59
Het geld is onder andere bedoeld voor de bouw van extra windmolens en subsidies voor de aanschaf van elektrische auto's.
āTransformatie en optoppen levert tienduizenden woningen en klimaatwinst opā
27 maart, 11:53
Woningbouw vergt veel grondstoffen, maar de Wetenschappelijke Klimaatraad ziet veel mogelijkheden om het anders aan te pakken.
Zeeuwse Staten willen inspraak inwoners op groeiplan provincie
27 maart, 9:30
Meerdere Statenfracties in de provincie Zeeland hebben opgeroepen de inwoners op een goede wijze te betrekken bij het uitwerken van de strategische agenda 2050.
Ga naar het nieuws-archief
1
0
0
0
Voor een optimale gebruikservaring plaatst Architectenweb functionele cookies. Wat de verschillende cookies precies doen leggen we uit in een
overzicht
. Cookies van social media kun je optioneel
aanzetten
.
Akkoord
Instellingen
Annuleren
OK
Sluiten
Doorgaan
Inloggen
Maak een gratis persoonlijk account aan
Feedback
Feedback
Wij horen graag jouw feedback. Laat je reactie achter en eventueel jouw e-mail adres.
Reactie
Verstuur