Projecten
Producten
Bedrijven
Vacatures
Agenda
Awards
Podcasts
more_horiz
Videos
Magazine
Thema's
Favorieten
Profiel
Uitloggen
Abonneer je nu op onze nieuwsbrieven!
Abonneren
Nee, bedankt
Ja, denk met me mee rond de
materialisering van mijn project
Copyright: R. Meffre/Y. Marchand
Copyright: R. Meffre/Y. Marchand
Copyright: R. Meffre/Y. Marchand
Copyright: R. Meffre/Y. Marchand
Copyright: R. Meffre/Y. Marchand
Copyright: R. Meffre/Y. Marchand
Copyright: R. Meffre/Y. Marchand
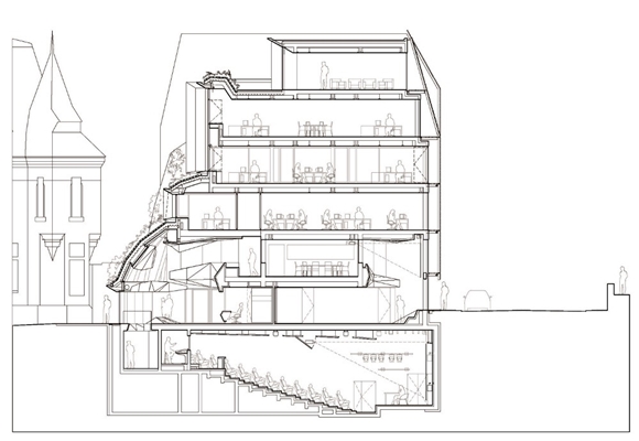
Copyright: Chartier-Corbasson Architectes
Copyright: Chartier-Corbasson Architectes
Groene gevel voor Kamer van Koophandel Amiens
25 oktober 2012, 11:46
De Franse regio Picardiƫ beschikt over een opmerkelijke nieuwe Kamer van Koophandel. Het gebouw beschikt over een levende groene gevel, waarin de natuurlijke topografie van de naastgelegen tuinen wordt voortgezet.
Chartier-Corbasson Architectes
heeft het gebouw in Amiens ontworpen.
Dit bureau heeft het gebouw opgevat als een uitbreiding van het stadsdeelkantoor Bouctot-Vagniez, een art nouveau-gebouw uit de jaren twintig van de vorige eeuw. Het groen markeert de overgang tussen de twee gebouwen.
De kantoren zijn herkenbaar door de reusachtige vensters, met glas dat is voorzien van geĆÆntegreerde zonwering. Het kantoorprogramma is verdeeld over twee helften, gescheiden door een atrium dat licht en lucht diep het gebouw laat doordringen.
De groene gevel is aan de onderzijde opgetild, waardoor een entreehal op de begane grond zichtbaar wordt. Andersom hebben bezoekers ruim zicht op de tuinen en is de hal ruim voorzien van daglicht.
Het gebouw heeft twee totaal verschillende gezichten. Aan de achterkant voegt het zich qua omvang in de bestaande bebouwing, alleen breekt het dankzij de opvallende gevel met het straatbeeld. Het metalen vlechtwerk van de buitenste gevel zorgt voor zonwering en ventilatie.
Trefwoorden
kamer van koophandel
amiens
groengevel
chartier-corbasson architectes
Best gelezen
1
Finalisten presenteren ontwerp voor Shift Landmark in Rotterdam
woensdag, 4 maart
2
Architect Oliver Thill op 55-jarige leeftijd overleden
donderdag, 5 maart
3
Nieuwe Hittekaart Woningmarkt 2026 van BPD toont aanhoudende woningdruk
dinsdag, 3 maart
4
Strijp-S krijgt woonbuurtje met karakteristieken voormalig Philips-terrein
maandag, 2 maart
5
Haagse gemeenteraad stemt in met bouw van 11.400 woningen in nieuw stadscentrum
maandag, 2 maart
Gerelateerde nieuwsberichten
Grootste groengevel van Europa wordt onthuld
9 september 2010
Groene gevels zijn beter voor gezondheid
29 juni 2011
Groene gevels onthuld in Rotterdam
3 juni 2010
Nezu Aymo winnaar Amsterdamse groene gevel-prijsvraag
6 september 2012
Grootste groengevel van Europa wordt onthuld
9 september 2010
Groene gevels zijn beter voor gezondheid
29 juni 2011
Groene gevels onthuld in Rotterdam
3 juni 2010
Nezu Aymo winnaar Amsterdamse groene gevel-prijsvraag
6 september 2012
Toon alles
Andere nieuwsberichten
André Kempe: āHet ging Oliver Thill om het geven van betekenisā
6 maart, 7:15
Agelopen maandag is architect Oliver Thill overleden. Zijn compagnon André Kempe gedenkt de man met wie hij al meer dan 35 jaar bevriend was en ruim een kwarteeuw geleden Atelier Kempe Thill oprichtte.
TconcepT transformeert voormalig warenhuis in Offenbach tot bibliotheek
6 maart, 3:54
Het 12.000 vierkante meter omvattende complex gaat in bredere zin fungeren als een cultuur- en educatiecentrum met vele functies. In 2027 moet Station Mitte, zoals het gebouw zijn volgende leven wordt genoemd, klaar zijn.
Werkstatt gaat verder zonder medeoprichter Niels Groeneveld
6 maart, 2:49
Medeoprichter van Werkstatt Niels Groeneveld stopt als partner bij het bureau, om zich te kunnen richten op zijn gezin en onderwijs. Floor Frings en Raoul Vleugels blijven het Eindhovense bureau leiden.
Binationaal ontwerpteam buigt zich over waterhuishouding Cartagena in Colombia
6 maart, 1:43
Een Colombiaans-Nederlands ontwerpteam met Felixx Landscape Architects & Planners en Witteveen+Bos moedigt Cartagena aan om haar relatie met water te heroverwegen en na te denken over een veerkrachtige toekomst
Kunstmuseum in Den Haag moet worden verbouwd
6 maart, 4:32
Daarvoor dient het museum in het Statenkwartier waarschijnlijk een tijd te sluiten.
Coen van Oostrom benoemd tot nieuwe voorzitter VNO-NCW
6 maart, 12:23
De oprichter van ontwikkelaar Edge volgt in die rol Ingrid Thijssen op, die deze week is begonnen als nieuwe bestuursvoorzitter van de TU Delft.
Rapport: lokaal klimaatbeleid schiet nog tekort
6 maart, 10:25
De makers van de zogeheten Toekomstmeter hebben het beleid van zeventig gemeenten doorgelicht.
Hardt Hyperloop failliet verklaard door rechtbank
5 maart, 11:37
Het Rotterdamse bedrijf was bezig met de ontwikkeling van technologie om mensen op hoge snelheid via capsules door een vacuümbuis te vervoeren.
Onderzoek: zeespiegel kustgebieden hoger dan in studies aangenomen
5 maart, 9:13
De zeespiegel aan de kust is in grote delen van de wereld waarschijnlijk hoger dan in veel wetenschappelijke studies wordt aangenomen.
Gelderland geeft voorrang aan vergunningen met minder stikstof
4 maart, 12:24
De plannen zijn onderdeel van het pakket maatregelen dat het Gelderse bestuur wil nemen om de vergunningverlening voor zaken als de woningbouw weer op gang te krijgen.
Ga naar het nieuws-archief
0
0
0
0
Voor een optimale gebruikservaring plaatst Architectenweb functionele cookies. Wat de verschillende cookies precies doen leggen we uit in een
overzicht
. Cookies van social media kun je optioneel
aanzetten
.
Akkoord
Instellingen
Annuleren
OK
Sluiten
Doorgaan
Inloggen
Maak een gratis persoonlijk account aan
Feedback
Feedback
Wij horen graag jouw feedback. Laat je reactie achter en eventueel jouw e-mail adres.
Reactie
Verstuur