Projecten
Producten
Bedrijven
Vacatures
Agenda
Awards
Podcasts
more_horiz
Videos
Magazine
Thema's
Favorieten
Profiel
Uitloggen
Copyright: Jeanne Dekkers Architectuur
Copyright: Jeanne Dekkers Architectuur
Copyright: Jeanne Dekkers Architectuur
Copyright: Jeanne Dekkers Architectuur
Copyright: Jeanne Dekkers Architectuur
Copyright: Jeanne Dekkers Architectuur
Copyright: Jeanne Dekkers Architectuur
Copyright: Jeanne Dekkers Architectuur
Copyright: Jeanne Dekkers Architectuur
Copyright: Jeanne Dekkers Architectuur
Copyright: Jeanne Dekkers Architectuur
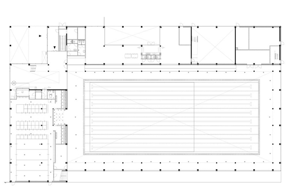
Bouwstart openluchtzwembad Jeanne Dekkers
7 september 2011, 9:28
Donderdag 8 september wordt gestart met de bouw van het openluchtzwembad Krommerijn in Utrecht. Het zwembad is ontworpen door
Jeanne Dekkers Architectuur
in samenwerking met
Wehrung Architecten
en wordt voorzien van een te openen, met lucht gevuld kunststof dak.
Het kunststof dak dat de Jeanne Dekkers Architectuur en Wehrung Architecten hebben ontworpen, is sterk isolerend en moet ervoor zorgen dat het openluchtzwembad ook in de winter bruikbaar is. Als inspiratiebron voor het ontwerp van het nieuwe bad koos Jeanne Dekkers Architectuur de bijzondere ligging van het bad aan de Oude Rijn, een plek met sporen van de Romeinse tijd. Bij de Romeinen maakte het ritueel van baden en saunabezoek een belangrijk deel uit van de samenleving: het leek een passende ambiance voor het nieuwe zwembad.
Het ontwerp voorziet in een omloop van het bad met zuilen, die het verplaatsbare dak dragen. Deze omloop kan volgens Jeanne Dekkers Architectuur tevens als tribune dienen bij wedstrijden. “De structuur en de maatvoering van het gebouw zijn zichtbaar in de stoere, karakteristieke uitstraling van de architectuur”, aldus Jeanne Dekkers Architectuur: “Het bad is een aantrekkelijk plaats geworden waar mensen uit Utrecht en omgeving, jong en oud, graag naar toe komen om er prettig te verblijven, te recreëren en te sporten.”
Wethouder Rinda den Besten zal donderdag 8 september het officiële startsein geven voor de bouw van het openlucht zwembad.
Trefwoorden
zwembad krommerijn
utrecht
wehrung architecten
jeanne dekkers architectuur
Best gelezen
1
Buikslotermeerplein in Amsterdam-Noord krijgt zeventig meter hoge woontoren
woensdag, 22 oktober
2
Gedetailleerde 3D-geprinte maquette toont ruimtelijke ontwikkeling Amsterdam
vrijdag, 17 oktober
3
Woongebouwen door VdpArchitecten vormen nieuwe 'voorkant' Groningse Oosterparkwijk
vrijdag, 17 oktober
4
Nieuw woongebouw op plek befaamde elektronicazaak Rotterdam-Noord
maandag, 20 oktober
5
De Louise van De Zwarte Hond combineert sociale woningbouw met kwaliteit en duurzaamheid
maandag, 20 oktober
Gerelateerde nieuwsberichten
Deltares krijgt nieuw kantoorgebouw in Delft
15 februari 2012
Veghelse school Jeanne Dekkers geopend
11 november 2011
Brandweerkazerne wint Architectuurprijs Zwolle
2 april 2008
Jeanne Dekkers ontwerpt stadhuis Beverwijk
6 juli 2006
Bouw uitbreiding Limburgs Museum van start
17 juni 2011
Een kei van een gebouw geopend.
5 mei 2006
Jeanne Dekkers presenteert ontwerp school
18 februari 2011
MFA Atolplaza Lelystad geopend
26 april 2011
Internationale scholenprijs voor Jeanne Dekkers
13 november 2007
Nieuw onderkomen toplaboratoria TU Delft
3 september 2007
Nieuwbouw voor cultureel centrum Belfeld
16 februari 2012
Brede school op Amsterdamse IJburg geopend
9 maart 2012
Nieuw Utrechts zwembad met demontabel dak
24 april 2013
Verbouwing stadshal Leeuwarden gestart
18 januari 2012
Uitbreiding Limburgs Museum klaar
23 april 2012
Compact en overzichtelijk sportcomplex voor Capelle aan den IJssel
18 februari 2021
Deltares krijgt nieuw kantoorgebouw in Delft
15 februari 2012
Veghelse school Jeanne Dekkers geopend
11 november 2011
Brandweerkazerne wint Architectuurprijs Zwolle
2 april 2008
Jeanne Dekkers ontwerpt stadhuis Beverwijk
6 juli 2006
Bouw uitbreiding Limburgs Museum van start
17 juni 2011
Een kei van een gebouw geopend.
5 mei 2006
Jeanne Dekkers presenteert ontwerp school
18 februari 2011
MFA Atolplaza Lelystad geopend
26 april 2011
Internationale scholenprijs voor Jeanne Dekkers
13 november 2007
Nieuw onderkomen toplaboratoria TU Delft
3 september 2007
Nieuwbouw voor cultureel centrum Belfeld
16 februari 2012
Brede school op Amsterdamse IJburg geopend
9 maart 2012
Nieuw Utrechts zwembad met demontabel dak
24 april 2013
Verbouwing stadshal Leeuwarden gestart
18 januari 2012
Uitbreiding Limburgs Museum klaar
23 april 2012
Compact en overzichtelijk sportcomplex voor Capelle aan den IJssel
18 februari 2021
Toon alles
Andere nieuwsberichten
Groosman presenteert ontwerp gezondheidscentrum in Mijdrecht
1 uur geleden
Behalve een gezondheidscentrum omvat het complex 42 zorgappartementen en 27 aanleunwoningen. Het gebouw bestaat uit drie bakstenen volumes met elk een eigen programma en oriëntatie.
Tentoonstelling Optimistic Activism van De Zwarte Hond opent bij Aedes in Berlijn
Gisteren, 16:00
De Zwarte Hond heeft een tentoonstelling samengesteld over haar werkwijze en een bijhorende selectie van twaalf projecten
Bouw van The Circle op plek café De Omval gaat van start
Gisteren, 14:10
In november wordt aan de kop van de Weespertrekvaart in Amsterdam gestart met de bouw van The Circle. Het gebouw, dat is ontworpen door Space & Matter, verrijst op de plek waar vroeger het befaamde café De Omval stond.
BNLA breidt woonhuis uit met uitbouw en 'verborgen schatten' in de tuin
Gisteren, 12:29
In Amstelveen heeft BNLA architecten een jarendertigwoning verbouwd en uitgebreid met onder meer een moderne uitbouw en een verdiept tuinhuis. Achter het tuinhuis zijn als ‘verborgen schatten’ nog een zwembad, buitenkeuken en terras gerealiseerd.
Partijen eens over minder regels en procedures in woningbouw
2 uur geleden
De aanpak van de woningnood is voor veel kiezers het belangrijkste thema voor deze verkiezingen.
Provincies: bouw van half miljoen woningen dreigt stil te vallen
Gisteren, 15:08
De bouw van ongeveer 500.000 woningen dreigt de komende jaren vast te lopen, vooral door de stikstofimpasse en het overvolle elektriciteitsnet.
Maquette als onderdeel van expositie Amsterdam in Motion wordt geopend
Gisteren, 10:35
De maquette, onderdeel van de permanente tentoonstelling Amsterdam in Motion, is een cadeau aan de 750-jarige stad.
Provincies zetten in op natuurherstel tegen stikstofimpasse
22 oktober, 1:27
In 2030 moet zeventig procent van die natuurgebieden op orde zijn, vijf jaar later moet dat voor negentig procent gelden.
Renovatie Prinsenhof Delft kost negen miljoen meer dan eerder begroot
22 oktober, 9:33
Dat komt onder meer doordat bouwmaterialen en energie duurder zijn geworden en door ‘schaarste aan gespecialiseerd vakmanschap’, meldt de gemeente.
Oproep aan nieuw kabinet: maak topprioriteit van schoon water
21 oktober, 12:26
De Unie van Waterschappen vindt dat het volgende kabinet hiervoor moet zorgen om de Europese doelen voor schoon en gezond water te halen.
Ga naar het nieuws-archief
0
0
0
0
Voor een optimale gebruikservaring plaatst Architectenweb functionele cookies. Wat de verschillende cookies precies doen leggen we uit in een
overzicht
. Cookies van social media kun je optioneel
aanzetten
.
Akkoord
Instellingen
Annuleren
OK
Sluiten
Doorgaan
Inloggen
Maak een gratis persoonlijk account aan
Feedback
Feedback
Wij horen graag jouw feedback. Laat je reactie achter en eventueel jouw e-mail adres.
Reactie
Verstuur