Projecten
Producten
Bedrijven
Vacatures
Agenda
Awards
Podcasts
more_horiz
Videos
Magazine
Thema's
Favorieten
Profiel
Uitloggen
Abonneer je nu op onze nieuwsbrieven!
Abonneren
Nee, bedankt
Ja, denk met me mee rond de
materialisering van mijn project
Copyright: Vera Yanovshtchinsky Architecten / BINT Architecten
Copyright: Vera Yanovshtchinsky Architecten / BINT Architecten
Copyright: Vera Yanovshtchinsky Architecten / BINT Architecten
Copyright: Vera Yanovshtchinsky Architecten / BINT Architecten
Copyright: Vera Yanovshtchinsky Architecten / BINT Architecten
Copyright: Vera Yanovshtchinsky Architecten / BINT Architecten
Copyright: Vera Yanovshtchinsky Architecten / BINT Architecten
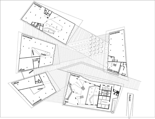
Haagse bureaus ontwerpen stadshart Holon
25 november 2010, 9:37
Vera Yanovshtchinsky Architecten
(VYA) en
BINT Architecten
ontwerpen het nieuwe stadshart van de Israëlische stad Holon. De Haagse architectenbureaus wonnen een openbare prijsvraag voor het nieuwe bestuurlijke en culturele centrum van de stad.
De prijsvraag wordt in Israël beschouwd als een van de belangrijkste van de afgelopen tien jaar, melden de bureaus. Het nieuwe stadshart wordt gevormd door een stadsplein, hieraan liggen een gemeentehuis, een concertzaal en muziekcentrum, kantoren, winkels, woningen en een ondergrondse parkeergarage. “Het combineert een stedelijk plein met een gebouwd ensemble dat aansluit op de structuur van zijn omgeving en de stad”, zeggen VYA en BINT.
De gemeente vroeg een nieuw centrum, dat bewoners en bezoekers een rijk en gevarieerd leven zal bieden. “Dit gaat uitstralen op het geheel van de stedelijke werkelijkheid van Holon. Het hecht zich aan de stad en verankert zich in de maatschappij”, stond in de opgave.
De jury droeg de winnende combinatie, in Israël vertegenwoordigd Setter Architects, unaniem voor bij de gemeente als het meest passende plan. “Het plan beantwoordt aan alle beoordelingscriteria die de gemeente heeft gesteld. Door de flexibiliteit blijft ontwikkeling in de toekomst mogelijk zonder dat het hoge niveau van het ontwerp en zijn architectonisch karakter wordt aangetast”, staat in het juryrapport.
“Een architectonisch zeer interessant project. Het vormt een ensemble en geen afzonderlijke iconen. Zowel de compositie als de gevels boeien. Het project toont een volwassen architectonische benadering zowel met betrekking tot het gebouwde weefsel als het weefsel van de openbare (tussen)ruimte.”
Holon geniet al architectonische bekendheid wegens het
door Ron Arad ontworpen Design Museum
.
Trefwoorden
holon
bint architecten
vera yanovshtchinsky architecten
Best gelezen
1
Luxe appartementengebouw naast klooster Etten-Leur door Studio AAAN klaar
donderdag, 19 maart
2
BureauVanEig verbetert uitstraling Haagse rijtjeswoningen bij verduurzaming
dinsdag, 17 maart
3
Houten Stelthuis van Woonpioniers is aardbevings- en klimaatbestendig
woensdag, 18 maart
4
De nieuwe kleren van de keizer
dinsdag, 17 maart
5
Duncan Stutterheim en SOM maken plannen voor meerdere locaties Sloterdijk I
maandag, 16 maart
Gerelateerde nieuwsberichten
Design Museum Holon (Israël) geopend
1 februari 2010
Andere nieuwsberichten
PSV presenteert plannen voor uitbreiding Philips Stadion
Gisteren, 15:37
De Eindhovense club wil de capaciteit van zijn onderkomen opschroeven met maximaal 25.000 bezoekers. Om dit te bewerkstelligen, komt er een nieuwe schil rond het stadion waarin een derde ring is opgenomen.
Rijkswaterstaat staakt renovatie markante houten Krùsrak-brug in Sneek
Gisteren, 11:32
Tijdens de renovatie werd duidelijk dat de constructieve veiligheid van de brug niet langer kan worden verzekerd, laat RWS weten. De uit 2008 stammende Krúsrak-brug over de rijksweg 7 is ontworpen door Onix en Archterbosch Architecten.
KAAN Architecten en De Zwarte Hond winnen tender voor Area 19 TU Eindhoven
Gisteren, 10:35
De opdracht omvat het ontwerp van een nieuw onderzoeks- en onderwijsgebouw en de stedenbouwkundige ontwikkeling van een nieuw campusgebied.
Projecten gezocht voor vijfde Adriaan Dessingprijs
19 maart, 2:42
De tweejaarlijkse architectuurprijs vestigt de aandacht op bijzondere, gerealiseerde plannen in de Zuid-Hollandse gemeenten Westland en Midden-Delfland. Het kan gaan om nieuwbouw, restauratie of landschappelijke projecten.
Friesland brengt duizenden karakteristieke boerderijen in kaart
Gisteren, 14:16
Door alle informatie over de voor het landschap kenmerkende gebouwen op één plek te brengen, moet het makkelijker worden om ze te behouden.
ING: bijna de helft van de huiseigenaren stelt verduurzaming uit
Gisteren, 12:18
De meeste mensen vinden dat de overheid te weinig doet om dit te stimuleren.
Rekenkamer kraakt resultaten EU-innovatiefonds voor verduurzaming
Gisteren, 09:25
Het Innovatiefonds van de Europese Unie levert veel minder resultaat op dan verwacht op het gebied van verduurzaming en innovatie.
Provincie schrapt beoogde locaties windturbines in Groene Hart
19 maart, 1:35
De provincie had twaalf plekken op het oog, maar dat leidde tot maatschappelijk en politiek verzet.
Staten Utrecht willen netcongestie versneld aanpakken
19 maart, 9:44
De fracties wezen op de noodzaak van het zo snel mogelijk realiseren van een hoogspanningsstation dat essentieel is voor het opsplitsen van het elektriciteitsnetwerk tussen de Flevopolder, Gelderland en Utrecht.
Rotterdam wil woningbouw versnellen met pilot ‘Ontwikkelaar aan Zet’
18 maart, 4:33
De gemeente Rotterdam start een pilot waarbij projectontwikkelaars een grotere rol krijgen bij de voorbereiding van woningbouwprojecten.
Ga naar het nieuws-archief
0
0
0
0
Voor een optimale gebruikservaring plaatst Architectenweb functionele cookies. Wat de verschillende cookies precies doen leggen we uit in een
overzicht
. Cookies van social media kun je optioneel
aanzetten
.
Akkoord
Instellingen
Annuleren
OK
Sluiten
Doorgaan
Inloggen
Maak een gratis persoonlijk account aan
Feedback
Feedback
Wij horen graag jouw feedback. Laat je reactie achter en eventueel jouw e-mail adres.
Reactie
Verstuur