Projecten
Producten
Bedrijven
Vacatures
Agenda
Awards
Podcasts
more_horiz
Videos
Magazine
Favorieten
Profiel
Uitloggen
Abonneer je nu op onze nieuwsbrieven!
Abonneren
Nee, bedankt
Ja, denk met me mee rond de
materialisering van mijn project
Copyright: en NL Architects
NL Architects wint architectenselectie Hengelo
4 januari 2010, 16:02
NL Architects
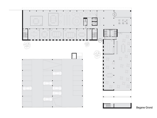
ontwerpt het nieuwe onderkomen van Siemens Industrial Turbomachinery in Hengelo. Voor de locatie direct naast het station heeft NL Architects een kantoorgebouw ontworpen met een getande gevel. Het is een vorm die is afgeleid van de sheddaken van de achterliggende fabrieksgebouwen.
Het gebied ten zuiden van Station Hengelo wordt herontwikkeld. Na de bouw van het
poppodium Metropool
, ontworpen door Benthem Crouwel Architekten, is het kantoorgebouw voor Siemens de volgende stap.
De kern van plangebied, dat
Hart van Zuid
is genoemd, bestaat uit de voormalige Stork machinefabrieken, waarvan een deel wordt herontwikkeld en een deel als productielocatie behouden blijft. Het nieuwe kantoorgebouw komt direct naast de industriële hal te staan waar compressoren voor de olie- en gaswinning worden gemaakt.
Het nieuwe kantoor voor Siemens manifesteert zich als kop van het bouwblok. De hoogbouw geeft mede vorm aan het door
Karres en Brands
ontworpen nieuwe Industrieplein.
Vanuit het nieuwe kantoor is er enerzijds zicht op het nieuwe plein, het station en het centrum van Hengelo. Aan de andere zijde biedt het uitzicht over de bedrijfshallen met de kenmerkende zaagtanden.
De archetypische vorm van deze sheddaken vormt de inspiratie voor de gevel. Door het bestaande ‘weefsel’ een kwartslag te draaien, wordt de ‘vijfde gevel’ het aanzicht van het nieuwe kantoor.
De voorgevel introduceert op die manier het industriële erfgoed dat er achter ligt: de zaagtand wordt logo. Door de schuine stand van de ramen zal het nieuwe plein reflecteren in de gevel. Tevens werkt de gekantelde zaagtand als ‘zonneklep’: het uitzicht wordt, als bij verkeerstorens, geoptimaliseerd.
NL Architects maakte het ontwerp in opdracht van ontwikkelaar
Van Wijnen
en het projectteam Hart van Zuid.
Trefwoorden
nl architects
siemens
hengelo
Locatie
Best gelezen
1
Woontoren Front door Monadnock wint tiende Architectuurprijs Nijmegen
donderdag, 9 april
2
Spoorwegverleden inspireert ontwerp woonblok Wisselspoor 10 in Utrecht
woensdag, 8 april
3
Rotterdam mag woningen gaan bouwen aan de Parkhaven
woensdag, 8 april
4
SeARCH en Heutink Groep winnen tender voor woongebouw Sluisbuurt
vrijdag, 10 april
5
KOW wint met Marker Woods tender voor nieuwe wijk Eschmarkerveld
woensdag, 8 april
Gerelateerde nieuwsberichten
West 8 wint overtuigend de prijsvraag voor het marktplein van Hengelo
8 december 2017
Kantoor Siemens Hengelo geopend
26 juni 2012
Eerste steen Siemens-kantoor Hengelo
7 december 2010
NL Architects wint prijsvraag cultuurpodium
17 augustus 2010
Eurlings belooft drie nieuwe stations
23 april 2010
Stork maakt plaats voor Siemens in Hengelo
31 maart 2010
NL Architects wint selectie turnaccommodatie
24 augustus 2009
Groninger Forum definitief gebouwd
19 juni 2009
Miljoenen nodig voor Utrechts Muziekpaleis
8 juni 2009
West 8 wint overtuigend de prijsvraag voor het marktplein van Hengelo
8 december 2017
Kantoor Siemens Hengelo geopend
26 juni 2012
Eerste steen Siemens-kantoor Hengelo
7 december 2010
NL Architects wint prijsvraag cultuurpodium
17 augustus 2010
Eurlings belooft drie nieuwe stations
23 april 2010
Stork maakt plaats voor Siemens in Hengelo
31 maart 2010
NL Architects wint selectie turnaccommodatie
24 augustus 2009
Groninger Forum definitief gebouwd
19 juni 2009
Miljoenen nodig voor Utrechts Muziekpaleis
8 juni 2009
Toon alles
Andere nieuwsberichten
Architect Cees Dam op 93-jarige leeftijd overleden
Gisteren, 14:35
De oprichter van Dam & Partners architecten ontwierp onder meer de Stopera in Amsterdam (samen met Wilhelm Holzbauer), het stadhuis van Almere en het Huis van de Toekomst in Rosmalen.
Powerhouse Company wint aanbesteding voor verbouwing Vista College Maastricht
Gisteren, 12:16
Het onderkomen van de mbo-school wordt gerenoveerd en uitgebreid met een houten gebouwdeel, dat onder meer de nieuwe hoofdentree en twee atria bevat. Ook moet de nieuwbouw de bestaande gebouwen beter met elkaar verbinden.
Stedelijk Museum organiseert tentoonstelling over ontwerper Kho Liang Ie
Gisteren, 10:52
Met zijn ontwerpen voor meubels en interieurs van de jaren vijftig tot zijn dood halverwege de jaren zeventig nam Kho een centrale positie in binnen de Nederlandse vormgeving. Vermaard is onder meer zijn inrichting van luchthaven Schiphol.
Restauratie Atlasbeeld op dak Koninklijk Paleis Amsterdam afgerond
10 april, 3:38
Het beeld op het fronton van het paleis was in juli van zijn plek gehaald voor een uitgebreide onderhoudsbeurt in Antwerpen.
AFM: funderingsproblemen bij bijna 220.000 woningen
Gisteren, 13:25
De huizen van bijna een half miljoen woningeigenaren hebben een hoog risico op funderingsproblemen of een mogelijke kwetsbare fundering.
Oprichter omgevallen vastgoedconcern Evergrande bekent schuld
Gisteren, 09:17
Evergrande was ooit de grootste projectontwikkelaar van China, maar kwam in de problemen toen het zijn schulden niet kon terugbetalen.
Grote en kleine gemeenten balen van bouwregels Zuid-Holland
10 april, 4:31
Grote en kleine gemeenten in Zuid-Holland hebben hun zorgen geuit over nieuwe regels van de provincie, die volgens hen de woningbouw belemmeren.
Twijfels in Zuid-Holland over halen van doelen landelijk gebied
10 april, 12:18
De meeste partijen in de Zuid-Hollandse politiek hebben twijfels over de plannen die in zestien deelgebieden zijn gemaakt voor de aanpak van het landelijk gebied.
Huurprijzen stijgen harder dan koopwoningprijzen
10 april, 9:31
Volgens Huurwoningen.nl en Pararius moesten nieuwe huurders in het eerste kwartaal gemiddeld 21,12 euro per vierkante meter per maand neerleggen.
ABN AMRO: investeringen defensie vergroten druk op bouwcapaciteit
9 april, 12:29
Kazernes, opslagplaatsen en oefenterreinen dingen om dezelfde aannemers, ingenieurs en installateurs die ook nodig zijn voor bijvoorbeeld woningbouw.
Ga naar het nieuws-archief
0
0
0
0
Voor een optimale gebruikservaring plaatst Architectenweb functionele cookies. Wat de verschillende cookies precies doen leggen we uit in een
overzicht
. Cookies van social media kun je optioneel
aanzetten
.
Akkoord
Instellingen
Annuleren
OK
Sluiten
Doorgaan
Inloggen
Maak een gratis persoonlijk account aan
Feedback
Feedback
Wij horen graag jouw feedback. Laat je reactie achter en eventueel jouw e-mail adres.
Reactie
Verstuur